MEIN ERGEBNIS ANPASSEN

NEU! NAHE U6 5 ZIMMER GARTEN 2 TERRASSEN KÜCHE INKL. PKW-STELLPLATZ INKL. 1230 WIEN EIGENTUM - Objektnr. 5584862


ökologisch beheizt
1230
Ort
125,10 m²
Fläche
5.0
Zimmer

ECKDATEN
FindMyHome.at // Externe Immobilien-ID5584862 // 28289
ImmobilienartHaus - Eigentum
Anschrift/1
1230 Wien
Baujahr2024
Befeuerung
Luftwärmepumpe
Geschosse3
Fläche125,10 m²
Terrassen2 (24,00 m²)
Zimmer5.0
Bad2
WC3
Kaufpreis:€ 729.000,00
Ratenzahlung:Finanzierungsmöglichkeiten für diese Immobilie anzeigen
Provision: 3% des Kaufpreises zzgl. 20% USt.







BESCHREIBUNG

NEU! NAHE U6 5 ZIMMER GARTEN 2 TERRASSEN KÜCHE INKL. PKW-STELLPLATZ INKL. 1230 WIEN EIGENTUM

  • Diese Weihnachten im neuen Haus gewünscht Hier sind Sie richtig!

Zum Verkauf gelangt ein wunderschönes 5-Zimmer-Haus mit eigener Photovoltaikanlage am Flachdach.

Durch die Nähe zur U6-Perfektastraße sowie diversen Buslinien und der Badner Bahn bietet das Haus und die Gegend eine Top-Anbindung in alle Richtungen, sowohl mit öffentlichen Verkehrsmitteln als auch mit dem Auto oder Fahrrad.

Das Haus verfügt über ca. 125 m² Wohnfläche + ca. 73 m² Gartenfläche + 2 Terrassen mit 9 und 15 m² und bietet somit mehr als genug Platz für die ganze Familie sowie Homeoffice!

Durch seine Süd-Ost-West-Ausrichtung ist das Haus lichtdurchflutet und verspricht viel Freude und Tageslicht für seine Bewohner.

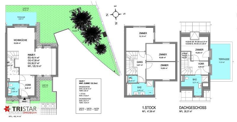
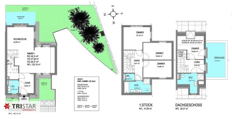
  • Erdgeschoss / 1. Obergeschoss / Dachgeschoss:

Erdgeschoss:

  • Großes Vorzimmer mit ausreichend Platz für Garderobe beim Eingang
  • Wohnküche (Küche ist im Kaufpreis bereits inkludiert), Süd-Ost-West ausgerichtet
  • Toilette, Abstellraum/Technikraum
  • Terrasse mit ca. 9 m², begehbar von der Wohnküche, Süd-Ost ausgerichtet
  • Garten (Eigentum) mit ca. 73 m², Süd-Ost-West ausgerichtet
  • PKW-Stellplatz (im Kaufpreis bereits inkludiert)

1. Obergeschoss:

  • 3 Schlafzimmer (Süd, Ost, West ausgerichtet)
  • Badezimmer mit Badewanne und WM-Anschluss sowie Fenster für Tageslicht
  • Getrennte Toilette
  • Diele

Dachgeschoss:

  • Schlafzimmer (Süd-Ost ausgerichtet)
  • Badezimmer mit Dusche und Toilette sowie Fenster für Tageslicht
  • Diele
  • Terrasse ca. 15 m², südseitig ausgerichtet

 

  • Kein Pacht- oder Baurecht:

Es handelt sich um Eigentum kein Pacht- oder Baurecht.

  • Photovoltaikanlage am Dach:

Modernste Ausstattung und zukunftsorientiertes Design machen dieses Haus zur perfekten Wahl.

Die Heizung im Winter sowie die Kühlung im Sommer erfolgt über den Fußboden mittels einer eigenen Luftwärmepumpe.

Auf dem Flachdach befindet sich eine Photovoltaikanlage mit Grundausstattung, bereits vorinstalliert, welche der Käufer gegen Aufpreis jetzt oder auch zu einem späteren Zeitpunkt entsprechend erweitern kann, um eigene Stromkosten klimafreundlich reduzieren zu können.

  • Küche:
  • Eine neue, vollständig ausgestattete Küche mit Geräten ist ebenfalls im Kaufpreis enthalten.
  • Überblick:

HAUS 1: Gesamtfläche ca. 234 m²

WNFL ca. 125,10 m² (5 Zimmer) + Garten ca. 73 m² + Terrasse (EG) ca. 9 m² + Terrasse (DG) ca. 15 m² + PKW-Stellplatz

Kaufpreis: EUR 729.000, schlüsselfertig, inkl. Küche und PKW-Stellplatz

  • Top Lage:

Detailliertes Lageexposé (68 Seiten!) vorhanden und erfolgt umgehend nach Anfrage.

  • Vermittlungsprovision / Doppelmaklertätigkeit:

Der Ordnung halber wird darauf hingewiesen, dass die Vermittlungsprovision 3 % des Kaufpreises zuzüglich 20 % USt. (insgesamt 3,6 %) beträgt und mit Zustandekommen des vermittelten Rechtsgeschäfts (Annahme des Kaufanbots ohne aufschiebende Bedingungen durch den Verkäufer) fällig wird. Der Makler ist als Doppelmakler tätig.

NEU! NAHE U6 5 ZIMMER GARTEN 2 TERRASSEN KÜCHE INKL. PKW-STELLPLATZ INKL. 1230 WIEN EIGENTUM

Wir weisen darauf hin, dass zwischen dem Vermittler und dem zu vermittelnden Dritten ein familiäres oder wirtschaftliches Naheverhältnis besteht.

Der Vermittler ist als Doppelmakler tätig.

Objekt ist für eine Wohngemeinschaft geeignet
Provision: 3% des Kaufpreises zzgl. 20% USt.


Alle Details anzeigen

KONTAKT






 

Lasse dich kostenlos vom Anbieter dieser Immobilie zurückrufen.







 


 
TRISTAR Immobilien
TRISTAR Immobilien
Telefonnummer anzeigen Handy Bearbeiter: +436769017374
 
Bitte dem Makler die FindMyHome.at - ID bekanntgeben: 5584862

Bewertungen dieses Anbieters
Qualitätsmakler
Qualitätsmakler:
2017, 2019, 2020, 2021,
Netiquette
Freundlichkeit

BEWERTUNGEN DIESES ANBIETERS

 
Qualit�tsmakler
Qualitätsmakler
2017, 2019, 2020, 2021
Freundlichkeit
BESONDERS
FREUNDLICH
Netiquette
FINDMYHOME
NETIQUETTE
Auch du kannst bewerten! 7 Tage nach deiner Anfrage erhältst du dafür von uns ein Bewertungsmail.
Alle Infos zu unseren Auszeichnungen und dem FINDMYHOME.AT Qualitätsprogramm findest du hier: Übersicht anzeigen

FINANZIERUNG
?>

Du willst wissen, wie viel dein Umzug kosten wird?

Mach gleich den kostenlosen Preisvergleich und schau, welche seriösen Anbieter in deiner Region günstig deinen Umzug organisieren


ZUM UMZUGS-VERGLEICH
-->

MYHOME BLOG
SuchAgentin auf FindMyHome.at
Unterschiedlichen Rechtsthemen, köstliche Rezepte, neueste Design-Highlights, sowie aktuelle Technik-Tools für Ihr Eigenheim.


FINDMYHOME.AT SUCHAGENTIN
SuchAgentin auf FindMyHome.at
Hallo, soll ich dir ähnliche Immobilien kostenfrei per E-Mail schicken?


ÄHNLICHE IMMOBILIEN
Aehnliche Immobilie - Vorschaubild 1

NEU! NAHE U6 5 ZIMMER GARTEN 2 TERRASSEN KÜCHE INKL. ... - Objektnr. 5567908

125,10 m² - 5.0 Zimmer
729000 €
PLZ: 1230

Mehr anzeigen

Aehnliche Immobilie - Vorschaubild 2

Dein Doppelhaus-Traum wird wahr: Modernes Wohnen in LIESING ... - Objektnr. 5568510

105,92 m² - 4.0 Zimmer
799000 €
PLZ: 1230

Mehr anzeigen

Aehnliche Immobilie - Vorschaubild 3

NEU! NAHE U6 5 ZIMMER GARTEN 2 TERRASSEN KÜCHE INKL. ... - Objektnr. 5539406

125,10 m² - 5.0 Zimmer
729000 €
PLZ: 1230

Mehr anzeigen

Durch die Nutzung unserer Seite erklären Sie sich mit der Verwendung von Cookies zur Verbesserung Ihres Online-Erlebnisses einverstanden. Detaillierte Informationen zu diesem und weiteren Themen erhalten Sie in unserer Datenschutzerklärung.