MEIN ERGEBNIS ANPASSEN

Modernes Dachgeschoss mit flexibler Raumaufteilung und Terrasse - Objektnr. 5584576


ökologisch beheizt
1110
Ort
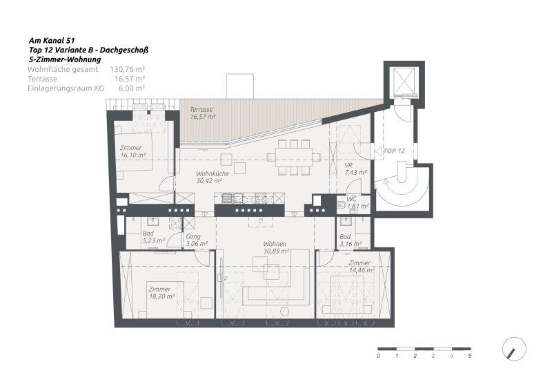
130,76 m²
Fläche
5.0
Zimmer

ECKDATEN
FindMyHome.at // Externe Immobilien-ID5584576 // 60958
ImmobilienartWohnung - Eigentum
Anschrift1110 Wien
Baujahr2025
Befeuerung
Luftwärmepumpe
Stock3
Geschosse4
Fläche130,76 m²
Grundfläche890,00 m²
Terrassen1 (17,00 m²)
Zimmer5.0
Bad2
WC2
 Abstellraum
Kaufpreis:€ 950.000,00
Ratenzahlung:Finanzierungsmöglichkeiten für diese Immobilie anzeigen
Provision: 3% des Kaufpreises zzgl. 20% USt.







BESCHREIBUNG

Modernes Dachgeschoss mit flexibler Raumaufteilung und Terrasse

Um 1900 vom renommierten Wiener Architekten Alois Koch für die Obsthändlerfamilie Hüber erbaut, trägt das klassische Biedermeierhaus im 11. Bezirk die Handschrift einer Zeit, in der auf echtes Handwerk, bleibende Qualität und zeitlose Bauweise Wert gelegt wurde.
Ruhig gelegen, zwischen einem gepflegten Garten und einem begrünten Innenhof, befindet sich das dreigeschossige Haus mit zwölf hochwertig ausgeführten Wohneinheiten und zwei Garagenplätzen. Erschlossen wird es über eine verkehrsfreie Allee. Der von Lederleitner gestaltete Gemeinschaftsgarten mit seinem alten Baumbestand darunter Nuss- und Obstbäume schafft eine romantische Atmosphäre mit Geschichte. Für alle, die gerne gärtnern, stehen eigene Hochbeete zur Verfügung. Mit Liebe zum Detail und Gespür für den Bestand bleiben ausgewählte Originalelemente erhalten etwa das historische Stiegengeländer oder charakteristische Alt-Wiener Fliesen, die den ursprünglichen Charakter des Hauses bewahren. Gleichzeitig sorgen neu gestaltete Grundrisse, eleganter Fischgrätparkett und eine hochwertige Ausstattung für zeitgemäßen Wohnkomfort. Ob kompakte Balkonwohnung oder großzügige Familienwohnung mit Garten im LORYHAUS entsteht Wohnraum, liebevoll durchdacht für unterschiedliche Bedürfnisse und Lebensphasen.

Wohnungsbeschreibung:

Diese großzügige Dachgeschosswohnung überzeugt durch ihre südöstliche Ausrichtung, die für viel natürliches Licht und angenehme Morgensonne sorgt. Mit bis zu über drei Meter hohen Decken und bodentiefen Fensterfronten entsteht ein außergewöhnlich offenes und lichtdurchflutetes Wohnambiente. Das sehr weitläufige Wohnzimmer unterstreicht den großzügigen Charakter der Immobilie.

Die Wohnung verfügt über drei Zimmer, wobei der Grundriss noch flexibel an Ihre individuellen Wünsche angepasst werden kann. Eine großzügige Terrasse erweitert den Wohnraum ins Freie und bietet zusätzlichen Lebenskomfort. Hochwertige Dielenböden, edle Fliesen, ein Lift direkt zur Wohnung sowie zwei komfortable Garagenplätze direkt am Haus runden das exklusive Gesamtbild ab.

Fertigstellung: 12/2026

Hinweis gemäß Energieausweisvorlagegesetz: Ein Energieausweis wurde vom Eigentümer bzw. Verkäufer, nach unserer Aufklärung über die generell geltende Vorlagepflicht, sowie Aufforderung zu seiner Erstellung noch nicht vorgelegt. Daher gilt zumindest eine dem Alter und der Art des Gebäudes entsprechende Gesamtenergieeffizienz als vereinbart. Wir übernehmen keinerlei Gewähr oder Haftung für die tatsächliche Energieeffizienz der angebotenen Immobilie.


Infrastruktur / Entfernungen

Gesundheit
Arzt <500m
Apotheke <500m
Klinik <1.000m
Krankenhaus <2.500m

Kinder & Schulen
Schule <500m
Kindergarten <500m
Universität <1.000m
Höhere Schule <1.500m

Nahversorgung
Supermarkt <500m
Bäckerei <500m
Einkaufszentrum <1.000m

Sonstige
Geldautomat <500m
Bank <500m
Post <500m
Polizei <500m

Verkehr
Bus <500m
U-Bahn <500m
Straßenbahn <500m
Bahnhof <500m
Autobahnanschluss <1.000m

Angaben Entfernung Luftlinie / Quelle: OpenStreetMap

Gartennutzung: JA
Rollstuhlgerecht: JA
Barrierefrei: JA
Provision: 3% des Kaufpreises zzgl. 20% USt.


Alle Details anzeigen

KONTAKT






 

Lasse dich kostenlos vom Anbieter dieser Immobilie zurückrufen.







 


 
AKKADIA Immobilienvermittlung GmbH
Elijah Euler-Rolle
Telefonnummer anzeigen Telefon Allgemein: +431512908558
Handy Bearbeiter: +431512908558
 
Bitte dem Makler die FindMyHome.at - ID bekanntgeben: 5584576

Bewertungen dieses Anbieters
Netiquette
Freundlichkeit
75 %

BEWERTUNGEN DIESES ANBIETERS

 
Weiterempfehlung
WIRD GERNE

Freundlichkeit
BESONDERS
FREUNDLICH
Netiquette
FINDMYHOME
NETIQUETTE
Auch du kannst bewerten! 7 Tage nach deiner Anfrage erhältst du dafür von uns ein Bewertungsmail.
Alle Infos zu unseren Auszeichnungen und dem FINDMYHOME.AT Qualitätsprogramm findest du hier: Übersicht anzeigen

FINANZIERUNG
?>

Du willst wissen, wie viel dein Umzug kosten wird?

Mach gleich den kostenlosen Preisvergleich und schau, welche seriösen Anbieter in deiner Region günstig deinen Umzug organisieren


ZUM UMZUGS-VERGLEICH
-->

MYHOME BLOG
SuchAgentin auf FindMyHome.at
Unterschiedlichen Rechtsthemen, köstliche Rezepte, neueste Design-Highlights, sowie aktuelle Technik-Tools für Ihr Eigenheim.


FINDMYHOME.AT SUCHAGENTIN
SuchAgentin auf FindMyHome.at
Hallo, soll ich dir ähnliche Immobilien kostenfrei per E-Mail schicken?


Durch die Nutzung unserer Seite erklären Sie sich mit der Verwendung von Cookies zur Verbesserung Ihres Online-Erlebnisses einverstanden. Detaillierte Informationen zu diesem und weiteren Themen erhalten Sie in unserer Datenschutzerklärung.