MEIN ERGEBNIS ANPASSEN

Exklusive 3-Zimmer-Dachgeschosswohnung mit Südwest-Terrasse - Objektnr. 5584575


ökologisch beheizt
1110
Ort
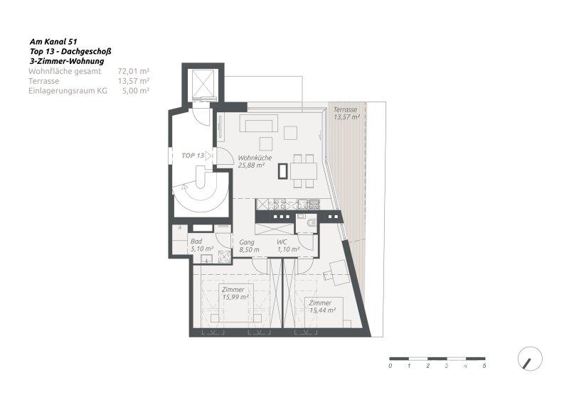
72,01 m²
Fläche
3.0
Zimmer

ECKDATEN
FindMyHome.at // Externe Immobilien-ID5584575 // 60959
ImmobilienartWohnung - Eigentum
Anschrift1110 Wien
Baujahr2025
Befeuerung
Luftwärmepumpe
Stock3
Geschosse4
Fläche72,01 m²
Grundfläche890,00 m²
Terrassen1 (14,00 m²)
Zimmer3.0
Bad1
WC1
 Abstellraum
Kaufpreis:€ 550.000,00
Ratenzahlung:Finanzierungsmöglichkeiten für diese Immobilie anzeigen
Provision: 3% des Kaufpreises zzgl. 20% USt.







BESCHREIBUNG

Exklusive 3-Zimmer-Dachgeschosswohnung mit Südwest-Terrasse

Um 1900 vom renommierten Wiener Architekten Alois Koch für die Obsthändlerfamilie Hüber erbaut, trägt das klassische Biedermeierhaus im 11. Bezirk die Handschrift einer Zeit, in der auf echtes Handwerk, bleibende Qualität und zeitlose Bauweise Wert gelegt wurde.
Ruhig gelegen, zwischen einem gepflegten Garten und einem begrünten Innenhof, befindet sich das dreigeschossige Haus mit zwölf hochwertig ausgeführten Wohneinheiten und zwei Garagenplätzen. Erschlossen wird es über eine verkehrsfreie Allee. Der von Lederleitner gestaltete Gemeinschaftsgarten mit seinem alten Baumbestand darunter Nuss- und Obstbäume schafft eine romantische Atmosphäre mit Geschichte. Für alle, die gerne gärtnern, stehen eigene Hochbeete zur Verfügung. Mit Liebe zum Detail und Gespür für den Bestand bleiben ausgewählte Originalelemente erhalten etwa das historische Stiegengeländer oder charakteristische Alt-Wiener Fliesen, die den ursprünglichen Charakter des Hauses bewahren. Gleichzeitig sorgen neu gestaltete Grundrisse, eleganter Fischgrätparkett und eine hochwertige Ausstattung für zeitgemäßen Wohnkomfort. Ob kompakte Balkonwohnung oder großzügige Familienwohnung mit Garten im LORYHAUS entsteht Wohnraum, liebevoll durchdacht für unterschiedliche Bedürfnisse und Lebensphasen.

Wohnungsbeschreibung:

Diese hochwertige Dachgeschosswohnung bietet durch ihre Ost-Süd-West-Ausrichtung Sonne von früh bis spät und schafft damit eine besonders helle und angenehme Wohnatmosphäre. Große Fensterflächen sowie Deckenhöhen von bis zu über drei Metern verleihen den Räumen eine beeindruckende Großzügigkeit und ein offenes Wohngefühl.

Die durchdachte 3-Zimmer-Aufteilung kann auf Wunsch noch flexibel an Ihre individuellen Vorstellungen angepasst werden. Eine großzügige Terrasse in Südwest-Ausrichtung erweitert den Wohnbereich ins Freie und bietet ideale Voraussetzungen, um die Nachmittags- und Abendsonne in privater Atmosphäre zu genießen.

Hochwertige Dielenböden, edle Fliesen, ein direkter Liftzugang zur Wohnung sowie zwei komfortable Garagenplätze direkt am Haus unterstreichen den exklusiven Charakter dieser Immobilie.

Fertigstellung: 12/2026

Hinweis gemäß Energieausweisvorlagegesetz: Ein Energieausweis wurde vom Eigentümer bzw. Verkäufer, nach unserer Aufklärung über die generell geltende Vorlagepflicht, sowie Aufforderung zu seiner Erstellung noch nicht vorgelegt. Daher gilt zumindest eine dem Alter und der Art des Gebäudes entsprechende Gesamtenergieeffizienz als vereinbart. Wir übernehmen keinerlei Gewähr oder Haftung für die tatsächliche Energieeffizienz der angebotenen Immobilie.


Infrastruktur / Entfernungen

Gesundheit
Arzt <500m
Apotheke <500m
Klinik <1.000m
Krankenhaus <2.500m

Kinder & Schulen
Schule <500m
Kindergarten <500m
Universität <1.000m
Höhere Schule <1.500m

Nahversorgung
Supermarkt <500m
Bäckerei <500m
Einkaufszentrum <1.000m

Sonstige
Geldautomat <500m
Bank <500m
Post <500m
Polizei <500m

Verkehr
Bus <500m
U-Bahn <500m
Straßenbahn <500m
Bahnhof <500m
Autobahnanschluss <1.000m

Angaben Entfernung Luftlinie / Quelle: OpenStreetMap

Gartennutzung: JA
Rollstuhlgerecht: JA
Barrierefrei: JA
Provision: 3% des Kaufpreises zzgl. 20% USt.


Alle Details anzeigen

KONTAKT






 

Lasse dich kostenlos vom Anbieter dieser Immobilie zurückrufen.







 


 
AKKADIA Immobilienvermittlung GmbH
Elijah Euler-Rolle
Telefonnummer anzeigen Telefon Allgemein: +431512908558
Handy Bearbeiter: +431512908558
 
Bitte dem Makler die FindMyHome.at - ID bekanntgeben: 5584575

Bewertungen dieses Anbieters
Netiquette
Freundlichkeit
75 %

BEWERTUNGEN DIESES ANBIETERS

 
Weiterempfehlung
WIRD GERNE

Freundlichkeit
BESONDERS
FREUNDLICH
Netiquette
FINDMYHOME
NETIQUETTE
Auch du kannst bewerten! 7 Tage nach deiner Anfrage erhältst du dafür von uns ein Bewertungsmail.
Alle Infos zu unseren Auszeichnungen und dem FINDMYHOME.AT Qualitätsprogramm findest du hier: Übersicht anzeigen

FINANZIERUNG
?>

Du willst wissen, wie viel dein Umzug kosten wird?

Mach gleich den kostenlosen Preisvergleich und schau, welche seriösen Anbieter in deiner Region günstig deinen Umzug organisieren


ZUM UMZUGS-VERGLEICH
-->

MYHOME BLOG
SuchAgentin auf FindMyHome.at
Unterschiedlichen Rechtsthemen, köstliche Rezepte, neueste Design-Highlights, sowie aktuelle Technik-Tools für Ihr Eigenheim.


FINDMYHOME.AT SUCHAGENTIN
SuchAgentin auf FindMyHome.at
Hallo, soll ich dir ähnliche Immobilien kostenfrei per E-Mail schicken?


ÄHNLICHE IMMOBILIEN
Aehnliche Immobilie - Vorschaubild 1

ZU HAUSE DIREKT AN DER U3 - Objektnr. 5636620


66,12 m² - 3 Zimmer
477000 €
PLZ: 1110

Mehr anzeigen

Aehnliche Immobilie - Vorschaubild 2

ZU HAUSE DIREKT AN DER U3 - Objektnr. 5636613


81,76 m² - 3 Zimmer
650000 €
PLZ: 1110

Mehr anzeigen

Aehnliche Immobilie - Vorschaubild 3

ZU HAUSE DIREKT AN DER U3 - Objektnr. 5636630


81,85 m² - 3 Zimmer
610000 €
PLZ: 1110

Mehr anzeigen

Durch die Nutzung unserer Seite erklären Sie sich mit der Verwendung von Cookies zur Verbesserung Ihres Online-Erlebnisses einverstanden. Detaillierte Informationen zu diesem und weiteren Themen erhalten Sie in unserer Datenschutzerklärung.