MEIN ERGEBNIS ANPASSEN

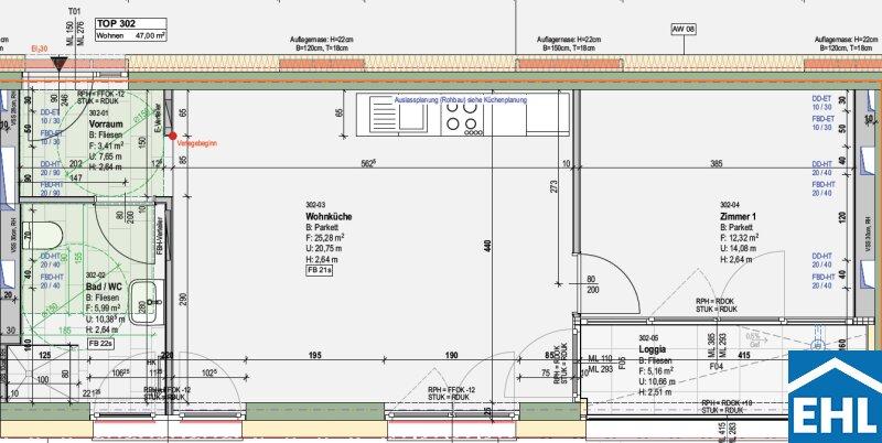
Wohnen im Süd-Spitz: wunderschöne 2-Zimmer-Wohnung mit Loggia - Objektnr. 5584490


ökologisch beheizt
8020
Ort
€ 719,00
Gesamtkosten
47,00 m²
Fläche
2.0
Zimmer
WEITERE MEDIEN

ECKDATEN
FindMyHome.at // Externe Immobilien-ID5584490 // 88422
ImmobilienartWohnung - Miete
AnschriftReininghausstraße/302
8020 Graz
Befeuerung
Fernwärme
Stock3
Beziehbar ab2026-02-01
Mietdauer5
Fläche47,00 m²
Zimmer2.0
Bad1
WC1
Kaution:€ 2.157,00
Brutto-Miete:€ 719,00
Betriebskosten (inkl. MwSt):€ 120,49
Mehrwertsteuer:€ 65,36
Monatliche Gesamtkosten:€ 719,00
Provision: Gemäß Erstauftraggeberprinzip bezahlt der Abgeber die Provision.




BESCHREIBUNG

Wohnen im Süd-Spitz: wunderschöne 2-Zimmer-Wohnung mit Loggia

Süd-Spitz Lebensqualität mit Spitzengefühl

Wenn Sie Natur lieben sich jedoch auch zur Stadt hingezogen fühlen, bietet Ihnen der Süd-Spitz die wunderbare Nähe zu den Wäldern, Felder und auch Gewässern, die sich für herrliche Spaziergänge oder Fahrradausflüge anbieten sowie auch die Nähe in die Innenstadt Graz durch die ausgezeichnete Infrastruktur vor Ort.

Durch die moderne und ausgeprägte Architektur mit dem Spitz Richtung Süden ist der Süd-Spitz ein Landmark.

Die hochwertig ausgestatteten Neubauwohnungen mit durchdachten Grundrissen verfügen über großzügige Freiflächen wie Balkone, Loggien oder Terrassen mit sensationellen Blick ins Grüne die sich hervorragend als persönlichen Rückzugsort anbieten um die Seele baumeln zu lassen. Durch die bodentiefen Fenster sind die Wohnungen lichtdurchflutet und geben das Gefühl, der Natur ganz nahe zu sein.

Der Süd-Spitz trägt auch zum Thema Nachhaltigkeit und Energieeffizienz bei, unter anderem durch die PV-Anlage am Objekt sowie auch durch den Fernwärmeanschluss in Kombination einer Sole-Wasser-Wärmepumpe.

Durch die spitzenmäßige Anbindung an die öffentlichen Verkehrsmittel sowie auch an das Radwegenetz, ist man in wenigen Minuten in der Grazer Innenstadt. Eine übertragbare Jahreskarte pro Wohnung steht allen Hauptgemeldeten Bewohnern zur Verfügung.

Wenn man lieber mit dem Fahrrad unterwegs ist, stehen über 300 Fahrradabstellplätze im Erdgeschoss zur Verfügung, weiters wird auch 2x im Jahr für alle Bewohner ein kostenloser Fahrradservice angeboten.

Ebenso gibt es eine Tiefgarage wo auch jeder Stellplatz für Elektromobilität adaptiert werden kann.

Um auch das Kennenlernen unter den Hausbewohnern zu fördern stehen 8 möblierte Terrassen bereit und laden ebenfalls zum Relaxen ein. Für Ihre Kinder wurde ein weitläufiger Kinderspielplatz errichtet der über eine Rutsche, Hügel und eine Sandkiste verfügt.

Bei den Fotos handelt es sich um Musterfotos.

Ausstattung:

Details, auf die Sie sind im neuen Wohnraum freuen können:

  • Parkettböden
  • Hochwertige Fliesen in den Nassräumen
  • Holz-Alu-Fenster mit 3-Scheibe-Isolierverglasung
  • Sonnenschutz Raffstore mit Motorantrieb
  • Markenküchen mit Induktionsherd
  • Bodenebene Dusche
  • Barrierefreier Zugang zu allen Wohnungen
  • Fußbodenheizung
  • Zusätzlichen Kühlung in den DG-Wohnungen
  • Fernwärme
  • Sole-Wasser-Wärmepumpe
  • Aufzüge
  • Kellerabteile
  • Tiefgaragenstellplätze
  • Fahrradabstellplätze
  • Kinderspielplatz

Heizung und Warmwasser werden nach Verbrauch abgerechnet.

Lage:

Die Liegenschaft Reininghausstraße 84-86 befindet sich im schönen Bezirk Eggenberg - Zentral und doch naturnah.

Der Bezirk Eggenberg vereint die Annehmlichkeiten einer zentralen Lage mit den Vorteilen einer erholsamen Umgebung. Unzählige Parks wie z.B. der Schlosspark Eggenberg oder der Planetengarten bieten sich hervorragend für Spaziergänge oder Laufrunden an. In unmittelbarer Nähe befinden sich Supermärkte, Apotheken, Restaurants und Schulen. Die belebte Grazer Innenstadt ist in 10 Minuten mit dem Auto in 15 Minuten mit dem Fahrrad oder in 20 Minuten mit den öffentlichen Verkehrsmitteln erreichbar. Wer es sportlich mag, kann auch Aktivitäten wie Wandern, Golfen, Schwimmen oder Biken können in wenigen Minuten erreichen.
 

Parks - mit dem Fahrrad:   
Schlosspark Eggenberg in 5 min.
Planetengarten in 8 min.
Reininghauspark in 5 min.
Gemeindepark Eggenberg in 4 min.
    
Öffentliche Verkehrsanbindung:

Straßenbahn: 4, 7
Buslinie: 62, 66, 710, 711, 712, 713, N7

Gewässer

  • Bründlteiche
  • Thalersee

Einkaufszentren

  • Citypark

Sportliche Aktivitäten

  • Auster Sport- und Wellnessbad
  • Städtisches Kinderbad für Familien mit Kleinkindern
  • Open Water Schwimmen
  • Grazer Golfclub Thalersee
  • Knight Rider trail

Nebenkosten 
3 BMM Kaution, Vertragserrichtungsgebühr

Wir weisen darauf hin, dass zwischen dem Vermittler und dem zu vermittelnden Dritten ein familiäres oder wirtschaftliches Naheverhältnis besteht.

Der Immobilienmakler erklärt, dass er entgegen dem in der Immobilienwirtschaft üblichen Geschäftsgebrauch des Doppelmaklers einseitig nur für den Vermieter tätig ist.


Infrastruktur / Entfernungen

Gesundheit
Arzt <250m
Apotheke <500m
Klinik <1.000m
Krankenhaus <1.000m

Kinder & Schulen
Schule <750m
Kindergarten <250m
Universität <1.250m
Höhere Schule <1.250m

Nahversorgung
Supermarkt <250m
Bäckerei <250m
Einkaufszentrum <2.250m

Sonstige
Geldautomat <500m
Bank <500m
Post <500m
Polizei <1.500m

Verkehr
Bus <250m
Straßenbahn <500m
Autobahnanschluss <3.500m
Bahnhof <1.250m
Flughafen <9.000m

Angaben Entfernung Luftlinie / Quelle: OpenStreetMap

Provision: Gemäß Erstauftraggeberprinzip bezahlt der Abgeber die Provision.


Alle Details anzeigen

KONTAKT






 

Lasse dich kostenlos vom Anbieter dieser Immobilie zurückrufen.







 


 
EHL Wohnen GmbH
Gerald Bruchmann

Bewertungen dieses Anbieters
Qualitätsmakler
Qualitätsmakler:
Netiquette
Freundlichkeit
82 %

BEWERTUNGEN DIESES ANBIETERS

 
Qualitätsmakler
UNSERE HALL OF FAME DER BESTEN ANBIETER
Qualit�tsmakler
Qualitätsmakler
2012, 2013, 2014, 2015, 2016, 2017, 2018, 2019, 2020, 2021, 22/23, 2024, 2025
Weiterempfehlung
WIRD GERNE

Freundlichkeit
BESONDERS
FREUNDLICH
Netiquette
FINDMYHOME
NETIQUETTE
Auch du kannst bewerten! 7 Tage nach deiner Anfrage erhältst du dafür von uns ein Bewertungsmail.
Alle Infos zu unseren Auszeichnungen und dem FINDMYHOME.AT Qualitätsprogramm findest du hier: Übersicht anzeigen


Du willst wissen, wie viel dein Umzug kosten wird?

Mach gleich den kostenlosen Preisvergleich und schau, welche seriösen Anbieter in deiner Region günstig deinen Umzug organisieren


ZUM UMZUGS-VERGLEICH
-->

MYHOME BLOG
SuchAgentin auf FindMyHome.at
Unterschiedlichen Rechtsthemen, köstliche Rezepte, neueste Design-Highlights, sowie aktuelle Technik-Tools für Ihr Eigenheim.


FINDMYHOME.AT SUCHAGENTIN
SuchAgentin auf FindMyHome.at
Hallo, soll ich dir ähnliche Immobilien kostenfrei per E-Mail schicken?


ÄHNLICHE IMMOBILIEN
Aehnliche Immobilie - Vorschaubild 1

| 1. MONAT MIETFREI | 4. ETAGE | AB JÄNNER 2026 VERFÜGBAR | ... - Objektnr. 5577330

50,55 m² - 2.0 Zimmer
769 €
PLZ: 8020

Mehr anzeigen

Aehnliche Immobilie - Vorschaubild 2

| LICHTDURCHFLUETETE 2 ZIMMERWOHNUNG | NÄHE HAUPTBAHNHOF... - Objektnr. 5529198

52,50 m² - 2.0 Zimmer
699.8 €
PLZ: 8020

Mehr anzeigen

Aehnliche Immobilie - Vorschaubild 3

Modernes Wohnen im Smart Quadrat! - Objektnr. 5584518


52,60 m² - 2.0 Zimmer
693.01 €
PLZ: 8020

Mehr anzeigen

Durch die Nutzung unserer Seite erklären Sie sich mit der Verwendung von Cookies zur Verbesserung Ihres Online-Erlebnisses einverstanden. Detaillierte Informationen zu diesem und weiteren Themen erhalten Sie in unserer Datenschutzerklärung.