MEIN ERGEBNIS ANPASSEN

++NEU++ 3-Zimmer Altbau-ERSTBEZUG (generalsaniert)! idealer Grundriss! - Objektnr. 5584433

1160
Ort
76,01 m²
Fläche
3.0
Zimmer

ECKDATEN
FindMyHome.at // Externe Immobilien-ID5584433 // 62578
ImmobilienartWohnung - Eigentum
AnschriftEffingergasse
1160 Wien
Befeuerung
Stock2
Fläche76,01 m²
Zimmer3.0
Bad1
WC1
Kaufpreis:€ 349.000,00
Ratenzahlung:Finanzierungsmöglichkeiten für diese Immobilie anzeigen
Provision: 3% des Kaufpreises zzgl. 20% USt.







BESCHREIBUNG

++NEU++ 3-Zimmer Altbau-ERSTBEZUG (generalsaniert)! idealer Grundriss!

Zum Verkauf: Generalsanierte 3-Zimmer-Altbauwohnung in Top-Lage des 16. Bezirks

Wohnfläche: ca. 76 m²
Stockwerk: 2. Stock
Preis: € 349.000 (lastenfrei)


Beschreibung

Diese großzügige und generalsanierte 3-Zimmer-Altbauwohnung befindet sich in der beliebten Effingergasse, einer gefragten Lage im 16. Wiener Gemeindebezirk. Mit ca. 76 m² Wohnfläche, moderner Ausstattung und einer durchdachten Raumaufteilung bietet sie idealen Wohnkomfort.


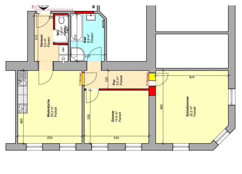
Räumlichkeiten

  • Vorraum
  • Getrenntes WC
  • Wohnküche
  • Badezimmer mit Dusche und Badewanne
  • Zimmer
  • Eckzimmer

(Siehe aktuelle Fotodokumentation und Grundriss!)


Zustand

Die Wohnung wurde komplett generalsaniert und ist ab sofort verfügbar.
Im Zuge der Sanierung wurden alle Leitungen innerhalb der Wohnung vollständig erneuert. (Details siehe Fotodokumentation)


Das Haus

Die Wohnung liegt im 2. Stock eines gepflegten Altbaus (ohne Lift, Dachgeschossausbau geplant).


Lage

Die Effingergasse bietet eine hervorragende Verbindung von Stadtleben und Erholung:

  • Nahe Stadtzentrum: Universitäts- und Rathausviertel, Altes und Neues AKH
  • Naherholungsgebiete: Schwarzenbergpark, Schafberg, Kongresspark und Kongressbad

Infrastruktur:
In unmittelbarer Umgebung befinden sich zahlreiche Geschäfte des täglichen Bedarfs (Supermärkte, Restaurants, Apotheken, Banken) sowie Arztpraxen. Auch Kindergärten, Schulen und Universitäten sind bestens erreichbar. Die Wirtschaftsuniversität liegt nur 10 Gehminuten entfernt.


Verkehrsanbindung

  • Verkehrsanbindung:
    Die Immobilie befindet sich in zentraler Lage im 16. Bezirk und profitiert von hervorragender Infrastruktur:

  • U-Bahn (U3 Ottakring): Schnellverbindung ins Zentrum und Umstiegsmöglichkeiten (z. B. U6, U2).

  • S-Bahn (Wien Hernals): Nur etwa 46 Minuten zu Fuß. Ideal für Pendler.

  • Straßenbahn (Linie 2): bequem erreichbar perfekte Ergänzung für Kurzstrecken.

  • Busnetz: Vielfältige Linien (10A, 42A, 44A, 48A, SV 945 etc.) rund um die Ecke flexibel und vernetzt.

  • Flughafen: Mit dem Zug über Wien Mitte und U-Bahn ca. 34 Minuten. Eine direkte und günstige Anbindung für Reisende.


Kaufpreis

€ 349.000 (lastenfrei)

  • monatliche Kosten (lt. Vorausschau):
    • Reparaturrücklage:    1,32 €/Anteil
    • Betriebskosten:          2,75€/m²
    • Verwaltungshonorar:  0,12 €/m²
    • Servicepauschale:      1,70 €

Vertragserrichter

Mag. Georg Kampas (1,5 % + Barauslagen + 20 % USt)

 

Sollten Sie Fragen haben oder einen Besichtigungstermin wünschen, zögern Sie bitte nicht mich zu kontaktieren. (am besten via E-Mail Anfrage)

Zur Vereinbarung eines Besichtigungstermins lassen Sie uns bitte jedenfalls eine E-Mailanfrage zukommen!

Der IMMY ist die renommierteste Auszeichnung für Wiener Makler- und Verwalterbetriebe im Bereich Wohnimmobilien. Wir sind stolz den goldenen IMMY für das Jahr 2019 gewonnen zu haben!

Vielen Dank vor allem an unsere Kunden! Unser Unternehmen wurde auch zum Besten Start Up und in den Jahren 2015, 2018, 2019 und 2020 als Qualitätsmakler ausgezeichnet!

Bitte achten Sie darauf, dass Sie diese Immobilie, nach Ihrer Anfrage bei Adonia Immobilien, nicht auch bei einem anderen Immobilienmaklerbüro anfragen! Vielen Dank!

Nicht alle unsere Immobilien finden Sie auf den gängigen Plattformen. Wir freuen uns auf Ihren Besuch auf unserer Homepage unter adonia.at 

Wir weisen ausdrücklich auf unser wirtschaftliches Naheverhältnis mit dem Abgeber/ der Abgeberin hin!  Unsere gesetzlichen Pflichten als Doppelmakler werden dadurch jedoch nicht beeinträchtigt. Irrtum und Änderungen vorbehalten. 

Alle hier veröffentlichen Informationen basieren auf den uns von dem Abgeber/ der Abgeberin zur Verfügung gestellten Informationen und wurden nicht selbst erhoben.

Unsere Allgemeinen Geschäftsbedingungen können Sie sowohl in dem Ihnen zugesandten Expose einsehen als auch auf unserer Homepage. Wir weisen ausdrücklich darauf hin, dass diese AGBs Vertragsinhalt werden.

Der Schutz von personenbezogenen Daten ist uns wichtig und auch gesetzlich gefordert. Die Verarbeitung Ihrer personenbezogenen Daten erfolgt nach den datenschutzrechtlichen Bestimmungen. Auf unserer Homepage (unter Datenschutzinformation) finden Sie eine Übersicht die Sie über die wichtigsten Aspekte der Verarbeitung personenbezogener Daten informieren soll.

Wir weisen darauf hin, dass zwischen dem Vermittler und dem zu vermittelnden Dritten ein familiäres oder wirtschaftliches Naheverhältnis besteht.

Der Vermittler ist als Doppelmakler tätig.


Infrastruktur / Entfernungen

Gesundheit
Arzt <500m
Apotheke <250m
Klinik <1.000m
Krankenhaus <1.000m

Kinder & Schulen
Schule <250m
Kindergarten <250m
Universität <1.750m
Höhere Schule <1.250m

Nahversorgung
Supermarkt <250m
Bäckerei <500m
Einkaufszentrum <1.000m

Sonstige
Geldautomat <250m
Bank <250m
Post <250m
Polizei <750m

Verkehr
Bus <250m
U-Bahn <750m
Straßenbahn <500m
Bahnhof <750m
Autobahnanschluss <4.000m

Angaben Entfernung Luftlinie / Quelle: OpenStreetMap

Objekt ist für eine Wohngemeinschaft geeignet
Provision: 3% des Kaufpreises zzgl. 20% USt.


Alle Details anzeigen

KONTAKT






 

Lasse dich kostenlos vom Anbieter dieser Immobilie zurückrufen.







 


 
Adonia Realitätenvermittlung GmbH
Luca Schelodetz
Telefonnummer anzeigen Telefon Allgemein: +436649101540
 
Bitte dem Makler die FindMyHome.at - ID bekanntgeben: 5584433

Bewertungen dieses Anbieters
Qualitätsmakler
Qualitätsmakler:
2015, 2018, 2019, 2020, 2023, 2024,
Netiquette
Freundlichkeit

BEWERTUNGEN DIESES ANBIETERS

 
Qualit�tsmakler
Qualitätsmakler
2015, 2018, 2019, 2020, 22/23, 2024
Freundlichkeit
BESONDERS
FREUNDLICH
Netiquette
FINDMYHOME
NETIQUETTE
Auch du kannst bewerten! 7 Tage nach deiner Anfrage erhältst du dafür von uns ein Bewertungsmail.
Alle Infos zu unseren Auszeichnungen und dem FINDMYHOME.AT Qualitätsprogramm findest du hier: Übersicht anzeigen

FINANZIERUNG
?>

Du willst wissen, wie viel dein Umzug kosten wird?

Mach gleich den kostenlosen Preisvergleich und schau, welche seriösen Anbieter in deiner Region günstig deinen Umzug organisieren


ZUM UMZUGS-VERGLEICH
-->

MYHOME BLOG
SuchAgentin auf FindMyHome.at
Unterschiedlichen Rechtsthemen, köstliche Rezepte, neueste Design-Highlights, sowie aktuelle Technik-Tools für Ihr Eigenheim.


FINDMYHOME.AT SUCHAGENTIN
SuchAgentin auf FindMyHome.at
Hallo, soll ich dir ähnliche Immobilien kostenfrei per E-Mail schicken?


ÄHNLICHE IMMOBILIEN
Aehnliche Immobilie - Vorschaubild 1

| WOHNUNGEN MIT VIEL POTENTIAL | U-BAHN NÄHE | ALTBAU |... - Objektnr. 5534725

71,13 m² - 3.0 Zimmer
391000 €
PLZ: 1160

Mehr anzeigen

Aehnliche Immobilie - Vorschaubild 2

3 Zimmer mit Loggia in Hoflage - frisch generalsaniert & bes... - Objektnr. 5509892

80,00 m² - 3.0 Zimmer
350000 €
PLZ: 1160

Mehr anzeigen

Aehnliche Immobilie - Vorschaubild 3

++NEU++ Exzellent ausgestattete 3-Zimmer Erdgeschoss-Wohnung... - Objektnr. 5583192

61,37 m² - 3.0 Zimmer
379000 €
PLZ: 1160

Mehr anzeigen

Durch die Nutzung unserer Seite erklären Sie sich mit der Verwendung von Cookies zur Verbesserung Ihres Online-Erlebnisses einverstanden. Detaillierte Informationen zu diesem und weiteren Themen erhalten Sie in unserer Datenschutzerklärung.