MEIN ERGEBNIS ANPASSEN

Wohnen über der Stadt – exklusiv, individuell, außergewöhnlich - Objektnr. 5582429

  • (c)2025 ZOOMVP_5
  • (c)2025 ZOOMVP_6
  • (c)2025 ZOOMVP_2
  • (c)2025 ZOOMVP_1
  • (c)2025 ZOOMVP_3
  • (c)2025 ZOOMVP_4
  • (c)2025 ZOOMVP_70
  • (c)2025 ZOOMVP_8
  • (c)2025 ZOOMVP_9
  • Plan Top 29
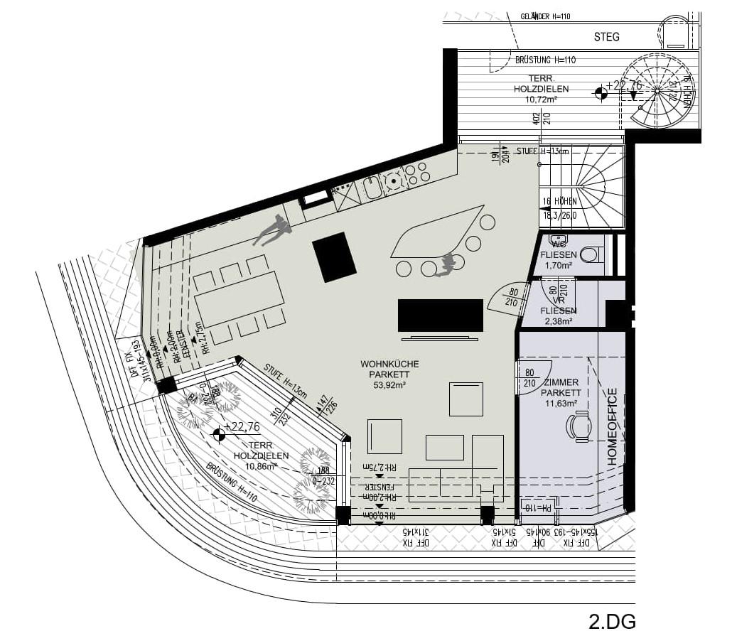
  • Plan Top 29 2.DG
  • Plan Top 29 DT
1030
Ort
151,61 m²
Fläche
5
Zimmer

ECKDATEN
FindMyHome.at // Externe Immobilien-ID5582429 // 101/18523
ImmobilienartWohnung - Eigentum
AnschriftUntere Weißgerber Straße
1030 Wien
Baujahr2027
Alt- oder NeubauNeubau
NäheMuseum Hundertwasser
Liftja
Beziehbar abnach Fertigstellung
Fläche151,61 m²
Balkon1 (77,00 m²)
Zimmer5
Bad1
WC1
Kaufpreis:€ 2.395.000,00
Ratenzahlung:Finanzierungsmöglichkeiten für diese Immobilie anzeigen
Mehrwertsteuer:€ 11,82
Provision: 3%







BESCHREIBUNG

Wohnen über der Stadt – exklusiv, individuell, außergewöhnlich

Nur wenige Schritte vom Prater entfernt und unmittelbar am Donaukanal entsteht ein außergewöhnliches Wohnensemble, das urbanes Lebensgefühl mit hohem individuellem Gestaltungsspielraum verbindet.

Im neu errichteten Dachgeschoss eines liebevoll modernisierten Altbaus werden insgesamt 9 hochwertige Wohnungen mit 2 bis 5 Zimmern realisiert. Jede Einheit bietet zumindest eine private Außenfläche – sei es eine Loggia, ein Balkon oder eine Terrasse.

Künftige Eigentümer können aus einer Vielzahl an Ausstattungsvarianten wählen und diese frei kombinieren, um ein Zuhause zu schaffen, das exakt den persönlichen Vorstellungen entspricht. Der historische Charakter des Altbaus trifft dabei auf zeitgemäße Wohnqualität und ergibt ein harmonisches Gesamterlebnis.

Innen wie außen eröffnen sich großzügige Freiräume: individuelle Gestaltungsmöglichkeiten innerhalb Ihrer Wohnung sowie beste Lagequalität direkt vor der Tür – mit dem Donaukanal für sportliche Aktivitäten am Morgen und dem Prater als vielfältiges Naherholungsgebiet.

Ein besonderes Merkmal dieses Projekts ist der weitreichende Einfluss auf die Planung: Der Erwerb vom Plan weg ermöglicht es Ihnen, sowohl Grundrissdetails als auch Ausstattung maßgeblich mitzugestalten und so Ihre persönliche Wunschwohnung zu realisieren.

Ihre Vorteile im Überblick
• Exklusive Architektur mit Raum für individuelle Planung
• Herrliche Ausblicke über die Stadt
• 9 hochwertige Eigentumswohnungen
• 2–5 Zimmer | Wohnflächen von ca. 45 bis 186 m²
• Größere Wohnungszusammenlegungen möglich (bis zu ca. 400 m²)
• Maximale Gestaltungsfreiheit | frei kombinierbare Ausstattungslinien
• Raumhöhen bis 2,72 m auf der oberen Dachgeschossebene
• Vielfältige Freiflächen: Loggien, Balkone, Terrassen und Dachterrassen
• Hochwertiges, luxuriöses Materialkonzept
• Klimatisierung
• Toplage am Donaukanal | Nähe Prater
• Nur wenige Minuten ins Stadtzentrum

Lage
Die Immobilie befindet sich in einer besonders attraktiven Lage des 3. Bezirks – nur wenige Schritte vom Donaukanal sowie dem architektonisch eindrucksvollen Hundertwasserhaus entfernt. Der Donaukanal und das weitläufige Erholungsgebiet Prater sind bequem zu Fuß erreichbar und bieten ideale Möglichkeiten zum Spazieren, Radfahren oder entspannten Verweilen am Wasser. Auch der beliebte Rochusmarkt sowie die Wiener Innenstadt liegen nur wenige Gehminuten entfernt und sorgen für ein vielseitiges urbanes Angebot. Eine Lage, die Nahversorgung, hervorragende Infrastruktur, zahlreiche Freizeit- und Erholungsmöglichkeiten, städtisches Ambiente und kulturelle Highlights auf harmonische Weise verbindet.

Ansprechpartner
Frau Doris Kurzweil || +43 699 17 55 66 16 || dk@jpi.at
Frau Daniela Schachinger, Dipl.-IM || +43 676 39 29 019 || ds@jpi.at

Wir weisen darauf hin, dass wir mit dem Abgeber in ständiger Geschäftsbeziehung stehen und schon aus diesem Grund ein wirtschaftliches Naheverhältnis vorliegt.Provision: 3%


Alle Details anzeigen

KONTAKT






 

Lasse dich kostenlos vom Anbieter dieser Immobilie zurückrufen.







 


 
JP Immobilien
Daniela Schachinger
Telefonnummer anzeigen Telefon Allgemein: +4315966020634
Handy Bearbeiter: +436763929019
 
Bitte dem Makler die FindMyHome.at - ID bekanntgeben: 5582429

Bewertungen dieses Anbieters
Qualitätsmakler
Qualitätsmakler:
2021,

BEWERTUNGEN DIESES ANBIETERS

 
Qualit�tsmakler
Qualitätsmakler
2021
Auch du kannst bewerten! 7 Tage nach deiner Anfrage erhältst du dafür von uns ein Bewertungsmail.
Alle Infos zu unseren Auszeichnungen und dem FINDMYHOME.AT Qualitätsprogramm findest du hier: Übersicht anzeigen

FINANZIERUNG
?>

Du willst wissen, wie viel dein Umzug kosten wird?

Mach gleich den kostenlosen Preisvergleich und schau, welche seriösen Anbieter in deiner Region günstig deinen Umzug organisieren


ZUM UMZUGS-VERGLEICH
-->

MYHOME BLOG
SuchAgentin auf FindMyHome.at
Unterschiedlichen Rechtsthemen, köstliche Rezepte, neueste Design-Highlights, sowie aktuelle Technik-Tools für Ihr Eigenheim.


FINDMYHOME.AT SUCHAGENTIN
SuchAgentin auf FindMyHome.at
Hallo, soll ich dir ähnliche Immobilien kostenfrei per E-Mail schicken?


ÄHNLICHE IMMOBILIEN
Aehnliche Immobilie - Vorschaubild 1

Untere Weißgerberstraße 17 - Freiraum zum Leben | ROOFTOP CO... - Objektnr. 5624973

151,61 m² - 5.0 Zimmer
2395000 €
PLZ: 1030

Mehr anzeigen

Aehnliche Immobilie - Vorschaubild 2

Exklusive Dachgeschoßwohnung mit großzügiger Terrasse, Penth... - Objektnr. 5625384

166,31 m² - 4 Zimmer
1975000 €
PLZ: 1030

Mehr anzeigen

Aehnliche Immobilie - Vorschaubild 3

Luxus über den Dächern Wiens - privater Lift und Dachterrass... - Objektnr. 5606540

172,51 m² - 4 Zimmer
2499000 €
PLZ: 1030

Mehr anzeigen

Durch die Nutzung unserer Seite erklären Sie sich mit der Verwendung von Cookies zur Verbesserung Ihres Online-Erlebnisses einverstanden. Detaillierte Informationen zu diesem und weiteren Themen erhalten Sie in unserer Datenschutzerklärung.