MEIN ERGEBNIS ANPASSEN

LEBEN auf der SONNENSEITE - 3-Zimmer-Gartenwohnung - PROVISIONSFREI - Objektnr. 5582142


ökologisch beheizt
3002
Ort
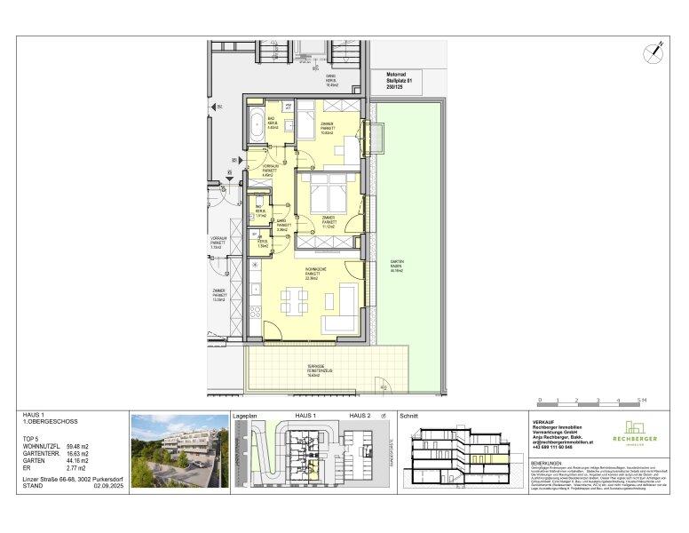
59,48 m²
Fläche
3.0
Zimmer

ECKDATEN
FindMyHome.at // Externe Immobilien-ID5582142 // 553
ImmobilienartWohnung - Eigentum
AnschriftLinzer Straße 66-68/5
3002 Purkersdorf
Baujahr2026
Befeuerung
Luftwärmepumpe
Stock1
Fläche59,48 m²
Terrassen1 (17,00 m²)
Zimmer3.0
Bad1
WC1
 Abstellraum
Kaufpreis:€ 319.000,00
Ratenzahlung:Finanzierungsmöglichkeiten für diese Immobilie anzeigen
Provision:







BESCHREIBUNG

LEBEN auf der SONNENSEITE - 3-Zimmer-Gartenwohnung - PROVISIONSFREI

Zur Projektwebseite

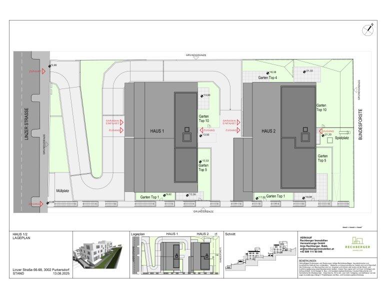
Am sonnigen Eichberg in Purkersdorf entsteht ein Ort zum Wohlfühlen mit Weitblick ins Grüne und viel Raum zum Leben. Zwei charmante Wohnhäuser mit insgesamt 30 Wohnungen bieten eine Vielfalt an Möglichkeiten: von 2-Zimmer-Einheiten bis hin zu Wohnungen mit 6 Zimmern. Hier ist Platz für Lebensentwürfe jeder Art vom ersten Zuhause bis zum Rückzugsort im Ruhestand.

Jede Wohnung verfügt über eine Freifläche, sei es ein Balkon, eine Terrasse oder ein Eigengarten. Durchdachte Grundrisse, moderne Ausstattung und behagliche Fußbodenheizung sorgen für hohen Wohnkomfort ergänzt durch praktische Tiefgaragenplätze direkt im Haus.

Komfort trifft auf Lebensqualität: Die Architektur verbindet moderne Klarheit mit warmen Holzelementen und einem freundlichen Charakter. Die erhöhte, südseitige Lage garantiert besonders viel Sonne und einen wunderbaren Ausblick auf die grüne Umgebung.

Die Lage verbindet Natur und Urbanität: Direkt hinter dem Grundstück beginnt der Wienerwald ideal für Spaziergänge, Bewegung und kleine Alltagsfluchten. Gleichzeitig profitieren Sie von der hervorragenden Infrastruktur in Purkersdorf mit Nahversorgung, Schulen, Freizeitangeboten und einer perfekten Anbindung nach Wien und St. Pölten.

ein Ort, der das Leben einfach schön macht!

Baumeisterqualität vom Feinsten entwickelt von Rechberger Immobilien.
Als Familienunternehmen mit fast 25 Jahren Erfahrung stehen wir für hochwertige Bauqualität, gelebte Werte und echte Handschlagqualität. Unsere Projekte entstehen mit Sorgfalt, Verlässlichkeit und einem klaren Anspruch: Wohnräume zu schaffen, die nachhaltig überzeugen in Wien und der gesamten Wienerwaldregion.

 

Haus 1/Top 5

Diese Wohnung begeistert mit moderner Wohnküche und direktem Ausgang in den Garten über den Wohn- und Schlafbereich. Die Kombination aus privatem Grünbereich und idealer Raumaufteilung macht sie ideal für entspannte Stunden und vielseitiges Wohnen.

Raumkonzept

  • Vorraum mit ausreichend Platz für eine Garderobe
  • Praktischer Abstellraum
  • Großzügige und helle Wohnküche
  • Ausgang zum Garten und auf die Terrasse von der Wohnküche aus
  • ein Schlafzimmer bietet direkten Zugang in den Garten
  • Badezimmer mit großer Badewanne
  • Separate Toilette

Ausgestaltung

  • Fußbodenheizung mit Kühlfunktion in allen Wohnräumen
  • Luftwärmepumpe mit dezentraler Warmwasseraufbereitung
  • Steuerung über ein Raumthermostat in der Wohnung
  • Emissionsfreier Eichenparkett
  • Schöne Feinsteinzeugfliesen
  • Badezimmer raumhoch verfliest
  • Qualitätsvolle Sanitäreinrichtungen
  • Zip Screens elektrisch in eleganten Unterputzkästen
  • Frostsichere Außenarmaturen
  • Feinsteinzeugplatten auf Terrassen und Balkonen

Wohnen auf der Sonnenseite charmant, hell und zeitlos. Hier wird Leben zum täglichen Genuss. Worauf warten Sie
 

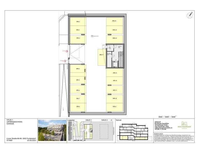
Es werden insgesamt 34 Garagenplätze, 8 überdachte Außenstellplätze sowie 2 Motorradstellplätze errichtet, die gesondert erworben werden können. Der Kaufpreis je Garagenplatz beträgt EUR 19.990, je überdachter Außenstellplatz EUR 14.990 und je Motorradstellplatz EUR 5.000.

 

Wir von RECHBERGER IMMOBILIEN freuen uns, Ihnen dieses Juwel persönlich präsentieren zu dürfen!

Wir freuen uns über Ihre Kontaktaufnahme per E-Mail an Frau Anja Rechberger, ar@rechbergerimmobilien.at oder unter der Nummer +43 (0) 699 111 60 848

 

Vereinbaren Sie noch heute einen unverbindlichen Beratungstermin!

Diese Immobilie wird provisionsfrei für den/die Käufer:in angeboten.

 

 

*Änderungen vorbehalten

*Es handelt sich um Beispielvisualisierungen zum gesamten Projekt. Die Wohnungen werden schlüsselfertig und unmöbliert übergeben. Es ist keine Küche enthalten. Nutzen Sie gerne die Bilder als Inspiration für Ihre zukünftige Einrichtung!


Infrastruktur / Entfernungen

Gesundheit
Arzt <900m
Klinik <6.575m
Apotheke <325m
Krankenhaus <7.250m

Kinder & Schulen
Schule <1.100m
Kindergarten <800m
Universität <5.200m

Nahversorgung
Supermarkt <300m
Bäckerei <500m
Einkaufszentrum <3.675m

Sonstige
Geldautomat <1.000m
Bank <925m
Post <350m
Polizei <975m

Verkehr
Bus <425m
Straßenbahn <6.475m
U-Bahn <6.800m
Bahnhof <1.150m
Autobahnanschluss <3.950m

Angaben Entfernung Luftlinie / Quelle: OpenStreetMap

Provision:


Alle Details anzeigen

KONTAKT






 

Lasse dich kostenlos vom Anbieter dieser Immobilie zurückrufen.







 


 
Rechberger Immobilien Vermarktungs GmbH
Anja Rechberger
Telefonnummer anzeigen Telefon Allgemein: +4318900614620
Handy Bearbeiter: +4369911160848
 
Bitte dem Makler die FindMyHome.at - ID bekanntgeben: 5582142

Bewertungen dieses Anbieters
Netiquette

BEWERTUNGEN DIESES ANBIETERS

 
Netiquette
FINDMYHOME.AT
NETIQUETTE
Auch du kannst bewerten! 7 Tage nach deiner Anfrage erhältst du dafür von uns ein Bewertungsmail.
Alle Infos zu unseren Auszeichnungen und dem FINDMYHOME.AT Qualitätsprogramm findest du hier: Übersicht anzeigen

FINANZIERUNG
?>

Du willst wissen, wie viel dein Umzug kosten wird?

Mach gleich den kostenlosen Preisvergleich und schau, welche seriösen Anbieter in deiner Region günstig deinen Umzug organisieren


ZUM UMZUGS-VERGLEICH
-->

MYHOME BLOG
SuchAgentin auf FindMyHome.at
Unterschiedlichen Rechtsthemen, köstliche Rezepte, neueste Design-Highlights, sowie aktuelle Technik-Tools für Ihr Eigenheim.


FINDMYHOME.AT SUCHAGENTIN
SuchAgentin auf FindMyHome.at
Hallo, soll ich dir ähnliche Immobilien kostenfrei per E-Mail schicken?


ÄHNLICHE IMMOBILIEN
Aehnliche Immobilie - Vorschaubild 1

LEBEN auf der SONNENSEITE - 2-Zimmer-Balkonwohnung - PROVISI... - Objektnr. 5582145

55,59 m² - 2.0 Zimmer
289000 €
PLZ: 3002

Mehr anzeigen

Aehnliche Immobilie - Vorschaubild 2

LEBEN auf der SONNENSEITE - 2-Zimmer-Balkonwohnung - PROVISI... - Objektnr. 5582146

55,63 m² - 2.0 Zimmer
299000 €
PLZ: 3002

Mehr anzeigen

Aehnliche Immobilie - Vorschaubild 3

LEBEN auf der SONNENSEITE - 2-Zimmer-Balkonwohnung - PROVISI... - Objektnr. 5582140

55,33 m² - 2.0 Zimmer
315000 €
PLZ: 3002

Mehr anzeigen

Durch die Nutzung unserer Seite erklären Sie sich mit der Verwendung von Cookies zur Verbesserung Ihres Online-Erlebnisses einverstanden. Detaillierte Informationen zu diesem und weiteren Themen erhalten Sie in unserer Datenschutzerklärung.