WIR2 MITTEN IM LEBEN
Das charmante Wohnbauprojekt bietet perfekt geplante Wohneinheiten in toller Umgebung und garantiert ganzjährig ein hervorragendes Lebensgefühl. Genial in jeder Lebenssituation - erfüllen Sie sich Ihren Wohntraum in Purkersdorf!
Das Projekt
- 2 Mehrfamilienhäuser mit jeweils 14 Mietwohnungen
- ansprechende Grundrisse
- 1-4 Zimmer 41m2-135m2
- jede Wohnung mit Garten, Balkon oder Terrasse
- gewohnt qualitätsvolle Ausführung
- Tiefgaragenplätze
- hervorragend angebunden
Alle Wohnungen werden mit einer hochwertigen Küche der Marke EWE, sowie mit qualitätsvollen AEG Geräten ausgestattet.
- Modernes Design
- Kühl- und Gefrierkombination
- Induktionskochfeld und Dunstabzugshaube
- Backofen mit Umluft
- Geschirrspüler
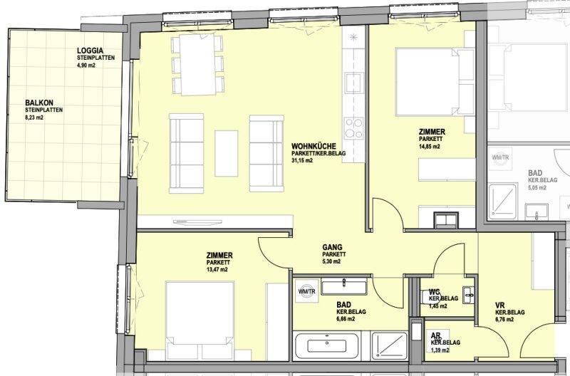
Top 7
Diese wunderbare 3-Zimmerwohnung überzeugt mit einer optimalen Raumaufteilung. Von der geräumigen Wohnküche aus, können Sie den Wienfluss beobachten und ein herrliches Wohngefühl genießen.
Raumkonzept
- geräumiger Vorraum
- offene Wohnküche
- zwei Schlafzimmer
- praktischer Abstellraum
- Badezimmer mit Badewanne, Dusche, Handwaschbecken und WM-Anschluss
- separate Toilette mit Handwaschbecken
- ansprechender Balkon
Ausgestaltung
- Fußbodenheizung in allen Wohnräumen
- hochwertiger 2-Schichtparkettboden in Eiche
- Gegensprechanlage mit Audio- und Videofunktion
- Kunststofffenster mit Acryl-Harz-Beschichtung und 3-fach Isolierverglasung
- elegantes 60x60cm Feinsteinzeug in Küche und Nassräumen
- Bäder raumhoch verfliest
- Innentüren und Eingangstüre mit einer Durchgangslichte von 2,10m Höhe
- energieeffiziente Vaillant Wärmepumpe
- qualitätsvolle Einbauküche
Baumeisterqualität vom Feinsten: Rechberger Immobilien steht seit fast 25 Jahren für Qualität und Menschlichkeit, seit 2011 verstärkt in der Wienerwaldregion.
Konditionen
- Kaution: 3 Bruttomonatsmieten
- Bezugsfertig: ab Februar 2026
- Befristung: 5 Jahre
Wohnumgebung
- Im Herzen des Wiener Waldes und an der Stadtgrenze zu Wien
- optimale Schnellbahn und Busverbindung - perfekte Anbindung an Wien
- grenzenlose Naherholungsmöglichkeiten
- Spazierwege, Radtouren und Wandermöglichkeiten in direkter Umgebung
- hervorragende Kindergärten und Schulen
- beliebter Bauernmarkt im Zentrum von Purkersdorf
Wir von Rechberger Immobilien freuen uns, Sie auf dem Weg zu Ihrer neuen Immobilie begleiten zu dürfen!
Wir freuen uns über Ihre Kontaktaufnahme per E-Mail unter bm@rechbergerimmobilien.at oder unter der Nummer +43 (0) 660 430 2996
Vereinbaren Sie noch heute einen unverbindlichen Besichtigungstermin bei Frau Barbara Michalits.
Infrastruktur / Entfernungen
Gesundheit
Arzt <500m
Apotheke <1.750m
Klinik <5.750m
Krankenhaus <5.000m
Kinder & Schulen
Schule <1.500m
Kindergarten <500m
Universität <3.500m
Höhere Schule <9.000m
Nahversorgung
Supermarkt <1.250m
Bäckerei <1.500m
Einkaufszentrum <1.750m
Sonstige
Geldautomat <1.500m
Bank <1.500m
Post <1.250m
Polizei <1.750m
Verkehr
Bus <250m
Straßenbahn <4.250m
U-Bahn <4.750m
Bahnhof <500m
Autobahnanschluss <1.750m
Angaben Entfernung Luftlinie / Quelle: OpenStreetMap
Barrierefrei: JA
Provision: Provision bezahlt der Abgeber.