MEIN ERGEBNIS ANPASSEN

NEU! U6 JÄGERSTRASSE 15 NEUBAU DACHGESCHOSSWOHNUNGEN FÜR ANLEGER UND EIGENNUTZER EIGENTUM 1200 WIEN - Objektnr. 5581909

1200
Ort
621,00 m²
Fläche
32.0
Zimmer

ECKDATEN
FindMyHome.at // Externe Immobilien-ID5581909 // 28284
ImmobilienartEigentum
Anschrift/36-50
1200 Wien
Baujahr2019
Stock6
Geschosse7
Fläche621,00 m²
Terrassen3 (29,00 m²)
Zimmer32.0
Bad1
WC1
Kaufpreis:€ 4.270.000,00
Ratenzahlung:Finanzierungsmöglichkeiten für diese Immobilie anzeigen
Provision: 3% des Kaufpreises zzgl. 20% USt.







BESCHREIBUNG

NEU! U6 JÄGERSTRASSE 15 NEUBAU DACHGESCHOSSWOHNUNGEN FÜR ANLEGER UND EIGENNUTZER EIGENTUM 1200 WIEN

PROJEKT:

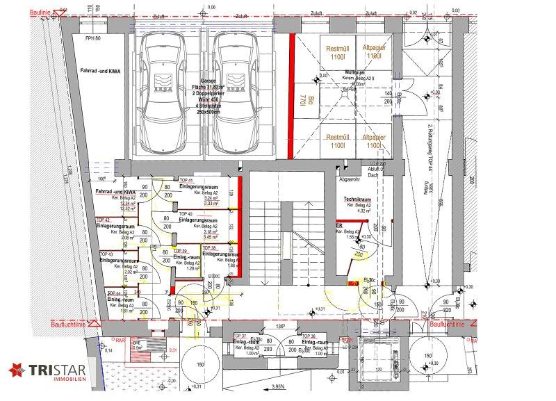
Zum Verkauf gelangen 15 Neubauwohnungen (Baujahr 20192020) sowie 4 PKW-Garagenplätze, welche sich im neu ausgebauten 5. und 6. Liftstock eines repräsentativen Altbau-Eckhauses befinden.

Die Wohnungen DG 37 und DG 48 (siehe Fotos und Grundrisse) sind ab sofort verfügbar, die übrigen 13 Wohnungen sind derzeit befristet vermietet.

Alle Neubauwohnungen verfügen über eine eigene Hauszentralheizung mit individuellem Wärmemengenzähler.

Weiters sind alle Wohnungen mit Einbauküche und Klimaanlage ausgestattet (siehe Fotos).

Die sofort verfügbaren Wohnungen DG 37 und DG 48 werden vor Übergabe neu ausgemalt und die Parkettböden frisch geschliffen.

ÜBERBLICK WOHNUNGEN: 

----------------------------

 

GESAMTFLÄCHE: ca. 621 m² (davon 592 m² WNFL + 29 m² Terrasse)

GESAMTPREIS (Eigennutzer): EUR 4.420.000 | GESAMTPREIS (Anleger):  EUR 4.270.000 (zzgl. 20 % USt.)

----------------------------

1. Dachgeschoss

----------------------------

  • Top 36: WNFL ca. 35,27 m² (2 Zimmer) | vermietet bis 15.07.2030

Kaufpreis Eigennutzer: EUR 265.000 | Kaufpreis Anleger: EUR 239.000 (zzgl. 20% USt.)

----------------------------

  • Top 37: WNFL ca. 37,53 m² (2 Zimmer) | FREI

Kaufpreis Eigennutzer: EUR 279.000 | Kaufpreis Anleger: EUR 250.000 (zzgl. 20% USt.)

----------------------------

  • Top 38: WNFL ca. 36 m² (2 Zimmer Arbeitsraum) | vermietet bis 01.02.2028

Kaufpreis Eigennutzer: EUR 270.000 | Kaufpreis Anleger: EUR 243.000 (zzgl. 20% USt.)

----------------------------

  • Top 39: WNFL ca. 39,94 m² (2 Zimmer) | vermietet bis 01.03.2028

Kaufpreis Eigennutzer: EUR 299.000 | Kaufpreis Anleger: EUR 269.000 (zzgl. 20% USt.)

----------------------------

  • Top 40: WNFL ca. 37 m² (2 Zimmer) | vermietet bis 02.06.2030

Kaufpreis Eigennutzer: EUR 279.000 | Kaufpreis Anleger: EUR 249.000 (zzgl. 20% USt.)

----------------------------

  • Top 41: WNFL ca. 30,63 m² (2 Zimmer) | vermietet bis 15.07.2030

Kaufpreis Eigennutzer: EUR 229.000 | Kaufpreis Anleger: EUR 206.000 (zzgl. 20% USt.)

----------------------------

Top 42: WNFL ca. 30,28 m² (2 Zimmer) | vermietet bis 15.05.2030

Kaufpreis Eigennutzer: EUR 227.000 | Kaufpreis Anleger: EUR 204.000 (zzgl. 20% USt.)

----------------------------

  • Top 43: WNFL ca. 33,63 m² (2 Zimmer) | vermietet bis 01.03.2029

Kaufpreis Eigennutzer: EUR 252.000 | Kaufpreis Anleger: EUR 227.000 (zzgl. 20% USt.)

----------------------------

  • Top 44: WNFL ca. 37,29 m² (2 Zimmer) + ca. 13 m² Terrasse | vermietet bis 01.07.2030

Kaufpreis Eigennutzer: EUR 279.000 | Kaufpreis Anleger: EUR 251.000 (zzgl. 20% USt.)

----------------------------

2. Dachgeschoss

----------------------------

  • Top 45: WNFL ca. 52 m² (3 Zimmer) + ca. 8 m² Terrasse | vermietet bis 15.08.2030

Kaufpreis Eigennutzer: EUR 390.000 | Kaufpreis Anleger: EUR 351.000 (zzgl. 20% USt.)

----------------------------

  • Top 46: WNFL ca. 34,06 m² (2 Zimmer) | vermietet bis 01.08.2030

Kaufpreis Eigennutzer: EUR 255.000 | Kaufpreis Anleger: EUR 229.000 (zzgl. 20% USt.)

----------------------------

  • Top 47: WNFL ca. 43,44 m² (2 Zimmer) | vermietet bis 15.08.2030

Kaufpreis Eigennutzer: EUR 325.000 | Kaufpreis Anleger: EUR 293.000 (zzgl. 20% USt.)

----------------------------

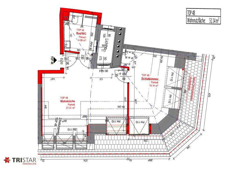
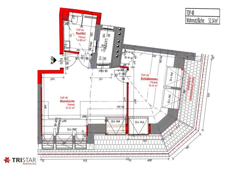
  • Top 48: WNFL ca. 51,14 m² (2 Zimmer) | FREI

Kaufpreis Eigennutzer: EUR 383.000 | Kaufpreis Anleger: EUR 345.000 (zzgl. 20% USt.)

----------------------------

  • Top 49: WNFL ca. 36,26 m² (2 Zimmer) | vermietet bis 01.12.2030

Kaufpreis Eigennutzer: EUR 269.000 | Kaufpreis Anleger: EUR 245.000 (zzgl. 20% USt.)

----------------------------

  • Top 50: WNFL ca. 56,43 m² (3 Zimmer) + ca. 8 m² Terrasse | vermietet bis 01.09.2030

Kaufpreis Eigennutzer: EUR 419.000 | Kaufpreis Anleger: EUR 379.000 (zzgl. 20% USt.)

---------------------------

LAGE & INFRASTRUKTUR:

Die Immobilie befindet sich in einer hervorragend angebundenen Wohnlage im 20. Bezirk (Brigittenau) mit optimaler Infrastruktur und kurzer Distanz zu öffentlichen Verkehrsmitteln, Schulen, Kindergärten, Nahversorgern und zahlreichen Freizeitmöglichkeiten. 

Ein detailliertes Lageexposé mit 59 Seiten steht als Download bereit und wartet auf Ihre Anfrage.

Öffentlicher Verkehr:

  • U6 Jägerstraße: ca. 67 Min.

  • Straßenbahn 31 & 33: ca. 35 Min.

  • Bus 5A & 5B: ca. 36 Min.

  • S-Bahn Traisengasse (S1S4, S7): ca. 1213 Min.

Schulen & Kinderbetreuung:

  • Kindergarten ca. 23 Min.

  • Volksschule ca. 810 Min.

  • Mittelschule ca. 79 Min.

  • FH Technikum Wien ca. 89 Min.

Nahversorgung:

  • Supermarkt ca. 34 Min.

  • Bäckerei ca. 12 Min.

  • Drogerie ca. 1012 Min.

  • Apotheke ca. 45 Min.

  • Cafés / Restaurants ab ca. 24 Min.

PKW GARAGENPLÄTZE:

Das Haus verfügt über 4 PKW-Garagenplätze, die zum Preis von EUR 49.000 pro Stellplatz erworben werden können.

VERMITTLUNGSPROVISION / DOPPELMAKLERTÄTIGKEIT:

Der Ordnung halber wird darauf hingewiesen, dass die Vermittlungsprovision 3 % des Kaufpreises zuzüglich 20 % USt. (insgesamt 3,6 %) beträgt und mit Zustandekommen des vermittelten Rechtsgeschäfts (Annahme des Kaufanbots ohne aufschiebende Bedingungen durch den Verkäufer) fällig wird. Der Makler ist als Doppelmakler tätig.

NEU! U6 JÄGERSTRASSE 15 NEUBAU DACHGESCHOSSWOHNUNGEN FÜR ANLEGER UND EIGENNUTZER EIGENTUM 1200 WIEN

Wir weisen darauf hin, dass zwischen dem Vermittler und dem zu vermittelnden Dritten ein familiäres oder wirtschaftliches Naheverhältnis besteht.

Der Vermittler ist als Doppelmakler tätig.

Klimaanlage: JA
Barrierefrei: JA
Provision: 3% des Kaufpreises zzgl. 20% USt.


Alle Details anzeigen

KONTAKT






 

Lasse dich kostenlos vom Anbieter dieser Immobilie zurückrufen.







 


 
TRISTAR Immobilien
TRISTAR Immobilien
Telefonnummer anzeigen Handy Bearbeiter: +436769017374
 
Bitte dem Makler die FindMyHome.at - ID bekanntgeben: 5581909

Bewertungen dieses Anbieters
Qualitätsmakler
Qualitätsmakler:
2017, 2019, 2020, 2021,
Netiquette
Freundlichkeit

BEWERTUNGEN DIESES ANBIETERS

 
Qualit�tsmakler
Qualitätsmakler
2017, 2019, 2020, 2021
Freundlichkeit
BESONDERS
FREUNDLICH
Netiquette
FINDMYHOME
NETIQUETTE
Auch du kannst bewerten! 7 Tage nach deiner Anfrage erhältst du dafür von uns ein Bewertungsmail.
Alle Infos zu unseren Auszeichnungen und dem FINDMYHOME.AT Qualitätsprogramm findest du hier: Übersicht anzeigen

FINANZIERUNG
?>

Du willst wissen, wie viel dein Umzug kosten wird?

Mach gleich den kostenlosen Preisvergleich und schau, welche seriösen Anbieter in deiner Region günstig deinen Umzug organisieren


ZUM UMZUGS-VERGLEICH
-->

MYHOME BLOG
SuchAgentin auf FindMyHome.at
Unterschiedlichen Rechtsthemen, köstliche Rezepte, neueste Design-Highlights, sowie aktuelle Technik-Tools für Ihr Eigenheim.


FINDMYHOME.AT SUCHAGENTIN
SuchAgentin auf FindMyHome.at
Hallo, soll ich dir ähnliche Immobilien kostenfrei per E-Mail schicken?


Durch die Nutzung unserer Seite erklären Sie sich mit der Verwendung von Cookies zur Verbesserung Ihres Online-Erlebnisses einverstanden. Detaillierte Informationen zu diesem und weiteren Themen erhalten Sie in unserer Datenschutzerklärung.