Charmante 2-Zimmer-Wohnung im 1. Stock ruhig gelegen & nur 1 Gehminute zur U3 Ottakringer Straße
Willkommen in Ihrem neuen Zuhause einer gemütlichen Stadtwohnung in der Kuefsteingasse, die durch ihre ruhige Innenhoflage, die klassische Raumaufteilung und die unsagbar praktische Verkehrsanbindung überzeugt. Ideal für Singles, Paare, Studierende oder als clevere City-Investition.
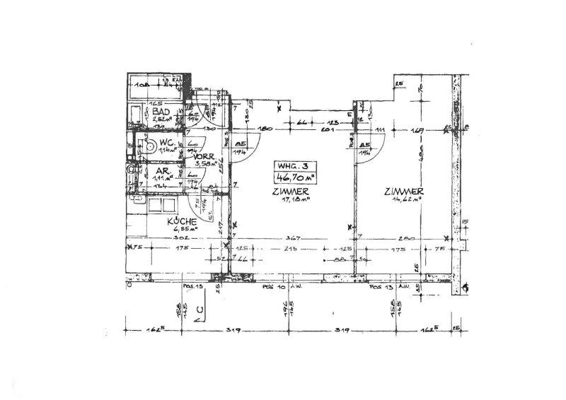
Diese gut geschnittene Wohnung im 1. Stock bietet alles, was man für entspanntes Stadtleben braucht:
-
Vorzimmer mit Platz für Garderobe
-
Getrennte Toilette
-
Badezimmer mit Dusche und Anschluss für eine Waschmaschine
-
Praktische, separate Küche
-
Freundliches Wohnzimmer mit Blick in den Innenhof
-
Ruhiges Schlafzimmer, ebenfalls hofseitig
-
Alle Fenster in den Innenhof hell, angenehm ruhig und wunderbar abgeschirmt vom Stadtverkehr
-
Gas-Etagenheizung
-
Zustand: gut, aber gebraucht sofort bewohnbar oder ideal für eigene Gestaltungsideen
Zusätzlich steht den Bewohnern im Haus eine Waschküche zur Verfügung.
Lage besser gehts kaum
Die Wohnung befindet sich in der Kuefsteingasse, nur 1 Gehminute von der U3-Station Ottakringer Straße entfernt. Eine Lage, die urbanen Komfort und schnelle Wege vereint.
Öffentliche Verkehrsmittel in der Nähe:
-
U3 Ottakringer Straße (1 Minute entfernt)
-
Straßenbahnlinie 10 und 49
-
Schnelle Anbindung an den Gürtel, Westbahnhof, Innenstadt und Universität Wien
Einkaufsmöglichkeiten alles ums Eck
In wenigen Minuten zu Fuß erreichbar:
Warum diese Wohnung
Ruhige Innenhoflage
Klassischer Grundriss perfekt nutzbar
1 Minute zur U3
Zahlreiche Öffis & Supermärkte vor der Tür
Gute Substanz sofort beziehbar
Ideale Starterwohnung oder Investment
Hinweis gemäß Energieausweisvorlagegesetz: Ein Energieausweis wurde vom Eigentümer bzw. Verkäufer, nach unserer Aufklärung über die generell geltende Vorlagepflicht, sowie Aufforderung zu seiner Erstellung noch nicht vorgelegt. Daher gilt zumindest eine dem Alter und der Art des Gebäudes entsprechende Gesamtenergieeffizienz als vereinbart. Wir übernehmen keinerlei Gewähr oder Haftung für die tatsächliche Energieeffizienz der angebotenen Immobilie.
Wir weisen darauf hin, dass zwischen dem Vermittler und dem zu vermittelnden Dritten ein familiäres oder wirtschaftliches Naheverhältnis besteht.
Der Vermittler ist als Doppelmakler tätig.
Infrastruktur / Entfernungen
Gesundheit
Arzt <250m
Apotheke <250m
Klinik <1.250m
Krankenhaus <1.500m
Kinder & Schulen
Schule <250m
Kindergarten <250m
Universität <750m
Höhere Schule <1.000m
Nahversorgung
Supermarkt <250m
Bäckerei <250m
Einkaufszentrum <750m
Sonstige
Geldautomat <250m
Bank <250m
Post <250m
Polizei <750m
Verkehr
Bus <250m
U-Bahn <250m
Straßenbahn <250m
Bahnhof <250m
Autobahnanschluss <5.000m
Angaben Entfernung Luftlinie / Quelle: OpenStreetMap
Provision: 6.660,00 ? inkl. 20% USt.