MEIN ERGEBNIS ANPASSEN

Durchdachte Grundrisse in einer der schönsten Gegenden von Wien - Wohnen am Schafberg - Objektnr. 5580952


ökologisch beheizt
1170
Ort
66,32 m²
Fläche
2.0
Zimmer
WEITERE MEDIEN

ECKDATEN
FindMyHome.at // Externe Immobilien-ID5580952 // 54617
ImmobilienartAnlage-Vorsorgewohnung - Eigentum
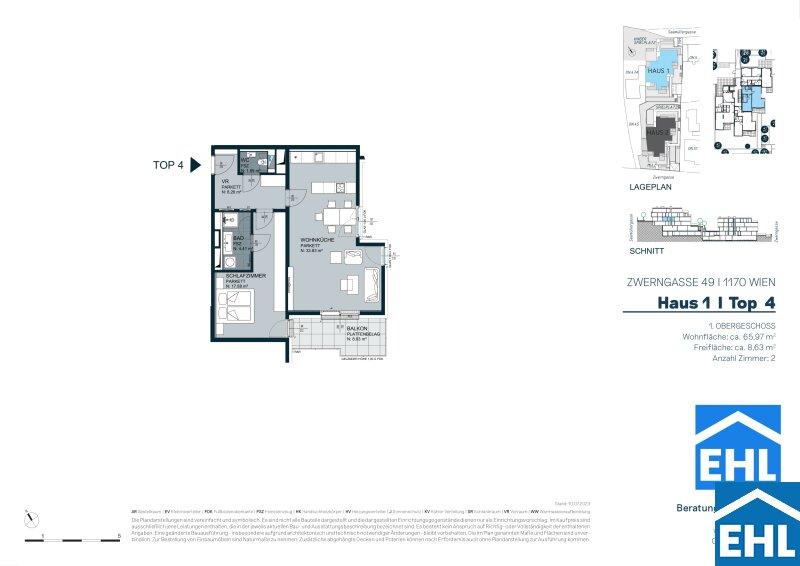
AnschriftZwerngasse/4
1170 Wien
Baujahr2022
Befeuerung
Luftwärmepumpe
Stock1
Geschosse4
Fläche66,32 m²
Zimmer2.0
Bad1
WC1
Kaufpreis:€ 588.760,00
Ratenzahlung:Finanzierungsmöglichkeiten für diese Immobilie anzeigen
Provision: Provision bezahlt der Abgeber.







BESCHREIBUNG

Durchdachte Grundrisse in einer der schönsten Gegenden von Wien - Wohnen am Schafberg

Wohnen am Schafberg - Zwerngasse 49

In Dornbach im beliebten 17. Wiener Gemeindebezirk werden auf nahezu 3.000m² zwei viergeschossige Wohngebäude mit 22 Wohnungen auf höchstem Niveau realisiert. Die exklusive Lage mit Blick auf die Weinberge sowie die hervorragende Ausstattung - welche besonderen Wert auf Exklusivität, zukunftsorientierte Technik und hohe Lebensqualität legt - machen dieses Projekt zum idealen Wohnort. Die Wohnhausanlage besticht durch die Ausrichtung nach Süden, ihre unmittelbare Nähe zu den Wiener Weinbergen und dem Schafberg sowie der hainartigen Nachbarschaft.

 

Schlau investieren

Das architektonisch anspruchsvolle Konzept verspricht helle, offene Grundrisse sowie großzügige Freiflächen in Form von Balkonen, Terrassen und Gärten. Die Wohnungsgrößen variieren zwischen 62m² bis 144m² und profitieren alle von großzügigen Glasflächen, welche eine wunderschöne Wohnatmosphäre bieten. Das Projekt wird mit auf dem Grundstück befindlichen allgemeinen Grünflächen für die Benutzung der Eigentümer abgerundet.

Mit Zugängen von der Zwerngasse 49 und Seemüllergasse 7 sind beide Bauteile komfortabel barrierefrei erreichbar und durch die Tiefgarage in den Untergeschossen verbunden. Über die Garageneinfahrt in der Zwerngasse gelangt man zu den 30 Stellplätzen, wovon 3 behindertengerecht konzipiert sind. Je Haus befinden sich in den Untergeschossen bzw. im Erdgeschoss neben den Haustechnikräumen und Einlagerungsräumen auch die Fahrradabstellräume und Kinderwagenabstellräume. Weiters erhalten beide Wohngebäude einen Stiegenabgang in die Untergeschosse oder sind bequem über die hochwertigen Personenaufzüge erreichbar. Die beiden Müllräume befinden sich im Freibereich direkt neben den Zugängen.

 

Das Projekt 

  • 22 Wohnungen von 61 bis 142 m²
  • 2 4 Zimmer
  • 30 Tiefgaragenplätze
  • 6 Motorradstellplätze
  • Harmonische Eigengärten, sonnige Balkone und Terrassen mit Weinbergblick
  • Kinderwagen- & Fahrradabstellplätze
  • Zwei Kinderspielplätze

 

Die Ausstattung

  • Kühlung & Fußbodenheizung: Luft-Wasser-Wärmepumpe
  • Eichendielenparkett
  • moderne und elegante Bäder
  • Smart Home Lösungen
  • Gegensprechanlage
  • Postempfangsboxen
  • Vorrichtung für Alarmanlagen
  • Optionale E-Ladestationen
  • 3-fach Fensterverglasung und außen liegender Sonnenschutz
  • Haus 1: HWB: 34 kWh/m²a | fGEE: 0,73
  • Haus 2: HWB: 37 kWh/m²a | fGEE: 0,78

Betriebskostenschätzung

Wohnung ca. € 3,97 brutto/Nutzwert (inkl. Liftkosten, Heizung, Warmwasser, Kaltwasser, Rücklage und Ust.)
Garage ca. € 29,50 brutto/Stellplatz (inkl. Rücklage und Ust.)

Diese monatlichen Kosten wurden von der Hausverwaltung berechnet und dienen als Prognose.

 

Kaufpreise der Vorsorgewohnungen

von EUR 539.830,- bis EUR 907.780,- netto zzgl. 20% USt.

Zu erwartender Mietertrag

von ca. EUR 16,50 bis EUR 19,50 netto/m²

Provisionsfrei für den Käufer
Fertigstellung: bereits erfolgt

 

Bei diesem Angebot handelt es sich um eine Vorsorgewohnung, die zu Vermietungszwecken erworben wird. Der angegebene Kaufpreis versteht sich daher zzgl. 20% USt. Diese Daten sind vorbehaltlich möglicher Änderungen.

Wir weisen darauf hin, dass zwischen dem Vermittler und dem zu vermittelnden Dritten ein familiäres oder wirtschaftliches Naheverhältnis besteht.

Der Vermittler ist als Doppelmakler tätig.


Infrastruktur / Entfernungen

Gesundheit
Arzt <250m
Apotheke <500m
Klinik <1.500m
Krankenhaus <750m

Kinder & Schulen
Schule <1.250m
Kindergarten <500m
Universität <1.750m
Höhere Schule <2.500m

Nahversorgung
Supermarkt <500m
Bäckerei <500m
Einkaufszentrum <1.500m

Sonstige
Geldautomat <1.500m
Bank <1.500m
Post <500m
Polizei <1.750m

Verkehr
Bus <250m
Straßenbahn <250m
U-Bahn <1.750m
Bahnhof <1.750m
Autobahnanschluss <5.000m

Angaben Entfernung Luftlinie / Quelle: OpenStreetMap

Provision: Provision bezahlt der Abgeber.


Alle Details anzeigen

KONTAKT






 

Lasse dich kostenlos vom Anbieter dieser Immobilie zurückrufen.







 


 
EHL Wohnen GmbH
Andrea PÖCHHACKER; MSc
Telefonnummer anzeigen Telefon Allgemein: +4315127690411
Handy Bearbeiter: +436648373481
 
Bitte dem Makler die FindMyHome.at - ID bekanntgeben: 5580952

Bewertungen dieses Anbieters
Qualitätsmakler
Qualitätsmakler:
Netiquette
Freundlichkeit
82 %

BEWERTUNGEN DIESES ANBIETERS

 
Qualitätsmakler
UNSERE HALL OF FAME DER BESTEN ANBIETER
Qualit�tsmakler
Qualitätsmakler
2012, 2013, 2014, 2015, 2016, 2017, 2018, 2019, 2020, 2021, 22/23, 2024, 2025
Weiterempfehlung
WIRD GERNE

Freundlichkeit
BESONDERS
FREUNDLICH
Netiquette
FINDMYHOME
NETIQUETTE
Auch du kannst bewerten! 7 Tage nach deiner Anfrage erhältst du dafür von uns ein Bewertungsmail.
Alle Infos zu unseren Auszeichnungen und dem FINDMYHOME.AT Qualitätsprogramm findest du hier: Übersicht anzeigen

FINANZIERUNG
?>

Du willst wissen, wie viel dein Umzug kosten wird?

Mach gleich den kostenlosen Preisvergleich und schau, welche seriösen Anbieter in deiner Region günstig deinen Umzug organisieren


ZUM UMZUGS-VERGLEICH
-->

MYHOME BLOG
SuchAgentin auf FindMyHome.at
Unterschiedlichen Rechtsthemen, köstliche Rezepte, neueste Design-Highlights, sowie aktuelle Technik-Tools für Ihr Eigenheim.


FINDMYHOME.AT SUCHAGENTIN
SuchAgentin auf FindMyHome.at
Hallo, soll ich dir ähnliche Immobilien kostenfrei per E-Mail schicken?


ÄHNLICHE IMMOBILIEN
Aehnliche Immobilie - Vorschaubild 1

Nachhaltiges Wohnen beim Yppenplatz - Großzügige Dachgeschos... - Objektnr. 5429306

74,78 m² - 3.0 Zimmer
635900 €
PLZ: 1170

Mehr anzeigen

Aehnliche Immobilie - Vorschaubild 2

Wohnen am Schafberg - Schöner Leben im Einklang mit der Natu... - Objektnr. 5580949

69,76 m² - 2.0 Zimmer
630610 €
PLZ: 1170

Mehr anzeigen

Aehnliche Immobilie - Vorschaubild 3

Nachhaltiges Wohnen beim Yppenplatz - Hochwertige Eigentumsw... - Objektnr. 5429285

65,32 m² - 3.0 Zimmer
485900 €
PLZ: 1170

Mehr anzeigen

Durch die Nutzung unserer Seite erklären Sie sich mit der Verwendung von Cookies zur Verbesserung Ihres Online-Erlebnisses einverstanden. Detaillierte Informationen zu diesem und weiteren Themen erhalten Sie in unserer Datenschutzerklärung.