MEIN ERGEBNIS ANPASSEN

Hopfengasse: GARTENWOHNUNG mit 41,48m² Außenfläche! - Objektnr. 5580556

  • Garten und Terrasse
  • Garten und Terrasse
  • Vorraum mit viel Platz für Garderobe
  • Bad
  • WC
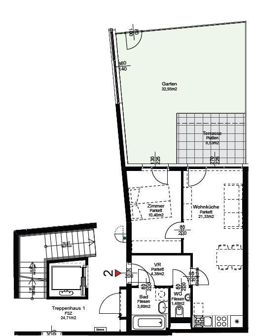
  • GRUNDRISS TOP 1-02
  • Lage im Haus
  • Lageplan mit Öffis
  • Außenansicht
  • Außenansicht
  • Fahrradraum
  • Garage
  • Garage
  • Garage
  • Kellerabteile
  • Kellerabteile
  • Waschküche
  • Außenansicht
  • IMMY Preisträger
1210
Ort
€ 824,29
Gesamtkosten
41,39 m²
Fläche
2.0
Zimmer

ECKDATEN
FindMyHome.at // Externe Immobilien-ID5580556 // 3610/8203
ImmobilienartWohnung - Miete
Anschrift1210 Wien
Baujahr2015
NähePrager Straße, Trillerpark, S-Bahn Jedlersdorf
HeizungZentralheizung mit Gas
StockEG
Liftja
KellerJa
Beziehbar ab01.01.2026
Mietdauer5.0
Fläche41,39 m²
Gartenfläche32,95 m²
Terrassen1 (8,53 m²)
Zimmer2.0
Bad1
WC1
Kaution:€ 2.500,00
sonstige Kosten (inkl. MwSt):€ 119,14
Mehrwertsteuer:€ 74,94
Monatliche Gesamtkosten:€ 824,29




BESCHREIBUNG

Hopfengasse: GARTENWOHNUNG mit 41,48m² Außenfläche!

Hopfengasse beim FAC-Platz! 2-Zimmer Neubauwohnung (41,39m²)!
Terrasse (8,53m²)!
Garten (32,95m²)!
Top-Ausstattung! Optimale Infrastruktur!!

In weniger als 5min erreichen Sie fußläufig den Bahnhof Jedlersdorf, von wo die S-Bahn Sie in nur 17min gemütlich nach WIEN MITTE bringt.
Lassen Sie uns gemeinsam Ihr neues Zuhause finden!

RAUMAUFTEILUNG IN STICHWORTEN
? Vorraum
? Wohnzimmer mit offener Küche
? Schlafzimmer
? Bad mit Badewanne mit Duschmöglichkeit, Waschtisch, Waschmaschinenanschluss und Handtuchheizkörper
? WC mit Waschbecken
? Garten + Terrasse
? Kellerabteil

HIGHLIGHTS AUF EINEN BLICK
? Garten + Terrasse
? Gaszentralheizung
? außenliegende Beschattung
? Sicherheitswohnungseingangstüren
? hochwertiger Parkettboden (Eiche)
? Markenküche mit hochwertigen Elektrogeräten (E-Herd, Cerankochfeld, Geschirrspüler, Kühl-Gefrier-Kombination, Dunstabzug und Spüle)
? hochwertige Ausstattung auch im Badezimmer / WC (Laufen, Grohe), Badwannen mit Glasduschwänden
? sehr gute Raumaufteilung
? effiziente Grundrisse
? zentrale Schließanlage
? Fahrrad- und Kinderwagenabstellraum
? großzügige Aufzüge
? sehr gute Energiekennzahlen
? optimale Infrastruktur
? GARAGENPLÄTZE DIREKT IM HAUS

UMGEBUNG UND INFRASTRUKTUR
? diverse Supermärkte in Gehnähe (Hofer, Billa, Interspar etc.)
? Trillerpark & Shopping Center Nord mit unzähligen Einkaufsmöglichkeiten zu Fuß erreichbar
? Freizeiteinrichtungen: Kino, Fitnessstudio, Fußball, Tennis etc.
? Naherholungsgebiet Donauinsel
? gute Erreichbarkeit in die Innenstadt

SEHR GUTE ÖFFENTLICHE VERKEHRSANBINDUNG
? S-Bahn: Jedlersdorf (<5min)
? WIEN MITTE in 17min (S3)
? Autobuslinie: 36A, 36B
? Straßenbahnlinie: 26
? Regionalbus: 850
? U-Bahn: U6 Floridsdorf (ca. 12min mit Linie 26)

ERSTZAHLUNG
? 3 BMM Kaution
? erste Monatsmiete im Voraus

WEITERE MONATLICHE KOSTEN
? Wasser, Heizung... werden nach tatsächlichem Verbrauch abgerechnet
? Strom - wird direkt nach Verbrauch abgerechnet (Wien Energie bzw. Netznutzung Wiener Netze)
? ggf. TV/Internet, Haushaltsversicherung, o.Ä.

VERTRAGSBEDINGUNGEN
? Befristung: 5 Jahre
? Kündigungsverzicht: 12 Monate (mieterseitig)
? Kündigungsfrist: 3 Monate
? gefordertes Mindestnettoeinkommen (Haushalt): EUR 2100,-

BENÖTIGTE UNTERLAGEN FÜR ANMIETUNG
? Mietanbot (Vorlage erhalten Sie von uns)
? Selbstauskunft (Vorlage erhalten Sie von uns)
? Kopie Reisepass oder Personalausweis
? Kopie Bankomatkarte (nur IBAN relevant)
? Einkommensnachweis (letzte 3 Lohnzettel, Einkommenssteuerbescheid oder bei Berufswechsel unterzeichneter Dienstvertrag)
? Meldezettel
? Haushaltsrechnung (Vorlage erhalten Sie von uns)

IHRE MAKLERIN
Frau Kerstin Fried
Email: kerstin.fried@hubner-immobilien.com

Falls Sie Fragen haben oder einen Besichtigungstermin vereinbaren möchten, stehen wir Ihnen selbstverständlich sehr gerne zur Verfügung. Wir freuen uns auf Ihre Kontaktaufnahme!Angaben gemäß gesetzlichem Erfordernis:
Miete €641,05 zzgl 10% USt.Betriebskosten €108,31 zzgl 10% USt.Umsatzsteuer €74,94------------------------------------------------------------------Gesamtbetrag €824,3------------------------------------------------------------------Heizwärmebedarf:27.43 kWh/(m²a)Klasse Heizwärmebedarf:BFaktor Gesamtenergieeffizienz:0.79Klasse Faktor Gesamtenergieeffizienz:AGartennutzung: JA


Alle Details anzeigen

KONTAKT






 

Lasse dich kostenlos vom Anbieter dieser Immobilie zurückrufen.







 


 
Hubner Immobilien GmbH
Kerstin Fried
Telefonnummer anzeigen Telefon Allgemein: +4315121956
Handy Bearbeiter: +4366488730881
 
Bitte dem Makler die FindMyHome.at - ID bekanntgeben: 5580556

Bewertungen dieses Anbieters
Qualitätsmakler
Qualitätsmakler:
2014, 2015, 2016, 2018, 2019, 2020, 2021 , 2025,
Netiquette
Freundlichkeit
84 %

BEWERTUNGEN DIESES ANBIETERS

 
Qualit�tsmakler
Qualitätsmakler
2014, 2015, 2016, 2018, 2019, 2020, 2021 2025
Weiterempfehlung
WIRD GERNE

Freundlichkeit
BESONDERS
FREUNDLICH
Netiquette
FINDMYHOME
NETIQUETTE
Auch du kannst bewerten! 7 Tage nach deiner Anfrage erhältst du dafür von uns ein Bewertungsmail.
Alle Infos zu unseren Auszeichnungen und dem FINDMYHOME.AT Qualitätsprogramm findest du hier: Übersicht anzeigen


Du willst wissen, wie viel dein Umzug kosten wird?

Mach gleich den kostenlosen Preisvergleich und schau, welche seriösen Anbieter in deiner Region günstig deinen Umzug organisieren


ZUM UMZUGS-VERGLEICH
-->

MYHOME BLOG
SuchAgentin auf FindMyHome.at
Unterschiedlichen Rechtsthemen, köstliche Rezepte, neueste Design-Highlights, sowie aktuelle Technik-Tools für Ihr Eigenheim.


FINDMYHOME.AT SUCHAGENTIN
SuchAgentin auf FindMyHome.at
Hallo, soll ich dir ähnliche Immobilien kostenfrei per E-Mail schicken?


ÄHNLICHE IMMOBILIEN
Aehnliche Immobilie - Vorschaubild 1

2- Zimmer Balkonwohnung in der Schillgasse 16 - Objektnr. 5575660

42,98 m² - 2 Zimmer
870.01 €
PLZ: 1210

Mehr anzeigen

Aehnliche Immobilie - Vorschaubild 2

| AB JÄNNER | 2,5 ZIMMER | SCHLAFNISCHE | NAHE THERESA-TAUSC... - Objektnr. 5554821

48,87 m² - 2.5 Zimmer
938.62 €
PLZ: 1210

Mehr anzeigen

Aehnliche Immobilie - Vorschaubild 3

| AB FEBRUAR | 2 ZIMMER | BALKON | SÜDSEITIG | NAHE THERESA-... - Objektnr. 5567680

45,04 m² - 2.0 Zimmer
888.43 €
PLZ: 1210

Mehr anzeigen

Durch die Nutzung unserer Seite erklären Sie sich mit der Verwendung von Cookies zur Verbesserung Ihres Online-Erlebnisses einverstanden. Detaillierte Informationen zu diesem und weiteren Themen erhalten Sie in unserer Datenschutzerklärung.