MEIN ERGEBNIS ANPASSEN

Herzlich willkommen zum Projekt WILDGARTEN - Objektnr. 5580357


ökologisch beheizt
1120
Ort
123,62 m²
Fläche
6.0
Zimmer
WEITERE MEDIEN

ECKDATEN
FindMyHome.at // Externe Immobilien-ID5580357 // 69439
ImmobilienartAnlage-Vorsorgewohnung - Eigentum
AnschriftLore-Kutschera-Weg/1+2
1120 Wien,Meidling
Baujahr2023
Befeuerung
Fernwärme
Geschosse21
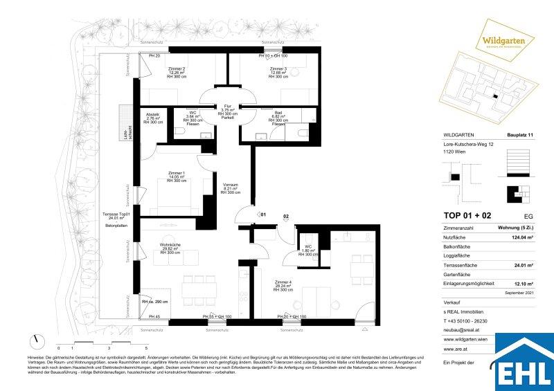
Fläche123,62 m²
Terrassen1 (26,00 m²)
Zimmer6.0
Bad1
WC2
Kaufpreis:€ 472.100,00
Ratenzahlung:Finanzierungsmöglichkeiten für diese Immobilie anzeigen
Provision: Provision bezahlt der Abgeber.







BESCHREIBUNG

Herzlich willkommen zum Projekt WILDGARTEN

Herzlich willkommen zum Projekt WILDGARTEN 

einer einzigartigen Möglichkeit, nachhaltig in die Zukunft zu investieren. Dieses außergewöhnliche Immobilienprojekt wurde mit einem internationalen Städtebaupreis ausgezeichnet und bietet eine exklusive Kombination aus Veranlagung, perfekten Wohnungsgrößen und -schnitten, Renditenstärke und idyllischer Ruhelage.
Im Projekt WILDGARTEN finden Sie Wohnungen, die perfekt auf die Bedürfnisse von Mietern zugeschnitten sind. Von kompakten Einheiten für Singles und Paare bis hin zu großzügig geschnittenen Familienwohnungen bietet dieses Projekt eine breite Auswahl an Wohnungsgrößen. Die durchdachten Grundrisse und hochwertigen Materialien schaffen ein Ambiente, in dem Sie sich rundum wohlfühlen werden.


Als Investor haben Sie hier die Möglichkeit, von einer renditestarken Anlage zu profitieren. Das Projekt WILDGARTEN wurde mit Blick auf langfristige Wertsteigerung und Nachhaltigkeit entwickelt. Der internationale Städtebaupreis zeugt von der außergewöhnlichen Qualität dieses Projekts und macht es zu einer begehrten Adresse für Mieter und Käufer gleichermaßen.
Das Highlight des Projekts WILDGARTEN ist zweifellos der einladende Gemeinschaftsgarten. Hier finden Bewohner einen Ort der Entspannung und des sozialen Miteinanders. Eine gepflegte Grünanlage lädt zum Verweilen und Genießen ein, während Kinder sich auf dem Spielplatz austoben können. Zudem profitieren die Bewohner von einer perfekten Nahversorgung mit Geschäften, Supermärkten und Restaurants in unmittelbarer Nähe.

 

Neu und nachhaltig 

Nachhaltigkeit ist ein zentraler Wert des Projekts WILDGARTEN. Moderne Energiesparmaßnahmen, ressourcenschonende Bauweise und umweltfreundliche Technologien sind hier selbstverständlich. Investieren Sie in die Zukunft von morgen und tragen Sie dazu bei, dass kommende Generationen von einer lebenswerten Umgebung profitieren können.

Persönliche Beratung und Besichtigung: Unser erfahrenes Team steht Ihnen für eine persönliche Beratung gerne zur Verfügung. Wir beantworten all Ihre Fragen und zeigen Ihnen die Vorzüge des Projekts WILDGARTEN in einer individuellen Besichtigung vor Ort.

Nutzen Sie diese einzigartige Gelegenheit, in eine nachhaltige Zukunft zu investieren und sichern Sie sich jetzt Ihren Platz im Projekt WILDGARTEN - einem preisgekrönten Juwel der Stadtentwicklung

Ein Projekt der ARE Development.

 

Das Projekt 

Bauplätze 11 & 20 -  Die Fakten

  • 7 Gebäude mit 2-4 Etagen, 2 Gebäude mit je 8 Etagen
  • gesamt 104 Wohnungen +  1 Geschäftslokal (33 am Bauplatz 11 und 71 am Bauplatz 20)
  • Breiter Wohnungsmix von 2- bis 4-Zimmer und von 48 m² bis 95 m² Wohnfläche
  • Obsthain, Garten und Wege
  • KFZ-Stellplätze können angemietet werden
  • Fahrrad & Kinderwagenabstellräume sowie Lagerräume
  • Gärten und Dachterrassen mit Blick über Wien zur gemeinsamen Nutzung
  • Energieausweis gültig bis 03.10.2031
    • HWB ab 23,72 kWh/m²a, Klasse B
    • fGEE ab 0,664, Klasse A+

 

Die Ausstattung

  • Fernwärme, FußbodenheizungJede Wohnung mit privater Freifläche wie Garten, Terrasse, Balkon,
  • Eichen Parkettboden in den Wohnräumen
  • Feinsteinzeug in den Nassräumen
  • Dreifach-Isolierverglaste Fenster
  • außenliegender Sonnenschutz

Die Wohnung Lore-Kutschera-Weg 12/1 wird belagsfertig übergeben!

Kaufpreise der Vorsorgewohnungen

von EUR 279.000,- bis EUR 549.000,- netto zzgl. 20% USt.

Zu erwartender Mietertrag

von ca. EUR 12,50 bis EUR 13,75 netto/m²

Provisionsfrei für den Käufer!
Fertigstellung: bereits erfolgt

 

Bei diesem Angebot handelt es sich um eine Vorsorgewohnung, die zu Vermietungszwecken erworben wird. Der angegebene Kaufpreis versteht sich daher zzgl. 20% USt. Diese Daten sind vorbehaltlich möglicher Änderungen.

 

 

Hier finden Sie noch mehr Einblick  zum Projekt der ARE: https://www.wildgarten.wien/der-wildgarten/ 

Gleich direkt zur Homepage Folgen Sie doch gleich diesem Link https://www.wildgarten.wien/.

Wir weisen darauf hin, dass zwischen dem Vermittler und dem zu vermittelnden Dritten ein familiäres oder wirtschaftliches Naheverhältnis besteht.

Der Vermittler ist als Doppelmakler tätig.


Infrastruktur / Entfernungen

Gesundheit
Arzt <1.250m
Apotheke <1.000m
Klinik <1.500m
Krankenhaus <1.000m

Kinder & Schulen
Schule <750m
Kindergarten <250m
Universität <3.750m
Höhere Schule <3.750m

Nahversorgung
Supermarkt <500m
Bäckerei <500m
Einkaufszentrum <1.750m

Sonstige
Geldautomat <1.250m
Bank <1.500m
Post <1.500m
Polizei <1.750m

Verkehr
Bus <250m
U-Bahn <1.750m
Straßenbahn <1.500m
Bahnhof <1.500m
Autobahnanschluss <1.750m

Angaben Entfernung Luftlinie / Quelle: OpenStreetMap

Provision: Provision bezahlt der Abgeber.


Alle Details anzeigen

KONTAKT






 

Lasse dich kostenlos vom Anbieter dieser Immobilie zurückrufen.







 


 
EHL Wohnen GmbH
Andrea PÖCHHACKER; MSc
Telefonnummer anzeigen Telefon Allgemein: +4315127690411
Handy Bearbeiter: +436648373481
 
Bitte dem Makler die FindMyHome.at - ID bekanntgeben: 5580357

Bewertungen dieses Anbieters
Qualitätsmakler
Qualitätsmakler:
Netiquette
Freundlichkeit
82 %

BEWERTUNGEN DIESES ANBIETERS

 
Qualitätsmakler
UNSERE HALL OF FAME DER BESTEN ANBIETER
Qualit�tsmakler
Qualitätsmakler
2012, 2013, 2014, 2015, 2016, 2017, 2018, 2019, 2020, 2021, 22/23, 2024, 2025
Weiterempfehlung
WIRD GERNE

Freundlichkeit
BESONDERS
FREUNDLICH
Netiquette
FINDMYHOME
NETIQUETTE
Auch du kannst bewerten! 7 Tage nach deiner Anfrage erhältst du dafür von uns ein Bewertungsmail.
Alle Infos zu unseren Auszeichnungen und dem FINDMYHOME.AT Qualitätsprogramm findest du hier: Übersicht anzeigen

FINANZIERUNG
?>

Du willst wissen, wie viel dein Umzug kosten wird?

Mach gleich den kostenlosen Preisvergleich und schau, welche seriösen Anbieter in deiner Region günstig deinen Umzug organisieren


ZUM UMZUGS-VERGLEICH
-->

MYHOME BLOG
SuchAgentin auf FindMyHome.at
Unterschiedlichen Rechtsthemen, köstliche Rezepte, neueste Design-Highlights, sowie aktuelle Technik-Tools für Ihr Eigenheim.


FINDMYHOME.AT SUCHAGENTIN
SuchAgentin auf FindMyHome.at
Hallo, soll ich dir ähnliche Immobilien kostenfrei per E-Mail schicken?


Durch die Nutzung unserer Seite erklären Sie sich mit der Verwendung von Cookies zur Verbesserung Ihres Online-Erlebnisses einverstanden. Detaillierte Informationen zu diesem und weiteren Themen erhalten Sie in unserer Datenschutzerklärung.