MEIN ERGEBNIS ANPASSEN

Six in the City: Premium 2-Zimmer Apartment mit Balkon!! BESTLAGE direkt beim Haus des Meeres - Objektnr. 5580269

1060
Ort
€ 1.575,00
Gesamtkosten
58,44 m²
Fläche
2.0
Zimmer

ECKDATEN
FindMyHome.at // Externe Immobilien-ID5580269 // 62544
ImmobilienartWohnung - Miete
AnschriftGumpendorfer Straße
1060 Wien
Baujahr2018
Befeuerung
Stock5
Mietdauer5
Fläche58,44 m²
Zimmer2.0
Bad1
WC1
Kaution:€ 4.725,00
Brutto-Miete:€ 1.575,00
Betriebskosten (inkl. MwSt):€ 147,25
Mehrwertsteuer:€ 143,19
Monatliche Gesamtkosten:€ 1.575,00
Provision: Gemäß Erstauftraggeberprinzip bezahlt der Abgeber die Provision.




BESCHREIBUNG

Six in the City: Premium 2-Zimmer Apartment mit Balkon!! BESTLAGE direkt beim Haus des Meeres

Zur befristeten Vermietung gelangt diese helle, toll aufgeteilte und sehr hochwertig ausgestattete ca. 58 m² große Neubauwohnung mit Balkon im 5. Stock eines jetzt fertiggestellten Neubaus in absoluter Bestlage im 06. Wiener Gemeindebezirk, unmittelbar beim Haus des Meeres gelegen.

 

DIE WOHNUNG IST DERZEIT NOCH VERMIETET UND AB DEZEMBER ODER JÄNNER VERFÜGBAR! 

 

Bauteil Gumpendorferstraße:

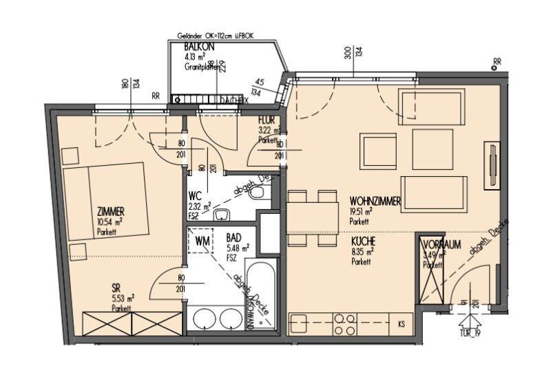
Top 19: Diese wunderschöne 58m² große Neubauwohnung gliedert sich in einen großzügigen Wohnbereich mit Einbauküche, einen Flur mit Ausgang auf den Balkon, ein großzügiges Schlafzimmer mit en suite Badezimmer, ein getrenntes WC und einen Vorraum.


*** ZUR VEREINBARUNG eines BESICHTIGUNGSTERMINS kontaktieren SIE uns bitte unter: +43 676 637 2496 ***
Oder lassen uns eine schriftliche ANFRAGE zukommen! 

 

Raumaufteilung:

**HOFRUHELAGE**, südseitiger Balkon!

  • Vorraum 
  • getrenntes WC 
  • Wohnzimmer mit Einbauküche
  • Schlafzimmer mit Schrankraum und
  • Badezimmer mit Badewanne
  • südseitiger Balkon

 (siehe Plan und Fotos von einem baugleichen Grundriss im selben Haus aus anderen Stockwerken)

 

ES BESTEHT DIE MÖGLICHKEIT MÖBEL ZU ÜBERNEHMEN, SIEHE BILDER 

  • Garderobe IKEA: bestehend aus 1x Schrankelement Platsa + Spiegel, 1x Bank Platsa mit einer Lade und einem Fach sowie zwei Sitzpölstern in dunkelgrau, Hutablage Tjusig und einer zusätzlichen Hakenleiste / Neupreis ca 370-400€. - PREIS:  ca 200-250€
  • Waschbecken-Unterschrank, maßgefertigt von befreundetem Tischler, je 3 Laden. - PREIS: ca. 150-200€
  • 2x  Insektenschutzgitter von Tesa / Neupreis je ca 80€. - PREIS: 80€ für beide (eingebaut bei Fenster im Schlafzimmer und im Wohnzimmer gegenüber von Küche)

Zustand/Ausstattung:
 Alle Wohnungen zeichnen sich durch eine sehr gute Ausstattung aus:

  • hochwertige Badezimmer mit Doppelwaschtisch
  • hochwertiger Parkett
  • Klimaanlagen (Dachgeschoss)
  • elektrische Außenraffstore
  • Türschließer
  • voll ausgestattete Küchen
  • Sicherheitstüren
  • Fußbodenheizung
  • SAT-Anschluss sowie UPC-Verkabelung
  • Glasfaserkabel
  • uvm.

Haus:
Bei dem Gebäude handelt es sich um ein aus zwei Bauteilen bestehendes Wohnhaus. Der eine Bauteil ist völlig ruhig in der Luftbadgasse, der andere Bauteil in der Gumpendorferstraße gelegen und bietet einen tollen Ausblick auf das Haus des Meeres und die umliegenden Gebäude. Beide Bauteile verfügen über einen Lift, der von der Tiefgarage bis zu den Dachgeschossen führt, weshalb das Gebäude komplett barrierefrei zu begehen ist. Die komplett trockenen Einlagerungsräume bieten zusätzlichen Stauraum für die zukünftigen Bewohner des Hauses. Im Kellergeschoss befindet sich eine Waschküche (mit Trockner) sowie ein Fahrrad- und Kinderwagenabstellraum.
 
Verkehrsanbindung:

Die Wohnung ist mit den Buslinien 13A, 57A und N71 sowie mit den Ubahn-Stationen U3 Neubaugasse (5 Gehminuten), U4 Kettenbrückengasse (5 Gehminuten) und U6 Gumpendorferstraße (20 Gehminuten) perfekt an das öffentliche Verkehrsnetz angebunden.
 
Preis:
Die monatliche Gesamtmiete (inkl. Betriebskosten und Ust.) beträgt 1.575,00 €

Das Haus verfügt über eine großzügige Tiefgarage. Die Anmietung eines Stellplatzes kostet monatlich 120,00 € inkl. BK und USt. 

Die Vermietung erfolgt befristet auf 5 Jahre. Die Kaution beträgt 4.725,00 €

Mietdauer: 5 Jahre

Mietbeginn: 01.01.2026

Lage: 

Die Wohnung ist in einer der begehrtesten Lagen Wiens gelegen und besticht mit einer unglaublichen Vielfalt an Unterhaltungs- und Freizeitaktivitäten, welche alle fußläufig zu erreichen sind.

Beginnend vom Apollo Cineplexx Kino, eines der größten Kinos Wiens, über das Haus des Meeres bis hin zur berühmten Shoppingmeile Mariahilferstraße findet sich eine Vielzahl an Freizeit- und Kulturaktivitäten in unmittelbarer Nähe. Auch alle Geschäfte des täglichen Bedarfs sowie Arztpraxen sind hier zu finden. In nur 10 Gehminuten befindet man sich schon in der Wiener Innenstadt und erreicht das Museumsquartier sowie das Kunst- und Naturhistorische Museum, welche Besucher aus der ganzen Welt anlocken. Der bunte Wiener Naschmarkt kann in nur 5 Minuten fußläufig erreicht werden und lässt Sie in ein multikulturelles Spezialitätenparadies eintauchen.

Auch kulinarisch werden Sie hier nichts missen- die Gumpendorferstraße sowie die Mariahilferstraße bieten eine hohe Varietät an Restaurants, Bars und Kneipen, hier findet sich für jeden Geschmack etwas Passendes.

Mehrere Volkschulen, Gymnasien und Kindergärten sind fußläufig erreichbar. Die Technische Universität liegt 10 Gehminuten entfernt. Die Universität Wien ist mit öffentlichen Verkehrsmitteln gut innerhalb von 20 Minuten zu erreichen.
 

 

Das Kleingedruckte:

Wir weisen ausdrücklich auf unser wirtschaftliches Naheverhältnis mit dem Abgeber/ der Abgeberin hin! 

Wir sind in unserer Position als Vermittler als Doppelmakler tätig. 

Für die Erstellung des Mietvertrags in ein Honorar in der Höhe von € 108 an die Hausverwaltung zu entrichten.

Alle hier veröffentlichen Informationen basieren auf den uns von dem Abgeber/ der Abgeberin zur Verfügung gestellten Informationen und wurden nicht selbst erhoben.

Unsere Allgemeinen Geschäftsbedingungen können Sie sowohl in dem Ihnen zugesandten Expose einsehen als auch auf unserer Homepage. Wir weisen ausdrücklich darauf hin, dass diese AGBs Vertragsinhalt werden.

Der Schutz von personenbezogenen Daten ist uns wichtig und auch gesetzlich gefordert. Die Verarbeitung Ihrer personenbezogenen Daten erfolgt nach den datenschutzrechtlichen Bestimmungen. Auf unserer Homepage (unter Datenschutzinformation) finden Sie eine Übersicht die Sie über die wichtigsten Aspekte der Verarbeitung personenbezogener Daten informieren soll.

Irrtum und Änderungen vorbehalten. 

 

Wir weisen darauf hin, dass zwischen dem Vermittler und dem zu vermittelnden Dritten ein familiäres oder wirtschaftliches Naheverhältnis besteht.

Der Immobilienmakler erklärt, dass er entgegen dem in der Immobilienwirtschaft üblichen Geschäftsgebrauch des Doppelmaklers einseitig nur für den Vermieter tätig ist.


Infrastruktur / Entfernungen

Gesundheit
Arzt <250m
Apotheke <250m
Klinik <500m
Krankenhaus <1.000m

Kinder & Schulen
Schule <500m
Kindergarten <250m
Universität <750m
Höhere Schule <1.000m

Nahversorgung
Supermarkt <250m
Bäckerei <250m
Einkaufszentrum <500m

Sonstige
Geldautomat <500m
Bank <500m
Post <500m
Polizei <250m

Verkehr
Bus <250m
U-Bahn <250m
Straßenbahn <750m
Bahnhof <250m
Autobahnanschluss <4.250m

Angaben Entfernung Luftlinie / Quelle: OpenStreetMap

Kabel/SAT/TV: JA
Rollstuhlgerecht: JA
Barrierefrei: JA
Provision: Gemäß Erstauftraggeberprinzip bezahlt der Abgeber die Provision.


Alle Details anzeigen

KONTAKT






 

Lasse dich kostenlos vom Anbieter dieser Immobilie zurückrufen.







 


 
Adonia Realitätenvermittlung GmbH
Adonia Immobilien
Telefonnummer anzeigen Telefon Allgemein: +436766372496
 
Bitte dem Makler die FindMyHome.at - ID bekanntgeben: 5580269

Bewertungen dieses Anbieters
Qualitätsmakler
Qualitätsmakler:
2015, 2018, 2019, 2020, 2023, 2024,
Netiquette
Freundlichkeit

BEWERTUNGEN DIESES ANBIETERS

 
Qualit�tsmakler
Qualitätsmakler
2015, 2018, 2019, 2020, 22/23, 2024
Freundlichkeit
BESONDERS
FREUNDLICH
Netiquette
FINDMYHOME
NETIQUETTE
Auch du kannst bewerten! 7 Tage nach deiner Anfrage erhältst du dafür von uns ein Bewertungsmail.
Alle Infos zu unseren Auszeichnungen und dem FINDMYHOME.AT Qualitätsprogramm findest du hier: Übersicht anzeigen


Du willst wissen, wie viel dein Umzug kosten wird?

Mach gleich den kostenlosen Preisvergleich und schau, welche seriösen Anbieter in deiner Region günstig deinen Umzug organisieren


ZUM UMZUGS-VERGLEICH
-->

MYHOME BLOG
SuchAgentin auf FindMyHome.at
Unterschiedlichen Rechtsthemen, köstliche Rezepte, neueste Design-Highlights, sowie aktuelle Technik-Tools für Ihr Eigenheim.


FINDMYHOME.AT SUCHAGENTIN
SuchAgentin auf FindMyHome.at
Hallo, soll ich dir ähnliche Immobilien kostenfrei per E-Mail schicken?


ÄHNLICHE IMMOBILIEN
Aehnliche Immobilie - Vorschaubild 1

++MOLLARD 50++ Modern 2-Room Apartment in the Heart of the C... - Objektnr. 5572917

54,60 m² - 2.0 Zimmer
1675 €
PLZ: 1060

Mehr anzeigen

Aehnliche Immobilie - Vorschaubild 2

++NEU++ fantastische 2-Zimmer-Wohnung mitten im Herzen der S... - Objektnr. 5571621

52,93 m² - 2.0 Zimmer
1624.96 €
PLZ: 1060

Mehr anzeigen

Aehnliche Immobilie - Vorschaubild 3

++NEU++ Außergewöhnliche 2-Zimmer-Wohnung mitten im Herzen d... - Objektnr. 5568370

62,23 m² - 2.0 Zimmer
1474.98 €
PLZ: 1060

Mehr anzeigen

Durch die Nutzung unserer Seite erklären Sie sich mit der Verwendung von Cookies zur Verbesserung Ihres Online-Erlebnisses einverstanden. Detaillierte Informationen zu diesem und weiteren Themen erhalten Sie in unserer Datenschutzerklärung.