MEIN ERGEBNIS ANPASSEN

Mautner-Markhof-Gasse - sanierter 2 Zimmer Altbauwohnung zu vermieten - Objektnr. 5579913

  • Schlafzimmer
  • Wohnküche
  • Wohnküche
  • Wohnküche
  • Bad mit Wanne
  • Bad mit Wanne
1110
Ort
€ 665,35
Gesamtkosten
57,76 m²
Fläche
2.0
Zimmer

ECKDATEN
FindMyHome.at // Externe Immobilien-ID5579913 // 6876/1586
ImmobilienartWohnung - Miete
Anschrift1110 Wien
Stock3
Mietdauer5
Fläche57,76 m²
Grundfläche57,76 m²
Zimmer2.0
Bad1
WC1
Kaution:€ 2.190,00
Brutto-Miete:€ 665,35
Betriebskosten (inkl. MwSt):€ 135,71
Mehrwertsteuer:€ 60,49
Monatliche Gesamtkosten:€ 665,35
Provision: Gemäß Erstauftraggeberprinzip bezahlt der Abgeber die Provision.




BESCHREIBUNG

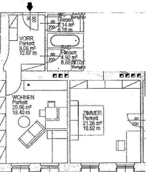
Mautner-Markhof-Gasse - sanierter 2 Zimmer Altbauwohnung zu vermieten

1110 Wien - Mautner-Markhof-Gasse 

sanierte 2 Zimmer Altbauwohnung zu vermieten,

3. Stock (ohne Lift), 

Bezug: ab sofort möglich, 

57,76 m2 Wohnfläche, 

Wohnzimmer mit offener Einbauküche, Schlafzimmer, Vorzimmer,

Bad mit Wanne und Waschmaschinenanschluss, 

separates WC,       

Fußbodenheizung (Zentralheizung), 

1 Kellerabteil steht zur Verfügung, 

Mietdauer: 5 Jahre, 

BMM: € 665,35 ( inkl. BK und 10% UST. ) 

zzgl.   €   64,65 brutto/Monat Heizungs- und Warmwasserakonto 

 

Nebenkosten bei Anmietung:   

Kaution: € 2.190,00 

Der Immobilienmakler erklärt, dass er entgegen dem in der Immobilienwirtschaft üblichen Geschäftsgebrauch des Doppelmaklers einseitig nur für den Vermieter tätig ist.


Infrastruktur / Entfernungen

Gesundheit
Arzt <500m
Apotheke <500m
Klinik <1.500m
Krankenhaus <3.000m

Kinder & Schulen
Schule <500m
Kindergarten <1.000m
Universität <2.000m
Höhere Schule <2.000m

Nahversorgung
Supermarkt <500m
Bäckerei <500m
Einkaufszentrum <500m

Sonstige
Geldautomat <500m
Bank <500m
Post <500m
Polizei <1.000m

Verkehr
Bus <500m
U-Bahn <500m
Straßenbahn <500m
Bahnhof <500m
Autobahnanschluss <1.500m

Angaben Entfernung Luftlinie / Quelle: OpenStreetMap

Provision: Gemäß Erstauftraggeberprinzip bezahlt der Abgeber die Provision.


Alle Details anzeigen

KONTAKT






 

Lasse dich kostenlos vom Anbieter dieser Immobilie zurückrufen.







 


 
BRI Immobilienmakler GmbH
Michelle Gnadenberger
Telefonnummer anzeigen Telefon Allgemein: +436767043377
 
Bitte dem Makler die FindMyHome.at - ID bekanntgeben: 5579913

Bewertungen dieses Anbieters
Qualitätsmakler
Qualitätsmakler:
2025,
Netiquette
Freundlichkeit
82 %

BEWERTUNGEN DIESES ANBIETERS

 
Qualit�tsmakler
Qualitätsmakler
2025
Weiterempfehlung
WIRD GERNE

Freundlichkeit
BESONDERS
FREUNDLICH
Netiquette
FINDMYHOME
NETIQUETTE
Auch du kannst bewerten! 7 Tage nach deiner Anfrage erhältst du dafür von uns ein Bewertungsmail.
Alle Infos zu unseren Auszeichnungen und dem FINDMYHOME.AT Qualitätsprogramm findest du hier: Übersicht anzeigen


Du willst wissen, wie viel dein Umzug kosten wird?

Mach gleich den kostenlosen Preisvergleich und schau, welche seriösen Anbieter in deiner Region günstig deinen Umzug organisieren


ZUM UMZUGS-VERGLEICH
-->

MYHOME BLOG
SuchAgentin auf FindMyHome.at
Unterschiedlichen Rechtsthemen, köstliche Rezepte, neueste Design-Highlights, sowie aktuelle Technik-Tools für Ihr Eigenheim.


FINDMYHOME.AT SUCHAGENTIN
SuchAgentin auf FindMyHome.at
Hallo, soll ich dir ähnliche Immobilien kostenfrei per E-Mail schicken?


Durch die Nutzung unserer Seite erklären Sie sich mit der Verwendung von Cookies zur Verbesserung Ihres Online-Erlebnisses einverstanden. Detaillierte Informationen zu diesem und weiteren Themen erhalten Sie in unserer Datenschutzerklärung.