MEIN ERGEBNIS ANPASSEN

Genial - Sanieren Sie Ihr neues Stadtjuwel mit Balkon ganz nach Ihren Wünschen! - Objektnr. 5579813

5020
Ort
79,76 m²
Fläche

ECKDATEN
FindMyHome.at // Externe Immobilien-ID5579813 // 291076
ImmobilienartEigentum
AnschriftSteingasse
5020 Salzburg
Baujahr1800
Stock3
Geschosse5
Fläche79,76 m²
Bad1
WC2
 Abstellraum
Kaufpreis:€ 590.000,00
Ratenzahlung:Finanzierungsmöglichkeiten für diese Immobilie anzeigen
Provision: 3% vom KP zzgl. 20% Ust. 







BESCHREIBUNG

Genial - Sanieren Sie Ihr neues Stadtjuwel mit Balkon ganz nach Ihren Wünschen!

Top Zentrumslage + Perfekte Infrastruktur + Ruhelage + Balkon + 3.OG + Hell und Sonnig! Jetzt zugreifen!

Diese Wohnung lässt Ihren Wünschen und Bedürfnissen jeglichen Spielraum. 

Profitieren Sie von einer TOP-Infrastruktur, einer idealen öffentlichen Anbindung und dem Genuss dieser absoluten Prestigelage!

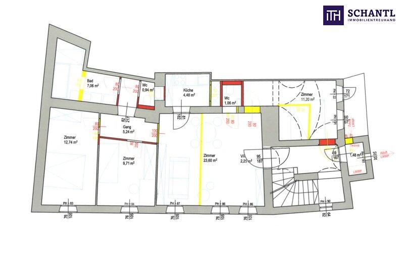
Die zum Verkauf stehende Wohnung, ist ein einzigartiges Highlight für alle, die sich ihren Wohntraum ganz nach ihren Wünschen gestalten möchten. Die Bauanzeige sieht einen Grundriss mit Wohn-Esszimmer, drei Schlafzimmer, Küche, Bad, zwei separate WC`s und einen Technikraum für die geplante Luftwärmepumpe vor. Über das ostseitig ausgerichtete Zimmer, gelangen Sie auf den ruhigen, in den Felsen mündenden Balkon. Der Einbau einer Luftwärmepumpe, als nachhaltiges und energieeffizientes Heizsystem, ist bei diesem Objekt technisch möglich und vollendet den stilvollen Altbau- mit moderner Technik.

Die Pläne wurden für Sie bereits behördlich eingereicht. Alle Genehmigungen bezüglich Umplanung, Denkmalschutz, Heizung, Fenster, etc. sind von Verkäufer für Sie bereits eingeholt. 

Das Motto für dieses Stadtjuwels lautet: 3, 2, 1 und LOS! 

Wohnfläche: ca. 79,76 m² + Balkon: ca. 3 m²

Kaufpreis: € 590.000.-

Provision: 3% vom KP zzgl. 20% Ust. 

 

Bei konkretem Interesse senden wir Ihnen sehr gerne weiterführende Dokumente zu, wie:

o Grundbuchauszug

o Wohnungseigentumsvertrag

o Nutzwertgutachten

o Eigentümerversammlungsprotokoll (Falls vorhanden) etc...

 

Unser Service für Sie: Wenn Sie sich für diese Immobilie entschieden haben, begleiten wir Sie gerne vom Kaufanbot weg inkl. Klärung von Sonderwünschen und der Vertragsunterzeichnung über die Wohnungsübergabe bis hin zu diversen Ummeldungen wie Strom und Gas. Entsprechende Formulare oder auch Meldezettel stellen wir Ihnen sehr gerne zur Verfügung.

Gerne unterstützen wir Sie auch bei der Finanzierung Ihres Traumobjekts und finden mit unseren langjährigen Partnern die besten Konditionen für Sie.

Worauf warten Sie noch, diese perfekte 3-Zimmer Wohnung wird nicht lange zu haben sein!

www.schantl-ith.at

Wir weisen darauf hin, dass zwischen dem Vermittler und dem zu vermittelnden Dritten ein familiäres oder wirtschaftliches Naheverhältnis besteht.

Der Vermittler ist als Doppelmakler tätig.


Infrastruktur / Entfernungen

Gesundheit
Arzt <250m
Apotheke <250m
Klinik <1.000m
Krankenhaus <500m

Kinder & Schulen
Schule <500m
Kindergarten <500m
Universität <500m
Höhere Schule <500m

Nahversorgung
Supermarkt <250m
Bäckerei <250m
Einkaufszentrum <500m

Sonstige
Bank <250m
Geldautomat <250m
Post <500m
Polizei <500m

Verkehr
Bus <250m
Bahnhof <750m
Autobahnanschluss <3.500m
Flughafen <3.500m

Angaben Entfernung Luftlinie / Quelle: OpenStreetMap

Objekt ist für eine Wohngemeinschaft geeignet
Klimaanlage: JA
Kabel/SAT/TV: JA
Provision: 3% des Kaufpreises zzgl. 20% USt.


Alle Details anzeigen

KONTAKT






 

Lasse dich kostenlos vom Anbieter dieser Immobilie zurückrufen.







 


 
Schantl ITH Immobilientreuhand GmbH
Mark Prettenthaler
Telefonnummer anzeigen Telefon Allgemein: +436643070009
Handy Bearbeiter: +436505675611
 
Bitte dem Makler die FindMyHome.at - ID bekanntgeben: 5579813

Bewertungen dieses Anbieters
Qualitätsmakler
Qualitätsmakler:
2015, 2016, 2018, 2019, 2020, 2021, 2023 , 2024, 2025,
Netiquette
Freundlichkeit
79 %

BEWERTUNGEN DIESES ANBIETERS

 
Qualit�tsmakler
Qualitätsmakler
2015, 2016, 2018, 2019, 2020, 2021, 22/23, 2024, 2025
Antwortzeit
ø 48h ANTWORT
Weiterempfehlung
WIRD GERNE

Freundlichkeit
BESONDERS
FREUNDLICH
Netiquette
FINDMYHOME
NETIQUETTE
Auch du kannst bewerten! 7 Tage nach deiner Anfrage erhältst du dafür von uns ein Bewertungsmail.
Alle Infos zu unseren Auszeichnungen und dem FINDMYHOME.AT Qualitätsprogramm findest du hier: Übersicht anzeigen

FINANZIERUNG
?>

Du willst wissen, wie viel dein Umzug kosten wird?

Mach gleich den kostenlosen Preisvergleich und schau, welche seriösen Anbieter in deiner Region günstig deinen Umzug organisieren


ZUM UMZUGS-VERGLEICH
-->

MYHOME BLOG
SuchAgentin auf FindMyHome.at
Unterschiedlichen Rechtsthemen, köstliche Rezepte, neueste Design-Highlights, sowie aktuelle Technik-Tools für Ihr Eigenheim.


FINDMYHOME.AT SUCHAGENTIN
SuchAgentin auf FindMyHome.at
Hallo, soll ich dir ähnliche Immobilien kostenfrei per E-Mail schicken?


Durch die Nutzung unserer Seite erklären Sie sich mit der Verwendung von Cookies zur Verbesserung Ihres Online-Erlebnisses einverstanden. Detaillierte Informationen zu diesem und weiteren Themen erhalten Sie in unserer Datenschutzerklärung.