MEIN ERGEBNIS ANPASSEN

Wohnen mit Zukunft - Reihenhäuser zum Mieten & Kaufen in Wiener - Objektnr. 5579281

2700
Ort
€ 1.447,02
Gesamtkosten
118,98 m²
Fläche
4.0
Zimmer
WEITERE MEDIEN

ECKDATEN
FindMyHome.at // Externe Immobilien-ID5579281 // 83234
ImmobilienartHaus - Miete
AnschriftAckergasse/9
2700 Wiener Neustadt
Baujahr2025
Geschosse2
Mietdauer6
Fläche118,98 m²
Terrassen1 (15,00 m²)
Zimmer4.0
Bad2
WC2
 Abstellraum
Brutto-Miete:€ 1.447,02
Betriebskosten (inkl. MwSt):€ 187,11
Mehrwertsteuer:€ 128,84
Monatliche Gesamtkosten:€ 1.447,02
Provision: Gemäß Erstauftraggeberprinzip bezahlt der Abgeber die Provision.




BESCHREIBUNG

Wohnen mit Zukunft - Reihenhäuser zum Mieten & Kaufen in Wiener

Förderbare Reihenhäuser in Wiener Neustadt Ihr leistbares Eigenheim wartet auf Sie!

Die neu Fertiggestellten Reihenhäuser in nachhaltiger Holzbauweise sind perfekt für all jene, die Wert auf ein durchdachtes Wohnkonzept in naturnaher Umgebung legen. Die grüne Lage nahe dem Wiener Neustädter Kanal, oft als Canale Grande von Niederösterreich bezeichnet, bietet weitläufige Grünflächen und beste Freizeitmöglichkeiten. Dank der Nähe zum Civitas Nova Bahnhof genießen Sie zudem eine optimale Anbindung.

Mietkauf möglich! Ihr Eigentum von morgen - wie funktioniert das Modell

Das Mietkaufmodell bietet Ihnen die Möglichkeit, Ihr zukünftiges Eigenheim zunächst zu mieten und sich später für den Kauf zu entscheiden. Dabei profitieren Sie von einer flexiblen Lösung, die Ihnen Zeit gibt, Ihre Wohnsituation zu testen und gleichzeitig einen finanziellen Vorteil bei einer späteren Kaufentscheidung zu sichern.

So funktioniert es:

Beim Abschluss des Mietvertrags leisten Sie eine Mietvorauszahlung von 10 % des Kaufpreises. Diese Vorauszahlung führt zu einer Reduktion Ihrer monatlichen Mietkosten, da der angezahlte Betrag anteilig Monat für Monat zur teilweisen Deckung Ihrer Mietkosten verwendet wird.  Die Mietvertragslaufzeit beträgt sechs Jahre, wobei Sie bereits ab dem vierten Jahr die Möglichkeit haben, das Haus zu kaufen.

Während der Mietzeit wird die Miete gemäß dem Verbraucherpreisindex (VPI) angepasst. Ein PKW-Stellplatz ist bereits in der Miete inkludiert, darüber hinaus ist keine gesonderte Kaution zu leisten oder ein Optionsentgelt zu bezahlen - das reduziert Ihre anfänglichen finanziellen Belastungen.

Sollten Sie sich für den Kauf entscheiden, wird der ursprünglich vereinbarte Kaufpreis angepasst: Bei einem Kauf nach drei bzw. bis sechs Jahren wird der Kaufpreis indexiert. Dieses Modell ermöglicht es Ihnen, Ihr neues Zuhause zunächst kennenzulernen und sich später für den Kauf zu entscheiden mit dem Vorteil, dass ein Teil der gezahlten Miete direkt in Ihr Eigentum fließt.

Durchdachte Architektur für mehr Wohnkomfort

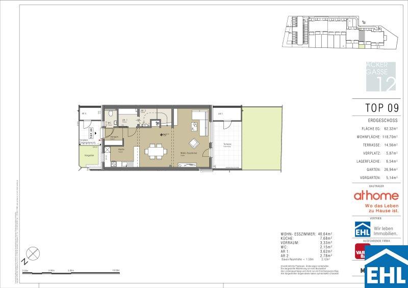
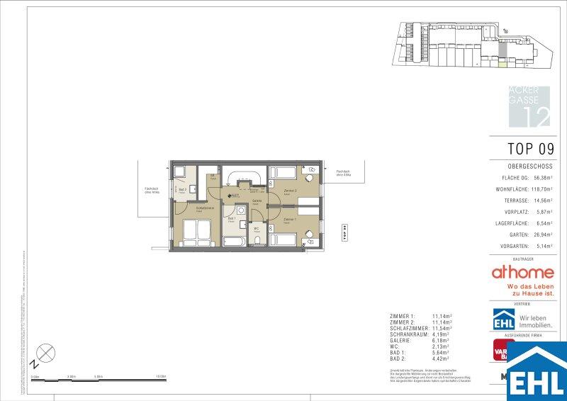
Bereits bei der Planung wurde auf Nachhaltigkeit, Funktionalität und ein harmonisches Raumkonzept geachtet. Die Häuser erstrecken sich über zwei Etagen und bieten auf rund 118 m² Wohnfläche eine ideale Aufteilung:

  • Erdgeschoss: Ein großzügiger, lichtdurchfluteter Wohnbereich mit direktem Zugang zur Terrasse und dem liebevoll gestalteten Garten Ihr persönlicher Rückzugsort im Grünen.
  • Obergeschoss: Drei ruhige Schlafzimmer sowie zwei moderne Bäder schaffen eine private Wohlfühloase.
  • Vorgärten: Einladende Eingangsbereiche sorgen für einen warmen Empfang.

Dank der Südost-Ausrichtung profitieren Sie von lichtdurchfluteten Räumen, die mit großen Fensterfronten eine offene und einladende Atmosphäre schaffen.

Ihr neues Zuhause auf einen Blick

  • 12 Reihenhäuser in ökologischer Holzrahmenbauweise
  •  Großzügige Wohnflächen mit ca. 118 m
  •  Vorgärten, große Terrassen & weitläufige Gärten
  • 3 Schlafzimmer, 2 Bäder, viel Stauraum
  • 19 PKW-Stellplätze
  • Geplante Fertigstellung: November 2024

Hochwertige Ausstattung für zeitgemäßes Wohnen

  • Edle Parkettböden in den Wohnräumen
  • Moderne Fliesen in den Bädern
  • Hochwertige Sanitärausstattung
  • Fenster mit 3-fach-Isolierverglasung
  • Elektrischer Sonnenschutz
  • Glasfaser-Internet (A1 & Magenta)
  • Fußbodenheizung über Fernwärme
  • Vorbereitung für Photovoltaik, Klimaanlage & Alarmanlage

Attraktive Lage mit bester Infrastruktur

Die Nähe zum Wiener Neustädter Kanal schafft eine perfekte Verbindung von Natur und urbanem Leben. Zahlreiche Freizeitmöglichkeiten, Schulen, Kindergärten und Einkaufsmöglichkeiten befinden sich in unmittelbarer Umgebung. Die hervorragende Anbindung an das öffentliche Verkehrsnetz inklusive direkter Verbindung zum Bahnhof Civitas Nova sorgt für maximale Flexibilität.

  • Förderbar & provisionsfrei für Käufer!
  • Voraussichtliche Betriebskosten: ca. 1,50 €/m² netto
  • Nähere Informationen zur Wohnbauförderung NÖ finden Sie hier!

Nutzen Sie diese Gelegenheit und sichern Sie sich eines der begehrten Reihenhäuser!

© 2025, PROPERTY PHOTOS

Wir weisen darauf hin, dass zwischen dem Vermittler und dem zu vermittelnden Dritten ein familiäres oder wirtschaftliches Naheverhältnis besteht.

Der Immobilienmakler erklärt, dass er entgegen dem in der Immobilienwirtschaft üblichen Geschäftsgebrauch des Doppelmaklers einseitig nur für den Vermieter tätig ist.


Infrastruktur / Entfernungen

Gesundheit
Arzt <1.500m
Apotheke <1.000m
Klinik <3.500m
Krankenhaus <2.000m

Kinder & Schulen
Schule <500m
Kindergarten <750m
Höhere Schule <2.500m
Universität <1.250m

Nahversorgung
Supermarkt <500m
Bäckerei <1.000m
Einkaufszentrum <1.000m

Sonstige
Bank <1.000m
Geldautomat <1.000m
Post <750m
Polizei <500m

Verkehr
Bus <500m
Autobahnanschluss <4.250m
Bahnhof <500m
Flughafen <1.500m

Angaben Entfernung Luftlinie / Quelle: OpenStreetMap

Provision: Gemäß Erstauftraggeberprinzip bezahlt der Abgeber die Provision.


Alle Details anzeigen

KONTAKT






 

Lasse dich kostenlos vom Anbieter dieser Immobilie zurückrufen.







 


 
EHL Wohnen GmbH
Ingrid Neugebauer
Telefonnummer anzeigen Telefon Allgemein: +4315127690418
Handy Bearbeiter: +4369915212532
 
Bitte dem Makler die FindMyHome.at - ID bekanntgeben: 5579281

Bewertungen dieses Anbieters
Qualitätsmakler
Qualitätsmakler:
Netiquette
Freundlichkeit
82 %

BEWERTUNGEN DIESES ANBIETERS

 
Qualitätsmakler
UNSERE HALL OF FAME DER BESTEN ANBIETER
Qualit�tsmakler
Qualitätsmakler
2012, 2013, 2014, 2015, 2016, 2017, 2018, 2019, 2020, 2021, 22/23, 2024, 2025
Weiterempfehlung
WIRD GERNE

Freundlichkeit
BESONDERS
FREUNDLICH
Netiquette
FINDMYHOME
NETIQUETTE
Auch du kannst bewerten! 7 Tage nach deiner Anfrage erhältst du dafür von uns ein Bewertungsmail.
Alle Infos zu unseren Auszeichnungen und dem FINDMYHOME.AT Qualitätsprogramm findest du hier: Übersicht anzeigen


Du willst wissen, wie viel dein Umzug kosten wird?

Mach gleich den kostenlosen Preisvergleich und schau, welche seriösen Anbieter in deiner Region günstig deinen Umzug organisieren


ZUM UMZUGS-VERGLEICH
-->

MYHOME BLOG
SuchAgentin auf FindMyHome.at
Unterschiedlichen Rechtsthemen, köstliche Rezepte, neueste Design-Highlights, sowie aktuelle Technik-Tools für Ihr Eigenheim.


FINDMYHOME.AT SUCHAGENTIN
SuchAgentin auf FindMyHome.at
Hallo, soll ich dir ähnliche Immobilien kostenfrei per E-Mail schicken?


ÄHNLICHE IMMOBILIEN
Aehnliche Immobilie - Vorschaubild 1

Nachhaltig gebaut, clever finanziert - Ihr Eigenheim im Grün... - Objektnr. 5579282

118,13 m² - 4.0 Zimmer
1472.03 €
PLZ: 2700

Mehr anzeigen

Aehnliche Immobilie - Vorschaubild 2

Grün wohnen, urban leben - Ihr leistbares Zuhause wartet... - Objektnr. 5579283

118,98 m² - 4.0 Zimmer
1572.03 €
PLZ: 2700

Mehr anzeigen

Durch die Nutzung unserer Seite erklären Sie sich mit der Verwendung von Cookies zur Verbesserung Ihres Online-Erlebnisses einverstanden. Detaillierte Informationen zu diesem und weiteren Themen erhalten Sie in unserer Datenschutzerklärung.