MEIN ERGEBNIS ANPASSEN

Wohnen und Arbeiten im herrschaftlichen Palais beim Schwarzenbergplatz - Objektnr. 5578931

1040
Ort
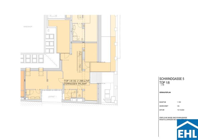
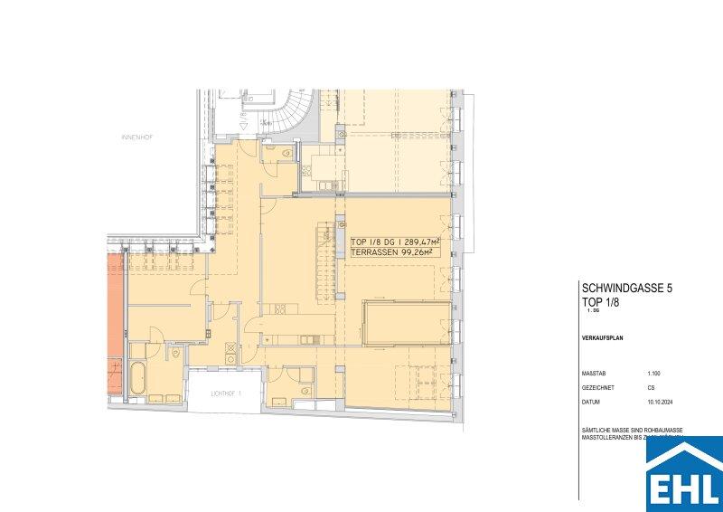
289,47 m²
Fläche
5.0
Zimmer
WEITERE MEDIEN

Dokumente


ECKDATEN
FindMyHome.at // Externe Immobilien-ID5578931 // 80228
ImmobilienartWohnung - Eigentum
AnschriftSchwindgasse
1040 Wien
Baujahr1873
Befeuerung
Stock4
Geschosse6
Fläche289,47 m²
Zimmer5.0
Bad4
WC4
 Abstellraum
Kaufpreis:€ 3.600.000,00
Ratenzahlung:Finanzierungsmöglichkeiten für diese Immobilie anzeigen
Provision: 3% des Kaufpreises zzgl. 20% USt.







BESCHREIBUNG

Wohnen und Arbeiten im herrschaftlichen Palais beim Schwarzenbergplatz

In einem prachtvollen Palais aus dem Jahr 1873, entworfen vom renommierten Architekturbüro Claus und Gross, gelangen exquisite, geschichtsträchtige Wohnungen in den Regelgeschoßen sowie luxuriöse Dachgeschosswohnungen zum Verkauf, die Geschichte und Moderne auf unvergleichliche Weise vereinen. Die reich gegliederte, denkmalgeschützte Fassade des Palais bildet eine eindrucksvolle Kulisse für exklusives Wohnen im Herzen des 4. Wiener Gemeindebezirks, in direkter Nähe zur Karlskirche und dem Schwarzenbergplatz.

In den Regelgeschossen befinden sich Wohnungen und Büros mit allem was der Wiener Altbauflair verspricht: beeindruckende Raumhöhen, Flügeltüren, Stuckaturen und reichverzierte Holzkassettendecken.

Der Dachgeschossausbau von 2006 und 2007 eröffnete lichtdurchflutete Wohnräume, die durch großzügige Fensterfronten atemberaubende Ausblicke auf die historische Umgebung Wiens freigeben. Jede Wohnung wurde mit höchstem Anspruch an Qualität und Stil gestaltet: Edle Materialien und feinste Ausstattung verbinden sich zu einem luxuriösen Ambiente, das zum Verweilen einlädt. Die privaten Dachterrassen bieten einen unvergleichlichen Rückzugsort inmitten der Stadt.

Eine hauseigene Tiefgarage beinhaltet 9 Kfz-Stellplätze, 5 davon sind Stapelparkplätze. Die Verkaufspreise liegen zwischen € 50.000,- und € 75.000,-.

Heizung: über Fan-Coils / Zentral Heizung
Kühlung: über Fan-Coils / Kühlung durch Kondensator
Sonnenschutz: elektrisch betriebenen, teilweise auch händisch bedienbar
Boden: Parkett und Fliesen

In diesem Prachtbau verschmilzt das Flair vergangener Epochen mit modernem Wohnkomfort ein unvergleichliches Refugium für alle, die das Besondere suchen.

 

Diese exklusive Dachgeschoß-Wohnung beeindruckt durch ihre traumhafte Aussicht, eine gefällige Raumaufteilung und verbindet harmonisch modernes Design mit praktischer Funktionalität.

Ein großzügiger Eingangsbereich empfängt Sie im 1. Dachgeschoß. Der lichtdurchflutete, über 77 m² große Wohnbereich teilt sich durch die Stiege ins 2. Dachgeschoß in eine moderne, hochwertig ausgestattete Küche samt  großzügigem Essbereich und den Wohnbereich, der eine wunderschöne Aussicht zur Schwindgasse und somit zur Kuppel der Karlskirche hin bietet. Zwischen dem Wohnbereich und dem ersten Zimmer befindet sich ein Lichtatrium.

Zum Innenhof gerichtet liegt das zweite Schlafzimmer auf dieser Ebene, das mit einem geräumigen Schrankraum und einem luxuriösen Badezimmer verbunden ist.

Über eine Holzstiege erreicht man das 2. Dachgeschoß, das über ein etwa 53 m² großes Studio mit Blick auf den Wohnbereich und ein weiteres Schlafzimmer verfügt. Hier erwarten Sie zudem zwei Terrassen, die wie geschaffen sind, den Morgen zu begrüßen oder den Tag in Ruhe zu beschließen. Das Studio bzw. die Galerie sorgt für Leichtigkeit in dieser schönen Wohnung.

Ein weiteres Highlight ist die großzügige, etwa 52 m² große Dachterrasse, eine Etage höher, die schöne Momente verspricht wie etwa stimmungsvolle Sonnenuntergänge oder einen Blick auf die wunderschöne Karlskirche im Abendlicht. 

Diese Wohnung wurde mit edlen Materialien und eleganten Details gestaltet und bietet hohen Wohnkomfort. Sie verfügt in Summe über 5 Zimmer, 4 Badezimmer und 3 WCs, einen geräumigen Wirtschaftsraum.

Dieses exklusive Penthouse ist weit mehr als nur ein Zuhause, es vereint Komfort, Stil und gehobenes Ambiente für ein einzigartiges Lebensgefühl.

Wir weisen darauf hin, dass zwischen dem Vermittler und dem zu vermittelnden Dritten ein familiäres oder wirtschaftliches Naheverhältnis besteht.

Der Vermittler ist als Doppelmakler tätig.


Infrastruktur / Entfernungen

Gesundheit
Arzt <250m
Apotheke <500m
Klinik <500m
Krankenhaus <1.250m

Kinder & Schulen
Schule <500m
Kindergarten <250m
Universität <250m
Höhere Schule <500m

Nahversorgung
Supermarkt <250m
Bäckerei <250m
Einkaufszentrum <750m

Sonstige
Geldautomat <250m
Bank <500m
Post <500m
Polizei <500m

Verkehr
Bus <250m
U-Bahn <250m
Straßenbahn <250m
Bahnhof <500m
Autobahnanschluss <2.750m

Angaben Entfernung Luftlinie / Quelle: OpenStreetMap

Provision: 3% des Kaufpreises zzgl. 20% USt.


Alle Details anzeigen

KONTAKT






 

Lasse dich kostenlos vom Anbieter dieser Immobilie zurückrufen.







 


 
EHL Wohnen GmbH
Daniel Bolataschwili
Telefonnummer anzeigen Telefon Allgemein: +4315127690414
Handy Bearbeiter: +4366488160127
 
Bitte dem Makler die FindMyHome.at - ID bekanntgeben: 5578931

Bewertungen dieses Anbieters
Qualitätsmakler
Qualitätsmakler:
Netiquette
Freundlichkeit
82 %

BEWERTUNGEN DIESES ANBIETERS

 
Qualitätsmakler
UNSERE HALL OF FAME DER BESTEN ANBIETER
Qualit�tsmakler
Qualitätsmakler
2012, 2013, 2014, 2015, 2016, 2017, 2018, 2019, 2020, 2021, 22/23, 2024, 2025
Weiterempfehlung
WIRD GERNE

Freundlichkeit
BESONDERS
FREUNDLICH
Netiquette
FINDMYHOME
NETIQUETTE
Auch du kannst bewerten! 7 Tage nach deiner Anfrage erhältst du dafür von uns ein Bewertungsmail.
Alle Infos zu unseren Auszeichnungen und dem FINDMYHOME.AT Qualitätsprogramm findest du hier: Übersicht anzeigen

FINANZIERUNG
?>

Du willst wissen, wie viel dein Umzug kosten wird?

Mach gleich den kostenlosen Preisvergleich und schau, welche seriösen Anbieter in deiner Region günstig deinen Umzug organisieren


ZUM UMZUGS-VERGLEICH
-->

MYHOME BLOG
SuchAgentin auf FindMyHome.at
Unterschiedlichen Rechtsthemen, köstliche Rezepte, neueste Design-Highlights, sowie aktuelle Technik-Tools für Ihr Eigenheim.


FINDMYHOME.AT SUCHAGENTIN
SuchAgentin auf FindMyHome.at
Hallo, soll ich dir ähnliche Immobilien kostenfrei per E-Mail schicken?


ÄHNLICHE IMMOBILIEN
Aehnliche Immobilie - Vorschaubild 1

Exklusive Dachgeschoss-Maisonette mit Blick über Wien nahe d... - Objektnr. 5542004

264,31 m² - 5.5 Zimmer
3350000 €
PLZ: 1040

Mehr anzeigen

Aehnliche Immobilie - Vorschaubild 2

Exklusive Dachwohnung mit Stadtblick im Altbaupalais... - Objektnr. 5527273

264,31 m² - 6.0 Zimmer
3350000 €
PLZ: 1040

Mehr anzeigen

Aehnliche Immobilie - Vorschaubild 3

Exklusives Penthouse im Herzen von Wieden - Objektnr. 5562318


233,78 m²
4290000 €
PLZ: 1040

Mehr anzeigen

Durch die Nutzung unserer Seite erklären Sie sich mit der Verwendung von Cookies zur Verbesserung Ihres Online-Erlebnisses einverstanden. Detaillierte Informationen zu diesem und weiteren Themen erhalten Sie in unserer Datenschutzerklärung.