MEIN ERGEBNIS ANPASSEN

++FonteFlats++ Außergewöhnlicher 4-Zimmer Dachgeschoss-ERSTBEZUG mit großartiger Dachterrasse - Objektnr. 5578862


ökologisch beheizt
1100
Ort
€ 2.799,00
Gesamtkosten
129,97 m²
Fläche
4.0
Zimmer

ECKDATEN
FindMyHome.at // Externe Immobilien-ID5578862 // 62530
ImmobilienartMiete
Anschrift1100 Wien
Baujahr2024
Befeuerung
Luftwärmepumpe
Fläche129,97 m²
Terrassen1 (32,00 m²)
Zimmer4.0
Bad1
WC2
Brutto-Miete:€ 2.799,00
Mehrwertsteuer:€ 254,45
Monatliche Gesamtkosten:€ 2.799,00
Provision: Gemäß Erstauftraggeberprinzip bezahlt der Abgeber die Provision.




BESCHREIBUNG

++FonteFlats++ Außergewöhnlicher 4-Zimmer Dachgeschoss-ERSTBEZUG mit großartiger Dachterrasse

Neu errichtete 4-Zimmer-Wohnung mit Dachterrasse Erstbezug im 6. Stock (3. Dachgeschoss) eines schönen Altbaus

Die Küche wird noch auf Kosten des Vermieters eingebaut.

Zum Verkauf steht eine ca. 130m² große, neu errichtete 4-Zimmer-Wohnung mit Dachterrasse in einem gepflegten Altbau. Die Wohnung befindet sich im 6. Stock (3. Dachgeschoss) und wird als Erstbezug angeboten.


Besichtigung

Zur Vereinbarung eines Besichtigungstermins bitten wir Sie, uns unbedingt eine schriftliche Anfrage zukommen zu lassen. Wir antworten verlässlich am selben Tag!


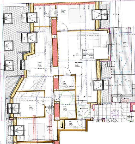
Wohnungsdetails

  • Lage: 6. Obergeschoss (3. Dachgeschoss)
  • Raumaufteilung:
    • Vorraum
    • Getrenntes WC
    • Badezimmer mit WC und Dusche
    • Abstellraum
    • Wohnzimmer
    • Küche
    • 2 Zimmer
    • 1 Zimmer mit eigenem Abstellraum
    • Balkon/Terrasse

(Siehe Plan und aktuelle Fotos)

  • Zustand:
    Die Wohnung ist als Erstbezug verfügbar.

Ausstattungsdetails

  • Fußbodenheizung
  • Hochwertiger Parkettboden
  • Exklusiv ausgestattete Sanitärräume

Das Gebäude

Das Objekt befindet sich in einem schönen Altbau, der vor kurzem modernisiert wurde.

  • Der Dachgeschossausbau umfasste den Einbau eines Personenaufzugs.

Lage

Die Wohnung liegt in der Quellenstraße, einer ruhigen Wohngegend mit idealer Infrastruktur:

  • Einkaufsmöglichkeiten: Geschäfte des täglichen Bedarfs sind fußläufig erreichbar.
  • Ärztliche Versorgung: Allgemein- und Fachärzte befinden sich in der Nähe.

Verkehrsanbindung

  • Straßenbahnlinien:
    • 6: Burggasse/Stadthalle Reumannplatz
    • 11: Otto-Probst-Platz Kaiserebersdorf
    • D: Nußdorf Alfred-Adler-Straße

Die Haltestellen sind nur 2 Minuten zu Fuß entfernt.


Preis

Die monatliche Gesamtmiete (inkl. Betriebskosten und Ust.) beträgt 2.799,00 €    

Die Vermietung erfolgt befristet auf 3 Jahre. 

Die Kaution beträgt 3 Bruttomonatsmieten.

 

Sollten Sie Fragen haben oder einen Besichtigungstermin wünschen, zögern Sie bitte nicht mich zu kontaktieren. (am besten via E-Mail Anfrage)

Zur Vereinbarung eines Besichtigungstermins lassen Sie uns bitte jedenfalls eine E-Mailanfrage zukommen!

Der IMMY ist die renommierteste Auszeichnung für Wiener Makler- und Verwalterbetriebe im Bereich Wohnimmobilien. Wir sind stolz den goldenen IMMY für das Jahr 2019 gewonnen zu haben!

Vielen Dank vor allem an unsere Kunden! Unser Unternehmen wurde auch zum Besten Start Up und in den Jahren 2015, 2018, 2019 und 2020 als Qualitätsmakler ausgezeichnet!

Bitte achten Sie darauf, dass Sie diese Immobilie, nach Ihrer Anfrage bei Adonia Immobilien, nicht auch bei einem anderen Immobilienmaklerbüro anfragen! Vielen Dank!

Nicht alle unsere Immobilien finden Sie auf den gängigen Plattformen. Wir freuen uns auf Ihren Besuch auf unserer Homepage unter adonia.at 

Wir weisen ausdrücklich auf unser wirtschaftliches Naheverhältnis mit dem Abgeber/ der Abgeberin hin!  Unsere gesetzlichen Pflichten als Doppelmakler werden dadurch jedoch nicht beeinträchtigt. Irrtum und Änderungen vorbehalten. 

Alle hier veröffentlichen Informationen basieren auf den uns von dem Abgeber/ der Abgeberin zur Verfügung gestellten Informationen und wurden nicht selbst erhoben.

Unsere Allgemeinen Geschäftsbedingungen können Sie sowohl in dem Ihnen zugesandten Expose einsehen als auch auf unserer Homepage. Wir weisen ausdrücklich darauf hin, dass diese AGBs Vertragsinhalt werden.

Der Schutz von personenbezogenen Daten ist uns wichtig und auch gesetzlich gefordert. Die Verarbeitung Ihrer personenbezogenen Daten erfolgt nach den datenschutzrechtlichen Bestimmungen. Auf unserer Homepage (unter Datenschutzinformation) finden Sie eine Übersicht die Sie über die wichtigsten Aspekte der Verarbeitung personenbezogener Daten informieren soll.

Wir weisen darauf hin, dass zwischen dem Vermittler und dem zu vermittelnden Dritten ein familiäres oder wirtschaftliches Naheverhältnis besteht.

Der Immobilienmakler erklärt, dass er entgegen dem in der Immobilienwirtschaft üblichen Geschäftsgebrauch des Doppelmaklers einseitig nur für den Vermieter tätig ist.


Infrastruktur / Entfernungen

Gesundheit
Arzt <1.000m
Apotheke <500m
Klinik <1.000m
Krankenhaus <2.500m

Kinder & Schulen
Schule <500m
Kindergarten <500m
Universität <500m
Höhere Schule <2.000m

Nahversorgung
Supermarkt <500m
Bäckerei <500m
Einkaufszentrum <1.500m

Sonstige
Geldautomat <500m
Bank <500m
Post <500m
Polizei <1.500m

Verkehr
Bus <500m
U-Bahn <1.000m
Straßenbahn <500m
Bahnhof <500m
Autobahnanschluss <500m

Angaben Entfernung Luftlinie / Quelle: OpenStreetMap

Objekt ist für eine Wohngemeinschaft geeignet
Provision: Gemäß Erstauftraggeberprinzip bezahlt der Abgeber die Provision.


Alle Details anzeigen

KONTAKT






 

Lasse dich kostenlos vom Anbieter dieser Immobilie zurückrufen.







 


 
Adonia Realitätenvermittlung GmbH
Benjamin Marinkovic
Telefonnummer anzeigen Telefon Allgemein: +436765446834
 
Bitte dem Makler die FindMyHome.at - ID bekanntgeben: 5578862

Bewertungen dieses Anbieters
Qualitätsmakler
Qualitätsmakler:
2015, 2018, 2019, 2020, 2023, 2024,
Netiquette
Freundlichkeit

BEWERTUNGEN DIESES ANBIETERS

 
Qualit�tsmakler
Qualitätsmakler
2015, 2018, 2019, 2020, 22/23, 2024
Freundlichkeit
BESONDERS
FREUNDLICH
Netiquette
FINDMYHOME
NETIQUETTE
Auch du kannst bewerten! 7 Tage nach deiner Anfrage erhältst du dafür von uns ein Bewertungsmail.
Alle Infos zu unseren Auszeichnungen und dem FINDMYHOME.AT Qualitätsprogramm findest du hier: Übersicht anzeigen


Du willst wissen, wie viel dein Umzug kosten wird?

Mach gleich den kostenlosen Preisvergleich und schau, welche seriösen Anbieter in deiner Region günstig deinen Umzug organisieren


ZUM UMZUGS-VERGLEICH
-->

MYHOME BLOG
SuchAgentin auf FindMyHome.at
Unterschiedlichen Rechtsthemen, köstliche Rezepte, neueste Design-Highlights, sowie aktuelle Technik-Tools für Ihr Eigenheim.


FINDMYHOME.AT SUCHAGENTIN
SuchAgentin auf FindMyHome.at
Hallo, soll ich dir ähnliche Immobilien kostenfrei per E-Mail schicken?


ÄHNLICHE IMMOBILIEN
Aehnliche Immobilie - Vorschaubild 1

++FonteFlats++ Modern 4-room Attic Apartment - First Occupan... - Objektnr. 5578861

129,98 m² - 4.0 Zimmer
2798.99 €
PLZ: 1100

Mehr anzeigen

Aehnliche Immobilie - Vorschaubild 2

++FonteFlats++ Fantastischer 4-Zimmer Dachgeschoss-ERSTBEZUG... - Objektnr. 5578863

108,71 m² - 4.0 Zimmer
2349 €
PLZ: 1100

Mehr anzeigen

Aehnliche Immobilie - Vorschaubild 3

++FonteFlats++ Prestigious 4-room Penthouse - First Occupanc... - Objektnr. 5537201

108,74 m² - 4.0 Zimmer
2349 €
PLZ: 1100

Mehr anzeigen

Durch die Nutzung unserer Seite erklären Sie sich mit der Verwendung von Cookies zur Verbesserung Ihres Online-Erlebnisses einverstanden. Detaillierte Informationen zu diesem und weiteren Themen erhalten Sie in unserer Datenschutzerklärung.