MEIN ERGEBNIS ANPASSEN

++NEU++ Exzellent ausgestattete 3-Zimmer Erdgeschoss-Wohnung in toller Lage (Erstbezug)!!! - Objektnr. 5578343


ökologisch beheizt
1160
Ort
61,37 m²
Fläche
3.0
Zimmer

ECKDATEN
FindMyHome.at // Externe Immobilien-ID5578343 // 62470
ImmobilienartWohnung - Eigentum
Anschrift/9
1160 Wien,Ottakring
Befeuerung
Luftwärmepumpe
Fläche61,37 m²
Terrassen1 (10,00 m²)
Zimmer3.0
Bad1
WC1
Kaufpreis:€ 379.000,00
Ratenzahlung:Finanzierungsmöglichkeiten für diese Immobilie anzeigen
Provision:







BESCHREIBUNG

++NEU++ Exzellent ausgestattete 3-Zimmer Erdgeschoss-Wohnung in toller Lage (Erstbezug)!!!

Zum Verkauf gelangt diese perfekt geschnittene, ca. 61m² große 3-Zimmer Erdgeschoss-Wohnung mit Terrasse und Garten in sehr guter Lage des 16. Wiener Gemeindebezirks in einem fantastischem Altbau.

***ZUR VEREINBARUNG eines BESICHTIGUNGSTERMINS lassen SIE uns BITTE JEDENFALLS eine schriftliche ANFRAGE zukommen! (wir antworten verlässlich am selben Tag!)***

 

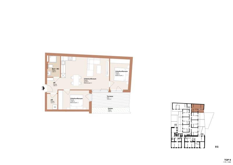
Raumaufteilung:

  • Vorraum
  • Badezimmer mit Dusche und WC
  • Abstellraum
  • Wohnesszimmer
  • Unterkunftsraum
  • Unterkunftsraum
  • Terrasse/Garten

(siehe Plan u. Beispielfotos einer bereits fertiggestellten Wohnung desselben Bauträgers)

Zustand:

Das Objekt wird soeben aufwendig generalsaniert. Es handelt sich um einen Erstbezug. (siehe Beispielfotos von bereits fertiggestellten Objekten)

Ausstattungsdetails:

  • Fußbodenheizung
  • Parkettboden
  • hochwertig ausgestattete Sanitärräume
  • Aufzug

Haus:

Das Objekt befindet sich im Erdgeschoss des Hoftraktes(Neubau) eines außergewöhnlich schönen Altbaus welcher soeben saniert wird. Das Dachgeschoss wird soeben ausgebaut und im Zuge dessen wird ein Personenaufzug eingebaut. Fertigstellung Ende Q4 2026.

Lage: 

Das Objekt ist in der Redtenbachergasse gelegen und somit in einer der besten und gefragtesten Lagen im 16. Gemeindebezirk. Alle Geschäfte des täglichen Bedarfs und einige Restaurants und Cafes befinden sich in unmittelbarer Gehdistanz!

Verkehrsanbindung:

Die U3 Station Ottakring sichert eine perfekte Anbindung an das Stadtzentrum. Auch eine nahegelegene Busstation (10A/42A) als auch Straßenbahn (2/44) zählen zu der guten öffentlichen Anbindung unweit der Haustüre.

Preis:

Der lastenfreie Pauschal-Kaufpreis für diese Wohnung beträgt Euro 379.000.-

 

Vertragserrichtung: Mag. Georg Kampas (1,5 % zzgl. Barauslagen und 20 % USt.)

  • Sonstiges:
    • Die endgültige Wohnungsgröße kann noch leicht abweichen, da das Objekt derzeit noch nicht naturvermessen ist.
    • Betriebskosten: ca. € 2,50/m² (exkl. Reparaturrücklage und Aufzug).

 

Sollten Sie Fragen haben oder einen Besichtigungstermin wünschen, zögern Sie bitte nicht mich zu kontaktieren. (am besten via E-Mail Anfrage)

Zur Vereinbarung eines Besichtigungstermins lassen Sie uns bitte jedenfalls eine E-Mailanfrage zukommen!

Der IMMY ist die renommierteste Auszeichnung für Wiener Makler- und Verwalterbetriebe im Bereich Wohnimmobilien. Wir sind stolz den goldenen IMMY für das Jahr 2019 gewonnen zu haben!

Vielen Dank vor allem an unsere Kunden! Unser Unternehmen wurde auch zum Besten Start Up und in den Jahren 2015, 2018, 2019 und 2020 als Qualitätsmakler ausgezeichnet!

Bitte achten Sie darauf, dass Sie diese Immobilie, nach Ihrer Anfrage bei Adonia Immobilien, nicht auch bei einem anderen Immobilienmaklerbüro anfragen! Vielen Dank!

Nicht alle unsere Immobilien finden Sie auf den gängigen Plattformen. Wir freuen uns auf Ihren Besuch auf unserer Homepage unter adonia.at 

Wir weisen ausdrücklich auf unser wirtschaftliches Naheverhältnis mit dem Abgeber/ der Abgeberin hin!  Unsere gesetzlichen Pflichten als Doppelmakler werden dadurch jedoch nicht beeinträchtigt. Irrtum und Änderungen vorbehalten. 

Alle hier veröffentlichen Informationen basieren auf den uns von dem Abgeber/ der Abgeberin zur Verfügung gestellten Informationen und wurden nicht selbst erhoben.

Unsere Allgemeinen Geschäftsbedingungen können Sie sowohl in dem Ihnen zugesandten Expose einsehen als auch auf unserer Homepage. Wir weisen ausdrücklich darauf hin, dass diese AGBs Vertragsinhalt werden.

Der Schutz von personenbezogenen Daten ist uns wichtig und auch gesetzlich gefordert. Die Verarbeitung Ihrer personenbezogenen Daten erfolgt nach den datenschutzrechtlichen Bestimmungen. Auf unserer Homepage (unter Datenschutzinformation) finden Sie eine Übersicht die Sie über die wichtigsten Aspekte der Verarbeitung personenbezogener Daten informieren soll.

Wir weisen darauf hin, dass zwischen dem Vermittler und dem zu vermittelnden Dritten ein familiäres oder wirtschaftliches Naheverhältnis besteht.

Der Vermittler ist als Doppelmakler tätig.


Infrastruktur / Entfernungen

Gesundheit
Arzt <500m
Apotheke <500m
Klinik <1.000m
Krankenhaus <1.000m

Kinder & Schulen
Schule <500m
Kindergarten <500m
Universität <1.500m
Höhere Schule <1.500m

Nahversorgung
Supermarkt <500m
Bäckerei <500m
Einkaufszentrum <1.000m

Sonstige
Geldautomat <500m
Bank <500m
Post <500m
Polizei <500m

Verkehr
Bus <500m
U-Bahn <1.000m
Straßenbahn <500m
Bahnhof <1.000m
Autobahnanschluss <4.500m

Angaben Entfernung Luftlinie / Quelle: OpenStreetMap

Objekt ist für eine Wohngemeinschaft geeignet
Rollstuhlgerecht: JA
Barrierefrei: JA
Provision:


Alle Details anzeigen

KONTAKT






 

Lasse dich kostenlos vom Anbieter dieser Immobilie zurückrufen.







 


 
Adonia Realitätenvermittlung GmbH
Luca Schelodetz
Telefonnummer anzeigen Telefon Allgemein: +436649101540
 
Bitte dem Makler die FindMyHome.at - ID bekanntgeben: 5578343

Bewertungen dieses Anbieters
Qualitätsmakler
Qualitätsmakler:
2015, 2018, 2019, 2020, 2023, 2024,
Netiquette
Freundlichkeit

BEWERTUNGEN DIESES ANBIETERS

 
Qualit�tsmakler
Qualitätsmakler
2015, 2018, 2019, 2020, 22/23, 2024
Freundlichkeit
BESONDERS
FREUNDLICH
Netiquette
FINDMYHOME
NETIQUETTE
Auch du kannst bewerten! 7 Tage nach deiner Anfrage erhältst du dafür von uns ein Bewertungsmail.
Alle Infos zu unseren Auszeichnungen und dem FINDMYHOME.AT Qualitätsprogramm findest du hier: Übersicht anzeigen

FINANZIERUNG
?>

Du willst wissen, wie viel dein Umzug kosten wird?

Mach gleich den kostenlosen Preisvergleich und schau, welche seriösen Anbieter in deiner Region günstig deinen Umzug organisieren


ZUM UMZUGS-VERGLEICH
-->

MYHOME BLOG
SuchAgentin auf FindMyHome.at
Unterschiedlichen Rechtsthemen, köstliche Rezepte, neueste Design-Highlights, sowie aktuelle Technik-Tools für Ihr Eigenheim.


FINDMYHOME.AT SUCHAGENTIN
SuchAgentin auf FindMyHome.at
Hallo, soll ich dir ähnliche Immobilien kostenfrei per E-Mail schicken?


ÄHNLICHE IMMOBILIEN
Aehnliche Immobilie - Vorschaubild 1

GRAND GARDEN | NATUR GENIESSEN. STADT ERLEBEN. - Objektnr. 5429234

50,70 m² - 2.0 Zimmer
324600 €
PLZ: 1160

Mehr anzeigen

Aehnliche Immobilie - Vorschaubild 2

TOP SANIERTER ALTBAU | NAHE ZENTRUM | FREIFLÄCHEN |... - Objektnr. 5266322

53,35 m² - 2.0 Zimmer
329000 €
PLZ: 1160

Mehr anzeigen

Aehnliche Immobilie - Vorschaubild 3

Stadt erleben. Natur genießen: Ihr Eigenheim in Wien Ottakri... - Objektnr. 5575162

59,84 m² - 2.0 Zimmer
338700 €
PLZ: 1160

Mehr anzeigen

Durch die Nutzung unserer Seite erklären Sie sich mit der Verwendung von Cookies zur Verbesserung Ihres Online-Erlebnisses einverstanden. Detaillierte Informationen zu diesem und weiteren Themen erhalten Sie in unserer Datenschutzerklärung.