MEIN ERGEBNIS ANPASSEN

Erstbezug nach Kernsanierung I separat zugängliches Büro I Fußbodenheizung I Luftwärmepumpe inkl Kühlung I Schlüsselfertig - Objektnr. 5578062

  • Erstbezug nach Kernsanierung I separat zugängliches Büro I Fußbodenheizung I Luftwärmepumpe inkl Kühlung I Schlüsselfertig /  / 1170 Wien / Bild 0
  • Erstbezug nach Kernsanierung I separat zugängliches Büro I Fußbodenheizung I Luftwärmepumpe inkl Kühlung I Schlüsselfertig /  / 1170 Wien / Bild 1
  • Erstbezug nach Kernsanierung I separat zugängliches Büro I Fußbodenheizung I Luftwärmepumpe inkl Kühlung I Schlüsselfertig /  / 1170 Wien / Bild 2
1170
Ort
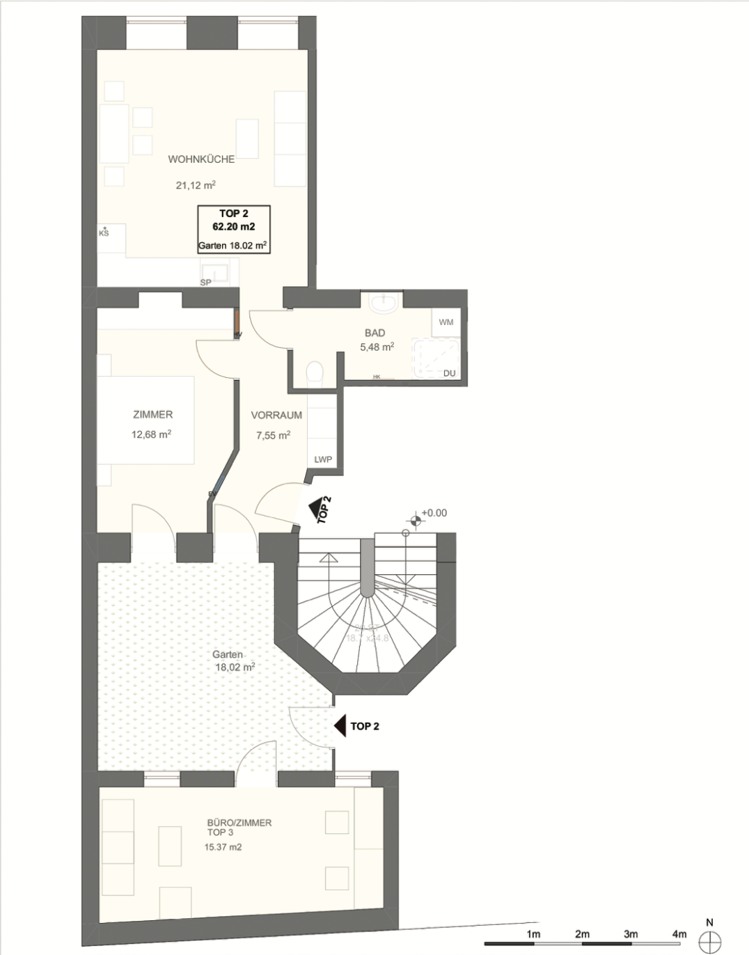
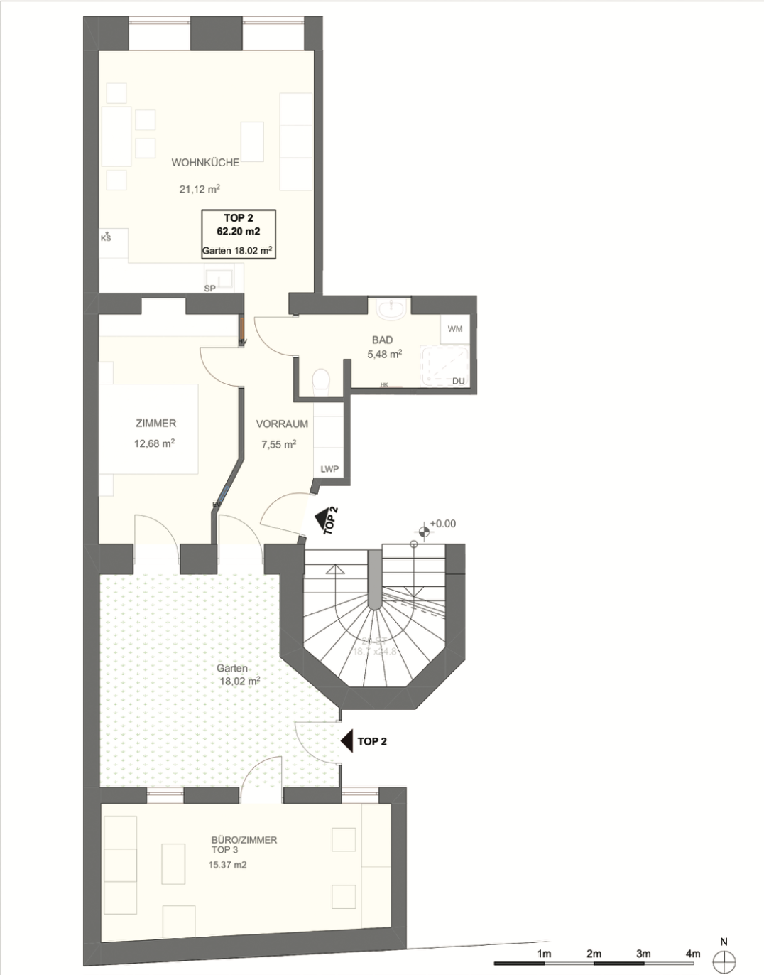
62,20 m²
Fläche
3
Zimmer

ECKDATEN
FindMyHome.at // Externe Immobilien-ID5578062 // 21960
ImmobilienartWohnung - Eigentum
Anschrift1170 Wien
Baujahr2025
HeizungFußbodenheizung
Liftja
BodenbelagParkett
Fläche62,20 m²
Gartenfläche18,02 m²
Zimmer3
Bad1
WC1
Kaufpreis:€ 415.280,00
Ratenzahlung:Finanzierungsmöglichkeiten für diese Immobilie anzeigen







BESCHREIBUNG

Erstbezug nach Kernsanierung I separat zugängliches Büro I Fußbodenheizung I Luftwärmepumpe inkl Kühlung I Schlüsselfertig

Diese kernsanierte 3-Zimmer-Wohnung mit etwa 62,20?m² Wohnfläche und einem großzügigen Garten von ca. 18,00?m² befindet sich im Erdgeschoss eines stilvoll revitalisierten Altbaus. Die Wohnung ist ruhig gelegen und überzeugt durch hochwertige Ausstattung und ein modernes Energiekonzept. Das Gartenzimmer ist getrennt begehbar und kann als Büro genutzt werden. Die Beheizung erfolgt mittels Fußbodenheizung, betrieben von einer hocheffizienten Luftwärmepumpe von Daikin , die für ein angenehmes Raumklima sorgt € energieeffizient und unabhängig von fossilen Brennstoffen. Das Badezimmer ist mit hochwertigen Sanitärkeramiken von Villeroy & Boch ausgestattet. Stilvolles Eichenholzparkett in Wohn- und Schlafbereich runden das attraktive Angebot ab. Die 3-Zimmer-Wohnung teilt sich wie folgt auf: Erdgeschoss: Vorraum ca. 7,55 m² Wohnküche ca. 21,22 m² Schlafzimmer ca. 12,68 m² Büro/Gartenzimmer ca 15,37 m² Bad + WC ca. 5,48 m² Garten ca. 18,00?m² Kostenübersicht: Verkaufspreis Wohnung: €?415.280,? Sonderwünsche können aktuell noch in gemeinsamer Absprache berücksichtigt werden. Baubeginn : 2024 Die Visualisierungen sind Symbolbilder. Infina, Österreichs beliebtester Wohnbau-Finanz-Experte, begleitet Sie ganzheitlich rund um Ihr Immobilienvorhaben. Unser Team von Immobilienexperten unterstützt Sie beim geplanten Kauf als auch bei einem möglichen Verkauf Ihrer bestehenden Immobilie. Zudem bieten unsere Finanzierungsexperten auf Wunsch maßgeschneiderte Finanzierungslösungen durch den Vergleich der besten Kredite von über 120 Banken in Österreich und Deutschland. Wir möchten Sie unabhängig, transparent und flexibel als starker Partner in allen Immobilienangelegenheiten unterstützen. Kontaktieren Sie uns für einen persönlichen Besichtigungstermin oder eine unverbindliche und kostenfreie Finanzierungsberatung. Was kann Infina noch für Sie tun? Wenn Sie eine Finanzierung für Ihre Traumimmobilie wünschen, begleiten wir Sie gerne von der strategischen Planung bis zur Realisierung und darüber hinaus. Wir sind Österreichs beliebtester Wohnbau-Finanz-Experte und unsere Mission lautet: Jeder Kunde hat das Recht auf den besten Kredit. Infina kooperiert mit über 120 Banken in Österreich und Deutschland Über 600 Kreditprodukte im Vergleich Über 100-mal vor Ort in ganz Österreich Ebenso unterstützen wir unsere Kunden beim Verkauf und der Vermietung Ihrer Immobilien sowie bei der Immobiliensuche durch unsere Immobilienexperten.
Wir weisen Sie darauf hin, dass die gemachten Angaben und Informationen lediglich unverbindliche Vorabinformationen sind und daher ohne Gewähr erfolgen. Der Vermittler ist als Doppelmakler tätig. Das Projekt liegt in einer begehrten Wohngegend des 17. Wiener Gemeindebezirks. Die exzellente Infrastruktur überzeugt mit vielfältigen Einkaufsmöglichkeiten, einer lebendigen Gastronomie- und Kulturszene sowie einer optimalen Anbindung durch die Straßenbahnlinien 2, 9, 43 und 44 sowie die schnell erreichbaren U-Bahnlinien U3 und U6. Nahgelegene Grünflächen wie der Hernalser Park oder der Schafbergbad Park bieten zudem entspannte Rückzugsorte im Grünen. Die Lage vereint urbanes Flair mit ruhiger Wohnqualität € perfekt für anspruchsvolle Stadtmenschen, die Wert auf Komfort, Lebensqualität und beste Erreichbarkeit legen.

Nahversorgung:
Billa Plus: ca. 400m,
Brunnenmarkt: ca. 5min mit dem Rad,

Straßenbahnlinien 2, 9, 43, 44: ca. 100m,
U3 Ottakring : ca. 6min mit dem Rad,
In Zukunft U5 Station Elterleinpaltz: ca. 850m,

Bildung:
Bundesschulen Kalvarienberg: ca. 750m,
GTVS Wichtelgasse : ca. 550m,
Universität auf der Schmelz: ca. 7min mit dem Rad,

Sport:
FitInn: ca. 700m
time out yoga: ca 250m







Barrierefrei: JA


Provision: 3,00 % des Kaufpreises zzgl. 20 % USt.


Alle Details anzeigen

KONTAKT






 

Lasse dich kostenlos vom Anbieter dieser Immobilie zurückrufen.







 


 
INFINA Credit Broker GmbH
Benjamin Bornschein
Telefonnummer anzeigen Handy Bearbeiter: +436644255264
 
Bitte dem Makler die FindMyHome.at - ID bekanntgeben: 5578062

Bewertungen dieses Anbieters
Netiquette

BEWERTUNGEN DIESES ANBIETERS

 
Netiquette
FINDMYHOME.AT
NETIQUETTE
Auch du kannst bewerten! 7 Tage nach deiner Anfrage erhältst du dafür von uns ein Bewertungsmail.
Alle Infos zu unseren Auszeichnungen und dem FINDMYHOME.AT Qualitätsprogramm findest du hier: Übersicht anzeigen

FINANZIERUNG
?>

Du willst wissen, wie viel dein Umzug kosten wird?

Mach gleich den kostenlosen Preisvergleich und schau, welche seriösen Anbieter in deiner Region günstig deinen Umzug organisieren


ZUM UMZUGS-VERGLEICH
-->

MYHOME BLOG
SuchAgentin auf FindMyHome.at
Unterschiedlichen Rechtsthemen, köstliche Rezepte, neueste Design-Highlights, sowie aktuelle Technik-Tools für Ihr Eigenheim.


FINDMYHOME.AT SUCHAGENTIN
SuchAgentin auf FindMyHome.at
Hallo, soll ich dir ähnliche Immobilien kostenfrei per E-Mail schicken?


ÄHNLICHE IMMOBILIEN
Aehnliche Immobilie - Vorschaubild 1

| 3 ZIMMER | NEUBAU | WÄRMPUMPE | - Objektnr. 5480289


66,18 m² - 3.0 Zimmer
479000 €
PLZ: 1170

Mehr anzeigen

Aehnliche Immobilie - Vorschaubild 2

| ALTHAUS-SANIERUNG | DG-AUSBAU | BELEBTE LAGE | - Objektnr. 5480293

61,56 m² - 3.0 Zimmer
387840 €
PLZ: 1170

Mehr anzeigen

Aehnliche Immobilie - Vorschaubild 3

Schöngeschnitten 63,51m² Altbauwohnung ? Schlüsselfertig &am... - Objektnr. 5549315

63,51 m² - 3.0 Zimmer
337900 €
PLZ: 1170

Mehr anzeigen

Durch die Nutzung unserer Seite erklären Sie sich mit der Verwendung von Cookies zur Verbesserung Ihres Online-Erlebnisses einverstanden. Detaillierte Informationen zu diesem und weiteren Themen erhalten Sie in unserer Datenschutzerklärung.