MEIN ERGEBNIS ANPASSEN

SONNENDURCHFLUTETE DACHGESCHOSS MAISONETTE MIT TERRASSE IM BEGEHRTEN 19. BEZIRK - PERFEKTE VERKEHRSANBINDUNG - Objektnr. 5578027

1190
Ort
106,88 m²
Fläche
4.0
Zimmer

ECKDATEN
FindMyHome.at // Externe Immobilien-ID5578027 // 4880
ImmobilienartWohnung - Eigentum
AnschriftGallmeyergasse
1190 Wien
Baujahr1982
Befeuerung
Fläche106,88 m²
Terrassen1 (15,00 m²)
Zimmer4.0
Bad1
WC2
Kaufpreis:€ 650.000,00
Ratenzahlung:Finanzierungsmöglichkeiten für diese Immobilie anzeigen
Provision:







BESCHREIBUNG

SONNENDURCHFLUTETE DACHGESCHOSS MAISONETTE MIT TERRASSE IM BEGEHRTEN 19. BEZIRK - PERFEKTE VERKEHRSANBINDUNG

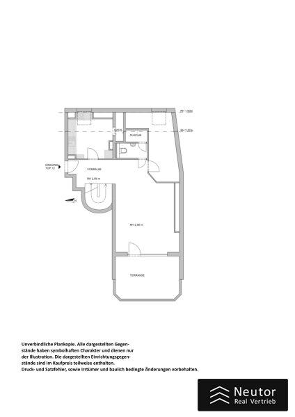
Zum Verkauf gelangt eine charmante 4 Zimmer Dachgeschoss Maisonette-Wohnung mit Terrasse und Garagenstellplatz im Herzen des 19. Wiener Gemeindebezirk, Nähe U4 Heiligenstadt.

Eckdaten:

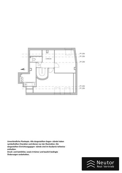
WFL: ca. 106,88 m²
Terrasse: ca. 15,38 m²
Zimmer: 4
Badezimmer: 2 eines mit Badewanne, eines mit Dusche  
Seperate WCs: 2, eines separat, eines im Badezimmer
Stockwerk: DG 1& DG 2
Lift: ja
Kellerabteil: ja, Nr. 8
Waschküche: ja
Trockenraum: ja
Garage: ja, Nr. 16

 

Beschreibung:

Diese außergewöhnliche Dachgeschoss-Maisonette verbindet modernen Wohnkomfort, stilvolle Architektur und lichtdurchflutete Räume zu einem harmonischen Gesamterlebnis. Beim Betreten der Wohnung empfängt Sie ein großzügiger Vorraum. Rechts führt eine elegante Treppe in das obere Geschoss, links befindet sich die voll ausgestattete Einbauküche mit hochwertigen Geräten sowie eine praktische, direkt angrenzende Speis, ideal für Hobbyköche und alle, die zusätzlichen Stauraum schätzen. Der weitläufige Wohn- und Essbereich bildet das Herzstück der Wohnung. Großzügige Fensterflächen lassen viel Tageslicht herein und schaffen eine warme, einladende Atmosphäre. Von hier gelangen Sie auf die westseitige Terrasse, die durch ihre Größe perfekt für gemütliche Stunden im Freien oder gesellige Abende mit Freunden und Familie ist. Ein weiteres Zimmer kann flexibel als Schlaf-, Arbeits- oder Gästezimmer genutzt werden. Das Dusch-WC rundet die untere Etage funktional ab. Über die Wendeltreppe erreichen Sie das obere Stockwerk, das ebenfalls durch Helligkeit und ein offenes Wohngefühl überzeugt. Ein zentral gelegenes Vorzimmer verbindet zwei gut geschnittene Zimmer, die sich als Schlafzimmer, Kinderzimmer oder Homeoffice eignen. Ein separates WC sowie ein modern gestaltetes Badezimmer mit Badewanne bieten zusätzlichen Komfort. Die gesamte Wohnung besticht durch ihre charmante Raumaufteilung, klare Linienführung und große Fenster, die zu jeder Tageszeit ein angenehmes Wohlfühlambiente schaffen. Eine eigener Garagenstellplatz sorgt für zusätzlichen Komfort und komplettiert dieses hochwertige Wohnangebot.

 

 

Kosten:

Kaufpreis: € 650.000,-
Garagenstellplatz Nr. 16: € 30.000,- verpflichtend zu erwerben 
Betriebskosten:  531,81 - € inkl. Rep-Rücklage, Garage, Lift und USt.
Heizkosten: 140,18 € - inkl. USt.
WW- Kosten: 92,88 € - inkl. USt.
Provision: 3% vom KP zzgl. gesetzt. USt.

 

Lage und Infrastruktur:

Im Herzen des 19. Wiener Gemeindebezirks vereint diese Wohnung urbanes Leben mit viel Grünflächen und gute Verkehrsanbindungen. Die Straßenbahnlinien 37, die in nur 5 Gehminuten erreichbar ist, und Linie D, die Sie in etwa 8 Minuten erreichen, beide ermöglichen eine flexible und schnelle Mobilität innerhalb Wiens. Ergänzt wird das Angebot durch den Bahnhof Heiligenstadt ist in nur etwa 13 Gehminuten erreichbar und bietet mit den Linien U4, S40, S45, 5B, 10A, 11A, 38, 39A, REX4, R40, 142 und 400 eine hervorragende Anbindung an die Innenstadt sowie an beliebte Ausflugsziele wie den Kahlenberg oder sogar nach Tschechien. Für die alltäglichen Besorgungen stehen Supermärkte, Bäckereien und Apotheken Fußläufig in nur 4-10 Gehminuten zur Verfügung. Für Freizeit und Erholung sorgen der Wertheimspark, der Sagatyapark sowie der Heiligenstädter Park, ideal für Spaziergänge, Sport oder entspannte Stunden im Grünen. An heißen Tagen bietet das nahegelegene Döblinger Bad eine Abkühlung. Diese Lage verbindet perfekte Infrastruktur, schnelle Erreichbarkeit und hohe Lebensqualität, ideal für alle, die das Beste aus Stadtleben und Natur genießen möchten.

 

Wir dürfen gem. § 5 Maklergesetz darauf hinweisen, dass wir als Doppelmakler tätig sind und ein wirtschaftliches/familiäres Naheverhältnis zu unseren Auftraggebern besteht. Das wirtschaftliche Naheverhältnis ergibt sich aus regelmäßiger geschäftlicher Verbindung. Irrtum vorbehalten. 

 

Die in diesem Dokument enthaltenen Texte, Visualisierungen und Staging-Darstellungen dienen ausschließlich der Illustration. Sie wurden teilweise mithilfe von KI erstellt und stellen keine verbindliche Aussage über Ausstattung, Zustand oder Bebaubarkeit dar.

Hinweis gemäß Energieausweisvorlagegesetz: Ein Energieausweis wurde vom Eigentümer bzw. Verkäufer, nach unserer Aufklärung über die generell geltende Vorlagepflicht, sowie Aufforderung zu seiner Erstellung noch nicht vorgelegt. Daher gilt zumindest eine dem Alter und der Art des Gebäudes entsprechende Gesamtenergieeffizienz als vereinbart. Wir übernehmen keinerlei Gewähr oder Haftung für die tatsächliche Energieeffizienz der angebotenen Immobilie.


Infrastruktur / Entfernungen

Gesundheit
Arzt <500m
Apotheke <500m
Klinik <750m
Krankenhaus <1.000m

Kinder & Schulen
Schule <500m
Kindergarten <500m
Universität <500m
Höhere Schule <750m

Nahversorgung
Supermarkt <250m
Bäckerei <750m
Einkaufszentrum <1.250m

Sonstige
Geldautomat <250m
Bank <250m
Post <750m
Polizei <500m

Verkehr
Bus <250m
U-Bahn <500m
Straßenbahn <250m
Bahnhof <750m
Autobahnanschluss <750m

Angaben Entfernung Luftlinie / Quelle: OpenStreetMap

Provision: 3% des Kaufpreises zzgl. 20% USt.


Alle Details anzeigen

KONTAKT






 

Lasse dich kostenlos vom Anbieter dieser Immobilie zurückrufen.







 


 
Neutor Real GmbH
Daniel Hausberger
Telefonnummer anzeigen Telefon Allgemein: +4315323730
Handy Bearbeiter: +436504440651
 
Bitte dem Makler die FindMyHome.at - ID bekanntgeben: 5578027

Bewertungen dieses Anbieters
Qualitätsmakler
Qualitätsmakler:
2025,
Netiquette
Freundlichkeit
82 %

BEWERTUNGEN DIESES ANBIETERS

 
Qualit�tsmakler
Qualitätsmakler
2025
Weiterempfehlung
WIRD GERNE

Freundlichkeit
BESONDERS
FREUNDLICH
Netiquette
FINDMYHOME
NETIQUETTE
Auch du kannst bewerten! 7 Tage nach deiner Anfrage erhältst du dafür von uns ein Bewertungsmail.
Alle Infos zu unseren Auszeichnungen und dem FINDMYHOME.AT Qualitätsprogramm findest du hier: Übersicht anzeigen

FINANZIERUNG
?>

Du willst wissen, wie viel dein Umzug kosten wird?

Mach gleich den kostenlosen Preisvergleich und schau, welche seriösen Anbieter in deiner Region günstig deinen Umzug organisieren


ZUM UMZUGS-VERGLEICH
-->

MYHOME BLOG
SuchAgentin auf FindMyHome.at
Unterschiedlichen Rechtsthemen, köstliche Rezepte, neueste Design-Highlights, sowie aktuelle Technik-Tools für Ihr Eigenheim.


FINDMYHOME.AT SUCHAGENTIN
SuchAgentin auf FindMyHome.at
Hallo, soll ich dir ähnliche Immobilien kostenfrei per E-Mail schicken?


ÄHNLICHE IMMOBILIEN
Aehnliche Immobilie - Vorschaubild 1

***NEU*** Fantastische 4 Zimmer Wohnung in repräsentativem S... - Objektnr. 5571613

112,43 m² - 4.0 Zimmer
599000 €
PLZ: 1190

Mehr anzeigen

Aehnliche Immobilie - Vorschaubild 2

* DREI ZIMMER * 1. OG * 1190 WIEN * UNBEFRISTET VERMIETET * ... - Objektnr. 4798875

86,59 m² - 3.0 Zimmer
525000 €
PLZ: 1190

Mehr anzeigen

Aehnliche Immobilie - Vorschaubild 3

Wohnateliers Döbling - luxuriös Wohnen - Objektnr. 5436718


120,92 m² - 3.0 Zimmer
725000 €
PLZ: 1190

Mehr anzeigen

Durch die Nutzung unserer Seite erklären Sie sich mit der Verwendung von Cookies zur Verbesserung Ihres Online-Erlebnisses einverstanden. Detaillierte Informationen zu diesem und weiteren Themen erhalten Sie in unserer Datenschutzerklärung.