MEIN ERGEBNIS ANPASSEN

Traumhaft wohnen nähe Hohe Wand! - Objektnr. 5577896


ökologisch beheizt
1140
Ort
114,00 m²
Fläche
4.0
Zimmer

ECKDATEN
FindMyHome.at // Externe Immobilien-ID5577896 // 5841
ImmobilienartHaus - Eigentum
Anschrift1140 Wien
Baujahr2023
Befeuerung
Luftwärmepumpe
Geschosse2
Fläche114,00 m²
Grundfläche634,00 m²
Terrassen3 (108,00 m²)
Zimmer4.0
Bad1
WC2
Kaufpreis:€ 870.000,00
Ratenzahlung:Finanzierungsmöglichkeiten für diese Immobilie anzeigen
Provision: 3% des Kaufpreises zzgl. 20% USt.







BESCHREIBUNG

Traumhaft wohnen nähe Hohe Wand!

Diese moderne, lichtdurchflutete Haushälfte vereint elegantes Design mit höchstem Wohnkomfort inmitten der Natur. Hier genießen Sie Lebensqualität auf höchstem Niveau die ruhige, grüne Umgebung bietet Ihnen und Ihrer Familie Erholung pur.

Die perfekte Raumaufteilung über zwei Ebenen:
Die großzügige Wohnfläche von ca. 110 m² verteilt sich harmonisch auf zwei Ebenen und wird durch eine beeindruckende Dachterrasse von 36,84 m² ergänzt.

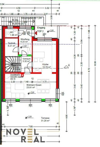
Erdgeschoss (60,51 m² + Terrasse 31,28 m²):

  • Wohnküche (42,83 m²): Der zentrale Treffpunkt des Hauses großzügig, hell und modern.
  • Vorraum (3,26 m²): Einladend und praktisch gestaltet.
  • Technikraum (6,21 m²): Perfekte Funktionalität für alle Haushaltsgeräte.
  • WC (1,98 m²): Zeitlos und elegant.
  • Windfang (6,23 m²): Ein angenehmer Übergang zwischen Innen- und Außenbereich.
  • Terrasse (31,28 m²): Viel Platz für entspannte Stunden im Freien.

Obergeschoss (53,49 m² + Balkone 20,31 m²):

  • Drei Schlafzimmer (12,07 m² | 12,07 m² | 11,47 m²): Alle mit direktem Balkonzugang für eine frische Brise am Morgen.
  • Bad/WC (12,86 m²): Ein Wellnessbereich mit Tageslicht.
  • Gang (5,02 m²): Verbindungselement mit Stil.
  • Zwei Balkone (4,79 m² | 15,05 m²): Ideale Orte für den ersten Kaffee oder den Blick ins Grüne.
  • Terrasse (19,43 m²): Ein weiteres Highlight für entspannte Stunden.

Dachterrasse (36,84 m²):
Hier erleben Sie exklusive Momente sei es bei Sonnenuntergängen, Grillabenden oder einfach beim Genießen der Ruhe.

Ausstattung:

  • Hochwertige Eichenparkettböden und exklusive Fliesen der Marke Schubertstone.
  • Gedämmte Fassade mit 16 cm Vollwärmeschutz ein Beitrag zur Energieeffizienz.
  • Balkone und Terrassen mit edlem Feinsteinzeug von Lederleitner.
  • Dreifach verglaste Fenster mit Raffstore oder Rollos für optimalen Komfort.
  • Edelstahl-Glasgeländer auf allen Balkonen und Terrassen, ergänzt durch eine stilvolle Treppe mit Edelstahl-Handlauf.
  • Energieeffiziente Luftwärmepumpe und Natursandsteinfliesen für ein nachhaltiges Wohnerlebnis.
  • Designküche von Faulmann & Faulmann, die keine Wünsche offenlässt.

Besonderheiten:
Zwei großzügige Tiefgaragenplätze (ca. 18 m²) runden das Angebot ab und bieten zusätzlichen Komfort.

LAGE & INFRASTRUKTUR

Die Lage der Immobilie nahe der Hoe Wand im 14. Wiener Gemeindebezirk (1140 Wien), ist äußerst attraktiv. Die Umgebung zeichnet sich durch eine gute Infrastruktur, vielfältige Einkaufsmöglichkeiten und hervorragende Verkehrsanbindungen aus.

Einkaufsmöglichkeiten:
Für die Nahversorgung stehen Ihnen in unmittelbarer Nähe mehrere Supermärkte zur Verfügung. Innerhalb von nur 5 Minuten erreichen Sie sowohl eine BILLA als auch einen SPAR. Zusätzlich bietet das nahegelegene Auhof Center eine große Auswahl an Geschäften, Restaurants und Freizeitmöglichkeiten ideal für größere Shoppingtouren und entspannte Ausflüge.

Öffentlicher Verkehr:
Die Anbindung an den öffentlichen Verkehr ist ausgezeichnet. Zwei Buslinien, die Linie 450 und 52B, verbinden die Immobilie direkt mit der U4-Endstation Hütteldorf. Hier gelangen Sie schnell und bequem ins Stadtzentrum.

Auch der Bahnhof Wien Hadersdorf liegt in der Nähe. Dieser bietet Anschluss an die Regionalbahnlinien R, S50 und S80, die eine schnelle und einfache Verbindung sowohl ins Wiener Zentrum als auch in umliegende Regionen ermöglichen.

Mit dieser Kombination aus urbaner Infrastruktur, hervorragender öffentlicher Verkehrsanbindung und Freizeitmöglichkeiten stellt die Lage eine ideale Mischung dar.

Lebensqualität in Bestlage:
Inmitten des 14. Bezirks wohnen Sie in einer absoluten Grünruhelage eine seltene und begehrte Kombination, die ein einzigartiges Wohngefühl vermittelt. Perfekt für Familien, Naturfreunde und alle, die eine Oase der Ruhe suchen.

Ein Zuhause, das Träume erfüllt. Vereinbaren Sie noch heute eine Besichtigung und lassen Sie sich begeistern!

Für die Vereinbarung eines Termins kontaktieren Sie Herr Mag. Michael Hofer telefonisch unter +43 680 111 7660 oder per E-Mail: mh@novel-real.at.

 

Alle Angaben basieren alleinig auf Informationen, die uns von unserem Auftraggeber übermittelt wurden. Trotz aller Sorgfalt können wir für die Richtigkeit, Vollständigkeit und Aktualität dieser Angaben keine Gewähr übernehmen. Jegliche Weitergabe der übermittelten Daten an Dritte ist nicht gestattet. Der Maklervertrag kommt durch schriftliche Vereinbarung oder Inanspruchnahme unserer Maklertätigkeit zustande. Der Makler kann als Doppelmakler tätig werden. Sollte das von uns nachgewiesene Objekt bereits bekannt sein, teilen sie uns dies bitte unverzüglich mit.

Die Maklergebühr ist ausschließlich bei Zustandekommen eines gültigen Rechtsgeschäfts fällig und vom Mieter an Novel Real Immobilien GmbH zu zahlen. Es wird ausdrücklich auf die Nebenkostenübersicht hingewiesen. Bei den Visualisierungen und Abbildungen der Immobilie (insbesondere von Inneneinrichtungen) kann es sich um Symbolfotos bzw. fototechnisch optimierte Fotos handeln.

Hiermit weisen wir auf das Bestehen eines familiären und/oder wirtschaftlichen Naheverhältnisses zum Vermieter hin.

 


Infrastruktur / Entfernungen

Gesundheit
Arzt <1.000m
Klinik <7.000m
Apotheke <1.000m
Krankenhaus <6.000m

Kinder & Schulen
Schule <2.500m
Kindergarten <2.500m
Universität <3.500m
Höhere Schule <9.500m

Nahversorgung
Supermarkt <2.000m
Bäckerei <2.500m
Einkaufszentrum <3.000m

Sonstige
Geldautomat <2.500m
Bank <2.500m
Post <2.500m
Polizei <1.000m

Verkehr
Bus <500m
Straßenbahn <5.000m
U-Bahn <5.500m
Bahnhof <2.500m
Autobahnanschluss <3.500m

Angaben Entfernung Luftlinie / Quelle: OpenStreetMap

Provision: 3% des Kaufpreises zzgl. 20% USt.


Alle Details anzeigen

KONTAKT






 

Lasse dich kostenlos vom Anbieter dieser Immobilie zurückrufen.







 


 
Novel Real Immobilien GmbH
Michael Hofer
Telefonnummer anzeigen Telefon Allgemein: +4313614014
Handy Bearbeiter: +436801117660
 
Bitte dem Makler die FindMyHome.at - ID bekanntgeben: 5577896

Bewertungen dieses Anbieters
Qualitätsmakler
Qualitätsmakler:
2019,
Netiquette
Freundlichkeit
81 %

BEWERTUNGEN DIESES ANBIETERS

 
Qualit�tsmakler
Qualitätsmakler
2019
Antwortzeit
ø 48h ANTWORT
Weiterempfehlung
WIRD GERNE

Freundlichkeit
BESONDERS
FREUNDLICH
Netiquette
FINDMYHOME
NETIQUETTE
Auch du kannst bewerten! 7 Tage nach deiner Anfrage erhältst du dafür von uns ein Bewertungsmail.
Alle Infos zu unseren Auszeichnungen und dem FINDMYHOME.AT Qualitätsprogramm findest du hier: Übersicht anzeigen

FINANZIERUNG
?>

Du willst wissen, wie viel dein Umzug kosten wird?

Mach gleich den kostenlosen Preisvergleich und schau, welche seriösen Anbieter in deiner Region günstig deinen Umzug organisieren


ZUM UMZUGS-VERGLEICH
-->

MYHOME BLOG
SuchAgentin auf FindMyHome.at
Unterschiedlichen Rechtsthemen, köstliche Rezepte, neueste Design-Highlights, sowie aktuelle Technik-Tools für Ihr Eigenheim.


FINDMYHOME.AT SUCHAGENTIN
SuchAgentin auf FindMyHome.at
Hallo, soll ich dir ähnliche Immobilien kostenfrei per E-Mail schicken?


ÄHNLICHE IMMOBILIEN
Aehnliche Immobilie - Vorschaubild 1

Rarität! Liegenschaft mit renovierungsbedürftigem Haus in Tr... - Objektnr. 5545063

114,00 m² - 5.0 Zimmer
980000 €
PLZ: 1140

Mehr anzeigen

Aehnliche Immobilie - Vorschaubild 2

"RESERVIERT" SONNIGES ECKREIHENHAUS IN HERRLICHER... - Objektnr. 5425141

118,00 m² - 5.0 Zimmer
750000 €
PLZ: 1140

Mehr anzeigen

Aehnliche Immobilie - Vorschaubild 3

Zwischen Hanusch-Krankenhaus und Flötzersteig gelegenes, gep... - Objektnr. 5557985

117,00 m² - 5.0 Zimmer
950000 €
PLZ: 1140

Mehr anzeigen

Durch die Nutzung unserer Seite erklären Sie sich mit der Verwendung von Cookies zur Verbesserung Ihres Online-Erlebnisses einverstanden. Detaillierte Informationen zu diesem und weiteren Themen erhalten Sie in unserer Datenschutzerklärung.