MEIN ERGEBNIS ANPASSEN

Smartes 1-Zimmer-Apartment in Top-Lage des 16. Bezirks - Objektnr. 5577675

1160
Ort
34,56 m²
Fläche
1.0
Zimmer

ECKDATEN
FindMyHome.at // Externe Immobilien-ID5577675 // 19897
ImmobilienartWohnung - Eigentum
AnschriftHaberlgasse/35
1160 Wien
Baujahr1905
Stock3
Geschosse5
Fläche34,56 m²
Zimmer1.0
Bad1
WC1
Kaufpreis:€ 155.000,00
Ratenzahlung:Finanzierungsmöglichkeiten für diese Immobilie anzeigen
Provision: 3% des Kaufpreises zzgl. 20% USt.







BESCHREIBUNG

Smartes 1-Zimmer-Apartment in Top-Lage des 16. Bezirks

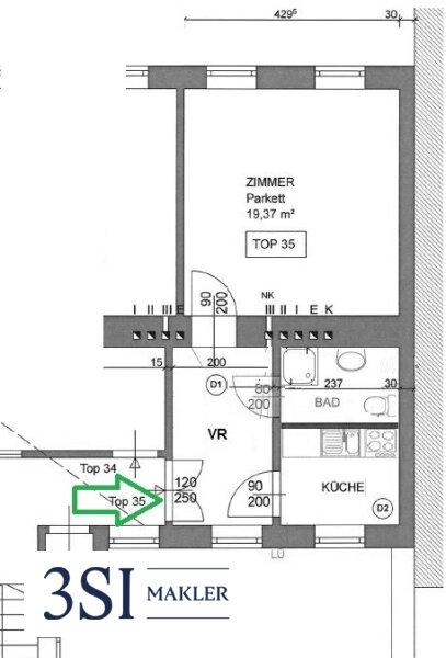
Top 35 im 3. OG

Die Wohnung

Diese helle und voll möblierte 1-Zimmer-Wohnung mit einer Wohnfläche von ca. 35 m² besticht durch Ihre ruhige und zentrale Lage und eignet sich optimal als kleine Starter- oder Pendler Wohnung.

Raumaufteilung:

  • Vorraum mit Küche
  • Badezimmer mit Dusche und Toilette
  • Großzügiger Wohn- / Schlafraum

Haus- & Lagebeschreibung

Bei dieser Liegenschaft handelt es sich um einen Stilaltbau aus der Jahrhundertwende mit glatter Fassade und einladendem Entree. Die Nähe zur Lugner City und den Brunnen-Markt bietet eine sehr gute Nahversorgung mit sämtlichen Notwendigkeiten des täglichen Bedarfs sowie eine ausgezeichnete Anbindung an das öffentliche Verkehrsnetz, u.a. durch die U6-Station Thaliastrasse und diverse Straßenbahn- und Buslinien (u.a. 48A,9). Unweit der Liegenschaft befindet sich der Vogelweidpark für erholsame Momente im Grünen.

 

Nebenkosten

Der guten Ordnung halber halten wir fest, dass, sofern im Angebot nicht anders vermerkt, bei erfolgreichem Abschlussfall eine Provision anfällt, die den in der Immobilienmaklerverordnung BGBI. 262 und 297/1996 festgelegten Sätzen entspricht das sind 3 % des Kaufpreises zzgl. 20 % USt. Diese Provisionspflicht besteht auch dann, wenn Sie die Ihnen überlassenen Informationen an Dritte weitergeben. Letztlich weisen wir darauf hin, dass wir als Doppelmakler tätig sind und ein familiäres/wirtschaftliches Naheverhältnis zwischen der 3SI Makler GmbH und der Verkäuferin besteht.

Die Vertragserrichtung und Treuhandabwicklung ist gebunden an die Kanzlei 02 - Herrn Mag. Alexander Engel / A-1010 Wien, Fichtegasse 2A (1. Stock). Die Kosten betragen 1,5% + 20% Ust + Barauslagen.

Sämtliche Ihnen hiermit übermittelte Angaben wurden uns, seitens des Abgebers bekannt gegeben. Eine Garantie auf Richtigkeit und Vollständigkeit können wir nicht übernehmen.

 

Wir weisen darauf hin, dass zwischen dem Vermittler und dem zu vermittelnden Dritten ein familiäres oder wirtschaftliches Naheverhältnis besteht.

Der Vermittler ist als Doppelmakler tätig.


Infrastruktur / Entfernungen

Gesundheit
Arzt <250m
Apotheke <250m
Klinik <750m
Krankenhaus <1.750m

Kinder & Schulen
Schule <250m
Kindergarten <250m
Universität <1.000m
Höhere Schule <1.000m

Nahversorgung
Supermarkt <250m
Bäckerei <250m
Einkaufszentrum <750m

Sonstige
Geldautomat <250m
Bank <500m
Post <500m
Polizei <500m

Verkehr
Bus <250m
U-Bahn <750m
Straßenbahn <250m
Bahnhof <750m
Autobahnanschluss <4.500m

Angaben Entfernung Luftlinie / Quelle: OpenStreetMap

Kabel/SAT/TV: JA
Provision: 3% des Kaufpreises zzgl. 20% USt.


Alle Details anzeigen

KONTAKT






 

Lasse dich kostenlos vom Anbieter dieser Immobilie zurückrufen.







 


 
3SI Makler GmbH
Michelle Heindl
Telefonnummer anzeigen Telefon Allgemein: +431607585881
Handy Bearbeiter: +436608706257
 
Bitte dem Makler die FindMyHome.at - ID bekanntgeben: 5577675

Bewertungen dieses Anbieters
Qualitätsmakler
Qualitätsmakler:
2013, 2014, 2016, 2018, 2019,
Netiquette
Freundlichkeit

BEWERTUNGEN DIESES ANBIETERS

 
Qualitätsmakler
UNSERE HALL OF FAME DER BESTEN ANBIETER
Qualit�tsmakler
Qualitätsmakler
2013, 2014, 2016, 2018, 2019
Freundlichkeit
BESONDERS
FREUNDLICH
Netiquette
FINDMYHOME
NETIQUETTE
Auch du kannst bewerten! 7 Tage nach deiner Anfrage erhältst du dafür von uns ein Bewertungsmail.
Alle Infos zu unseren Auszeichnungen und dem FINDMYHOME.AT Qualitätsprogramm findest du hier: Übersicht anzeigen

FINANZIERUNG
?>

Du willst wissen, wie viel dein Umzug kosten wird?

Mach gleich den kostenlosen Preisvergleich und schau, welche seriösen Anbieter in deiner Region günstig deinen Umzug organisieren


ZUM UMZUGS-VERGLEICH
-->

MYHOME BLOG
SuchAgentin auf FindMyHome.at
Unterschiedlichen Rechtsthemen, köstliche Rezepte, neueste Design-Highlights, sowie aktuelle Technik-Tools für Ihr Eigenheim.


FINDMYHOME.AT SUCHAGENTIN
SuchAgentin auf FindMyHome.at
Hallo, soll ich dir ähnliche Immobilien kostenfrei per E-Mail schicken?


ÄHNLICHE IMMOBILIEN
Aehnliche Immobilie - Vorschaubild 1

| WOHNUNGEN MIT VIEL POTENTIAL | U-BAHN NÄHE | ALTBAU |... - Objektnr. 5534722

29,23 m² - 1.0 Zimmer
133000 €
PLZ: 1160

Mehr anzeigen

Aehnliche Immobilie - Vorschaubild 2

Hofseitige, möblierte 2-Zimmerwohnung - Objektnr. 5539658


40,00 m² - 2.5 Zimmer
176000 €
PLZ: 1160

Mehr anzeigen

Aehnliche Immobilie - Vorschaubild 3

Möblierte 2-Zimmer Wohnung, Nähe Ottakring - Objektnr. 5532122


37,19 m² - 2.0 Zimmer
170000 €
PLZ: 1160

Mehr anzeigen

Durch die Nutzung unserer Seite erklären Sie sich mit der Verwendung von Cookies zur Verbesserung Ihres Online-Erlebnisses einverstanden. Detaillierte Informationen zu diesem und weiteren Themen erhalten Sie in unserer Datenschutzerklärung.