MEIN ERGEBNIS ANPASSEN

Zwei Zimmer Apartment in Simmering! U3 - Objektnr. 5577494

1110
Ort
68,00 m²
Fläche
2.0
Zimmer

ECKDATEN
FindMyHome.at // Externe Immobilien-ID5577494 // 1760/673
ImmobilienartWohnung - Eigentum
Anschrift1110 Wien
Baujahr1907
Stock1
Fläche68,00 m²
Zimmer2.0
Kaufpreis:€ 250.000,00
Ratenzahlung:Finanzierungsmöglichkeiten für diese Immobilie anzeigen
Provision: 3% des Kaufpreises zzgl. 20% USt.







BESCHREIBUNG

Zwei Zimmer Apartment in Simmering! U3

U3 Anbindung Enkplatz - Zentrum Simmering

Ich freue mich auf Ihren Anruf
Paul Kleindl, 0699 1188 7600

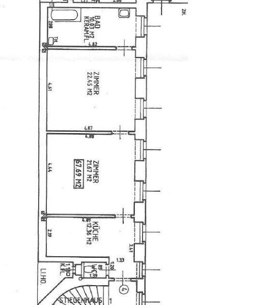
Zum Verkauf steht eine möblierte 2 Zimmer Altbauwohnung im ersten Stock.

Die vollausgestattete, gepflegte Küche beinhaltet alle Küchengeräte (inkl. Geschirrspüler) für die alltägliche Benutzung.

Das geräumige, lichtdurchflutete Wohnzimmer ist mit einem Esstisch, einem Kleiderschrank, einem TV, sowie einem Bett ausgestattet. Im angrenzenden, ebenfalls sehr weitläufigen, hellen Schlafzimmer, befinden sich aktuell eine Schlafcouch, sowie ein weiteres Doppelbett. Aktuell bietet die Wohnung Schlafgelegenheiten für bis zu 6 Personen.

Zuletzt gelangt man in das  Badezimmer mit Wanne, Handwaschbecken, WC und sehr gut erhaltener Waschmaschine. 

Die Wohnräume, sowie das Badezimmer sind komplett in den ruhigen Innenhof ausgerichtet, wodurch Sie in dieser hellen Wohnung, trotz der belebten Lage und optimalen Infrastruktur, eine absolute Ruhe genießen können.

Die Aufteilung ist wie folgt:

  • Vorraum
  • Gäste Toilette
  • Küche
  • Wohnzimmer
  • Schlafzimmer
  • Badezimmer mit Toilette

Die Wohnung wurde bis dato als Apartment genutzt und ist daher komplett eingerichtet und sofort beziehbar

Die Nähe zur U3, und somit die rasche und bequeme Anbindung in die Wiener Innenstadt, macht das Objekt auch für Anleger spannend.

HWB: 141

Die Lage

Das Altbaugebäude aus der Jahrhundertwende verfügt über eine Stiege und einen kleinen Innenhof. Diese ideale Lage am östlichen Stadtrand von Wien bietet umfassende Einkaufsmöglichkeiten in Einkaufszentren ebenso wie zahlreiche Restaurants, Kindergärten und Schulen sämtlicher Schulstufen sowie durch die Nähe zum Herderpark. Die Nähe zur Innenstadt, macht die Lage ebenso interessant wie die ausgezeichnete öffentliche Verkehrsanbindung- so sind die Stationen der Buslinie 15A, 76A sowie die U-Bahnlinie U3 bequem zu Fuß erreichbar. Der Flughafen Wien-Schwechat ist ebenso in wenigen Minuten erreichbar.

 

Nebenkosten

Der guten Ordnung halber halten wir fest, dass, sofern im Angebot nicht anders vermerkt, bei erfolgreichem Abschlussfall eine Provision anfällt, die den in der Immobilienmaklerverordnung BGBI. 262 und 297/1996 festgelegten Sätzen entspricht das sind 3 % des Kaufpreises zzgl. 20 % USt. Diese Provisionspflicht besteht auch dann, wenn Sie die Ihnen überlassenen Informationen an Dritte weitergeben. Letztlich weisen wir darauf hin, dass wir als Doppelmakler tätig sind und ein familiäres/wirtschaftliches Naheverhältnis mit  der Verkäuferin besteht.

Die Vertragserrichtung und treuhändige Kaufpreisverwaltung ist an das Notariat Schreiber in 1010 Wien, gebunden. Das Honorar beträgt netto 1,5 % vom Kaufpreis zzgl. USt und Barauslagen.

 

Wir weisen darauf hin, dass zwischen dem Vermittler und dem zu vermittelnden Dritten ein familiäres oder wirtschaftliches Naheverhältnis besteht.

Der Vermittler ist als Doppelmakler tätig.

Kabel/SAT/TV: JA
Provision: 3% des Kaufpreises zzgl. 20% USt.


Alle Details anzeigen

KONTAKT






 

Lasse dich kostenlos vom Anbieter dieser Immobilie zurückrufen.







 


 
Lind Immobilien
Paul Kleindl
Telefonnummer anzeigen Telefon Allgemein: +431526263614
Handy Bearbeiter: +4369911887600
 
Bitte dem Makler die FindMyHome.at - ID bekanntgeben: 5577494

Bewertungen dieses Anbieters
Netiquette
Freundlichkeit

BEWERTUNGEN DIESES ANBIETERS

 
Freundlichkeit
BESONDERS
FREUNDLICH
Netiquette
FINDMYHOME
NETIQUETTE
Auch du kannst bewerten! 7 Tage nach deiner Anfrage erhältst du dafür von uns ein Bewertungsmail.
Alle Infos zu unseren Auszeichnungen und dem FINDMYHOME.AT Qualitätsprogramm findest du hier: Übersicht anzeigen

FINANZIERUNG
?>

Du willst wissen, wie viel dein Umzug kosten wird?

Mach gleich den kostenlosen Preisvergleich und schau, welche seriösen Anbieter in deiner Region günstig deinen Umzug organisieren


ZUM UMZUGS-VERGLEICH
-->

MYHOME BLOG
SuchAgentin auf FindMyHome.at
Unterschiedlichen Rechtsthemen, köstliche Rezepte, neueste Design-Highlights, sowie aktuelle Technik-Tools für Ihr Eigenheim.


FINDMYHOME.AT SUCHAGENTIN
SuchAgentin auf FindMyHome.at
Hallo, soll ich dir ähnliche Immobilien kostenfrei per E-Mail schicken?


ÄHNLICHE IMMOBILIEN
Aehnliche Immobilie - Vorschaubild 1

3 Zimmer Gartenwohnung in Top-Lage bei U3 Simmering... - Objektnr. 5524149

61,00 m² - 3.0 Zimmer
289000 €
PLZ: 1110

Mehr anzeigen

Aehnliche Immobilie - Vorschaubild 2

Fernblick | Schneller zu Flughafen + Innenstadt geht nicht... - Objektnr. 5645663

59,00 m² - 2.0 Zimmer
220000 €
PLZ: 1110

Mehr anzeigen

Aehnliche Immobilie - Vorschaubild 3

Zentralstes Simmeringer 2 Zi-DG - Objektnr. 5655041


63,00 m² - 2.0 Zimmer
225000 €
PLZ: 1110

Mehr anzeigen

Durch die Nutzung unserer Seite erklären Sie sich mit der Verwendung von Cookies zur Verbesserung Ihres Online-Erlebnisses einverstanden. Detaillierte Informationen zu diesem und weiteren Themen erhalten Sie in unserer Datenschutzerklärung.