MEIN ERGEBNIS ANPASSEN

ZWEITBEZUG: 3-Zimmer-Wohnung mit Loggia in der Varnhagengasse - Objektnr. 5577432


ökologisch beheizt
1220
Ort
€ 1.064,28
Gesamtkosten
50,58 m²
Fläche
3.0
Zimmer

ECKDATEN
FindMyHome.at // Externe Immobilien-ID5577432 // 3865
ImmobilienartWohnung - Miete
AnschriftVarnhagengasse
1220 Wien
Baujahr2024
Befeuerung
Luftwärmepumpe
Beziehbar ab2026-03-01
Mietdauer3
Terrassen1 (3,00 m²)
Zimmer3.0
Bad1
WC1
Kaution:€ 3.000,00
Brutto-Miete:€ 1.064,28
Betriebskosten (inkl. MwSt):€ 165,00
Mehrwertsteuer:€ 96,75
Monatliche Gesamtkosten:€ 1.064,28
Provision: Gemäß Erstauftraggeberprinzip bezahlt der Abgeber die Provision.




BESCHREIBUNG

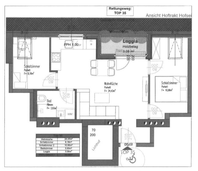
ZWEITBEZUG: 3-Zimmer-Wohnung mit Loggia in der Varnhagengasse

Zur Vermietung gelangt hier eine 3-Zimmer-Wohnung mit Loggia im Dachgeschoss zum Zweitbezug!

 

Beschreibung:

Die Wohnung wird ab März 2026 befristet vermietet und befindet sich in einer neu sanierten Wohnhausanlage im 22. Bezirk mit Dachgeschossausbau.

Die Wohnung hat knappe 51 m2 inkl. einer Loggia. Die drei Räume (Wohnzimmer und die zwei Schlafzimmer) sind mit Parkettböden verlegt. Es erwartet Sie eine neuwertige Küche mit Kühlschrank, Gefrierschrank, Geschirrspüler, Abwasch und Herd mit einer Arbeitsplatte etc. Das Badezimmer ist mit einer Dusche, Waschbecken, Spiegel, WC und einem Waschmaschinenanschluss ausgestattet. Abgesichert sind Sie durch die Sicherheitstür zur Wohnung.

Die Beheizung der Wohnung erfolgt über eine Wärmepumpe (Fußbodenheizung). 

 

 

Ein Aufzug ist vorhanden.

 

 

Ausstattung:

Parkettböden in den Wohnräumen, elektrische Außenjalousien, Internet- und Kabel-Anschlüsse, Gegensprechanlage, Zentral-Fußbodenheizung; Sicherheitstür

 

Lage:

Die Wohnung befindet sich nahe  Erzherzog-Karl-Straße (Bahnhof) mit den Linien: S80, R81. Eine Anbindung haben Sie auch unmittelbar in ca. 100m von der Konstanzigasse mit der Straßenbahnlinie: 25 bzw. den Buslinien: 86a, 87a, 95a, 96a, N26

 

 

Konditionen:

Kündigungsverzicht: 1 JahrKündigungsfrist: 3 Monate;

Gesamtmiete (inkl. Betriebskosten, sowie Steuern und Abgaben): € 1.064,28

Kaution: 3.000,-

Mietvertragserrichtung: € 360,- (einmalig zu entrichten)

provisionsfrei für den/die Mieter*in!

 

Heizung & Strom werden auf den/die Mieter*in umgemeldet.

TV und Internet sind nach Bedarf selbst an- und wieder abzumelden.

Ein Abschluss einer Haushaltsversicherung wird vor dem Einzug empfohlen.

 

 

Kontakt

Bitte beachten Sie, dass wir aufgrund der Nachweispflicht gegenüber dem Eigentümer nur Anfragen mit vollständiger Angabe der Anschrift bearbeiten können. 

Wir senden Ihnen gerne weitere und detaillierte Beschreibungen, sowie Besichtigungstermine zu, sobald wir Ihre Anfrage erhalten haben.

Wir bitten Sie daher um eine E-Mail-Anfrage an:

Noch nichts gefunden Wir informieren Sie über geeignete Immobilienangebote noch vor allen anderen.
Legen Sie jetzt Ihren individuellen Suchagenten unter folgendem Link an. Wir schicken Ihnen passende Immobilien exklusiv vorab zu.
Suchagent anlegen - https://pr-immobilien-real-estate.service.immo/registrieren/de

Hinweis gemäß Energieausweisvorlagegesetz: Ein Energieausweis wurde vom Eigentümer bzw. Verkäufer, nach unserer Aufklärung über die generell geltende Vorlagepflicht, sowie Aufforderung zu seiner Erstellung noch nicht vorgelegt. Daher gilt zumindest eine dem Alter und der Art des Gebäudes entsprechende Gesamtenergieeffizienz als vereinbart. Wir übernehmen keinerlei Gewähr oder Haftung für die tatsächliche Energieeffizienz der angebotenen Immobilie.

Der Immobilienmakler erklärt, dass er entgegen dem in der Immobilienwirtschaft üblichen Geschäftsgebrauch des Doppelmaklers einseitig nur für den Vermieter tätig ist.


Infrastruktur / Entfernungen

Gesundheit
Arzt <250m
Apotheke <500m
Klinik <500m
Krankenhaus <1.250m

Kinder & Schulen
Schule <250m
Kindergarten <500m
Universität <3.250m
Höhere Schule <2.750m

Nahversorgung
Supermarkt <250m
Bäckerei <250m
Einkaufszentrum <1.000m

Sonstige
Geldautomat <500m
Bank <500m
Post <500m
Polizei <750m

Verkehr
Bus <250m
U-Bahn <750m
Straßenbahn <250m
Bahnhof <500m
Autobahnanschluss <500m

Angaben Entfernung Luftlinie / Quelle: OpenStreetMap

Klimaanlage: JA
Kabel/SAT/TV: JA
Provision: Gemäß Erstauftraggeberprinzip bezahlt der Abgeber die Provision.


Alle Details anzeigen

KONTAKT






 

Lasse dich kostenlos vom Anbieter dieser Immobilie zurückrufen.







 


 
PR-IMMOBILIEN / REAL ESTATE
Marissa Stifter
Telefonnummer anzeigen Telefon Allgemein: +436765900280
Handy Bearbeiter: +436765900280
 
Bitte dem Makler die FindMyHome.at - ID bekanntgeben: 5577432

Bewertungen dieses Anbieters
Netiquette
Freundlichkeit
80 %

BEWERTUNGEN DIESES ANBIETERS

 
Antwortzeit
ø 48h ANTWORT
Weiterempfehlung
WIRD GERNE

Freundlichkeit
BESONDERS
FREUNDLICH
Netiquette
FINDMYHOME
NETIQUETTE
Auch du kannst bewerten! 7 Tage nach deiner Anfrage erhältst du dafür von uns ein Bewertungsmail.
Alle Infos zu unseren Auszeichnungen und dem FINDMYHOME.AT Qualitätsprogramm findest du hier: Übersicht anzeigen


Du willst wissen, wie viel dein Umzug kosten wird?

Mach gleich den kostenlosen Preisvergleich und schau, welche seriösen Anbieter in deiner Region günstig deinen Umzug organisieren


ZUM UMZUGS-VERGLEICH
-->

MYHOME BLOG
SuchAgentin auf FindMyHome.at
Unterschiedlichen Rechtsthemen, köstliche Rezepte, neueste Design-Highlights, sowie aktuelle Technik-Tools für Ihr Eigenheim.


FINDMYHOME.AT SUCHAGENTIN
SuchAgentin auf FindMyHome.at
Hallo, soll ich dir ähnliche Immobilien kostenfrei per E-Mail schicken?


ÄHNLICHE IMMOBILIEN
Aehnliche Immobilie - Vorschaubild 1

| AB MÄRZ | 3 ZIMMER | MIT TERRASSE | KAGRANER PLATZ | NEUBA... - Objektnr. 5591183

61,10 m² - 3.0 Zimmer
1189 €
PLZ: 1220

Mehr anzeigen

Aehnliche Immobilie - Vorschaubild 2

AB APRIL | 2-ZIMMER | MIT GARTEN | HOFSEITIG | AN DER ALTEN ... - Objektnr. 5591310

42,86 m² - 2.0 Zimmer
1073.5 €
PLZ: 1220

Mehr anzeigen

Aehnliche Immobilie - Vorschaubild 3

1220 Wien Moderne, helle 2-Zimmer Mietwohnung mit Loggia/Bal... - Objektnr. 5573763

49,57 m² - 2.0 Zimmer
942.7 €
PLZ: 1220

Mehr anzeigen

Durch die Nutzung unserer Seite erklären Sie sich mit der Verwendung von Cookies zur Verbesserung Ihres Online-Erlebnisses einverstanden. Detaillierte Informationen zu diesem und weiteren Themen erhalten Sie in unserer Datenschutzerklärung.