MEIN ERGEBNIS ANPASSEN

Großzügige 2-Zimmer-Wohnung mit loftartiger Wohnküche und durchdachtem Wohnkonzept - Objektnr. 5577342

1030
Ort
69,76 m²
Fläche
2.0
Zimmer

ECKDATEN
FindMyHome.at // Externe Immobilien-ID5577342 // 4748
ImmobilienartWohnung - Eigentum
Anschrift1030 Wien
Baujahr1911
Stock2
Geschosse5
Fläche69,76 m²
Zimmer2.0
Bad1
WC1
Kaufpreis:€ 453.000,00
Ratenzahlung:Finanzierungsmöglichkeiten für diese Immobilie anzeigen
Provision: 3% des Kaufpreises zzgl. 20% USt.







BESCHREIBUNG

Großzügige 2-Zimmer-Wohnung mit loftartiger Wohnküche und durchdachtem Wohnkonzept

Im Falle der Notwendigkeit einer Fremdfinanzierung Ihrer Wunschimmobilie ermittelt unser Wohnbau-Finanzierungsexperte gerne die optimale Finanzierungslösung und findet das passende Zins- und Konditionsangebot für Sie. Er vergleicht die aktuellen Angebote aller relevanten Banken und Bausparkassen. Der Angebotsvergleich kann aus einem Portfolio von über 120 Banken erfolgen. Das Erstgespräch ist für Sie kostenfrei und unverbindlich, gerne auch bei Ihnen vor Ort. So sparen Sie Ihre wertvolle Zeit und erhalten eine professionelle und unabhängige Finanzierungslösung vom Spezialisten. Sprechen Sie uns wegen eines Termins gerne an!

 

Zum Verkauf gelangt diese 2-Zimmer Wohnung im schönen 3. Wiener Gemeindebezirk.

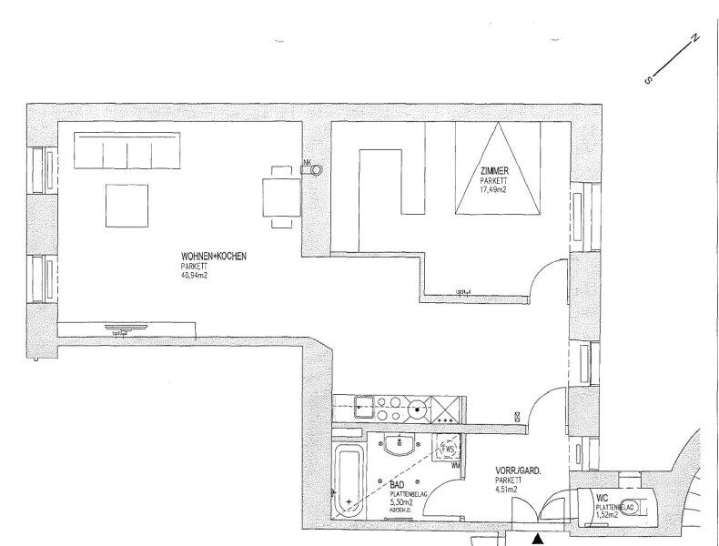
Die Wohnung befindet sich im 2. Liftstock eines im Jahre 1911 erbauten Altbaus und erstreckt sich über eine Wohnfläche von ca. 70 m², welche sich in einen Vorraum, ein Schlafzimmer, eine Wohnküche, ein Badezimmer und ein separates WC aufteilt. Das gepflegte Haus befindet sich in ausgezeichnetem Zustand, das Wohnungseigentum wurde erst kürzlich begründet. Die Beheizung erfolgt komfortabel über eine moderne Zentralheizung, und seit 2024 wird eine Reparaturrücklage aufgebaut, die derzeit bei 3.000 € liegt. Ein Personenaufzug ist vorhanden. Für zusätzlichen Wohnkomfort stehen den Bewohnern ein trockenes, gut belüftetes Kellerabteil sowie eine großzügige, gemeinschaftlich nutzbare Waschküche zur Verfügung.

Diese stilvolle Wohnung vereint moderne Offenheit mit behaglichem Wohnkomfort und bietet eine perfekte Balance zwischen Licht, Raum und Ruhe. Dank der Nord-Süd-Ausrichtung genießt man hier ein helles, freundliches Ambiente mit optimaler Raumnutzung. Diese Wohnung überzeugt mit ihrem durchdachten Grundriss, der großzügigen Raumwirkung und der modernen Wohnqualität ideal für alle, die ein offenes und stilvolles Zuhause suchen.

Beim Betreten der Wohnung gelangt man in den ca. 6 m² großen Vorraum, von dem aus das separate WC (ca. 2 m²) mit Fenster, das ca. 5 m² große Badezimmer mit Badewanne und Waschmaschinenanschluss sowie die großzügige Wohnküche direkt erreichbar sind. Die loftartige Wohnküche erstreckt sich über ca. 41 m² und ist sowohl hofseitig als auch straßenseitig in die verkehrsberuhigte, helle Hainburger Straße ausgerichtet. Dank der offenen Gestaltung wirkt der Raum besonders weitläufig und einladend. Die hochwertig ausgestattete Küchenzeile fügt sich harmonisch in den Wohnbereich ein und bietet viel Platz für geselliges Kochen und gemütliches Beisammensein. Das ca. 17 m² große Schlafzimmer, das über die Wohnküche zugänglich ist, bietet mit seiner ruhigen, nordöstlichen Ausrichtung in den Innenhof eine ideale Rückzugsmöglichkeit. Hier lassen sich mühelos ein komfortables Kingsize-Bett, ein großer Einbauschrank oder sogar eine Home-Office-Ecke unterbringen.

Die stilvolle und bestens erhaltene Liegenschaft besticht durch ihre erstklassige Lage direkt am Kardinal-Nagl-Platz, eingebettet in eine ruhige, verkehrsberuhigte Einbahnstraße. Dank der unmittelbaren Nähe zur U-Bahn-Station ist eine hervorragende Anbindung an das Stadtzentrum gegeben, während die charmante Umgebung mit zahlreichen Geschäften, Cafés und Grünflächen ein angenehmes Wohngefühl vermittelt.

Gerne lassen wir Ihnen bei ernsthaftem Interesse - vor Kaufanbotlegung - weitere vertraulichen Dokumente zu dieser Liegenschaft zukommen, welche nicht veröffentlicht werden dürfen.

Überzeugen Sie sich selbst von diesem überaus attraktiven Objekt. Für Besichtigungen und nähere Informationen stehen wir Ihnen gerne zur Verfügung!

Stephan Wallner
national - Tel: 0664 5228831
international - Tel: +43 664 5228831
e-mail:

Wir weisen darauf hin, dass zwischen dem Vermittler und dem zu vermittelnden Dritten ein familiäres oder wirtschaftliches Naheverhältnis besteht.

Der Vermittler ist als Doppelmakler tätig.

 

 


Infrastruktur / Entfernungen

Gesundheit
Arzt <500m
Apotheke <500m
Klinik <500m
Krankenhaus <500m

Kinder & Schulen
Schule <500m
Kindergarten <500m
Universität <1.000m
Höhere Schule <500m

Nahversorgung
Supermarkt <500m
Bäckerei <500m
Einkaufszentrum <500m

Sonstige
Geldautomat <500m
Bank <500m
Post <500m
Polizei <500m

Verkehr
Bus <500m
U-Bahn <500m
Straßenbahn <1.000m
Bahnhof <500m
Autobahnanschluss <1.000m

Angaben Entfernung Luftlinie / Quelle: OpenStreetMap

Provision: 3% des Kaufpreises zzgl. 20% USt.


Alle Details anzeigen

KONTAKT






 

Lasse dich kostenlos vom Anbieter dieser Immobilie zurückrufen.







 


 
IM Lifestyle Properties GmbH
Stephan Wallner
Telefonnummer anzeigen Telefon Allgemein: +4315121484
Handy Bearbeiter: +436645228831
 
Bitte dem Makler die FindMyHome.at - ID bekanntgeben: 5577342

Bewertungen dieses Anbieters
Qualitätsmakler
Qualitätsmakler:
2019, 2023,
Netiquette
Freundlichkeit

BEWERTUNGEN DIESES ANBIETERS

 
Qualit�tsmakler
Qualitätsmakler
2019, 22/23
Freundlichkeit
BESONDERS
FREUNDLICH
Netiquette
FINDMYHOME
NETIQUETTE
Auch du kannst bewerten! 7 Tage nach deiner Anfrage erhältst du dafür von uns ein Bewertungsmail.
Alle Infos zu unseren Auszeichnungen und dem FINDMYHOME.AT Qualitätsprogramm findest du hier: Übersicht anzeigen

FINANZIERUNG
?>

Du willst wissen, wie viel dein Umzug kosten wird?

Mach gleich den kostenlosen Preisvergleich und schau, welche seriösen Anbieter in deiner Region günstig deinen Umzug organisieren


ZUM UMZUGS-VERGLEICH
-->

MYHOME BLOG
SuchAgentin auf FindMyHome.at
Unterschiedlichen Rechtsthemen, köstliche Rezepte, neueste Design-Highlights, sowie aktuelle Technik-Tools für Ihr Eigenheim.


FINDMYHOME.AT SUCHAGENTIN
SuchAgentin auf FindMyHome.at
Hallo, soll ich dir ähnliche Immobilien kostenfrei per E-Mail schicken?


ÄHNLICHE IMMOBILIEN
Aehnliche Immobilie - Vorschaubild 1

Super Grundriss // TOP Saniert // Gehweite zum Schweizergart... - Objektnr. 5452415

64,68 m² - 3.0 Zimmer
429000 €
PLZ: 1030

Mehr anzeigen

Aehnliche Immobilie - Vorschaubild 2

Raumwunder mit Süd-Ausrichtung nähe Hauptbahnhof - Objektnr. 5192410

66,71 m² - 3.0 Zimmer
419000 €
PLZ: 1030

Mehr anzeigen

Aehnliche Immobilie - Vorschaubild 3

| ZWEI ZIMMER | UNIKAT FÜR FREIGEISTER | EIGENNUTZER | BF 14... - Objektnr. 5547320

59,83 m² - 2.0 Zimmer
487000 €
PLZ: 1030

Mehr anzeigen

Durch die Nutzung unserer Seite erklären Sie sich mit der Verwendung von Cookies zur Verbesserung Ihres Online-Erlebnisses einverstanden. Detaillierte Informationen zu diesem und weiteren Themen erhalten Sie in unserer Datenschutzerklärung.