MEIN ERGEBNIS ANPASSEN

Charmante Garconniere mit eigenem Garten - Ihre grüne Oase mitten in der Stadt - Objektnr. 5577341


ökologisch beheizt
1030
Ort
32,79 m²
Fläche
1.0
Zimmer

ECKDATEN
FindMyHome.at // Externe Immobilien-ID5577341 // 4743
ImmobilienartWohnung - Eigentum
Anschrift1030 Wien
Baujahr1911
Befeuerung
Fernwärme
Geschosse5
Fläche32,79 m²
Zimmer1.0
Bad1
WC1
Kaufpreis:€ 249.000,00
Ratenzahlung:Finanzierungsmöglichkeiten für diese Immobilie anzeigen
Provision: 3% des Kaufpreises zzgl. 20% USt.







BESCHREIBUNG

Charmante Garconniere mit eigenem Garten - Ihre grüne Oase mitten in der Stadt

Im Falle der Notwendigkeit einer Fremdfinanzierung Ihrer Wunschimmobilie ermittelt unser Wohnbau-Finanzierungsexperte gerne die optimale Finanzierungslösung und findet das passende Zins- und Konditionsangebot für Sie. Er vergleicht die aktuellen Angebote aller relevanten Banken und Bausparkassen. Der Angebotsvergleich kann aus einem Portfolio von über 120 Banken erfolgen. Das Erstgespräch ist für Sie kostenfrei und unverbindlich, gerne auch bei Ihnen vor Ort. So sparen Sie Ihre wertvolle Zeit und erhalten eine professionelle und unabhängige Finanzierungslösung vom Spezialisten. Sprechen Sie uns wegen eines Termins gerne an!

 

Zum Verkauf gelangt diese charmante Garconniere mit Garten im schönen 3. Wiener Gemeindebezirk.

 

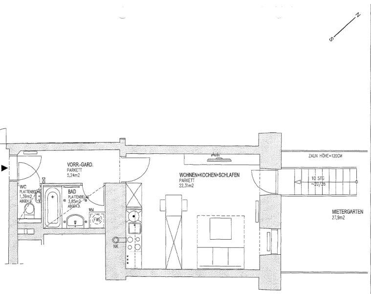
Die Wohnung befindet sich im Hochparterre eines im Jahre 1911 erbauten Altbaus und erstreckt sich über eine Wohnfläche von ca. 33 m², welche sich in einen Vorraum, ein Schlafzimmer, einen Schlaf- und Kochbereich, ein Badezimmer und ein separates WC aufteilt. Das gepflegte Haus befindet sich in ausgezeichnetem Zustand, das Wohnungseigentum wurde erst kürzlich begründet. Die Beheizung erfolgt komfortabel über eine moderne Zentralheizung, und seit 2024 wird eine Reparaturrücklage aufgebaut, die derzeit bei 3.000 € liegt. Ein Personenaufzug ist vorhanden. Für zusätzlichen Wohnkomfort stehen den Bewohnern ein trockenes, gut belüftetes Kellerabteil sowie eine großzügige, gemeinschaftlich nutzbare Waschküche zur Verfügung. Die Wohnung ist mit hochwertigem Parkett in den Wohnräumen sowie pflegeleichten Fliesen in Bad, WC und Vorraum ausgestattet, was für eine stilvolle und zugleich praktische Wohnatmosphäre sorgt.

Diese durchdacht geschnittene Wohnung vereint modernen Wohnkomfort mit einem besonderen Highlight: einen privaten Garten (ca. 28 m²), der Ihnen eine persönliche Wohlfühloase im Freien bietet.

Vom ca. 5 m² großen Vorraum aus sind alle Räume zentral begehbar, was eine optimale Nutzung der Wohnfläche ermöglicht. Das separate WC (ca. 1 m²) sorgt für zusätzlichen Komfort, während das Badezimmer (ca. 4 m²) mit Badewanne und praktischem Waschmaschinenanschluss ausgestattet ist. Das Herzstück der Wohnung bildet die großzügige Wohnküche (ca. 22 m²). Sie ist voll ausgestattet und bietet ausreichend Platz für einen gemütlichen Wohn- und Essbereich. Große Fenster lassen viel Tageslicht herein und schaffen eine freundliche, einladende Atmosphäre. Ein besonderes Highlight ist der private Garten (ca. 28 m²) eine seltene Gelegenheit, mitten in der Stadt eine grüne Ruheoase zu genießen. Ob zum Entspannen, Gärtnern oder geselligen Beisammensein, dieser Außenbereich bietet unzählige Möglichkeiten.

Diese Wohnung ist die perfekte Kombination aus urbanem Wohnen und Naturgenuss.

Die stilvolle und bestens erhaltene Liegenschaft besticht durch ihre erstklassige Lage direkt am Kardinal-Nagl-Platz, eingebettet in eine ruhige, verkehrsberuhigte Einbahnstraße. Dank der unmittelbaren Nähe zur U-Bahn-Station ist eine hervorragende Anbindung an das Stadtzentrum gegeben, während die charmante Umgebung mit zahlreichen Geschäften, Cafés und Grünflächen ein angenehmes Wohngefühl vermittelt.

Gerne lassen wir Ihnen bei ernsthaftem Interesse - vor Kaufanbotlegung - weitere vertraulichen Dokumente zu dieser Liegenschaft zukommen, welche nicht veröffentlicht werden dürfen.

Überzeugen Sie sich selbst von diesem überaus attraktiven Objekt. Für Besichtigungen und nähere Informationen stehen wir Ihnen gerne zur Verfügung!

Stephan Wallner
national - Tel: 0664 5228831
international - Tel: +43 664 5228831
e-mail:

Wir weisen darauf hin, dass zwischen dem Vermittler und dem zu vermittelnden Dritten ein familiäres oder wirtschaftliches Naheverhältnis besteht.

Der Vermittler ist als Doppelmakler tätig.

 

 


Infrastruktur / Entfernungen

Gesundheit
Arzt <500m
Apotheke <500m
Klinik <500m
Krankenhaus <500m

Kinder & Schulen
Schule <500m
Kindergarten <500m
Universität <1.000m
Höhere Schule <500m

Nahversorgung
Supermarkt <500m
Bäckerei <500m
Einkaufszentrum <500m

Sonstige
Geldautomat <500m
Bank <500m
Post <500m
Polizei <500m

Verkehr
Bus <500m
U-Bahn <500m
Straßenbahn <1.000m
Bahnhof <500m
Autobahnanschluss <1.000m

Angaben Entfernung Luftlinie / Quelle: OpenStreetMap

Gartennutzung: JA
Provision: 3% des Kaufpreises zzgl. 20% USt.


Alle Details anzeigen

KONTAKT






 

Lasse dich kostenlos vom Anbieter dieser Immobilie zurückrufen.







 


 
IM Lifestyle Properties GmbH
Stephan Wallner
Telefonnummer anzeigen Telefon Allgemein: +4315121484
Handy Bearbeiter: +436645228831
 
Bitte dem Makler die FindMyHome.at - ID bekanntgeben: 5577341

Bewertungen dieses Anbieters
Qualitätsmakler
Qualitätsmakler:
2019, 2023,
Netiquette
Freundlichkeit

BEWERTUNGEN DIESES ANBIETERS

 
Qualit�tsmakler
Qualitätsmakler
2019, 22/23
Freundlichkeit
BESONDERS
FREUNDLICH
Netiquette
FINDMYHOME
NETIQUETTE
Auch du kannst bewerten! 7 Tage nach deiner Anfrage erhältst du dafür von uns ein Bewertungsmail.
Alle Infos zu unseren Auszeichnungen und dem FINDMYHOME.AT Qualitätsprogramm findest du hier: Übersicht anzeigen

FINANZIERUNG
?>

Du willst wissen, wie viel dein Umzug kosten wird?

Mach gleich den kostenlosen Preisvergleich und schau, welche seriösen Anbieter in deiner Region günstig deinen Umzug organisieren


ZUM UMZUGS-VERGLEICH
-->

MYHOME BLOG
SuchAgentin auf FindMyHome.at
Unterschiedlichen Rechtsthemen, köstliche Rezepte, neueste Design-Highlights, sowie aktuelle Technik-Tools für Ihr Eigenheim.


FINDMYHOME.AT SUCHAGENTIN
SuchAgentin auf FindMyHome.at
Hallo, soll ich dir ähnliche Immobilien kostenfrei per E-Mail schicken?


ÄHNLICHE IMMOBILIEN
Aehnliche Immobilie - Vorschaubild 1

Charmante 1-Zimmer-Wohnung mit optimaler Raumaufteilung in T... - Objektnr. 5581203

38,21 m² - 1.0 Zimmer
280000 €
PLZ: 1030

Mehr anzeigen

Aehnliche Immobilie - Vorschaubild 2

Ihr gemütliches Zuhause toller Lage des 3. Bezirks - ideal f... - Objektnr. 5581202

36,91 m² - 1.0 Zimmer
250000 €
PLZ: 1030

Mehr anzeigen

Aehnliche Immobilie - Vorschaubild 3

Stilvolle Altbau-Eleganz trifft modernen Wohnkomfort... - Objektnr. 5479198

29,30 m² - 1.0 Zimmer
241067 €
PLZ: 1030

Mehr anzeigen

Durch die Nutzung unserer Seite erklären Sie sich mit der Verwendung von Cookies zur Verbesserung Ihres Online-Erlebnisses einverstanden. Detaillierte Informationen zu diesem und weiteren Themen erhalten Sie in unserer Datenschutzerklärung.