MEIN ERGEBNIS ANPASSEN

3 ZI DG Wohnung I Ausblick I Südausrichtung I Klima - Objektnr. 5576229


ökologisch beheizt
  • Balkon
  • Wohnküche
  • Wohnküche
  • Wohnküche
  • 1.Zimmer
  • Vorraum
  • 2.Zimmer
  • Abstellraum
  • 1. Bad
  • 2.Zimmer
  • 2.Bad
  • Balkon
  • Balkon
  • Gebäude aussen
  • Gemeinschaftsgarten
  • Insektenhotel
  • Bildungsmeile
  • Infrastruktur
  • Schwimmbad Floridsdorf
1210
Ort
60,38 m²
Fläche
3.0
Zimmer

ECKDATEN
FindMyHome.at // Externe Immobilien-ID5576229 // 13625
ImmobilienartWohnung - Eigentum
AnschriftFahrbachgasse 6-8/50
1210 Wien
Baujahr2025
Befeuerung
Fernwärme
Stock5
Geschosse7
Fläche60,38 m²
Zimmer3.0
Bad2
WC1
Kaufpreis:€ 532.200,00
Ratenzahlung:Finanzierungsmöglichkeiten für diese Immobilie anzeigen
Provision: 3% des Kaufpreises zzgl. 20% USt.







BESCHREIBUNG

3 ZI DG Wohnung I Ausblick I Südausrichtung I Klima

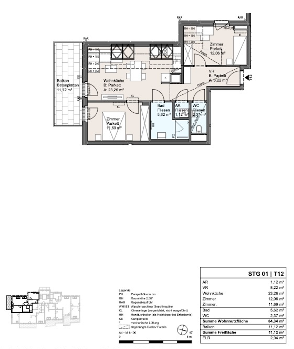
STIEGE 2 | TOP 50

Diese tolle Dachgeschosswohnung mit 3-Zimmern verteilt auf ca. 60 m² Wohnnutzfläche und großzügigem Balkon mit Aussicht (ca. 7 m²) und Klimaanlage wartet auf Sie! 


Hochwertige Materialien, modernste Ausstattung und lichtdurchflutetes Ambiente verleihen Ihrem neuen Zuhause einen ganz besonderen Wohlfühlfaktor! Der moderne Grundriss holt auch aus der kleinen Wohnung den höchst möglichen Nutzen.

 

Die Raumaufteilung gliedert sich wie folgt:

  • Vorraum mit angrenzenden Abstellraum
  • Klima-Splitgerät
  • Südseitige Wohnküche mit direktem Zugang zum Balkon
  • separates WC mit Handwaschbecken
  • 2 Zimmer mit en suite Duschbad bzw. Bad mit Wanne
  • Balkon (ca. 7 m²) mit Süd-Ausrichtung
  • Kellerabteil im Untergeschoss

 

Der besonders günstig gelegene Standort der verkehrsberuhigten Einbahnstraße "Fahrbachgasse", die fließend in die Begegnungszone der dort angesiedelten Bildungseinrichtungen über geht, verleiht dem Objekt den gewissen Charme mit all seinen Vorzügen.

 

AUSSTATTUNG DER WOHNUNG

  • Klima-Split Gerät
  • bodentiefe Holz-Alu-Fenster mit 3-fach Isolierverglasung
  • elektrische Raffstores bzw. Rollläden für die äußere Beschattung
  • hochwertiger Eichenparkettboden aus Österreich
  • Anschlüsse für Küche mit Starkstrom
  • Feinsteinzeug der Firma Marazzi
  • Armaturen der Marke Dornbracht
  • Keramik in Bad und WC der Marke Laufen "Pro" 
  • Terrasse mit schönem Ausblick, Steckdose, Außenbeleuchtung und Wasseranschluss 

 

Ein Garagenplatz in der hauseigenen Tiefgarage kann zusätzlich erworben werden.
Näher Infos entnehmen Sie bitte aus unserer Projektwebsite (www.fahrbachgasse6-8.at) oder fragen Sie unser kompetentes Beratungsteam

 

HIGHLIGHTS

  • verkehrsberuhigte Einbahnstraße mit Übergang zur Begegnungszone
  • geringe bis keine Lärmbelastung 
  • Bildungseinrichtungen um die Ecke (Bildungsmeile / Bildungsgrätzel)
  • 2 Gehminuten zum Bahnhof Floridsdorf (U6, S-Bahnen, Straßenbahnen, Busse)
  • 6 Gehminuten zur Alten Donau
  • top Anbindung an den Individualverkehr
  • zertifiziertes Gebäude - zukunftsorientiert
  • für Eigennutzer und Anleger
  • intelligente Gegensprechanlage (via App steuerbar)
  • smartes Briefkastensystem mit Paketboxenanlage
  • Digitales Schwarzes Brett und smarte Hausverwaltung - App puck
  • Gemeinschaftsraum für alle Bewohner (mit Kletterwand, Tischfußball, Spieleecke, Sitzgelegenheiten, vollausgestatteter Küche, Gemeinschaftsgarten mit "Urban Gardening" Gemeinschaftsbeeten

 

Die freien Objekte sind noch in allen Wohnungsgrößen verfügbar und beinhalten allesamt eine Freifläche in Form von einer Loggia, einem Balkon, einem Eigengarten oder einer Terrasse und einem versperrbaren Kellerabteil. 

Weitere Infos entnehmen Sie gerne aus unserer
Projekt-Website: www.fahrbachgasse6-8.at

VEREINBAREN SIE NOCH HEUTE EINEN BESICHTIGUNGSTERMIN

 

NACHHALTIGKEIT

Auch bei diesem Projekt der WINEGG Realitäten GmbH stehen die Erschaffung von nachhaltigem Lebensraum, das Wohlbefinden der zukünftigen Bewohner und die Wertsteigerung der Immobilie im Mittelpunkt. Neben der Optimierung der Nutzungsdauer achtet WINEGG bei der Projektrealisierung auf die Minimierung des Verbrauchs von Energie und natürlichen Ressourcen. Zudem werden eine unabhängige DGNB Gold Zertifizierung und eine EU-Taxonomie Verifikation angestrebt.

 

NEBENKOSTEN

Mit der Wohnungseigentumsbegründung, Kaufvertragserrichtung, treuhändigen Abwicklung und grundbücherlichen Durchführung ist die Rechtsanwaltskanzlei Tiefenthaler Gnesda beauftragt. Die Gesamtkosten für die angeführten Dienstleistungen belaufen sich auf 1,5% zzgl. Umsatzsteuer. Hinzu kommen die Beglaubigungskosten für die Unterschriften.

Dieses Objekt wird Ihnen unverbindlich und freibleibend zum Kauf angeboten. Oben angeführte Angaben basieren auf Informationen und Unterlagen des Eigentümers und sind unsererseits ohne Gewähr. Als Vermittlungshonorar gelten die allgemeinen Geschäftsbedingungen und die Verordnung für Immobilienmakler des BM für Handel, Gewerbe und Industrie, BGBL. 297/1996. Für den Fall, dass es diesbezüglich zu einem entsprechenden Rechtsgeschäft kommt, verrechnen wir Ihnen eine Vermittlungsprovision von 3 Prozent der Kaufsumme zuzüglich der gesetzlichen Mehrwertsteuer. Wir möchten noch darauf hinweisen, dass wir in einem wirtschaftlichen Naheverhältnis zur Verkäuferin stehen.

Wir weisen darauf hin, dass zwischen dem Vermittler und dem zu vermittelnden Dritten ein familiäres oder wirtschaftliches Naheverhältnis besteht.

Der Vermittler ist als Doppelmakler tätig.


Infrastruktur / Entfernungen

Gesundheit
Arzt <225m
Apotheke <400m
Klinik <450m
Krankenhaus <1.275m

Kinder & Schulen
Schule <100m
Kindergarten <275m
Universität <250m
Höhere Schule <450m

Nahversorgung
Supermarkt <225m
Bäckerei <100m
Einkaufszentrum <200m

Sonstige
Geldautomat <225m
Bank <225m
Post <500m
Polizei <550m

Verkehr
Bus <75m
U-Bahn <75m
Straßenbahn <100m
Bahnhof <100m
Autobahnanschluss <800m

Angaben Entfernung Luftlinie / Quelle: OpenStreetMap

Barrierefrei: JA
Provision: 3% des Kaufpreises zzgl. 20% USt.


Alle Details anzeigen

KONTAKT






 

Lasse dich kostenlos vom Anbieter dieser Immobilie zurückrufen.







 


 
WINEGG Makler GmbH
Christian Patronas
Telefonnummer anzeigen Telefon Allgemein: +4319076178750
 
Bitte dem Makler die FindMyHome.at - ID bekanntgeben: 5576229

Bewertungen dieses Anbieters
Qualitätsmakler
Qualitätsmakler:
2015, 2017, 2025,
Netiquette
Freundlichkeit
82 %

BEWERTUNGEN DIESES ANBIETERS

 
Qualit�tsmakler
Qualitätsmakler
2015, 2017, 2025
Weiterempfehlung
WIRD GERNE

Freundlichkeit
BESONDERS
FREUNDLICH
Netiquette
FINDMYHOME
NETIQUETTE
Auch du kannst bewerten! 7 Tage nach deiner Anfrage erhältst du dafür von uns ein Bewertungsmail.
Alle Infos zu unseren Auszeichnungen und dem FINDMYHOME.AT Qualitätsprogramm findest du hier: Übersicht anzeigen

FINANZIERUNG
?>

Du willst wissen, wie viel dein Umzug kosten wird?

Mach gleich den kostenlosen Preisvergleich und schau, welche seriösen Anbieter in deiner Region günstig deinen Umzug organisieren


ZUM UMZUGS-VERGLEICH
-->

MYHOME BLOG
SuchAgentin auf FindMyHome.at
Unterschiedlichen Rechtsthemen, köstliche Rezepte, neueste Design-Highlights, sowie aktuelle Technik-Tools für Ihr Eigenheim.


FINDMYHOME.AT SUCHAGENTIN
SuchAgentin auf FindMyHome.at
Hallo, soll ich dir ähnliche Immobilien kostenfrei per E-Mail schicken?


ÄHNLICHE IMMOBILIEN
Aehnliche Immobilie - Vorschaubild 1

SOFORT EINZIEHEN >> zentral begehbare 3-Zimmer Wohnung mit z... - Objektnr. 5575752

68,77 m² - 3.0 Zimmer
495600 €
PLZ: 1210

Mehr anzeigen

Aehnliche Immobilie - Vorschaubild 2

*Aktion - Mehr Raum. Mehr Freiheit. Mehr Ausblick. 3-Zimmer-... - Objektnr. 5548348

70,01 m² - 3 Zimmer
445000 €
PLZ: 1210

Mehr anzeigen

Aehnliche Immobilie - Vorschaubild 3

ERSTBEZUG >> moderne Wohnung im 4. OG, sonnig mit Balkon >> ... - Objektnr. 5575751

63,13 m² - 3.0 Zimmer
496100 €
PLZ: 1210

Mehr anzeigen

Durch die Nutzung unserer Seite erklären Sie sich mit der Verwendung von Cookies zur Verbesserung Ihres Online-Erlebnisses einverstanden. Detaillierte Informationen zu diesem und weiteren Themen erhalten Sie in unserer Datenschutzerklärung.