MEIN ERGEBNIS ANPASSEN

Herrschaftliches Wohnen am Schlosspark | Luxuriöses Altbaujuwel mit Gartenparadies | Privater Weinkeller - Objektnr. 5576226

virtuell besichtigen
1130
Ort
181,40 m²
Fläche
3.5
Zimmer
WEITERE MEDIEN

Virtuelle Rundgänge


ECKDATEN
FindMyHome.at // Externe Immobilien-ID5576226 // 26199
ImmobilienartWohnung - Eigentum
AnschriftWattmanngasse 25/3
1130 Wien
Befeuerung
Geschosse5
Fläche181,40 m²
Terrassen1 (26,00 m²)
Zimmer3.5
Bad2
WC3
Kaufpreis:€ 2.990.000,00
Ratenzahlung:Finanzierungsmöglichkeiten für diese Immobilie anzeigen
Provision:







BESCHREIBUNG

Herrschaftliches Wohnen am Schlosspark | Luxuriöses Altbaujuwel mit Gartenparadies | Privater Weinkeller

DAS PROJEKT

Herrschaftlich wohnen am Schlosspark

In der malerischen Kulisse der Wattmanngasse verbirgt sich ein Ort, an dem die Zeit stillzustehen scheint. Erbaut um die Jahrhundertwende, prägen gotische und klassizistische Elemente den historischen Stilaltbau in der Wattmanngasse 25. Das helle Schönbrunner Gelb und die weiß gestrichenen Faschen fügen sich zu einer prächtigen Fassade der Wiener Gründerzeit. Das 4-geschoßige Haus wurde mit Bedacht auf die Bausubstanz saniert und verzaubert mit geschwungenen Holzfenstern und Dachgiebeln im Alt-Wien-Stil. Den Auftakt der traditionellen Villa bildet das repräsentative Entrée. Der Eingangsbereich glänzt mit prachtvollem Stuck und goldenen Art-nouveau-Elementen. Die mit Ornamenten verzierten Fensterflächen im Stiegenhaus bieten einen herrlichen Blick in den wunderschönen, geschichtsträchtigen Garten des Ensembles. Darüber hinaus sorgt ein Aufzug für Barriere freien Komfort.

 

Prachtvolles Gartenparadies genießen

Der weitläufige Garten der Villa bietet nicht nur Erholung, sondern auch ein einzigartiges Stück Geschichte. Verborgene Ecken mit einem stillen Teich laden zum Verweilen und Entspannen ein. Die jahrhundertealten Bäume strahlen eine Ruhe aus, die jeden Besucher umfängt. Der wunderschöne Garten ist ein seltener Rückzugsort und Erholungsraum für alle Bewohner der Villa. Die Ausblicke auf die prächtige Gartenanlage, die den Rhythmus der Jahreszeiten widerspiegelt, sind unvergleichlich und verleihen jedem Tag einen Hauch von Magie. Der Garten ist mehr als nur ein Highlight, er ist das Herz und die Seele der Villa. Er vereint Geschichte, Schönheit und Ruhe und bietet den perfekten Ort zum Entspannen, Träumen und Genießen. Die Jugendstilvilla spiegelt den einzigartigen Charme des noblen Hietzings wider. Erleben Sie stilvolle Eleganz gehobener Wohnkultur in unmittelbarer Nähe vom Schlosspark Schönbrunn.

 

Zeitlose Eleganz in historischem Ambiente

Die beeindruckende Villa verbindet in drei großzügigen Wohneinheiten den Zauber vergangener Epochen mit dem Luxus und Komfort der Moderne. Jede Räumlichkeit ist eine einzigartige Fusion aus Exklusivität, Bequemlichkeit und historischem Charme, während der malerische Garten eine außergewöhnliche Atmosphäre der Entspannung bietet. Jede Wohnung glänzt durch eine erstklassige Ausstattung, welche den anspruchsvollen Lebensstil seiner Bewohner hervorhebt. Vom edlen Fußboden über topmoderne Küchen und Badarmaturen bis hin zu hochwertigen Materialien wurde jedes Detail bedacht und sorgfältig ausgewählt. Hier steht Komfort an vorderster Stelle. Genießen Sie den außergewöhnlichen Luxus dieser prachtvollen Villa und erfreuen Sie sich an dem einzigartigen Lebensgefühl inmitten einer grünen Oase. Die Nähe zum Schlosspark Schönbrunn und den Annehmlichkeiten von Hietzing bietet Ihnen dabei das Beste aus beiden Welten.

 

Umgeben vom Besten

Die noble Wattmanngasse ist geprägt von historischen Bauwerken wie dem 1914 errichteten Schokoladenhaus mit seiner bemerkenswerten Fassadenverkleidung von Ernst Lichtblau und dem ehemaligen Atelier von Egon Schiele, in dem dieser bis zu seinem Tod im Jahr 1918 arbeitete. Der nur wenige Gehminuten entfernte Schlosspark Schönbrunn gilt als idyllischer Ort für Spaziergänge. Der Tiergarten, das Palmenhaus und die Orangerie bieten ein vielfältiges Freizeitangebot. Die Nahversorgung ist ausgezeichnet, mit erstklassigen Restaurants wie Plachutta und Mario Pasta-Grill-Bar in der Nähe, die kulinarische Genüsse bieten.

In nur 3 Gehminuten erreichen Sie die Station Tiroler Gasse mit den Buslinien 56A, 56B, 58A sowie 58B. Die Station Hietzing mit der U4 und den Straßenbahnlinien 10, 52 und 80 sind ca. 12 Gehminuten entfernt.

 

HIGHLIGHTS

  • Nur noch eine exklusive Eigentumswohnungen
  • Wohnfläche ca. 181 m² 
  • Beeindruckende Stadtvilla
  • Exquisite und erstklassige Ausstattung
  • Großzügige Freiflächen
  • Tiefgaragenplätze
  • Ausgezeichnete Lage im Herzen von Hietzing

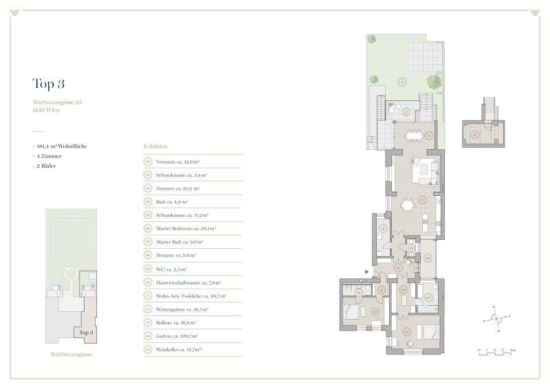
TOP 3

Eingebettet in das Parterre der Villa entfaltet sich der weitläufige Wohnbereich, der sich nahtlos zur Veranda und zum Garten hin öffnet. Die offene Küche bildet den Mittelpunkt für kreative Gaumenfreuden. Im Master Bedroom wird Luxus greifbar - mit begehbarem Kleiderschrank und privatem Badezimmer. Ein weiteres Schlafzimmer mit eigenem Bad schafft individuelle Privatsphäre. Als zusätzliches Highlight erwartet Sie ein wunderschöner Balkonbereich, der den Wohnraum erweitert. Alle Details laden ein, den Zauber dieser besonderen Wohneinheit zu entdecken.

Wintergarten           18,5 m2

Im lichterfüllten Wintergarten können Sie zu jeder Jahreszeit die wärmenden Sonnenstrahlen genießen, in die behagliche Ruhe eintauchen und eins werden mit der harmonischen Atmosphäre.

Garten           108,7 m2

Als perfekte Ergänzung der Wohnräume dient der zugehörige Garten, in welchem Sie neue Energie tanken und die Seele baumeln lassen können. Ein Ort an dem Sie neue Kraft schöpfen können.

Weinkeller    12,7 m2

Juwel Ihres neuen Zuhauses ist der persönliche Weinkeller, indem Sie Ihre Weinsammlung unter idealen Bedingungen lagern können. Genießen Sie die edlen Tropfen ganz nach Ihrem Geschmack.

Die erstklassige Wohnung besticht durch ihre anspruchsvollen Details und die hochwertigen Materialien. Jeder Raum wurde mit größter Liebe zum Detail gestaltet, um ein harmonisches Gesamtbild zu erzeugen.

 

NEBENKOSTEN

Der guten Ordnung halber halten wir fest, dass bei erfolgreichem Abschlussfall eine Provision anfällt, die den in der Immobilienmaklerverordnung BGBI. 262 und 297/1996 festgelegten Sätzen entspricht das sind 3 % des Kaufpreises zzgl. 20 % USt. Diese Provisionspflicht besteht auch dann, wenn Sie die Ihnen überlassenen Informationen an Dritte weitergeben. Die Vertragserrichtung und Treuhandabwicklung ist gebunden an die Rechtsanwaltskanzlei Pressl & Feitsch in 1030 Wien, Hetzgasse 45. Die Gesamtkosten für die angeführten Dienstleistungen belaufen sich auf 1,5% zzgl. Umsatzsteuer. Hinzu kommen die Beglaubigungskosten für die Unterschriften.

Wir weisen darauf hin, dass zwischen dem Vermittler und dem zu vermittelnden Dritten ein familiäres oder wirtschaftliches Naheverhältnis besteht.

Der Vermittler ist als Doppelmakler tätig.


Infrastruktur / Entfernungen

Gesundheit
Arzt <325m
Apotheke <525m
Klinik <450m
Krankenhaus <1.975m

Kinder & Schulen
Schule <475m
Kindergarten <850m
Universität <1.400m
Höhere Schule <2.875m

Nahversorgung
Supermarkt <400m
Bäckerei <400m
Einkaufszentrum <2.125m

Sonstige
Geldautomat <475m
Bank <425m
Post <625m
Polizei <575m

Verkehr
Bus <175m
U-Bahn <775m
Straßenbahn <425m
Bahnhof <800m
Autobahnanschluss <3.175m

Angaben Entfernung Luftlinie / Quelle: OpenStreetMap

Klimaanlage: JA
Kabel/SAT/TV: JA
Provision:


Alle Details anzeigen

KONTAKT






 

Lasse dich kostenlos vom Anbieter dieser Immobilie zurückrufen.







 


 
WINEGG Makler GmbH
Clemens Dostal
Telefonnummer anzeigen Telefon Allgemein: +4313157280870
Handy Bearbeiter: +436648294551
 
Bitte dem Makler die FindMyHome.at - ID bekanntgeben: 5576226

Bewertungen dieses Anbieters
Qualitätsmakler
Qualitätsmakler:
2015, 2017, 2025,
Netiquette
Freundlichkeit
82 %

BEWERTUNGEN DIESES ANBIETERS

 
Qualit�tsmakler
Qualitätsmakler
2015, 2017, 2025
Weiterempfehlung
WIRD GERNE

Freundlichkeit
BESONDERS
FREUNDLICH
Netiquette
FINDMYHOME
NETIQUETTE
Auch du kannst bewerten! 7 Tage nach deiner Anfrage erhältst du dafür von uns ein Bewertungsmail.
Alle Infos zu unseren Auszeichnungen und dem FINDMYHOME.AT Qualitätsprogramm findest du hier: Übersicht anzeigen

FINANZIERUNG
?>

Du willst wissen, wie viel dein Umzug kosten wird?

Mach gleich den kostenlosen Preisvergleich und schau, welche seriösen Anbieter in deiner Region günstig deinen Umzug organisieren


ZUM UMZUGS-VERGLEICH
-->

MYHOME BLOG
SuchAgentin auf FindMyHome.at
Unterschiedlichen Rechtsthemen, köstliche Rezepte, neueste Design-Highlights, sowie aktuelle Technik-Tools für Ihr Eigenheim.


FINDMYHOME.AT SUCHAGENTIN
SuchAgentin auf FindMyHome.at
Hallo, soll ich dir ähnliche Immobilien kostenfrei per E-Mail schicken?


ÄHNLICHE IMMOBILIEN
Aehnliche Immobilie - Vorschaubild 1

Neubauprojekt in Hacking - Objektnr. 5548175


158,14 m² - 3.0 Zimmer
2500000 €
PLZ: 1130

Mehr anzeigen

Aehnliche Immobilie - Vorschaubild 2

Maisonette in Toplage I Jugendstilvilla in Althietzing... - Objektnr. 5548673

191,22 m² - 4.0 Zimmer
2744000 €
PLZ: 1130

Mehr anzeigen

Aehnliche Immobilie - Vorschaubild 3

Exklusive Garten-Maisonette in revitalisierter Jugendstilvil... - Objektnr. 5548678

181,12 m² - 4.0 Zimmer
2870000 €
PLZ: 1130

Mehr anzeigen

Durch die Nutzung unserer Seite erklären Sie sich mit der Verwendung von Cookies zur Verbesserung Ihres Online-Erlebnisses einverstanden. Detaillierte Informationen zu diesem und weiteren Themen erhalten Sie in unserer Datenschutzerklärung.