MEIN ERGEBNIS ANPASSEN

Wohnen in Enzersfeld - Ihr Traumhaus in exklusivem Neubauprojekt! - Objektnr. 5575988

2202
Ort
114,50 m²
Fläche
5.0
Zimmer
WEITERE MEDIEN

Virtuelle Rundgänge


ECKDATEN
FindMyHome.at // Externe Immobilien-ID5575988 // 19161
ImmobilienartHaus - Eigentum
Anschrift2202 Enzersfeld im Weinviertel
Geschosse2
Fläche114,50 m²
Terrassen2 (12,00 m²)
Zimmer5.0
Bad3
WC2
Kaufpreis:€ 629.000,00
Ratenzahlung:Finanzierungsmöglichkeiten für diese Immobilie anzeigen
Provision: 3% des Kaufpreises zzgl. 20% USt.







BESCHREIBUNG

Wohnen in Enzersfeld - Ihr Traumhaus in exklusivem Neubauprojekt!

Exklusives Einfamilienhaus in Enzersfeld Stilvolles Wohnen in naturnaher Umgebung

In der charmanten Gemeinde Enzersfeld im Weinviertel entsteht ein modernes Neubauprojekt mit insgesamt vier hochwertigen Einfamilienhäusern. Jede Einheit kombiniert zeitgemäßes Design mit einer idyllischen Lage, nur 15 Kilometer von der Wiener Stadtgrenze entfernt. Die großzügigen Gärten, durchdachten Raumkonzepte und hochwertige Ausstattung machen dieses Projekt zu einer besonderen Gelegenheit für anspruchsvolles Wohnen im Grünen.

Jedes Haus ist lichtdurchflutet gestaltet und bietet eine großzügige Raumaufteilung auf drei Ebenen. Private Gärten, Terrassen und Dachterrassen schaffen eine ideale Balance zwischen Wohnkomfort und naturnahem Lebensstil. PKW-Stellplätze mit E-Ladesäulen sorgen für zusätzlichen Komfort und Nachhaltigkeit.

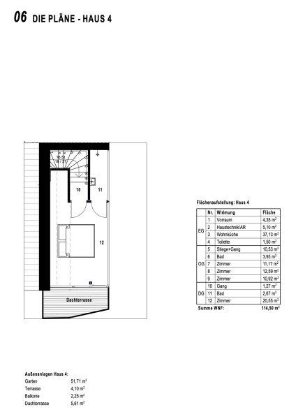
Ihr neues Zuhause Haus 4

Das Haus bietet mit seiner großzügigen Wohnfläche und den zahlreichen Freiflächen Platz für modernes und komfortables Wohnen:

Erdgeschoss: Der Mittelpunkt des Hauses ist die offene und helle Wohnküche. Ergänzt wird diese Etage durch ein separates WC und einen praktischen Abstellraum.

Obergeschoss: Drei geräumige Zimmer bieten viel Platz für individuelle Nutzung. Ein modernes Badezimmer und WC stehen ebenfalls zur Verfügung.

Dachgeschoss: Das Dachgeschoss beherbergt ein exklusives Master-Bedroom mit eigenem Badezimmer. Von hier gelangen Sie direkt auf die private Dachterrasse, die mit einem wunderbaren Blick auf die umliegende Natur punktet.

Eckdaten Haus 4

        Wohnfläche: 114,50 m²
        Garten: 51,71 m²
        Terrasse: 6,1 m²
        Balkon: 2,25 m²
        Dachterrasse: 5,61 m²
        Parkplätze: 2 KFZ-Stellplätze

Kaufpreis: 629.000,- EUR (inkl. 2 Stellplätze)

Ausstattungsdetails

  • Fertigstellung: Frühjahr 2026
  • Schlüsselfertige Übergabe
  • Eichenparkettböden und moderne Feinsteinzeugfliesen
  • Luftwärmepumpen-Zentralheizung mit Fußbodenheizung und Kühlung
  • Dreifach verglaste Isolierfenster aus Kunststoff-Alu mit integrierten Jalousien
  • Vier Einfamilienhäuser mit Garten, Terrassen und Dachterrassen
  • Großzügige Wohnräume mit lichtdurchflutetem Ambiente
  • Nachhaltige und hochwertige Bauweise
  • PKW-Stellplätze inkl. E-Ladesäulen 
  • Ruhige Lage mit bester Infrastruktur

Nebenkosten:

  • 3 % des Kaufpreises zzgl. 20% USt. - Vermittlungsprovision
  • 1,5 % des Kaufpreises zzgl. 20% USt und Barauslagen - Vertragserrichtungskosten und Treuhändlerhonorar
  • 1,1 % des Kaufpreises - Eintragung ins Grundbuch  
  • 3,5 % des Kaufpreises - Grunderwerbsteuer    

Lage und Infrastruktur

Enzersfeld im Weinviertel bietet eine perfekte Kombination aus Ruhe und erstklassiger Anbindung. Die Wiener Stadtgrenze erreichen Sie in nur 15 Minuten, das Stadtzentrum in rund 30 Minuten. Einkaufsmöglichkeiten wie das G3 Shopping Resort Gerasdorf liegen nur 10 Minuten entfernt.

Die Region zeichnet sich durch ihre Weingüter, Heurigen und die wunderschöne Landschaft aus. Trotz der ländlichen Umgebung profitieren Sie von einer hervorragenden Infrastruktur, die das Wohnen hier besonders attraktiv macht.

Interesse geweckt

Kontaktieren Sie uns gerne für weitere Informationen oder eine Besichtigung.

Telefon: +43 699 1929 3025
E-Mail: anfragen@immoagency.at

Wir weisen darauf hin, dass zwischen dem Vermittler und dem zu vermittelnden Dritten ein familiäres oder wirtschaftliches Naheverhältnis besteht.

Der Vermittler ist als Doppelmakler tätig.

Klimaanlage: JA
Kabel/SAT/TV: JA
Provision: 3% des Kaufpreises zzgl. 20% USt.


Alle Details anzeigen

KONTAKT






 

Lasse dich kostenlos vom Anbieter dieser Immobilie zurückrufen.







 


 
IMMO AGENCY GmbH
IMMO AGENCY
Telefonnummer anzeigen Handy Bearbeiter: +4369919293025
 
Bitte dem Makler die FindMyHome.at - ID bekanntgeben: 5575988

Bewertungen dieses Anbieters
Qualitätsmakler
Qualitätsmakler:
2015, 2016, 2017, 2019, 2020, 2021, 2023 , 2024,
Netiquette
Freundlichkeit
75 %

BEWERTUNGEN DIESES ANBIETERS

 
Qualit�tsmakler
Qualitätsmakler
2015, 2016, 2017, 2019, 2020, 2021, 22/23 2024
Weiterempfehlung
WIRD GERNE

Freundlichkeit
BESONDERS
FREUNDLICH
Netiquette
FINDMYHOME
NETIQUETTE
Auch du kannst bewerten! 7 Tage nach deiner Anfrage erhältst du dafür von uns ein Bewertungsmail.
Alle Infos zu unseren Auszeichnungen und dem FINDMYHOME.AT Qualitätsprogramm findest du hier: Übersicht anzeigen

FINANZIERUNG
?>

Du willst wissen, wie viel dein Umzug kosten wird?

Mach gleich den kostenlosen Preisvergleich und schau, welche seriösen Anbieter in deiner Region günstig deinen Umzug organisieren


ZUM UMZUGS-VERGLEICH
-->

MYHOME BLOG
SuchAgentin auf FindMyHome.at
Unterschiedlichen Rechtsthemen, köstliche Rezepte, neueste Design-Highlights, sowie aktuelle Technik-Tools für Ihr Eigenheim.


FINDMYHOME.AT SUCHAGENTIN
SuchAgentin auf FindMyHome.at
Hallo, soll ich dir ähnliche Immobilien kostenfrei per E-Mail schicken?


ÄHNLICHE IMMOBILIEN
Aehnliche Immobilie - Vorschaubild 1

Wohnen in Enzersfeld - Ihr Traumhaus in exklusivem Neubaupro... - Objektnr. 5417360

116,54 m² - 4.0 Zimmer
599000 €
PLZ: 2202

Mehr anzeigen

Aehnliche Immobilie - Vorschaubild 2

| Wunderschöne Grünruhelage in der Oberlisse | DOPPELHAUSHÄL... - Objektnr. 5557246

115,52 m² - 4.0 Zimmer
579000 €
PLZ: 2201

Mehr anzeigen

Aehnliche Immobilie - Vorschaubild 3

| Wunderschöne Grünruhelage in der Oberlisse | DOPPELHAUSHÄL... - Objektnr. 5360633

115,52 m² - 4.0 Zimmer
599000 €
PLZ: 2201

Mehr anzeigen

Durch die Nutzung unserer Seite erklären Sie sich mit der Verwendung von Cookies zur Verbesserung Ihres Online-Erlebnisses einverstanden. Detaillierte Informationen zu diesem und weiteren Themen erhalten Sie in unserer Datenschutzerklärung.