MEIN ERGEBNIS ANPASSEN

Helle 2-Zimmer Gartenwohnung mit bester Anbindung zum Stephansplatz - Objektnr. 5575940

1030
Ort
42,35 m²
Fläche
2.0
Zimmer

ECKDATEN
FindMyHome.at // Externe Immobilien-ID5575940 // 4742
ImmobilienartWohnung - Eigentum
Anschrift1030 Wien
Baujahr1911
Geschosse5
Fläche42,35 m²
Zimmer2.0
Bad1
WC1
Kaufpreis:€ 318.000,00
Ratenzahlung:Finanzierungsmöglichkeiten für diese Immobilie anzeigen
Provision: 3% des Kaufpreises zzgl. 20% USt.







BESCHREIBUNG

Helle 2-Zimmer Gartenwohnung mit bester Anbindung zum Stephansplatz

Im Falle der Notwendigkeit einer Fremdfinanzierung Ihrer Wunschimmobilie ermittelt unser Wohnbau-Finanzierungsexperte gerne die optimale Finanzierungslösung und findet das passende Zins- und Konditionsangebot für Sie. Er vergleicht die aktuellen Angebote aller relevanten Banken und Bausparkassen. Der Angebotsvergleich kann aus einem Portfolio von über 120 Banken erfolgen. Das Erstgespräch ist für Sie kostenfrei und unverbindlich, gerne auch bei Ihnen vor Ort. So sparen Sie Ihre wertvolle Zeit und erhalten eine professionelle und unabhängige Finanzierungslösung vom Spezialisten. Sprechen Sie uns wegen eines Termins gerne an!

 

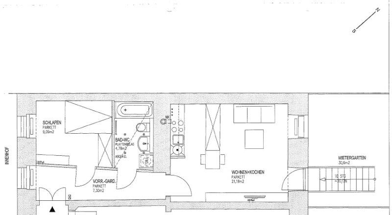
Zum Verkauf gelangt diese 2-Zimmer Gartenwohnung im schönen 3. Wiener Gemeindebezirk.

Die Wohnung befindet sich im Hochparterre eines im Jahre 1911 erbauten Altbaus und erstreckt sich über eine Wohnfläche von ca. 42 m², welche sich in einen Vorraum, ein Schlafzimmer, eine Wohnküche und ein Badezimmer aufteilt. Das gepflegte Haus befindet sich in ausgezeichnetem Zustand, das Wohnungseigentum wurde erst kürzlich begründet. Die Beheizung erfolgt komfortabel über eine moderne Zentralheizung, und seit 2024 wird eine Reparaturrücklage aufgebaut, die derzeit bei 3.000 € liegt. Ein Personenaufzug ist vorhanden. Für zusätzlichen Wohnkomfort stehen den Bewohnern ein trockenes, gut belüftetes Kellerabteil sowie eine großzügige, gemeinschaftlich nutzbare Waschküche zur Verfügung.

Diese einladende Wohnung vereint durchdachte Raumaufteilung mit einem besonderen Highlight: einen privaten Garten, der zum Entspannen und Wohlfühlen einlädt.

Beim Betreten der freundlichen Diele (7,3 m²) eröffnet sich eine gut durchdachte Wohnatmosphäre, da alle Räume zentral begehbar sind. Das hofseitig gelegene Schlafzimmer (ca. 9 m²) bietet absolute Ruhe und schafft einen gemütlichen Rückzugsort. Direkt angrenzend befindet sich das Badezimmer (ca. 5 m²), das mit einer Badewanne sowie einem praktischen Waschmaschinenanschluss ausgestattet ist. Das Herzstück der Wohnung ist die großzügige Wohnküche (21 m²) mit einer voll funktionalen Einbauküche und einer beeindruckenden Glasfront, die viel Tageslicht hereinlässt und einen wunderschönen Blick ins Freie bietet. Ein besonderes Highlight ist der private Garten (ca. 31 m²) ein seltener Luxus in dieser Lage. Ob gemütliche Morgenstunden mit einer Tasse Kaffee, entspannte Sommerabende oder eine kleine grüne Oase ganz nach Ihren Vorstellungen hier genießen Sie Ihre persönliche Auszeit im Freien.

Diese Wohnung bietet eine perfekte Kombination aus Stadtleben und Ruhe.

Die stilvolle und bestens erhaltene Liegenschaft besticht durch ihre erstklassige Lage direkt am Kardinal-Nagl-Platz, eingebettet in eine ruhige, verkehrsberuhigte Einbahnstraße. Dank der unmittelbaren Nähe zur U-Bahn-Station ist eine hervorragende Anbindung an das Stadtzentrum gegeben, während die charmante Umgebung mit zahlreichen Geschäften, Cafés und Grünflächen ein angenehmes Wohngefühl vermittelt.

Gerne lassen wir Ihnen bei ernsthaftem Interesse - vor Kaufanbotlegung - weitere vertraulichen Dokumente zu dieser Liegenschaft zukommen, welche nicht veröffentlicht werden dürfen.

Überzeugen Sie sich selbst von diesem überaus attraktiven Objekt. Für Besichtigungen und nähere Informationen stehen wir Ihnen gerne zur Verfügung!

Stephan Wallner
national - Tel: 0664 5228831
international - Tel: +43 664 5228831
e-mail:

Wir weisen darauf hin, dass zwischen dem Vermittler und dem zu vermittelnden Dritten ein familiäres oder wirtschaftliches Naheverhältnis besteht.

Der Vermittler ist als Doppelmakler tätig.

 

 


Infrastruktur / Entfernungen

Gesundheit
Arzt <500m
Apotheke <500m
Klinik <500m
Krankenhaus <500m

Kinder & Schulen
Schule <500m
Kindergarten <500m
Universität <1.000m
Höhere Schule <500m

Nahversorgung
Supermarkt <500m
Bäckerei <500m
Einkaufszentrum <500m

Sonstige
Geldautomat <500m
Bank <500m
Post <500m
Polizei <500m

Verkehr
Bus <500m
U-Bahn <500m
Straßenbahn <1.000m
Bahnhof <500m
Autobahnanschluss <1.000m

Angaben Entfernung Luftlinie / Quelle: OpenStreetMap

Gartennutzung: JA
Provision: 3% des Kaufpreises zzgl. 20% USt.


Alle Details anzeigen

KONTAKT






 

Lasse dich kostenlos vom Anbieter dieser Immobilie zurückrufen.







 


 
IM Lifestyle Properties GmbH
Stephan Wallner
Telefonnummer anzeigen Telefon Allgemein: +4315121484
Handy Bearbeiter: +436645228831
 
Bitte dem Makler die FindMyHome.at - ID bekanntgeben: 5575940

Bewertungen dieses Anbieters
Qualitätsmakler
Qualitätsmakler:
2019, 2023,
Netiquette
Freundlichkeit

BEWERTUNGEN DIESES ANBIETERS

 
Qualit�tsmakler
Qualitätsmakler
2019, 22/23
Freundlichkeit
BESONDERS
FREUNDLICH
Netiquette
FINDMYHOME
NETIQUETTE
Auch du kannst bewerten! 7 Tage nach deiner Anfrage erhältst du dafür von uns ein Bewertungsmail.
Alle Infos zu unseren Auszeichnungen und dem FINDMYHOME.AT Qualitätsprogramm findest du hier: Übersicht anzeigen

FINANZIERUNG
?>

Du willst wissen, wie viel dein Umzug kosten wird?

Mach gleich den kostenlosen Preisvergleich und schau, welche seriösen Anbieter in deiner Region günstig deinen Umzug organisieren


ZUM UMZUGS-VERGLEICH
-->

MYHOME BLOG
SuchAgentin auf FindMyHome.at
Unterschiedlichen Rechtsthemen, köstliche Rezepte, neueste Design-Highlights, sowie aktuelle Technik-Tools für Ihr Eigenheim.


FINDMYHOME.AT SUCHAGENTIN
SuchAgentin auf FindMyHome.at
Hallo, soll ich dir ähnliche Immobilien kostenfrei per E-Mail schicken?


ÄHNLICHE IMMOBILIEN
Aehnliche Immobilie - Vorschaubild 1

URBAN DAHEIM - VILLAGE IM DRITTEN - Objektnr. 5560783


45,43 m² - 2.0 Zimmer
378000 €
PLZ: 1030

Mehr anzeigen

Aehnliche Immobilie - Vorschaubild 2

Innenhofruhelage Nähe Schlachthausgasse: Charmante 1,5 Zimme... - Objektnr. 5568053

48,64 m² - 1.5 Zimmer
299000 €
PLZ: 1030

Mehr anzeigen

Aehnliche Immobilie - Vorschaubild 3

Helle Garconniere im DG, Nähe Landstraße Hauptstraße... - Objektnr. 5538759

42,42 m² - 1.0 Zimmer
299000 €
PLZ: 1030

Mehr anzeigen

Durch die Nutzung unserer Seite erklären Sie sich mit der Verwendung von Cookies zur Verbesserung Ihres Online-Erlebnisses einverstanden. Detaillierte Informationen zu diesem und weiteren Themen erhalten Sie in unserer Datenschutzerklärung.