MEIN ERGEBNIS ANPASSEN

Ruhige Neubauwohnung im Architektenhaus + Blick ins Grüne // Ab Dezember!! - Objektnr. 5575263

  • Blick ins Grüne
  • Wohnzimmer
  • Wohnzimmer
  • Blick zur Küche
  • Küche
  • Schlafzimmer
  • Badezimmer
  • WC
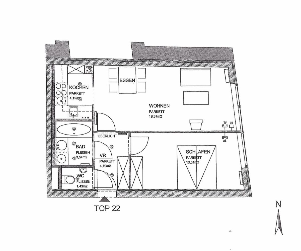
  • Grundriss Top 22
  • Außenansicht
  • Gemeinschaftsterrasse
  • Gemeinschaftsterrasse
  • Eingangsbereich
  • Stiegenhaus
  • Lageplan mit Öffis
  • IMMY Preisträger
1070
Ort
€ 1.021,37
Gesamtkosten
50,00 m²
Fläche
2.0
Zimmer

ECKDATEN
FindMyHome.at // Externe Immobilien-ID5575263 // 3610/8192
ImmobilienartWohnung - Miete
Anschrift1070 Wien
Baujahr2004
NäheKaiserstraße, Burggasse
HeizungZentralheizung mit Gas
Liftja
KellerJa
Beziehbar ab01.12.2025
Mietdauer5.0
Fläche50,00 m²
Terrassen1
Zimmer2.0
Bad1
WC1
Kaution:€ 3.300,00
sonstige Kosten (inkl. MwSt):€ 109,34
Mehrwertsteuer:€ 92,85
Monatliche Gesamtkosten:€ 1.021,37




BESCHREIBUNG

Ruhige Neubauwohnung im Architektenhaus + Blick ins Grüne // Ab Dezember!!

Zur Vermietung gelangt diese schöne, moderne 2-Zimmer-Wohnung (46,23m² + Kellerabteil) in einem Architektenhaus im 7. Bezirk in der Kaiserstraße mit guter öffentlicher Verkehrsanbindung!

Sie befindet sich im 3. Obergeschoß und ist komplett hofseitig orientiert und ruhig

Im selben Haus befindet sich eine allgemeine Terrassen- bzw. Hoffläche, welche zusätzlich zur Wohnung genutzt werden kann.
Die Infrastruktur kann als sehr gut beschrieben werden. U-Bahn und Geschäfte für den täglichen Bedarf befinden sich in unmittelbarer Nähe.

RAUMAUFTEILUNG IN STICHWORTEN
? Vorraum
? großer Wohnraum mit Kochnische
? Schlafzimmer
? Badezimmer mit Badewanne und Waschmaschinenanschluss
? WC
? Kellerabteil

HIGHLIGHTS UND AUSSTATTUNGSMERKMALE
? absolut ruhig
? Blick in den grünen Innenhof
? modernes Design
? hochwertige Ausstattung
? Parkettboden
? EWE-Einbauküche mit E-Herd (Ceranfeld), Geschirrspüler, Einbaumikrowellenherd
? modernes Badezimmer mit Badewanne und Waschmaschinenanschluss
? tolle Infrastruktur
? Gemeinschaftsterrasse am selben Stockwerk!!!
? Kellerabteil

ÖFFENTLICHE VERKEHRSANBINDUNG
? Straßenbahnlinien 5, 6 und 49
? Autobuslinie 48A
? U6 in 5 Gehminuten

ZUSÄTZLICHE MONATLICHE KOSTEN
? Warmwasser-Akonto € 17,80 brutto
? Heizungs-Akonto € 38,83 brutto
? Strom... wird vom Energiedienstleister nach Verbrauch abgerechnet

Monatliche Miete "WARM" GESAMT: € 1078,-- brutto.

ERSTZAHLUNG
? Abwicklungshonorar Hausverwaltung € 155,--
? Kaution: 3 Monatsmieten
? Erste Monatsmiete

VERTRAGSBEDINGUNGEN
? Befristung: 5 Jahre
? Kündigungsverzicht: 12 Monate
? Kündigungsfrist: 3 Monate
? benötigtes Mindestnettoeinkommen (Haushalt): doppelte Monatsmiete

__Angaben gemäß gesetzlichem Erfordernis:
Miete €829,12 zzgl 10% USt.Betriebskosten €99,4 zzgl 10% USt.Umsatzsteuer €92,85------------------------------------------------------------------Gesamtbetrag €1021,37------------------------------------------------------------------Heizwärmebedarf:48.7 kWh/(m²a)Klasse Heizwärmebedarf:BFaktor Gesamtenergieeffizienz:1.31Klasse Faktor Gesamtenergieeffizienz:C


Alle Details anzeigen

KONTAKT






 

Lasse dich kostenlos vom Anbieter dieser Immobilie zurückrufen.







 


 
Hubner Immobilien GmbH
Robert Fried
Telefonnummer anzeigen Telefon Allgemein: +4366488296010
 
Bitte dem Makler die FindMyHome.at - ID bekanntgeben: 5575263

Bewertungen dieses Anbieters
Qualitätsmakler
Qualitätsmakler:
2014, 2015, 2016, 2018, 2019, 2020, 2021 , 2025,
Netiquette
Freundlichkeit
84 %

BEWERTUNGEN DIESES ANBIETERS

 
Qualit�tsmakler
Qualitätsmakler
2014, 2015, 2016, 2018, 2019, 2020, 2021 2025
Weiterempfehlung
WIRD GERNE

Freundlichkeit
BESONDERS
FREUNDLICH
Netiquette
FINDMYHOME
NETIQUETTE
Auch du kannst bewerten! 7 Tage nach deiner Anfrage erhältst du dafür von uns ein Bewertungsmail.
Alle Infos zu unseren Auszeichnungen und dem FINDMYHOME.AT Qualitätsprogramm findest du hier: Übersicht anzeigen


Du willst wissen, wie viel dein Umzug kosten wird?

Mach gleich den kostenlosen Preisvergleich und schau, welche seriösen Anbieter in deiner Region günstig deinen Umzug organisieren


ZUM UMZUGS-VERGLEICH
-->

MYHOME BLOG
SuchAgentin auf FindMyHome.at
Unterschiedlichen Rechtsthemen, köstliche Rezepte, neueste Design-Highlights, sowie aktuelle Technik-Tools für Ihr Eigenheim.


FINDMYHOME.AT SUCHAGENTIN
SuchAgentin auf FindMyHome.at
Hallo, soll ich dir ähnliche Immobilien kostenfrei per E-Mail schicken?


ÄHNLICHE IMMOBILIEN
Aehnliche Immobilie - Vorschaubild 1

Lindengasse - 2 Zimmer Neubau mit Garage zu vermieten... - Objektnr. 5564511

47,05 m² - 2.0 Zimmer
1100 €
PLZ: 1070

Mehr anzeigen

Aehnliche Immobilie - Vorschaubild 2

Hofseitige, ruhige Neubauwohnung mit schönem Blick! 6. OG!!!... - Objektnr. 5569271

50,00 m² - 2.0 Zimmer
1215.35 €
PLZ: 1070

Mehr anzeigen

Aehnliche Immobilie - Vorschaubild 3

AB FEBRUAR: Moderne 2-Zimmer Wohnung mit hochwertiger Aussta... - Objektnr. 5571996

50,00 m² - 2.0 Zimmer
1195 €
PLZ: 1070

Mehr anzeigen

Durch die Nutzung unserer Seite erklären Sie sich mit der Verwendung von Cookies zur Verbesserung Ihres Online-Erlebnisses einverstanden. Detaillierte Informationen zu diesem und weiteren Themen erhalten Sie in unserer Datenschutzerklärung.