MEIN ERGEBNIS ANPASSEN

Großzügiges Familienrefugium in absoluter Ruhelage - charmantes Wohnhaus auf 1.000 m² Traumgrundstück in 1220 Wien - Objektnr. 5575199

1220
Ort
146,36 m²
Fläche
7.0
Zimmer

ECKDATEN
FindMyHome.at // Externe Immobilien-ID5575199 // 5102
ImmobilienartHaus - Eigentum
Anschrift1220 Wien
Baujahr1965
Befeuerung
Geschosse2
Fläche146,36 m²
Grundfläche1.000,00 m²
Terrassen1 (3,00 m²)
Zimmer7.0
Bad2
WC2
Kaufpreis:€ 840.000,00
Ratenzahlung:Finanzierungsmöglichkeiten für diese Immobilie anzeigen
Provision: 3% des Kaufpreises zzgl. 20% USt.







BESCHREIBUNG

Großzügiges Familienrefugium in absoluter Ruhelage - charmantes Wohnhaus auf 1.000 m² Traumgrundstück in 1220 Wien

Im Falle der Notwendigkeit einer Fremdfinanzierung Ihrer Wunschimmobilie ermittelt unser Wohnbau-Finanzierungsexperte gerne die optimale Finanzierungslösung und findet das passende Zins- und Konditionsangebot für Sie. Er vergleicht die aktuellen Angebote aller relevanten Banken und Bausparkassen. Der Angebotsvergleich kann aus einem Portfolio von über 120 Banken erfolgen. Das Erstgespräch ist für Sie kostenfrei und unverbindlich, gerne auch bei Ihnen vor Ort. So sparen Sie Ihre wertvolle Zeit und erhalten eine professionelle und unabhängige Finanzierungslösung vom Spezialisten. Sprechen Sie uns wegen eines Termins gerne an! 

 

Zum Verkauf gelangt ein attraktives Zweifamilienhaus im 22. Wiener Gemeindebezirk.

Das im Jahr 1965 errichtete Haus befindet sich auf einem rund 1.000 m² großen Grundstück und bietet eine Wohnfläche von etwa 146 m² und eignet sich perfekt für Familien, die viel Platz, Gestaltungsspielraum und ein idyllisches Wohnumfeld suchen. Der herrliche, weitläufige Garten mit rund 840 m² schafft eine Atmosphäre, die man in Wien nur selten findet und lädt zum Entspannen, Spielen oder Gärtnern ein. 

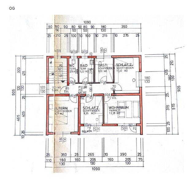
Das Haus erstreckt sich über zwei Wohnebenen mit einem Erdgeschoss von ca. 75 m² und einem Dachgeschoss von ca. 72 m². Ergänzt wird das Raumangebot durch ein überwiegend unterkellertes Untergeschoss mit etwa 51 m². Die Raumaufteilung ist flexibel und ermöglicht sowohl die Nutzung als Einfamilienhaus als auch als Mehrgenerationen-Lösung. Insgesamt stehen sechs Zimmer sowie ein Gästezimmer zur Verfügung, wodurch große Familien, Home-Office-Bedürfnisse problemlos Platz finden. Eine Sauna rundet das Angebot optimal ab.
Eine Garage mit etwa 60 m² sowie weitere Außenstellplätze bieten komfortable Parkmöglichkeiten. Die Liegenschaft verfügt über eine Zentralheizung, wobei sowohl Elektro- als auch Ölheizung gegeben sind. Eine gepflegte Einbauküche sowie ein kleiner Terrassenbereich von etwa 3 m² runden das Angebot ab. Der Zustand ist sehr gut und bietet eine solide Basis für individuelle Modernisierungen oder persönliche Ausbauwünsche.

Das Erdgeschoss teilt sich auf in einen großzügigen Wohnraum mit angrenzendem Essbereich, ein Küche, ein weiteres Zimmer sowie ein Badezimmer und ein separates WC. Über die Treppen gelangen Sie in das Obergeschoss, welches über 4 Zimmer, ein Gästezimmer und ein Badezimmer sowie ein separates WC verfügt. Der Balkon befindet sich ebenfalls in diesem Geschoss. Im Keller finden Sie 3 Räume, welche sich für unterschiedlichste Nutzung anbieten.

Die Lage überzeugt durch absolute Ruhe, kombiniert mit guter Anbindung: Buslinien wie der 24A und 89A sind in wenigen Minuten erreichbar, die U-Bahn-Station Aspern Nord befindet sich in kurzer Fahrdistanz. Nahversorger, Schulen und Freizeitmöglichkeiten liegen im nahen Umfeld.

Für Familien, die in Wien Wohnen mit Natur und Großzügigkeit verbinden möchten, ist dieses Objekt eine seltene Gelegenheit. Die bestehende Widmung W I 6,5 m o 25 % bietet zudem zusätzliche Perspektive für zukünftige Gestaltungs- oder Ausbaumöglichkeiten.

Gerne lassen wir Ihnen bei ernsthaftem Interesse - vor Kaufanbotlegung - weitere vertraulichen Dokumente zu dieser Liegenschaft zukommen, welche nicht veröffentlicht werden dürfen.

Überzeugen Sie sich selbst von diesem überaus attraktiven Objekt. Für Besichtigungen und nähere Informationen stehen wir Ihnen gerne zur Verfügung!

Stephan Wallner
national - Tel: 0664 5228831
international - Tel: +43 664 5228831
e-mail:

Hinweis gemäß Energieausweisvorlagegesetz: Ein Energieausweis wurde vom Eigentümer bzw. Verkäufer, nach unserer Aufklärung über die generell geltende Vorlagepflicht, sowie Aufforderung zu seiner Erstellung noch nicht vorgelegt. Daher gilt zumindest eine dem Alter und der Art des Gebäudes entsprechende Gesamtenergieeffizienz als vereinbart. Wir übernehmen keinerlei Gewähr oder Haftung für die tatsächliche Energieeffizienz der angebotenen Immobilie.

Wir weisen darauf hin, dass zwischen dem Vermittler und dem zu vermittelnden Dritten ein familiäres oder wirtschaftliches Naheverhältnis besteht.

Der Vermittler ist als Doppelmakler tätig.

 

 


Infrastruktur / Entfernungen

Gesundheit
Arzt <4.000m
Apotheke <4.500m
Klinik <4.500m
Krankenhaus <7.500m

Kinder & Schulen
Schule <3.000m
Kindergarten <4.500m
Universität <5.000m
Höhere Schule <5.000m

Nahversorgung
Supermarkt <3.000m
Bäckerei <3.000m
Einkaufszentrum <6.000m

Sonstige
Bank <5.000m
Geldautomat <4.500m
Post <5.000m
Polizei <5.000m

Verkehr
Bus <500m
U-Bahn <4.000m
Straßenbahn <4.000m
Bahnhof <4.000m
Autobahnanschluss <2.000m

Angaben Entfernung Luftlinie / Quelle: OpenStreetMap

Provision: 3% des Kaufpreises zzgl. 20% USt.


Alle Details anzeigen

KONTAKT






 

Lasse dich kostenlos vom Anbieter dieser Immobilie zurückrufen.







 


 
IM Lifestyle Properties GmbH
Stephan Wallner
Telefonnummer anzeigen Telefon Allgemein: +4315121484
Handy Bearbeiter: +436645228831
 
Bitte dem Makler die FindMyHome.at - ID bekanntgeben: 5575199

Bewertungen dieses Anbieters
Qualitätsmakler
Qualitätsmakler:
2019, 2023,
Netiquette
Freundlichkeit

BEWERTUNGEN DIESES ANBIETERS

 
Qualit�tsmakler
Qualitätsmakler
2019, 22/23
Freundlichkeit
BESONDERS
FREUNDLICH
Netiquette
FINDMYHOME
NETIQUETTE
Auch du kannst bewerten! 7 Tage nach deiner Anfrage erhältst du dafür von uns ein Bewertungsmail.
Alle Infos zu unseren Auszeichnungen und dem FINDMYHOME.AT Qualitätsprogramm findest du hier: Übersicht anzeigen

FINANZIERUNG
?>

Du willst wissen, wie viel dein Umzug kosten wird?

Mach gleich den kostenlosen Preisvergleich und schau, welche seriösen Anbieter in deiner Region günstig deinen Umzug organisieren


ZUM UMZUGS-VERGLEICH
-->

MYHOME BLOG
SuchAgentin auf FindMyHome.at
Unterschiedlichen Rechtsthemen, köstliche Rezepte, neueste Design-Highlights, sowie aktuelle Technik-Tools für Ihr Eigenheim.


FINDMYHOME.AT SUCHAGENTIN
SuchAgentin auf FindMyHome.at
Hallo, soll ich dir ähnliche Immobilien kostenfrei per E-Mail schicken?


ÄHNLICHE IMMOBILIEN
Aehnliche Immobilie - Vorschaubild 1

Baustart ist bereits erfolgt!!!! Design meets Nature: Neubau... - Objektnr. 5571690

142,59 m² - 6.0 Zimmer
759000 €
PLZ: 1220

Mehr anzeigen

Aehnliche Immobilie - Vorschaubild 2

1220, Bussongasse, In Esslinger Grünlage nahe U2, Doppelhaus... - Objektnr. 5590552

138,56 m² - 5 Zimmer
906900 €
PLZ: 1220

Mehr anzeigen

Aehnliche Immobilie - Vorschaubild 3

Sanierungsprojekt oder Neubau Private und Bauträger aufgepas... - Objektnr. 5249053

135,00 m² - 5.0 Zimmer
995000 €
PLZ: 1220

Mehr anzeigen

Durch die Nutzung unserer Seite erklären Sie sich mit der Verwendung von Cookies zur Verbesserung Ihres Online-Erlebnisses einverstanden. Detaillierte Informationen zu diesem und weiteren Themen erhalten Sie in unserer Datenschutzerklärung.