MEIN ERGEBNIS ANPASSEN

Willkommen beim Projekt Wildgarten - Ihrem exklusiven Zuhause im Herzen des 12. Bezirks! - Objektnr. 5573873


ökologisch beheizt
1120
Ort
123,62 m²
Fläche
6.0
Zimmer
WEITERE MEDIEN

ECKDATEN
FindMyHome.at // Externe Immobilien-ID5573873 // 68448
ImmobilienartWohnung - Eigentum
AnschriftLore-Kutschera-Weg/1+2
1120 Wien,Meidling
Baujahr2023
Befeuerung
Fernwärme
Geschosse21
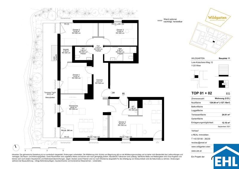
Fläche123,62 m²
Terrassen1 (26,00 m²)
Zimmer6.0
Bad1
WC2
Kaufpreis:€ 549.000,00
Ratenzahlung:Finanzierungsmöglichkeiten für diese Immobilie anzeigen
Provision: Provision bezahlt der Abgeber.







BESCHREIBUNG

Willkommen beim Projekt Wildgarten - Ihrem exklusiven Zuhause im Herzen des 12. Bezirks!

Willkommen beim Projekt Wildgarten - Ihrem exklusiven Zuhause im Herzen des 12. Bezirks!

 

Träumen Sie von einem naturnahen Wohnparadies, das zugleich alle Annehmlichkeiten der Stadt bietet Dann sind Sie beim Wildgarten genau richtig!

Dieses außergewöhnliche Immobilienprojekt wurde mit einem internationalen Städtebaupreis ausgezeichnet und bietet eine exklusive Kombination aus perfekten Wohnungsgrößen und -schnitten und idyllischer Ruhelage. Das Projekt am Rosenhügel, einem Ausläufer des Wienerwaldes im 12. Bezirk, präsentiert Ihnen sowohl städtische wie auch ländliche Qualitäten, ein nachbarschaftliches Leben in und mit der Natur, und das nur 30 Minuten von Wiens Stadtzentrum entfernt. 

 

Besonders hervorzuheben sind die beiden Juwelen des Projekts, Bauplatz 11 und 20, auf denen insgesamt neun stilvolle Häuser entstanden. Sieben dieser Häuser erstrecken sich über 2 bis 4 Geschoße, wodurch ein harmonisches Gefühl von Gemütlichkeit und Großzügigkeit geschaffen wurde. Die beiden anderen Häuser hingegen ragen majestätisch über 8 Geschoße in den Himmel und bieten Ihnen eine atemberaubende Aussicht über die grünen Wipfel des Wildgartens. 

Nachhaltigkeit ist ein zentraler Wert des Projekts WILDGARTEN. Moderne Energiesparmaßnahmen, ressourcenschonende Bauweise und umweltfreundliche Technologien sind hier selbstverständlich.

Das Highlight des Projekts WILDGARTEN ist zweifellos der einladende Gemeinschaftsgarten. Hier finden Bewohner einen Ort der Entspannung und des sozialen Miteinanders. Eine gepflegte Grünanlage lädt zum Verweilen und Genießen ein, während Kinder sich auf dem Spielplatz austoben können. Zudem profitieren die Bewohner von einer perfekten Nahversorgung mit Geschäften, Supermärkten und Restaurants in unmittelbarer Nähe. Der Wildgarten selbst ist eine Oase der Erholung und des Genusses. Umgeben von üppiger Natur und mit viel Liebe zum Detail gestaltet, ist er der ideale Ort, um zur Ruhe zu kommen und neue Energie zu tanken. Hier können Sie entspannen, die Seele baumeln lassen und sich von der Hektik des Alltags zurückziehen. 

Gleich direkt zur Homepage Folgen Sie doch gleich diesem Link https://www.wildgarten.wien/

Ein Projekt der ARE Development.

 

 

Die Bauplätze 11 & 20 -  Die Fakten

  • 7 Gebäude mit 2-4 Etagen, 2 Gebäude mit je 8 Etagen
  • gesamt 104 Wohnungen +  1 Geschäftslokal (33 am Bauplatz 11 und 71 am Bauplatz 20)
  • Breiter Wohnungsmix von 2- bis 4-Zimmern und von 48 m² bis 95 m² Wohnfläche
  • Obsthain, Garten und Wege
  • KFZ-Stellplätze können angemietet werden
  • Fahrrad & Kinderwagenabstellräume sowie Lagerräume
  • Gärten und Dachterrassen mit Blick über Wien 
  • Fernwärme, Fußbodenheizung
  • Energieausweis gültig bis 03.10.2031
    • HWB ab 23,72 kWh/m²a, Klasse B
    • fGEE ab 0,664, Klasse A+

 

Die Ausstattung der schlüsselfertigen Wohnungen wird Sie begeistern:

  • Jede Wohnung mit privater Freifläche wie Garten, Terrasse, Balkon,
  • Eichen Parkettboden in den Wohnräumen
  • Feinsteinzeug in den Nassräumen
  • Dreifach-Isolierverglaste Fenster
  • außenliegender Sonnenschutz

Die Wohnung Lore-Kutschera-Weg 12/1 wird belagsfertig übergeben!

Provisionsfrei für den Käufer!
Die Fertigstellung ist bereits erfolgt!

Hier finden Sie noch mehr Einblick  zum Projekt der ARE: https://www.wildgarten.wien/der-wildgarten/ 

Bei den Fotos handelt es sich um Musterfotos welche eine ersten Eindruck der Ausstattung vermitteln sollen!

 

Lage und Infrastruktur

Vom und zum Wildgarten fährt man mit dem Bus (63A, zukünftig auch 63B) der eigens für den Wildgarten eine neue Haltestelle bekommen wird. Der Bus bringt Sie zum Bahnhof Hetzendorf oder Bahnhof Atzgersdorf mit den Schnellverbindungen der S-Bahn. Mit dem Fahrrad benötigen Sie ca. 20 Minuten in den Wienerwald bzw. Lainzer Tiergarten, oder Sie sind zu Fuß in ca. 15 Minuten im Hietzinger Bad. Den Flughafen erreicht man mit dem Auto in ca. 25 Minuten. Das Zentrum Wiens ist in ca. 30 Minuten erreicht und doch sind Grünflächen und Freizeitangebote in unmittelbarer Umgebung. Das bietet die Lage des WILDGARTENs.

Angebote des täglichen Bedarfs und der sozialen Infrastruktur wie etwa Nahversorgung, zwei Kindergärten und Gastronomie werden direkt am Areal geschaffen.

Wir weisen darauf hin, dass zwischen dem Vermittler und dem zu vermittelnden Dritten ein familiäres oder wirtschaftliches Naheverhältnis besteht.

Der Vermittler ist als Doppelmakler tätig.


Infrastruktur / Entfernungen

Gesundheit
Arzt <1.250m
Apotheke <1.000m
Klinik <1.500m
Krankenhaus <1.000m

Kinder & Schulen
Schule <750m
Kindergarten <1.000m
Universität <3.750m
Höhere Schule <3.750m

Nahversorgung
Supermarkt <500m
Bäckerei <500m
Einkaufszentrum <1.750m

Sonstige
Geldautomat <1.250m
Bank <1.500m
Post <1.500m
Polizei <1.750m

Verkehr
Bus <250m
U-Bahn <1.750m
Straßenbahn <1.500m
Bahnhof <1.500m
Autobahnanschluss <1.750m

Angaben Entfernung Luftlinie / Quelle: OpenStreetMap

Provision: Provision bezahlt der Abgeber.


Alle Details anzeigen

KONTAKT






 

Lasse dich kostenlos vom Anbieter dieser Immobilie zurückrufen.







 


 
EHL Wohnen GmbH
Ingrid Neugebauer
Telefonnummer anzeigen Telefon Allgemein: +4315127690418
Handy Bearbeiter: +4369915212532
 
Bitte dem Makler die FindMyHome.at - ID bekanntgeben: 5573873

Bewertungen dieses Anbieters
Qualitätsmakler
Qualitätsmakler:
Netiquette
Freundlichkeit
82 %

BEWERTUNGEN DIESES ANBIETERS

 
Qualitätsmakler
UNSERE HALL OF FAME DER BESTEN ANBIETER
Qualit�tsmakler
Qualitätsmakler
2012, 2013, 2014, 2015, 2016, 2017, 2018, 2019, 2020, 2021, 22/23, 2024, 2025
Weiterempfehlung
WIRD GERNE

Freundlichkeit
BESONDERS
FREUNDLICH
Netiquette
FINDMYHOME
NETIQUETTE
Auch du kannst bewerten! 7 Tage nach deiner Anfrage erhältst du dafür von uns ein Bewertungsmail.
Alle Infos zu unseren Auszeichnungen und dem FINDMYHOME.AT Qualitätsprogramm findest du hier: Übersicht anzeigen

FINANZIERUNG
?>

Du willst wissen, wie viel dein Umzug kosten wird?

Mach gleich den kostenlosen Preisvergleich und schau, welche seriösen Anbieter in deiner Region günstig deinen Umzug organisieren


ZUM UMZUGS-VERGLEICH
-->

MYHOME BLOG
SuchAgentin auf FindMyHome.at
Unterschiedlichen Rechtsthemen, köstliche Rezepte, neueste Design-Highlights, sowie aktuelle Technik-Tools für Ihr Eigenheim.


FINDMYHOME.AT SUCHAGENTIN
SuchAgentin auf FindMyHome.at
Hallo, soll ich dir ähnliche Immobilien kostenfrei per E-Mail schicken?


ÄHNLICHE IMMOBILIEN
Aehnliche Immobilie - Vorschaubild 1

Besondere Penthousewohnung mit begehbarem Kleiderschrank & S... - Objektnr. 5569302

101,20 m² - 3.0 Zimmer
478000 €
PLZ: 1120

Mehr anzeigen

Aehnliche Immobilie - Vorschaubild 2

"lass Bilder sprechen?.!" - Objektnr. 5537111


109,00 m² - 4.0 Zimmer
620000 €
PLZ: 1120

Mehr anzeigen

Aehnliche Immobilie - Vorschaubild 3

Helle DG-Wohnung mit optimaler Verkehrsanbindung - Objektnr. 5552111

101,00 m² - 3 Zimmer
590000 €
PLZ: 1120

Mehr anzeigen

Durch die Nutzung unserer Seite erklären Sie sich mit der Verwendung von Cookies zur Verbesserung Ihres Online-Erlebnisses einverstanden. Detaillierte Informationen zu diesem und weiteren Themen erhalten Sie in unserer Datenschutzerklärung.