MEIN ERGEBNIS ANPASSEN

Da ist er - Ihr Wiener Wohntraum! Altbaujuwel im letzten Stock mit Balkon & Klima - jetzt zugreifen! - Objektnr. 5573145

1050
Ort
81,53 m²
Fläche
3.0
Zimmer

ECKDATEN
FindMyHome.at // Externe Immobilien-ID5573145 // 290400
ImmobilienartEigentum
AnschriftReinprechtsdorfer Straße
1050 Wien
Baujahr1914
Geschosse4
Fläche81,53 m²
Zimmer3.0
Bad1
WC1
 Abstellraum
Kaufpreis:€ 530.000,00
Ratenzahlung:Finanzierungsmöglichkeiten für diese Immobilie anzeigen
Provision:







BESCHREIBUNG

Da ist er - Ihr Wiener Wohntraum! Altbaujuwel im letzten Stock mit Balkon & Klima - jetzt zugreifen!

Da ist er Ihr Wiener Wohntraum! Altbaujuwel im letzten Stock mit Balkon & Klima jetzt zugreifen!

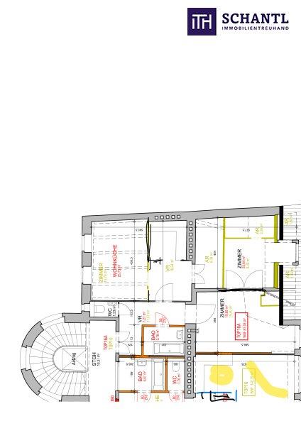
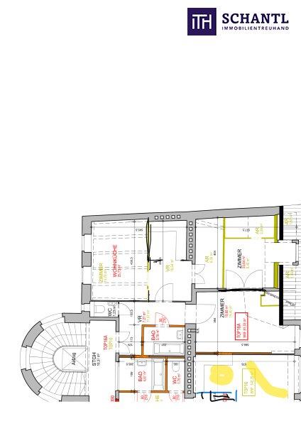
81 m² Traumwohnung mit neuem Balkon, Klimaanlage & Top-Grundriss

Stellen Sie sich vor: Sie öffnen die Türe zu Ihrer neuen Wohnung im letzten Stockwerk hell, ruhig, mit hohen Decken und dem besonderen Flair eines echten Wiener Altbaus.
Und das absolute Highlight: Ihre großzügige Wohnküche erhält einen eigenen Balkon Richtung Innenhof bereits genehmigt und vom Verkäufer errichtet. Ein echtes Stück Lebensqualität, das im Altbau nur selten zu finden ist!

Highlights auf einen Blick:

  • 81,63 m² Wohnfläche im letzten Stock (Lift vorhanden)

  • 2 Schlafzimmer ideal für Paare, kleine Familien oder Homeoffice

  • Großzügige Wohnküche mit Zugang zum neuen Balkon (ca. 7,5 m², genehmigt & vom Verkäufer errichtet)

  • Separates Badezimmer mit Badewanne & separates WC

  • Charmantes Vorzimmer/Entree mit klassischem Altbaucharme

  • Praktischer Abstellraum für zusätzlichen Stauraum

  • Klimaanlage wird vom Verkäufer eingebaut inklusive im Kaufpreis!

  • Frisch ausgemalt vor Übergabe

Kaufpreis: € 530.000,-

(+ € 30.000,- für den genehmigten und vom Verkäufer errichteten Balkon)

Solche Altbauwohnungen mit Balkon im letzten Stock kommen äußerst selten auf den Markt und sind entsprechend gefragt.

Vereinbaren Sie noch heute Ihren Besichtigungstermin, bevor es jemand anderes tut!
 

Jetzt besichtigen bevor es zu spät ist!

Bei konkretem Interesse senden wir Ihnen sehr gerne weiterführende Dokumente zu, wie:

o Grundbuchauszug

o Wohnungseigentumsvertrag

o Nutzwertgutachten

o Eigentümerversammlungsprotokoll (Falls vorhanden) etc...

www.schantl-ith.at


Infrastruktur / Entfernungen

Gesundheit
Arzt <250m
Apotheke <250m
Klinik <750m
Krankenhaus <750m

Kinder & Schulen
Schule <250m
Kindergarten <250m
Universität <750m
Höhere Schule <750m

Nahversorgung
Supermarkt <250m
Bäckerei <250m
Einkaufszentrum <1.000m

Sonstige
Geldautomat <250m
Bank <250m
Post <500m
Polizei <500m

Verkehr
Bus <250m
U-Bahn <250m
Straßenbahn <750m
Bahnhof <750m
Autobahnanschluss <3.500m

Angaben Entfernung Luftlinie / Quelle: OpenStreetMap

Objekt ist für eine Wohngemeinschaft geeignet
Klimaanlage: JA
Barrierefrei: JA
Provision:


Alle Details anzeigen

KONTAKT






 

Lasse dich kostenlos vom Anbieter dieser Immobilie zurückrufen.







 


 
Schantl ITH Immobilientreuhand GmbH
Dejan Ljepoja, MBA
Telefonnummer anzeigen Telefon Allgemein: +436643070009
Handy Bearbeiter: +436601992022
 
Bitte dem Makler die FindMyHome.at - ID bekanntgeben: 5573145

Bewertungen dieses Anbieters
Qualitätsmakler
Qualitätsmakler:
2015, 2016, 2018, 2019, 2020, 2021, 2023 , 2024, 2025,
Netiquette
Freundlichkeit
79 %

BEWERTUNGEN DIESES ANBIETERS

 
Qualit�tsmakler
Qualitätsmakler
2015, 2016, 2018, 2019, 2020, 2021, 22/23, 2024, 2025
Antwortzeit
ø 48h ANTWORT
Weiterempfehlung
WIRD GERNE

Freundlichkeit
BESONDERS
FREUNDLICH
Netiquette
FINDMYHOME
NETIQUETTE
Auch du kannst bewerten! 7 Tage nach deiner Anfrage erhältst du dafür von uns ein Bewertungsmail.
Alle Infos zu unseren Auszeichnungen und dem FINDMYHOME.AT Qualitätsprogramm findest du hier: Übersicht anzeigen

FINANZIERUNG
?>

Du willst wissen, wie viel dein Umzug kosten wird?

Mach gleich den kostenlosen Preisvergleich und schau, welche seriösen Anbieter in deiner Region günstig deinen Umzug organisieren


ZUM UMZUGS-VERGLEICH
-->

MYHOME BLOG
SuchAgentin auf FindMyHome.at
Unterschiedlichen Rechtsthemen, köstliche Rezepte, neueste Design-Highlights, sowie aktuelle Technik-Tools für Ihr Eigenheim.


FINDMYHOME.AT SUCHAGENTIN
SuchAgentin auf FindMyHome.at
Hallo, soll ich dir ähnliche Immobilien kostenfrei per E-Mail schicken?


ÄHNLICHE IMMOBILIEN
Aehnliche Immobilie - Vorschaubild 1

"AH11" - Stilvoll ankommen, zuhause fühlen, genießen! Jetzt ... - Objektnr. 5572369

67,10 m² - 2.0 Zimmer
525000 €
PLZ: 1050

Mehr anzeigen

Aehnliche Immobilie - Vorschaubild 2

NEU! ++ SIEBENBRUNNENPLATZ ++ ERSTBEZUG ++ EXKLUSIVE 3-4 ZIM... - Objektnr. 5568345

68,30 m² - 3.0 Zimmer
599000 €
PLZ: 1050

Mehr anzeigen

Aehnliche Immobilie - Vorschaubild 3

AH11 - Ein prachtvolles Gründerzeithaus erstrahlt in neuem G... - Objektnr. 5572372

73,56 m² - 3.0 Zimmer
551700 €
PLZ: 1050

Mehr anzeigen

Durch die Nutzung unserer Seite erklären Sie sich mit der Verwendung von Cookies zur Verbesserung Ihres Online-Erlebnisses einverstanden. Detaillierte Informationen zu diesem und weiteren Themen erhalten Sie in unserer Datenschutzerklärung.