MEIN ERGEBNIS ANPASSEN

Ruhige Neubauwohnung - modern ausgestattet - großer Balkon - Nähe U4 - Objektnr. 5572668

  • Wohnzimmer
  • Blick zum Balkon
  • hofseitige Lage
  • Küche
  • modernes Bad mit WM Anschluss
  • ruhiges Schlafzimmer
  • Top Ausstattung
  • über 7m² großer Balkon
  • Vorraum mit Platz für Garderobe
  • WC mit Waschbecken
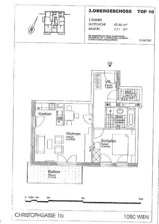
  • Grundriss Top 10
  • Außenansicht
  • Lageplan mit Öffis.JPG
  • IMMY Preisträger
1050
Ort
€ 1.127,85
Gesamtkosten
50,00 m²
Fläche
2.0
Zimmer

ECKDATEN
FindMyHome.at // Externe Immobilien-ID5572668 // 3610/8187
ImmobilienartWohnung - Miete
Anschrift1050 Wien
NäheChristophgasse, Reinprechtsdorfer Straße
HeizungZentralheizung mit Gas
Liftja
KellerJa
Beziehbar ab01.02.2026
Mietdauer5.0
Fläche50,00 m²
Balkon1 (7,11 m²)
Zimmer2.0
Bad1
WC1
Kaution:€ 3.400,00
sonstige Kosten (inkl. MwSt):€ 136,02
Mehrwertsteuer:€ 1.126,85
Monatliche Gesamtkosten:€ 1.127,85




BESCHREIBUNG

Ruhige Neubauwohnung - modern ausgestattet - großer Balkon - Nähe U4

ZUR VERMIETUNG
Moderne, sehr gut aufgeteilte 2-Zimmer-Wohnung in einem schönen, gepflegten Neubau im 5. Bezirk in der Christophgasse.

Die Infrastruktur kann als sehr gut beschrieben werden.

Die Wohnung befindet sich im 3. Obergeschoß und verfügt über ein Wohnzimmer mit einer modernen Markenküche, ein Schlafzimmer, ein Badezimmer mit Badewanne, Doppelwaschbecken und Waschmaschinenanschluss, ein separates WC mit kleinem Waschbecken und einen Vorraum. Der südseitige 7,11m² große Balkon stellt ein absolutes Highlight dar.

RAUMAUFTEILUNG IN STICHWORTEN
? Vorraum
? Wohn-Ess-Zimmer
? offene Küche
? Schlafzimmer
? Bad mit Waschbecken, Badewanne und Waschmaschinenanschluss
? WC mit Waschbecken
? großer Balkon
? Kellerabteil

BESONDERHEITEN AUF EINEN BLICK
? fantastische Lage
? Parkettboden
? moderne Einbauküche mit E-Herd (Ceranfeld), Backrohr, Geschirrspüler, Einbaumikrowellenherd, Kühl-Gefrier-Kombi
? modernes Badezimmer mit Badewanne, Waschbecken und Waschmaschinenanschluss
? tolle Infrastruktur
? sehr schicker, moderner Neubau
? sehr großer Balkon
? Kellerabteil

GUTE ÖFFENTLICHE VERKEHRSANBINDUNG
? U4 Pilgramgasse oder Margaretengürtel
? Autobuslinie 12A, 14A, 59A

Weitere monatliche Kosten
? Warmwasser, Heizung und Strom - werden direkt nach Verbrauch abgerechnet

Erstzahlung
? € 155 Vertragserrichtungshonorar Hausverwaltung (einmalig)
? Kaution: 3 Monatsmieten
? Erste Monatsmiete

VERTRAGSBEDINGUNGEN
? Befristung: 5 Jahre
? Kündigungsverzicht: 12 Monate
? Kündigungsfrist: 3 Monate
? benötigtes Mindestnettoeinkommen (Haushalt): doppelte Monatsmiete


__Angaben gemäß gesetzlichem Erfordernis:
Miete €901,66 zzgl 10% USt.Betriebskosten €123,65 zzgl 10% USt.Umsatzsteuer €102,54------------------------------------------------------------------Gesamtbetrag €1127,85------------------------------------------------------------------Heizwärmebedarf:52.9 kWh/(m²a)Klasse Heizwärmebedarf:CFaktor Gesamtenergieeffizienz:1.1Klasse Faktor Gesamtenergieeffizienz:C


Alle Details anzeigen

KONTAKT






 

Lasse dich kostenlos vom Anbieter dieser Immobilie zurückrufen.







 


 
Hubner Immobilien GmbH
Robert Fried
Telefonnummer anzeigen Telefon Allgemein: +4366488296010
 
Bitte dem Makler die FindMyHome.at - ID bekanntgeben: 5572668

Bewertungen dieses Anbieters
Qualitätsmakler
Qualitätsmakler:
2014, 2015, 2016, 2018, 2019, 2020, 2021 , 2025,
Netiquette
Freundlichkeit
84 %

BEWERTUNGEN DIESES ANBIETERS

 
Qualit�tsmakler
Qualitätsmakler
2014, 2015, 2016, 2018, 2019, 2020, 2021 2025
Weiterempfehlung
WIRD GERNE

Freundlichkeit
BESONDERS
FREUNDLICH
Netiquette
FINDMYHOME
NETIQUETTE
Auch du kannst bewerten! 7 Tage nach deiner Anfrage erhältst du dafür von uns ein Bewertungsmail.
Alle Infos zu unseren Auszeichnungen und dem FINDMYHOME.AT Qualitätsprogramm findest du hier: Übersicht anzeigen


Du willst wissen, wie viel dein Umzug kosten wird?

Mach gleich den kostenlosen Preisvergleich und schau, welche seriösen Anbieter in deiner Region günstig deinen Umzug organisieren


ZUM UMZUGS-VERGLEICH
-->

MYHOME BLOG
SuchAgentin auf FindMyHome.at
Unterschiedlichen Rechtsthemen, köstliche Rezepte, neueste Design-Highlights, sowie aktuelle Technik-Tools für Ihr Eigenheim.


FINDMYHOME.AT SUCHAGENTIN
SuchAgentin auf FindMyHome.at
Hallo, soll ich dir ähnliche Immobilien kostenfrei per E-Mail schicken?


ÄHNLICHE IMMOBILIEN
Aehnliche Immobilie - Vorschaubild 1

MÖBLIERTE 2-ZIMMER WOHNUNG IN TOP-LAGE - Objektnr. 5539078


50,00 m² - 2.0 Zimmer
1250 €
PLZ: 1050

Mehr anzeigen

Aehnliche Immobilie - Vorschaubild 2

Moderne Dachgeschoss-Wohnung mit Freifläche in Bestlage! Näh... - Objektnr. 5570464

54,01 m² - 2.0 Zimmer
1249 €
PLZ: 1050

Mehr anzeigen

Aehnliche Immobilie - Vorschaubild 3

MÖBLIERTE 2-ZIMMER WOHNUNG IN TOP-LAGE - Objektnr. 5539079


50,00 m² - 2.0 Zimmer
1250 €
PLZ: 1050

Mehr anzeigen

Durch die Nutzung unserer Seite erklären Sie sich mit der Verwendung von Cookies zur Verbesserung Ihres Online-Erlebnisses einverstanden. Detaillierte Informationen zu diesem und weiteren Themen erhalten Sie in unserer Datenschutzerklärung.