MEIN ERGEBNIS ANPASSEN

Schöner 3-Zimmer Erstbezug, Nähe Meiselmarkt - Objektnr. 5571884

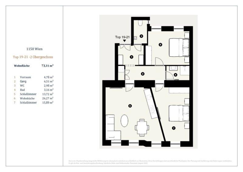
1150
Ort
73,31 m²
Fläche
3.0
Zimmer

ECKDATEN
FindMyHome.at // Externe Immobilien-ID5571884 // 5082
ImmobilienartWohnung - Eigentum
Anschrift1150 Wien,Rudolfsheim-Fünfhaus
Baujahr1909
Befeuerung
Stock2
Fläche73,31 m²
Zimmer3.0
Bad1
WC1
Kaufpreis:€ 399.000,00
Ratenzahlung:Finanzierungsmöglichkeiten für diese Immobilie anzeigen
Provision: 3% des Kaufpreises zzgl. 20% USt.







BESCHREIBUNG

Schöner 3-Zimmer Erstbezug, Nähe Meiselmarkt

 

Im Falle der Notwendigkeit einer Fremdfinanzierung Ihrer Wunschimmobilie ermittelt unser Wohnbau-Finanzierungsexperte gerne die optimale Finanzierungslösung und findet das passende Zins- und Konditionsangebot für Sie. Er vergleicht die aktuellen Angebote aller relevanten Banken und Bausparkassen. Der Angebotsvergleich kann aus einem Portfolio von über 120 Banken erfolgen. Das Erstgespräch ist für Sie kostenfrei und unverbindlich, gerne auch bei Ihnen vor Ort. So sparen Sie Ihre wertvolle Zeit und erhalten eine professionelle und unabhängige Finanzierungslösung vom Spezialisten. Sprechen Sie uns wegen eines Termins gerne an!

 

Zum Verkauf gelangt eine 3-Zimmer Wohnung im 15. Wiener Gemeindebezirk.

Die Wohnung ist ein Erstbezug, verfügt über ca. 73 m², befindet sich im 2. Stock eines schönen Altbaus und gliedert sich in einen Vorraum, zwei Zimmer, eine Wohnküche, ein Badezimmer und ein separates WC. Die Wohnräume sind mit schönem Parkettboden ausgestattet, Bad und WC sind verfliest. Beheizt wird mit Fußbodenheizung.

Sie betreten die Wohnung und befinden sich im Vorraum und einem Korridor, von hier sind alle Zimmer zentral begehbar. Gerade durch gelangen Sie in die geräumige Wohnküche. Die beiden Zimmer befinden sich links und rechts im Gang. Hier befindet sich auch das Badezimmer, welches mit einer Dusche, einem Waschbecken und einem Handtuchtrockner ausgestattet ist. Das separate WC befindet sich im Vorraum.

Der um die Jahrhundertwende errichtete Stilaltbau befindet sich in einer gefragten Wohngegend des 15. Wiener Gemeindebezirks. Nach Renovierung der eleganten Gründerzeitfassade wurden auch sämtliche Allgemeinflächen des Hauses mit viel Liebe zum Detail saniert. Das Zinshaus verfügt über 3 Regelgeschoße.

Neben der sehr guten Verkehrsmittelanbindung bietet die Lage auch eine ausgezeichnete Nahversorgung. Zahlreiche Einkaufsmöglichkeiten, öffentliche Einrichtungen, Parkanlagen und Geschäfte für den täglichen Bedarf befinden sich in unmittelbarer Nähe. Die Infrastruktur ist optimal, da fußläufig alle Bedürfnisse des täglichen Alltags gedeckt werden. Nur ein paar Minuten entfernt liegt der Meiselmarkt. Die U-Bahn-Station U3 "Johnstraße" befindet sich in unmittelbarer Umgebung und bietet somit einen perfekten Anschluss in die Innenstadt.

Die Vertragserrichtung und Treuhandabwicklung ist gebunden an die Kanzlei Mag. Schreiber A-1010 Wien, Schottenring 16. Die Kosten betragen 1,5 % des Kaufpreises zzgl. 20 % USt. sowie Barauslagen und Beglaubigung. Bei Fremdfinanzierung erhöht sich das Honorar auf 1,8 % vom Kaufpreis zzgl. 20 % USt., Barauslagen und Beglaubigung.

Überzeugen Sie sich selbst von dieser Immobilie.

Für Besichtigungen und nähere Informationen stehen wir Ihnen gerne zur Verfügung!

Frau Marie-Louise Eisenburger
national - Tel: 0676 605 9800
international - Tel.: +43 676 605 9800
e-mail:

Wir weisen darauf hin, dass zwischen dem Vermittler und dem zu vermittelnden Dritten ein familiäres oder wirtschaftliches Naheverhältnis besteht.

Der Vermittler ist als Doppelmakler tätig.

 

 


Infrastruktur / Entfernungen

Gesundheit
Arzt <500m
Apotheke <500m
Klinik <1.000m
Krankenhaus <2.000m

Kinder & Schulen
Schule <500m
Kindergarten <500m
Universität <1.000m
Höhere Schule <1.500m

Nahversorgung
Supermarkt <500m
Bäckerei <500m
Einkaufszentrum <500m

Sonstige
Geldautomat <500m
Bank <500m
Post <500m
Polizei <500m

Verkehr
Bus <500m
U-Bahn <500m
Straßenbahn <500m
Bahnhof <500m
Autobahnanschluss <5.000m

Angaben Entfernung Luftlinie / Quelle: OpenStreetMap

Provision: 3% des Kaufpreises zzgl. 20% USt.


Alle Details anzeigen

KONTAKT






 

Lasse dich kostenlos vom Anbieter dieser Immobilie zurückrufen.







 


 
IM Lifestyle Properties GmbH
Marie-Louise Eisenburger
Telefonnummer anzeigen Telefon Allgemein: +4315121484
Handy Bearbeiter: +436766059800
 
Bitte dem Makler die FindMyHome.at - ID bekanntgeben: 5571884

Bewertungen dieses Anbieters
Qualitätsmakler
Qualitätsmakler:
2019, 2023,
Netiquette
Freundlichkeit

BEWERTUNGEN DIESES ANBIETERS

 
Qualit�tsmakler
Qualitätsmakler
2019, 22/23
Freundlichkeit
BESONDERS
FREUNDLICH
Netiquette
FINDMYHOME
NETIQUETTE
Auch du kannst bewerten! 7 Tage nach deiner Anfrage erhältst du dafür von uns ein Bewertungsmail.
Alle Infos zu unseren Auszeichnungen und dem FINDMYHOME.AT Qualitätsprogramm findest du hier: Übersicht anzeigen

FINANZIERUNG
?>

Du willst wissen, wie viel dein Umzug kosten wird?

Mach gleich den kostenlosen Preisvergleich und schau, welche seriösen Anbieter in deiner Region günstig deinen Umzug organisieren


ZUM UMZUGS-VERGLEICH
-->

MYHOME BLOG
SuchAgentin auf FindMyHome.at
Unterschiedlichen Rechtsthemen, köstliche Rezepte, neueste Design-Highlights, sowie aktuelle Technik-Tools für Ihr Eigenheim.


FINDMYHOME.AT SUCHAGENTIN
SuchAgentin auf FindMyHome.at
Hallo, soll ich dir ähnliche Immobilien kostenfrei per E-Mail schicken?


ÄHNLICHE IMMOBILIEN
Aehnliche Immobilie - Vorschaubild 1

Voll ausgestattete 3-Zimmer-Wohnung im 15. Wiener Gemeindebe... - Objektnr. 5589345

81,79 m² - 3.0 Zimmer
395000 €
PLZ: 1150

Mehr anzeigen

Aehnliche Immobilie - Vorschaubild 2

ALTBAU-BALKONWOHNUNG | SANIERTER STILALTBAU | Ca. 2 Min. zur... - Objektnr. 5412930

71,75 m² - 3.0 Zimmer
458724 €
PLZ: 1150

Mehr anzeigen

Aehnliche Immobilie - Vorschaubild 3

++NEU++ Stylische Maisonette im Dachgeschoss - 3 Zimmer mit ... - Objektnr. 5551316

74,83 m² - 3.0 Zimmer
399000 €
PLZ: 1150

Mehr anzeigen

Durch die Nutzung unserer Seite erklären Sie sich mit der Verwendung von Cookies zur Verbesserung Ihres Online-Erlebnisses einverstanden. Detaillierte Informationen zu diesem und weiteren Themen erhalten Sie in unserer Datenschutzerklärung.