MEIN ERGEBNIS ANPASSEN

RIESIGE DACHTERRASSE + HOCHWERTIGE AUSSTATTUNG + SÜD/WEST Ausrichtung! + Tiefgarage! Nur 7 Min. von Graz entfernt!! - Objektnr. 5571770

8075
Ort
€ 1.377,43
Gesamtkosten
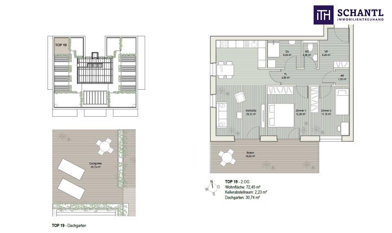
72,45 m²
Fläche
3.0
Zimmer

ECKDATEN
FindMyHome.at // Externe Immobilien-ID5571770 // 290148
ImmobilienartMiete
Anschrift8075 Hart bei Graz
Baujahr2021
Beziehbar ab2025-12-01
Fläche72,45 m²
Terrassen1 (50,00 m²)
Zimmer3.0
Bad1
WC1
 Abstellraum
Brutto-Miete:€ 1.377,43
Betriebskosten (inkl. MwSt):€ 190,19
Mehrwertsteuer:€ 125,22
Monatliche Gesamtkosten:€ 1.377,43
Provision: Gemäß Erstauftraggeberprinzip bezahlt der Abgeber die Provision.




BESCHREIBUNG

RIESIGE DACHTERRASSE + HOCHWERTIGE AUSSTATTUNG + SÜD/WEST Ausrichtung! + Tiefgarage! Nur 7 Min. von Graz entfernt!!

RIESIGE DACHTERRASSE + HOCHWERTIGE AUSSTATTUNG + SÜD/WEST Ausrichtung! + Tiefgarage! Nur 7 Min. von Graz entfernt!!

Diese Traumwohnung besticht durch ihre ideale Raumaufteilung (Süd/West-Ausrichtung!), die hochwertige Ausstattung (Klimaanlage, elektrischer Sonnenschutz! usw.) und der riesengroßen Dachterrasse (+ 30m²!). In nur 7 Minuten sind Sie mit dem Auto in Graz!!

HIGHLIGHTS:

  • Traumhafte Wohnung in Hart bei Graz
  • Fantastische Dachterrasse auf 30,74 m² zum Entspannen
  • Ausreichend Sonnenschein: Süd/West-Ausrichtung!
  • Hochwertige Ausstattung: elektrischer Sonnenschutz, Photovoltaik Anlage etc.
  • Tolle Klimaanlage in Wohn/Esszimmer + Schlafzimmer!
  • Fixer Tiefgaragenstellplatz + Vorbereitung einer E-Ladestation
  • Ausreichend Besucherparkplätze vor dem Haus
  • Perfekte Lage neben Billa und Spar direkt im Zentrum von Hart bei Graz
  • Bis 2,70 m Raumhöhe
  • Barrierefrei

FACTS:

  • 72,45 m² inkl. Balkon + Dachterrasse (+30 m²!)
  • Riesiges Wohn/Esszimmer (+29 m²)
  • Moderne neue Tischlerküche in weiß
  • Großartiges Wohngefühl mit einer Raumhöhe von 2,65 m
  • Abstellraum für genügend Stauraum
  • Eigenes Kellerabteil inkludiert
  • Tiefgaragenplatz PP19
  • Fußbodenheizung

Vereinbaren Sie noch heute eine Besichtigung oder eine persönliche Beratung mit uns!

Sie wollen Ihre Immobilie verkaufen Dann sind Sie bei uns goldrichtig!
Wir sind gerne für Sie da und unterstützen Sie unverbindlich bei der Bewertung Ihrer Immobilie. Mit viel Sorgfalt stellen wir Ihnen alle wichtigen Informationen und Unterlagen zusammen, damit Sie die besten Entscheidungen treffen können.

In Kooperation mit unserer SFI Vermögenstreuhand begleiten wir Sie bei der Verwirklichung Ihres Traumobjekts und unterstützen Sie beim nachhaltigen Vermögensaufbau. Mit unseren erfahrenen Experten sorgen wir dafür, dass Sie die besten Konditionen erhalten damit Ihre Träume Wirklichkeit werden!

http://www.schantl-ith.at in Kooperation mit www.sfi-invest.com 

Die Angaben über das angebotene Objekt erfolgen mit der Sorgfalt eines ordentlichen Immobilienmaklers; für die Richtigkeit solcher Angaben, die auf Informationen der über das Objekt Verfügungsberechtigten beruhen, wird keine Gewähr geleistet!

 

Der Immobilienmakler erklärt, dass er entgegen dem in der Immobilienwirtschaft üblichen Geschäftsgebrauch des Doppelmaklers einseitig nur für den Vermieter tätig ist.


Infrastruktur / Entfernungen

Gesundheit
Arzt <500m
Apotheke <500m
Klinik <5.500m
Krankenhaus <6.000m

Kinder & Schulen
Schule <500m
Kindergarten <500m
Universität <3.500m
Höhere Schule <6.000m

Nahversorgung
Supermarkt <500m
Bäckerei <3.500m
Einkaufszentrum <3.500m

Sonstige
Geldautomat <500m
Bank <500m
Post <3.000m
Polizei <3.000m

Verkehr
Bus <500m
Straßenbahn <3.500m
Autobahnanschluss <3.500m
Bahnhof <1.500m
Flughafen <9.000m

Angaben Entfernung Luftlinie / Quelle: OpenStreetMap

Klimaanlage: JA
Kabel/SAT/TV: JA
Barrierefrei: JA
Provision: Gemäß Erstauftraggeberprinzip bezahlt der Abgeber die Provision.


Alle Details anzeigen

KONTAKT






 

Lasse dich kostenlos vom Anbieter dieser Immobilie zurückrufen.







 


 
Schantl ITH Immobilientreuhand GmbH
Nikolaus Kronabitter
Telefonnummer anzeigen Handy Bearbeiter: +436642540410
 
Bitte dem Makler die FindMyHome.at - ID bekanntgeben: 5571770

Bewertungen dieses Anbieters
Qualitätsmakler
Qualitätsmakler:
2015, 2016, 2018, 2019, 2020, 2021, 2023 , 2024, 2025,
Netiquette
Freundlichkeit
79 %

BEWERTUNGEN DIESES ANBIETERS

 
Qualit�tsmakler
Qualitätsmakler
2015, 2016, 2018, 2019, 2020, 2021, 22/23, 2024, 2025
Antwortzeit
ø 48h ANTWORT
Weiterempfehlung
WIRD GERNE

Freundlichkeit
BESONDERS
FREUNDLICH
Netiquette
FINDMYHOME
NETIQUETTE
Auch du kannst bewerten! 7 Tage nach deiner Anfrage erhältst du dafür von uns ein Bewertungsmail.
Alle Infos zu unseren Auszeichnungen und dem FINDMYHOME.AT Qualitätsprogramm findest du hier: Übersicht anzeigen


Du willst wissen, wie viel dein Umzug kosten wird?

Mach gleich den kostenlosen Preisvergleich und schau, welche seriösen Anbieter in deiner Region günstig deinen Umzug organisieren


ZUM UMZUGS-VERGLEICH
-->

MYHOME BLOG
SuchAgentin auf FindMyHome.at
Unterschiedlichen Rechtsthemen, köstliche Rezepte, neueste Design-Highlights, sowie aktuelle Technik-Tools für Ihr Eigenheim.


FINDMYHOME.AT SUCHAGENTIN
SuchAgentin auf FindMyHome.at
Hallo, soll ich dir ähnliche Immobilien kostenfrei per E-Mail schicken?


Durch die Nutzung unserer Seite erklären Sie sich mit der Verwendung von Cookies zur Verbesserung Ihres Online-Erlebnisses einverstanden. Detaillierte Informationen zu diesem und weiteren Themen erhalten Sie in unserer Datenschutzerklärung.