MEIN ERGEBNIS ANPASSEN

++PROVISIONSFREI++ Hochwertiger 3-Zimmer Neubau-ZWEITBEZUG mit Loggia/Balkon! - Objektnr. 5571615

1100
Ort
€ 1.339,90
Gesamtkosten
76,00 m²
Fläche
3.0
Zimmer

ECKDATEN
FindMyHome.at // Externe Immobilien-ID5571615 // 62438
ImmobilienartWohnung - Miete
AnschriftLaaer-Berg-Straße 110/73
1100 Wien
Baujahr2021
Stock4
Mietdauer5
Fläche76,00 m²
Zimmer3.0
Bad1
WC1
 Abstellraum
Brutto-Miete:€ 1.339,90
Betriebskosten (inkl. MwSt):€ 201,65
Mehrwertsteuer:€ 121,81
Monatliche Gesamtkosten:€ 1.339,90
Provision: Gemäß Erstauftraggeberprinzip bezahlt der Abgeber die Provision.




BESCHREIBUNG

++PROVISIONSFREI++ Hochwertiger 3-Zimmer Neubau-ZWEITBEZUG mit Loggia/Balkon!

Zur befristeten Vermietung gelangt diese toll aufgeteilte und hochwertig ausgestattete ca. 76 m² große Neubauwohnung mit Balkon in der vierten Etage eines Neubaus in toller Lage des 10. Wiener Gemeindebezirk, Am Laaer Berg in unmittelbarer Umgebung zu Wald & Wiesen gelegen.

Das Projekt VIOLAA ist Teil des Stadtentwicklungsgebiets Viola Park und ist in unmittelbarer Nähe zum Naherholungsgebiet Laaer Berg als auch dem Stadion des FK Austria Wien situiert

Grundsätzlich verfügen die 167 Wohnungen über 1, 2, 3 oder 4 Zimmer mit einer Größe von 39 m² bis 93 m².

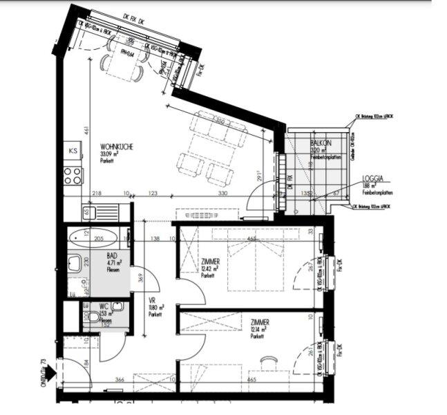
Raumaufteilung: STIEGE B TÜR 73

  • Vorraum 
  • Badezimmer 
  • getrenntes WC
  • Wohnküche
  • Schlafzimmer
  • Zimmer
  • Balkon/Loggia

 (siehe Plan und Fotos vor Erstvermietung)

Zustand/Ausstattung:

Bei allen Wohnungen des Projekts und bei dem gesamten Gebäude handelt es sich um einen hochwertigen Zweitbezug! Alle Wohnungen zeichnen sich durch eine sehr gute Ausstattung aus:

  • Wohnhaus im Niedrigstenergiestandard
  • Vollausgestattete, moderne Küchen (siehe Fotos)
  • Elektrische Jalousien
  • Jede Wohnung mit Kellerabteil
  • Freiflächen mit Wasser- & Stromanschluss & Licht
  • Waschküche mit Waschmaschine und Trockner für Bewohner
  • 2 Gemeinschaftsräume
  • Kinderwagen- und Fahrradraum
  • Großzügige Kinder- und Jugendspielplatz auf Nachbarliegenschaft
  • Kleinkinderspielplatz und Sitzgelegenheit im Innenhof
  • Hochwertige Sanitärausstattung in Wohnung
  • Handwaschbecken bei WCs
  • Handtuchheizkörper im Bad
  • Einbruchhemmende Wohnungseingangstüren
  • Eichenparkett
  • Großformatige Fliesen (30/60)
  • SAT-Gemeinschaftsanlage
  • Rauchmelder in jedem Aufenthaltsraum

Gebäude:

Das Wohnhaus gliedert sich in 3 Bauteile (Stiege A, B und C) zu je 7 Stockwerken. 
Darüber hinaus verfügt das Objekt über 67 Tiefgaragenstellplätze sowie hochwertige Außenanlagen (Fahrradabstellplätze, begrünter Innenhof, befestigte Flächen, Kinderspielbereiche, etc.)
 
Lage/öffentliche Anbindung:

U1 Station "Altes Landgut", ausgezeichnete Nord-Südverbindung durch Wien

Wiener Innenstadt (Karlsplatz/Stephansplatz) kann somit binnen 10 Minuten erreicht werden!

Bus 15A (Bahnhof Meidling - Enkplatz/Grillgasse), Bus 68A (Reumannplatz - Laaer B. Kurpark), Bus 68B (Reumannplatz - Oberlaa

Auch die Anbindung für Autofahrer kann als sehr gut beschrieben werden. Binnen wenigen Minuten gelangt man über den Verteilerkreis Favoriten auf die Südosttangente A23.

  • Wohnen im Grünen

Nähe Parkanlage Löwygrube sowie Erholungsgebiet Laaer Wald. Diese Gebiete sind besonders beliebt für die morgentlichen/abendtlichen Joggingrunden, gemütliche Spaziergänge am Nachmittag oder Treffen mit Freunden am Wochenende.

  • Infrastruktur 

zahlreiche Geschäfte des täglichen Bedarfs (Lebensmittel, Restaurants, Bekleidungsgeschäfte, Apotheken, Banken) sowie auch diverse Facharztpraxen binnen weniger Minuten zu erreichen.

Auch Kindergärten, Volk- und Neue Mittelschulen, Gymnasien und Universitäten sind mit den oben genannten öffentlichen Verkehrsmitteln bestens angebunden. Vor allem die FH Campus Wien ist in der Nähe gelegen (weniger als 15 Minuten zu Fuß erreichbar).

 
Preis:

Die monatliche Gesamtmiete (inkl. Betriebskosten und Ust.) beträgt 1.339,90 €

Die monatlichen Energiekosten (Strom u. Fernwärme) sind nicht in der oben genannten Miete enthalten und sind direkt vom Mieter zu zahlen.

Insgesamt verfügt das Projekt VIOLAA über 67 Tiefgaragen Stellplätze welche für € 120,- / Monat je Stellplatz angemietet werden können.

Die Vermietung erfolgt befristet auf 5 Jahre.

Die Kaution beträgt 3 Brutto-Monatsmieten

Provisionsfrei!

 

Sollten Sie Fragen haben oder einen persönlichen Gesprächstermin wünschen, zögern Sie bitte nicht mich zu kontaktieren.

Zur Vereinbarung eines Besichtigungstermins lassen Sie uns bitte jedenfalls eine E-Mailanfrage zukommen!

Der IMMY ist die renommierteste Auszeichnung für Wiener Makler- und Verwalterbetriebe im Bereich Wohnimmobilien. Wir sind stolz den goldenen IMMY für das Jahr 2019 gewonnen zu haben!

Vielen Dank vor allem an unsere Kunden! Unser Unternehmen wurde auch zum Besten Start Up und in den Jahren 2015, 2018, 2019 und 2020 als Qualitätsmakler ausgezeichnet!

Bitte achten Sie darauf, dass Sie diese Immobilie, nach Ihrer Anfrage bei Adonia Immobilien, nicht auch bei einem anderen Immobilienmaklerbüro anfragen! Vielen Dank!

Alle hier veröffentlichen Informationen basieren auf den uns von dem Abgeber/ der Abgeberin zur Verfügung gestellten Informationen und wurden nicht selbst erhoben.

Unsere Allgemeinen Geschäftsbedingungen können Sie sowohl in dem Ihnen zugesandten Expose einsehen als auch auf unserer Homepage. Wir weisen ausdrücklich darauf hin, dass diese AGBs Vertragsinhalt werden.

Der Schutz von personenbezogenen Daten ist uns wichtig und auch gesetzlich gefordert. Die Verarbeitung Ihrer personenbezogenen Daten erfolgt nach den datenschutzrechtlichen Bestimmungen. Auf unserer Homepage (unter Datenschutzinformation) finden Sie eine Übersicht die Sie über die wichtigsten Aspekte der Verarbeitung personenbezogener Daten informieren soll.

Wir weisen darauf hin, dass zwischen dem Vermittler und dem zu vermittelnden Dritten ein familiäres oder wirtschaftliches Naheverhältnis besteht.

Der Immobilienmakler erklärt, dass er entgegen dem in der Immobilienwirtschaft üblichen Geschäftsgebrauch des Doppelmaklers einseitig nur für den Vermieter tätig ist.


Infrastruktur / Entfernungen

Gesundheit
Arzt <725m
Apotheke <650m
Klinik <1.600m
Krankenhaus <3.325m

Kinder & Schulen
Schule <400m
Kindergarten <575m
Universität <925m
Höhere Schule <3.075m

Nahversorgung
Supermarkt <350m
Bäckerei <775m
Einkaufszentrum <1.200m

Sonstige
Geldautomat <1.175m
Bank <1.175m
Post <1.200m
Polizei <750m

Verkehr
Bus <200m
U-Bahn <675m
Straßenbahn <1.325m
Bahnhof <650m
Autobahnanschluss <600m

Angaben Entfernung Luftlinie / Quelle: OpenStreetMap

Objekt ist für eine Wohngemeinschaft geeignet
Barrierefrei: JA
Provision: Gemäß Erstauftraggeberprinzip bezahlt der Abgeber die Provision.


Alle Details anzeigen

KONTAKT






 

Lasse dich kostenlos vom Anbieter dieser Immobilie zurückrufen.







 


 
Adonia Realitätenvermittlung GmbH
Benjamin Marinkovic
Telefonnummer anzeigen Telefon Allgemein: +436765446834
 
Bitte dem Makler die FindMyHome.at - ID bekanntgeben: 5571615

Bewertungen dieses Anbieters
Qualitätsmakler
Qualitätsmakler:
2015, 2018, 2019, 2020, 2023, 2024,
Netiquette
Freundlichkeit

BEWERTUNGEN DIESES ANBIETERS

 
Qualit�tsmakler
Qualitätsmakler
2015, 2018, 2019, 2020, 22/23, 2024
Freundlichkeit
BESONDERS
FREUNDLICH
Netiquette
FINDMYHOME
NETIQUETTE
Auch du kannst bewerten! 7 Tage nach deiner Anfrage erhältst du dafür von uns ein Bewertungsmail.
Alle Infos zu unseren Auszeichnungen und dem FINDMYHOME.AT Qualitätsprogramm findest du hier: Übersicht anzeigen


Du willst wissen, wie viel dein Umzug kosten wird?

Mach gleich den kostenlosen Preisvergleich und schau, welche seriösen Anbieter in deiner Region günstig deinen Umzug organisieren


ZUM UMZUGS-VERGLEICH
-->

MYHOME BLOG
SuchAgentin auf FindMyHome.at
Unterschiedlichen Rechtsthemen, köstliche Rezepte, neueste Design-Highlights, sowie aktuelle Technik-Tools für Ihr Eigenheim.


FINDMYHOME.AT SUCHAGENTIN
SuchAgentin auf FindMyHome.at
Hallo, soll ich dir ähnliche Immobilien kostenfrei per E-Mail schicken?


ÄHNLICHE IMMOBILIEN
Aehnliche Immobilie - Vorschaubild 1

THE FAVE: Moderne 3-Zimmer-Wohnung mit Balkon direkt am Laae... - Objektnr. 5571288

65,26 m² - 3.0 Zimmer
1419 €
PLZ: 1100

Mehr anzeigen

Aehnliche Immobilie - Vorschaubild 2

3-ZIMMER | GROSSZÜGIGE WEST-LOGGIA | AB 01.01.2026 VERFÜGBAR... - Objektnr. 5567673

84,26 m² - 3.0 Zimmer
1449 €
PLZ: 1100

Mehr anzeigen

Aehnliche Immobilie - Vorschaubild 3

Neubau! Siedlung Rustenfeld! 2-Zimmer Wohnung im Dachgeschos... - Objektnr. 5549734

72,52 m² - 2.0 Zimmer
1399 €
PLZ: 1100

Mehr anzeigen

Durch die Nutzung unserer Seite erklären Sie sich mit der Verwendung von Cookies zur Verbesserung Ihres Online-Erlebnisses einverstanden. Detaillierte Informationen zu diesem und weiteren Themen erhalten Sie in unserer Datenschutzerklärung.