MEIN ERGEBNIS ANPASSEN

Die gute Anlage - Objektnr. 5571466

8280
Ort
901,98 m²
Fläche

ECKDATEN
FindMyHome.at // Externe Immobilien-ID5571466 // 1760/637
ImmobilienartZinshaus - Eigentum
Anschrift8280 Fürstenfeld
Fläche901,98 m²
Grundfläche4.064,00 m²
Kaufpreis:€ 1.575.000,00
Ratenzahlung:Finanzierungsmöglichkeiten für diese Immobilie anzeigen
Provision: 3% des Kaufpreises zzgl. 20% USt.







BESCHREIBUNG

Die gute Anlage

Attraktive Anlageimmobilie in der Bezirkshauptstadt Fürstenfeld, Oststeiermark

Ich freue mich auf Ihren Anruf  
Franz Lind 0699 1008 5785

Diese wertvolle Anlage in der charmanten Bezirkshauptstadt Fürstenfeld bietet eine hervorragende Gelegenheit für Investoren.
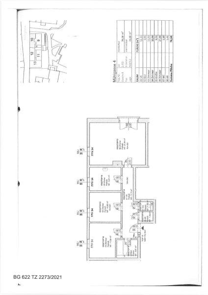
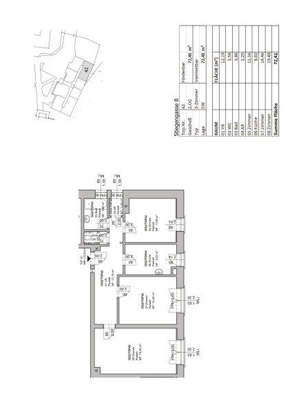
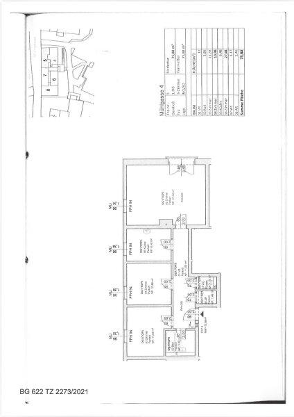
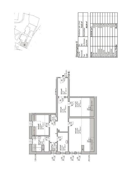
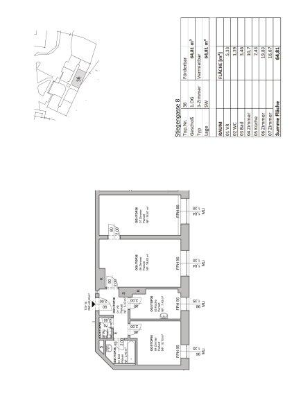
Das Objekt umfasst insgesamt 55 Wohnungen und 31 Kfz Stellplätze, davon steht ein Paket mit 12 Wohnungen und 6 Kfz-Stellplätze zum Ankauf bereit.
Bis auf zwei Einheiten sind sämtliche Wohnungen derzeit befristet vermietet, die Kfz Stellplätze sind zur Gänze vermietet.
Ein ortsansässigen Makler ist mit der Vermietung der beiden leerstehenden Wohnungen beauftragt.
Die Befristungen tragen zur Flexibilität für zukünftige Entwicklungen und Neuvermietungen bei.

Die Wohnungsgrößen variieren zwischen 64 und 88 Quadratmeter, ideal für Singles, Paare oder kleine Familien.
Das Gebäude ist in einem guten Zustand und wurde laufend instandgehalten.
Der Reparaturfonds per August 2025 beträgt rund 68.000 EUR, dies stellt eine solide Rücklage für zukünftige Instandhaltungen da.

Die Jahresmieteinnahmen belaufen sich bei Vollvermietung auf ca. 66.900,- EUR (netto zzgl. Ust. und Betriebskosten) und unterstreichen somit die solide und lukrative Ertragskraft dieser Immobilie.

Die monatliche Reparaturrücklage für die Wohnungen beträgt die gesetzlich vorgeschriebenen 1,06 EUR / qm.  

Lage in Fürstenfeld: Die Immobilie befindet sich in der lebendigen Bezirkshauptstadt, die durch ihre gute Infrastruktur besticht.

Infrastruktur: Einkaufsmöglichkeiten, Schulen, Ärzte, Banken und öffentliche Verkehrsmittel sind bequem erreichbar.

Freizeit und Erholung: Die Stadt bietet zahlreiche Naherholungsgebiete, kulturelle Veranstaltungen und eine lebendige Gemeinschaft.

Verkehrsanbindung: Gute Anbindung an die Autobahn und den öffentlichen Nahverkehr ermöglichen eine schnelle Erreichbarkeit der umliegenden Regionen.

Diese Anlageimmobilie vereint eine stabile Einkommensquelle mit einer attraktiven Lage in der Oststeiermark. Für weitere Informationen oder eine Besichtigung stehe ich Ihnen gerne zur Verfügung!

Ich freue mich auf Ihren Anruf
Franz Lind 0699 1008 5785

Energieklasse:  HWB 80,30kWh/m2a
Keine Gewähr bei Abweichungen der Flächen und Preise etc.

Im Falle des Zustandekommens eines Kaufvertrages, ist an uns die gesetzliche Provision in Höhe von 3 % des Kaufpreises zzgl. der gesetzlichen Umsatzsteuer laut der Verordnung des Bundesministers für wirtschaftliche Angelegenheiten über Standes- und Ausübungsregel für Immobilienmakler (BGBI. 297/1996), zu bezahlen.

Wir weisen darauf hin, dass zwischen dem Vermittler und dem zu vermittelnden Dritten ein familiäres oder wirtschaftliches Naheverhältnis besteht.

Der Vermittler ist als Doppelmakler tätig.

Provision: 3% des Kaufpreises zzgl. 20% USt.


Alle Details anzeigen

KONTAKT






 

Lasse dich kostenlos vom Anbieter dieser Immobilie zurückrufen.







 


 
Lind Immobilien
Franz Lind
Telefonnummer anzeigen Telefon Allgemein: +431526263613
Handy Bearbeiter: +4369910085785
 
Bitte dem Makler die FindMyHome.at - ID bekanntgeben: 5571466

BEWERTUNGEN DIESES ANBIETERS


Die Anzahl der Bewertungen dieses Anbieters ist noch nicht aussagekrätig.
 
Auch du kannst bewerten! 7 Tage nach deiner Anfrage erhältst du dafür von uns ein Bewertungsmail.
Alle Infos zu unseren Auszeichnungen und dem FINDMYHOME.AT Qualitätsprogramm findest du hier: Übersicht anzeigen

FINANZIERUNG
?>

Du willst wissen, wie viel dein Umzug kosten wird?

Mach gleich den kostenlosen Preisvergleich und schau, welche seriösen Anbieter in deiner Region günstig deinen Umzug organisieren


ZUM UMZUGS-VERGLEICH
-->

MYHOME BLOG
SuchAgentin auf FindMyHome.at
Unterschiedlichen Rechtsthemen, köstliche Rezepte, neueste Design-Highlights, sowie aktuelle Technik-Tools für Ihr Eigenheim.


FINDMYHOME.AT SUCHAGENTIN
SuchAgentin auf FindMyHome.at
Hallo, soll ich dir ähnliche Immobilien kostenfrei per E-Mail schicken?


Durch die Nutzung unserer Seite erklären Sie sich mit der Verwendung von Cookies zur Verbesserung Ihres Online-Erlebnisses einverstanden. Detaillierte Informationen zu diesem und weiteren Themen erhalten Sie in unserer Datenschutzerklärung.