MEIN ERGEBNIS ANPASSEN

Wunderschöne 5 - Zimmer Wohnung mit Terrasse und Garten - Objektnr. 5571315


ökologisch beheizt
1190
Ort
€ 4.800,00
Gesamtkosten
192,84 m²
Fläche
5.0
Zimmer

ECKDATEN
FindMyHome.at // Externe Immobilien-ID5571315 // 5011
ImmobilienartWohnung - Miete
Anschrift1190 Wien
Baujahr2006
Befeuerung
Fernwärme
Stock1
Mietdauerunbefristet
Fläche192,84 m²
Terrassen1 (69,00 m²)
Zimmer5.0
Bad2
WC3
 Abstellraum
Brutto-Miete:€ 4.800,00
Betriebskosten (inkl. MwSt):€ 1.293,95
Mehrwertsteuer:€ 436,36
Monatliche Gesamtkosten:€ 4.800,00
Provision: Gemäß Erstauftraggeberprinzip bezahlt der Abgeber die Provision.




BESCHREIBUNG

Wunderschöne 5 - Zimmer Wohnung mit Terrasse und Garten

Zur unbefristeten Vermietung gelangt diese helle 5 - Zimmer Wohnung mit Terrasse und Garten im 19. Wiener Gemeindebezirk Döbling.

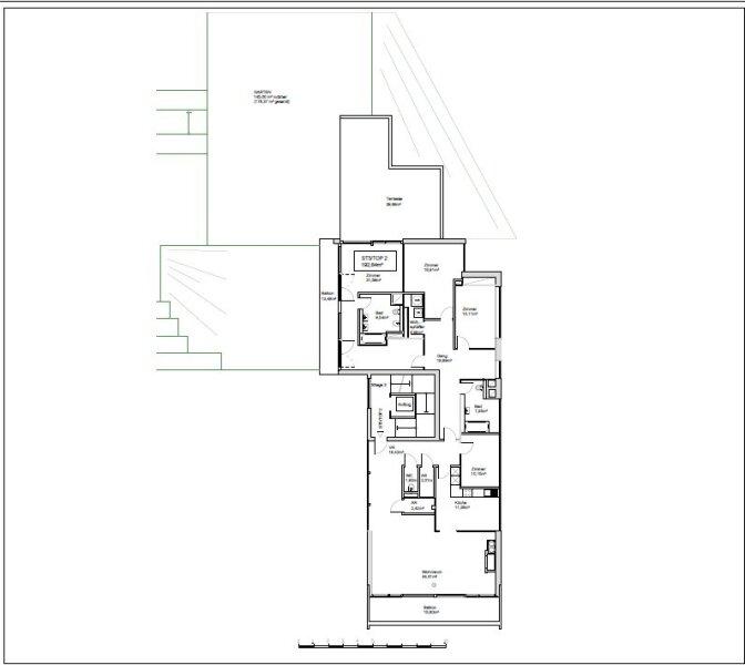
Die Wohnung befindet sich in einem im Jahre 1966 erbauten Neubau, liegt im 1. Stock und ist bequem über einen Lift erreichbar. Sie verfügt über eine Größe von ca.193 m². Die Wohnfläche teilt sich in fünf Zimmer, eine Küche, zwei Badezimmer, ein Gäste-WC, sowie drei Abstellräume auf. Zusätzlich dazu bietet die Wohnung zwei Balkone, einen Garten und eine Terrasse.

Sie betreten die Wohnung und befinden sich im Vorraum, der direkten Zugang zum großen Wohnraum bietet, von hier gelangen Sie auf einen der Balkone. Links durch den Vorraum gelangen Sie zur Küche und zu einem der Zimmer. Weiter im Gang befindet sich rechts eines der Badezimmer, welches mit einer Badewanne, einem Waschbecken und einem WC ausgestattet ist. Geradeaus gelangen Sie zu weiteren zwei der Zimmer und zum Wirtschaftsraum. Links gelangen Sie zum Master-Bedroom mit en-suite Badezimmer und Zugang zu einem Balkon. Von hier gelangt man außerdem auf die Terrasse und den schönen Garten. Im Vorraum befindet sich außerdem zwei Abstellräume und das separate WC.

Das Wohnhaus verfügt über einen Innen- sowie Außenpool. Ergänzt wird das Angebot durch eine Sauna mit integrierter Dusche und WC. Alle Einrichtungen stehen das ganze Jahr über zur Verfügung. Ein weiteres Highlight ist der Weinkeller, der nicht nur über individuelle Weinabteile für jede Wohnung verfügt, sondern auch ideal für Feierlichkeiten genutzt werden kann. Zudem gehört ein Kamin zur Ausstattung jeder Wohnung.

Die Heiz- und Warmwasserkosten werden über die Betriebskostenabrechnung der Hausverwaltung vorgeschrieben; deren genaue Höhe ist jedoch erst bei Vertragsunterzeichnung bekannt.

Für die Wohnungen stehen in den Tiefgaragen Parkplätze zur Verfügung zum Preis von €180,- brutto monatlich.

Die einzigartige Wohnung punktet vor allem durch die ausgezeichnete Lage. Geschäfte des täglichen Bedarfs, wie zum Beispiel Supermärkte, Banken oder Apotheken sind ganz in der Nähe. Ein besonderes Highlight ist auch die Nähe zur Natur, denn Döbling ist bekannt und berühmt für seine grünen Flächen. Mitten im Grünen und dennoch in Innenstadtnähe ist diese Immobilie ideal gelegen. Sie genießen Ihre Ruhe und können trotzdem jederzeit innerhalb kürzester Zeit die Vorzüge einer Großstadt genießen. Unweit der Haustüre befinden sich eine Vielzahl an Geschäften des täglichen Bedarfs wie Supermärkte, Drogerien und Apotheken. Auch für die kulinarischen Bedürfnisse ist gesorgt es befinden sich mehrere Restaurants und Cafés in der Umgebung. Die Anbindung an den öffentlichen Verkehr ist ebenso durch diverse Straßenbahnlinien, welche innerhalb weniger Minuten zu Fuß erreichbar sind, gewährleistet.

Überzeugen Sie sich selbst von dieser traumhaften Wohnung.

Für Besichtigungen und nähere Informationen stehen wir Ihnen gerne zur Verfügung!

Frau Marie-Louise Eisenburger
national - Tel: 0676 605 9800
international - Tel: +43 676 605 9800
e-mail:

Wir weisen darauf hin, dass zwischen dem Vermittler und dem zu vermittelnden Dritten ein wirtschaftliches Naheverhältnis mit gesellschaftlicher Verflechtung besteht.

Der Immobilienmakler erklärt, dass er entgegen dem in der Immobilienwirtschaft üblichen Geschäftsgebrauch des Doppelmaklers einseitig nur für den Vermieter tätig ist.

 

 


Infrastruktur / Entfernungen

Gesundheit
Arzt <500m
Apotheke <1.000m
Klinik <1.500m
Krankenhaus <2.500m

Kinder & Schulen
Schule <1.000m
Kindergarten <1.000m
Universität <1.500m
Höhere Schule <1.500m

Nahversorgung
Supermarkt <500m
Bäckerei <500m
Einkaufszentrum <1.500m

Sonstige
Geldautomat <500m
Bank <500m
Post <1.000m
Polizei <500m

Verkehr
Bus <500m
U-Bahn <2.000m
Straßenbahn <500m
Bahnhof <500m
Autobahnanschluss <1.000m

Angaben Entfernung Luftlinie / Quelle: OpenStreetMap

Klimaanlage: JA
Swimmingpool: JA
Provision: Gemäß Erstauftraggeberprinzip bezahlt der Abgeber die Provision.


Alle Details anzeigen

KONTAKT






 

Lasse dich kostenlos vom Anbieter dieser Immobilie zurückrufen.







 


 
IM Lifestyle Properties GmbH
Marie-Louise Eisenburger
Telefonnummer anzeigen Telefon Allgemein: +4315121484
Handy Bearbeiter: +436766059800
 
Bitte dem Makler die FindMyHome.at - ID bekanntgeben: 5571315

Bewertungen dieses Anbieters
Qualitätsmakler
Qualitätsmakler:
2019, 2023,
Netiquette
Freundlichkeit

BEWERTUNGEN DIESES ANBIETERS

 
Qualit�tsmakler
Qualitätsmakler
2019, 22/23
Freundlichkeit
BESONDERS
FREUNDLICH
Netiquette
FINDMYHOME
NETIQUETTE
Auch du kannst bewerten! 7 Tage nach deiner Anfrage erhältst du dafür von uns ein Bewertungsmail.
Alle Infos zu unseren Auszeichnungen und dem FINDMYHOME.AT Qualitätsprogramm findest du hier: Übersicht anzeigen


Du willst wissen, wie viel dein Umzug kosten wird?

Mach gleich den kostenlosen Preisvergleich und schau, welche seriösen Anbieter in deiner Region günstig deinen Umzug organisieren


ZUM UMZUGS-VERGLEICH
-->

MYHOME BLOG
SuchAgentin auf FindMyHome.at
Unterschiedlichen Rechtsthemen, köstliche Rezepte, neueste Design-Highlights, sowie aktuelle Technik-Tools für Ihr Eigenheim.


FINDMYHOME.AT SUCHAGENTIN
SuchAgentin auf FindMyHome.at
Hallo, soll ich dir ähnliche Immobilien kostenfrei per E-Mail schicken?


ÄHNLICHE IMMOBILIEN
Aehnliche Immobilie - Vorschaubild 1

4 Schlafzimmer! Geräumige Maisonette mit Terrasse und Balkon... - Objektnr. 5643948

189,00 m² - 5.0 Zimmer
4442.04 €
PLZ: 1190

Mehr anzeigen

Aehnliche Immobilie - Vorschaubild 2

HERRLICHE PENTHOUSEWOHNUNG IN CHARMANTEM WINZERHAUS IM ZENTR... - Objektnr. 5551455

205,89 m² - 3.0 Zimmer
3990.01 €
PLZ: 1190

Mehr anzeigen

Aehnliche Immobilie - Vorschaubild 3

LICHTDURCHFLUTETE DACHGESCHOSSWOHNUNG IN KOMPLETT SANIERTEM ... - Objektnr. 5625281

179,11 m² - 5.0 Zimmer
5490 €
PLZ: 1190

Mehr anzeigen

Durch die Nutzung unserer Seite erklären Sie sich mit der Verwendung von Cookies zur Verbesserung Ihres Online-Erlebnisses einverstanden. Detaillierte Informationen zu diesem und weiteren Themen erhalten Sie in unserer Datenschutzerklärung.