MEIN ERGEBNIS ANPASSEN

NÄHE LAINZER TIERGARTEN: Charmante 3-Zimmer-Gartenwohnung mit 218m² privater Grünfläche - Objektnr. 5570811

1130
Ort
85,25 m²
Fläche
3.0
Zimmer

ECKDATEN
FindMyHome.at // Externe Immobilien-ID5570811 // 16079
ImmobilienartWohnung - Eigentum
AnschriftGhelengasse
1130 Wien
Baujahr1909
Befeuerung
Zimmer3.0
Bad1
WC1
Kaufpreis:€ 699.000,00
Ratenzahlung:Finanzierungsmöglichkeiten für diese Immobilie anzeigen
Provision: 3% des Kaufpreises zzgl. 20% USt.







BESCHREIBUNG

NÄHE LAINZER TIERGARTEN: Charmante 3-Zimmer-Gartenwohnung mit 218m² privater Grünfläche

NÄHE LAINZER TIERGARTEN: Charmante 3-Zimmer-Gartenwohnung mit 218m² privater Grünfläche

 

Diese hofseitig gelegene 3-Zimmerwohnung in der Ghelengasse bietet Ruhe, Sonne und jede Menge Gestaltungspotenzial ideal für alle, die eine sanierungsbedürftige Wohnung in eine traumhafte Gartenwohnung verwandeln möchten.

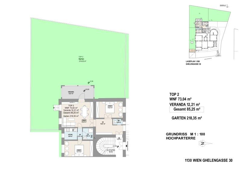
Die Wohnung befindet sich im Erdgeschoss eines gepflegten, familiären Hauses und bietet auf 73,04m² Wohnfläche plus einer 12,21m² großen Veranda eine Gesamtnutzfläche von rund 85m². Die Veranda ist nach Süden, Westen und Norden ausgerichtet und öffnet sich in den privaten Garten mit beeindruckenden 218m².

Das Stiegenhaus und die Fassade wurden 2024 vom Verkäufer aufwendig saniert und präsentieren sich in neuem Glanz. Im modernisierten Keller stehen ein Fahrradraum sowie Kellerabteile für jede Wohnung zur Verfügung.

 

Highlights der Wohnung

  • 218m² private Gartenfläche ein Paradies mitten in der Stadt

  • Hofruhelage jedes Zimmer blickt ins Grüne

  • Altbaucharme hohe Räume, Flügeltüren & Fischgrätparkett

  • Helle Veranda (ca. 12m²) Erweiterung des Wohnraums mit herrlichem Grünblick

  • Separate Küche mit Fenster kein Essensgeruch im Wohnbereich

  • Badezimmer mit Dusche, Waschmaschinenanschluss & Gastherme

  • Sicherheit teilweise versperrbare Fenster & manuelle Außenrollläden

 

Lage Natur und Stadt perfekt vereint

Ruhig und grün, aber mit perfekter Anbindung:
Der Bus vor der Haustür bringt Sie in nur ca. 13 Minuten zur U4. In unmittelbarer Umgebung laden der Rote Berg mit Spielplatz und Outdoor-Fitness-Park, der Lainzer Tiergarten mit der Hermesvilla sowie der Hohenauer Teich zu Spaziergängen und Erholung ein.

Hier genießen Sie das Beste aus beiden Welten:
Natur pur und städtische Lebensqualität mit bester Infrastruktur.

 

Besonderer Hinweis

Um Ihnen das Potenzial dieser Wohnung zu veranschaulichen, wurden Garten, Veranda, Küche, Badezimmer und WC mithilfe von KI visualisiert. So können Sie sich leichter vorstellen, wie diese sanierungsbedürftige Wohnung mit nur wenigen Handgriffen zu einer modernen, einladenden Gartenwohnung werden kann.

 

Ein wunderbarer Ort zum Leben ruhig, grün und voller Möglichkeiten.

 

Öffentliche Verkehrsanbindung:

  • U-Bahnlinie: U4 "Ober St. Veit" (ca. 13 Min. mit dem Bus entfernt oder 12 Min. mit dem Fahrrad)
  • Buslinie: 54A, 54B "Stock im Weg" direkt gegenüber

 

Nebenkosten:

Grundbucheintragung: 1,1% des Kaufpreises

Grunderwerbssteuer: 3,5% des Kaufpreises

Maklerprovision: 3% des Kaufpreises + 20% USt.

Kaufvertragshonorar: 1,2% des Kaufpreises zzgl. USt und Barauslagen I Kaufvertragserstellung erfolgt durch die Kanzlei Tiefenthaler & Gnesda Rechtsanwälte

 

Maklervereinbarung: Wir ersuchen um Verständnis, dass wir bei Anfragen zur Objektadresse, bzw. Besichtigungstermin aufgrund neuer gesetzlicher Bestimmungen Unterlagen erst dann zusenden können, wenn Sie vorab bestätigen, dass Sie unser sofortiges Tätigwerden wünschen und über Ihre Rücktrittsrechte aufgeklärt wurden. Sie bekommen nach Ihrer schriftlichen Anfrage mit vollständiger Angabe des Namens, Anschrift und Telefonnummer ein Email, in dem Sie diese Punkte bestätigen müssen.

 

Haftungsausschluss: Wir weisen darauf hin, dass sämtliche Daten im vorliegenden Angebot sowie die von unserem Büro an Sie weitergegebenen Auskünfte, vom Eigentümer der Immobilie zur Verfügung gestellt wurden. Ebenso sind Informationen von Dritten (z.B. behördliche Informationen) eingeholt worden, auch für diese können wir unsererseits keinerlei Haftung für deren uneingeschränkte Richtigkeit übernehmen.

Wir weisen darauf hin, dass zwischen dem Vermittler und dem zu vermittelnden Dritten ein familiäres oder wirtschaftliches Naheverhältnis besteht.

Der Vermittler ist als Doppelmakler tätig.


Infrastruktur / Entfernungen

Gesundheit
Arzt <500m
Apotheke <750m
Klinik <1.250m
Krankenhaus <1.750m

Kinder & Schulen
Schule <1.250m
Kindergarten <1.000m
Universität <750m
Höhere Schule <5.500m

Nahversorgung
Supermarkt <1.000m
Bäckerei <1.250m
Einkaufszentrum <4.500m

Sonstige
Geldautomat <1.250m
Bank <1.250m
Post <1.250m
Polizei <1.750m

Verkehr
Bus <250m
Straßenbahn <1.250m
U-Bahn <1.750m
Bahnhof <2.000m
Autobahnanschluss <4.000m

Angaben Entfernung Luftlinie / Quelle: OpenStreetMap

Gartennutzung: JA
Kabel/SAT/TV: JA
Provision: 3% des Kaufpreises zzgl. 20% USt.


Alle Details anzeigen

KONTAKT






 

Lasse dich kostenlos vom Anbieter dieser Immobilie zurückrufen.







 


 
Moritz Immobilien
Anita Ochsenhofer
Telefonnummer anzeigen Telefon Allgemein: +4319971693
Handy Bearbeiter: +436607413324
 
Bitte dem Makler die FindMyHome.at - ID bekanntgeben: 5570811

Bewertungen dieses Anbieters
Netiquette

BEWERTUNGEN DIESES ANBIETERS

 
Netiquette
FINDMYHOME.AT
NETIQUETTE
Auch du kannst bewerten! 7 Tage nach deiner Anfrage erhältst du dafür von uns ein Bewertungsmail.
Alle Infos zu unseren Auszeichnungen und dem FINDMYHOME.AT Qualitätsprogramm findest du hier: Übersicht anzeigen

FINANZIERUNG
?>

Du willst wissen, wie viel dein Umzug kosten wird?

Mach gleich den kostenlosen Preisvergleich und schau, welche seriösen Anbieter in deiner Region günstig deinen Umzug organisieren


ZUM UMZUGS-VERGLEICH
-->

MYHOME BLOG
SuchAgentin auf FindMyHome.at
Unterschiedlichen Rechtsthemen, köstliche Rezepte, neueste Design-Highlights, sowie aktuelle Technik-Tools für Ihr Eigenheim.


FINDMYHOME.AT SUCHAGENTIN
SuchAgentin auf FindMyHome.at
Hallo, soll ich dir ähnliche Immobilien kostenfrei per E-Mail schicken?


ÄHNLICHE IMMOBILIEN
Aehnliche Immobilie - Vorschaubild 1

-Rooftop ruft: "Terrasse 73m2, Balkon 15 m2, die top sa... - Objektnr. 5558353

90,00 m² - 3.5 Zimmer
599000 €
PLZ: 1130

Mehr anzeigen

Aehnliche Immobilie - Vorschaubild 2

#SQ - PROVISIONSFREI! - LUXURY LIVING IN OBER ST. VEIT... - Objektnr. 5525659

76,00 m² - 3.0 Zimmer
665000 €
PLZ: 1130

Mehr anzeigen

Aehnliche Immobilie - Vorschaubild 3

Charmante 3-Zimmer-Wohnung in 1130 Wien - Ihr neues Zuhause ... - Objektnr. 5570249

108,56 m² - 3.0 Zimmer
729000 €
PLZ: 1130

Mehr anzeigen

Durch die Nutzung unserer Seite erklären Sie sich mit der Verwendung von Cookies zur Verbesserung Ihres Online-Erlebnisses einverstanden. Detaillierte Informationen zu diesem und weiteren Themen erhalten Sie in unserer Datenschutzerklärung.