MEIN ERGEBNIS ANPASSEN

Nahe Stadtgrenze Baden - Doppelhaushälfte mit Renovierungsbedarf - Objektnr. 5570769

2512
Ort
114,00 m²
Fläche
5.0
Zimmer

ECKDATEN
FindMyHome.at // Externe Immobilien-ID5570769 // 4934
ImmobilienartHaus - Eigentum
Anschrift2512 Tribuswinkel
Baujahr1986
Befeuerung
Fläche114,00 m²
Grundfläche250,00 m²
Terrassen1 (7,00 m²)
Zimmer5.0
Bad2
WC2
Kaufpreis:€ 368.000,00
Ratenzahlung:Finanzierungsmöglichkeiten für diese Immobilie anzeigen
Provision: 3% des Kaufpreises zzgl. 20% USt.







BESCHREIBUNG

Nahe Stadtgrenze Baden - Doppelhaushälfte mit Renovierungsbedarf

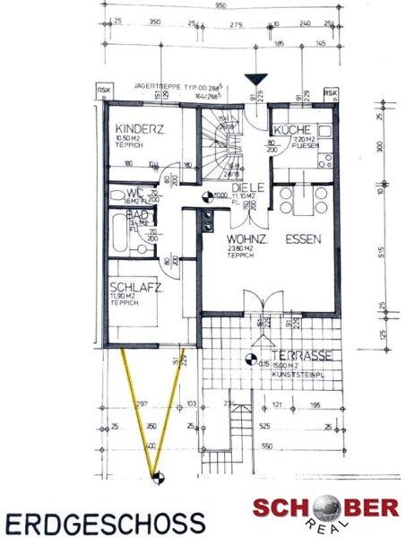
500 Meter von der Stadtgrenze Baden entfernt steht eine Doppelhaushälfte zum Verkauf, die schon etwas in die Jahre gekommen ist. Dieses 1986 erbaute Wohndomizil bedarf einer Modernisierung, besticht aber durch viel Platz auf einer gut eingeteilten Wohnfläche von ca. 114 m2 plus ca. 75 m2 Kellerfläche.

Das Erdgeschoss empfängt Sie mit einem einladenden Vorraum und hellem Stiegenhaus. Von hier aus betritt man das Herzstück des Hauses, das helle Wohnzimmer mit Ausgang in den kleinen Garten. Im Winter schafft ein Kamin behagliche Atmosphäre. Vom Vorraum aus sind weiters begehbar: die Küche, welche mit einer kompletten Einbauküche ausgestattet ist, das Badezimmer mit Wanne, das separate WC, sowie ein Schlafzimmer. Das zweite Schlafzimmer auf dieser Ebene wird derzeit als Arbeitszimmer genützt und ist vom Wohnzimmer aus begehbar. 

Über eine schöne Treppe gelangen Sie in das Obergeschoss, das mit einem großzügigen, lichtdurchfluteten Vorraum und viel Stauraum punktet. Auf dieser Ebene befinden sich zwei weitere Schlafzimmer, ein großes Tageslicht-Badezimmer mit Wanne und WC sowie eine verglaste Loggia, die von beiden Schlafzimmern aus zugänglich ist.

Im Keller finden Sie nicht nur reichlich Stauraum (3 Abstellräume), sondern auch eine gut ausgestattete Waschküche, einen Fitnessraum mit Sauna sowie ein weiteres Zimmer, welches derzeit als Gästezimmer verwendet wird  ideal für Besuch oder Hobbys.

Die Beheizung erfolgt über eine Gaszentralheizung

Ein Autostellplatz befindet sich gleich um die Ecke, welcher dieser Doppelhaushälfte zugeordnet ist. 

Lagebeschreibung:
In unmittelbarer Nähe befinden sich die Buslinien 320, 304 und 310 welche eine schnelle, direkte Verbindung ins Zentrum von Baden und zum Bahnhof gewährleisten. Mit der Schnellbahn erreicht man Wien Hauptbahnhof in 30 Minuten. Mit dem Auto ist man in wenigen Minuten auf der A2 Südautobahn, was eine rasche Verbindung Richtung Wien (ca. 25 Min) oder Richtung Wiener Neustadt ermöglicht.
5 Gehminuten entfernt findet man Post, Apotheke und Supermarkt. Kindergarten und Volksschule befindet sich ums Eck. Naherholungsgebiete und Radwege befinden sich rund um die Schwechat ideal für Spaziergänge, Laufen oder Radausflüge.
Die unmittelbare Nähe zur Kurstadt Baden verleiht dem Standort ein besonderes Maß an Lebensqualität und Komfort!

Wir weisen darauf hin, dass zwischen dem Vermittler und dem zu vermittelnden Dritten ein familiäres oder wirtschaftliches Naheverhältnis besteht.

Der Vermittler ist als Doppelmakler tätig.


Infrastruktur / Entfernungen

Gesundheit
Arzt <500m
Apotheke <1.000m
Klinik <2.000m
Krankenhaus <1.000m

Kinder & Schulen
Schule <500m
Kindergarten <1.000m
Höhere Schule <8.500m

Nahversorgung
Supermarkt <1.000m
Bäckerei <1.500m
Einkaufszentrum <3.500m

Sonstige
Bank <1.000m
Geldautomat <1.000m
Polizei <2.500m
Post <1.500m

Verkehr
Bus <500m
Bahnhof <1.000m
Autobahnanschluss <2.000m
Straßenbahn <1.000m
Flughafen <4.500m

Angaben Entfernung Luftlinie / Quelle: OpenStreetMap

Provision: 3% des Kaufpreises zzgl. 20% USt.


Alle Details anzeigen

KONTAKT






 

Lasse dich kostenlos vom Anbieter dieser Immobilie zurückrufen.







 


 
SCHOBER REAL ImmobilienvermittlungsgmbH | Immobilienvermittlung
Alexandra Schober, MSc
Telefonnummer anzeigen Telefon Allgemein: +436643013180
 
Bitte dem Makler die FindMyHome.at - ID bekanntgeben: 5570769

Bewertungen dieses Anbieters
Qualitätsmakler
Qualitätsmakler:
2017, 2020,
Netiquette
Freundlichkeit

BEWERTUNGEN DIESES ANBIETERS

 
Qualit�tsmakler
Qualitätsmakler
2017, 2020
Freundlichkeit
BESONDERS
FREUNDLICH
Netiquette
FINDMYHOME
NETIQUETTE
Auch du kannst bewerten! 7 Tage nach deiner Anfrage erhältst du dafür von uns ein Bewertungsmail.
Alle Infos zu unseren Auszeichnungen und dem FINDMYHOME.AT Qualitätsprogramm findest du hier: Übersicht anzeigen

FINANZIERUNG
?>

Du willst wissen, wie viel dein Umzug kosten wird?

Mach gleich den kostenlosen Preisvergleich und schau, welche seriösen Anbieter in deiner Region günstig deinen Umzug organisieren


ZUM UMZUGS-VERGLEICH
-->

MYHOME BLOG
SuchAgentin auf FindMyHome.at
Unterschiedlichen Rechtsthemen, köstliche Rezepte, neueste Design-Highlights, sowie aktuelle Technik-Tools für Ihr Eigenheim.


FINDMYHOME.AT SUCHAGENTIN
SuchAgentin auf FindMyHome.at
Hallo, soll ich dir ähnliche Immobilien kostenfrei per E-Mail schicken?


ÄHNLICHE IMMOBILIEN
Aehnliche Immobilie - Vorschaubild 1

Einfamilienhaus mit viel Potenzial in ruhiger Lage von Pfaff... - Objektnr. 5569185

114,78 m² - 5.0 Zimmer
380000 €
PLZ: 2511

Mehr anzeigen

Aehnliche Immobilie - Vorschaubild 2

Eckreihenhaus mit großer Terrasse und Stellplatz!... - Objektnr. 5556712

94,00 m² - 3 Zimmer
375000 €
PLZ: 2514

Mehr anzeigen

Durch die Nutzung unserer Seite erklären Sie sich mit der Verwendung von Cookies zur Verbesserung Ihres Online-Erlebnisses einverstanden. Detaillierte Informationen zu diesem und weiteren Themen erhalten Sie in unserer Datenschutzerklärung.