MEIN ERGEBNIS ANPASSEN

++ NEU ++ Investitionsjuwel: Zinshaus - Fußgängerzone von Wiener Neustadt - Objektnr. 5570601

  • Bild 21
  • 7
  • 6
  • 9
  • 8
  • 4
  • 3
  • 1
  • 2
  • Bild 20
  • 5
  • Grundsrücksgrenze
  • Bild 24
  • Lageplan
  • Bild 19
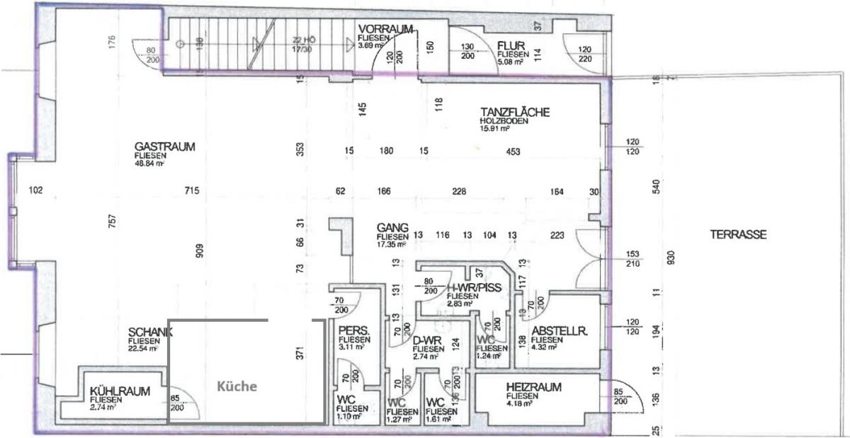
  • EG Lokal
  • Bild 22
  • Restaurant 1 OG
  • Bild 23
  • Restaurant OG
  • Wohnung 1
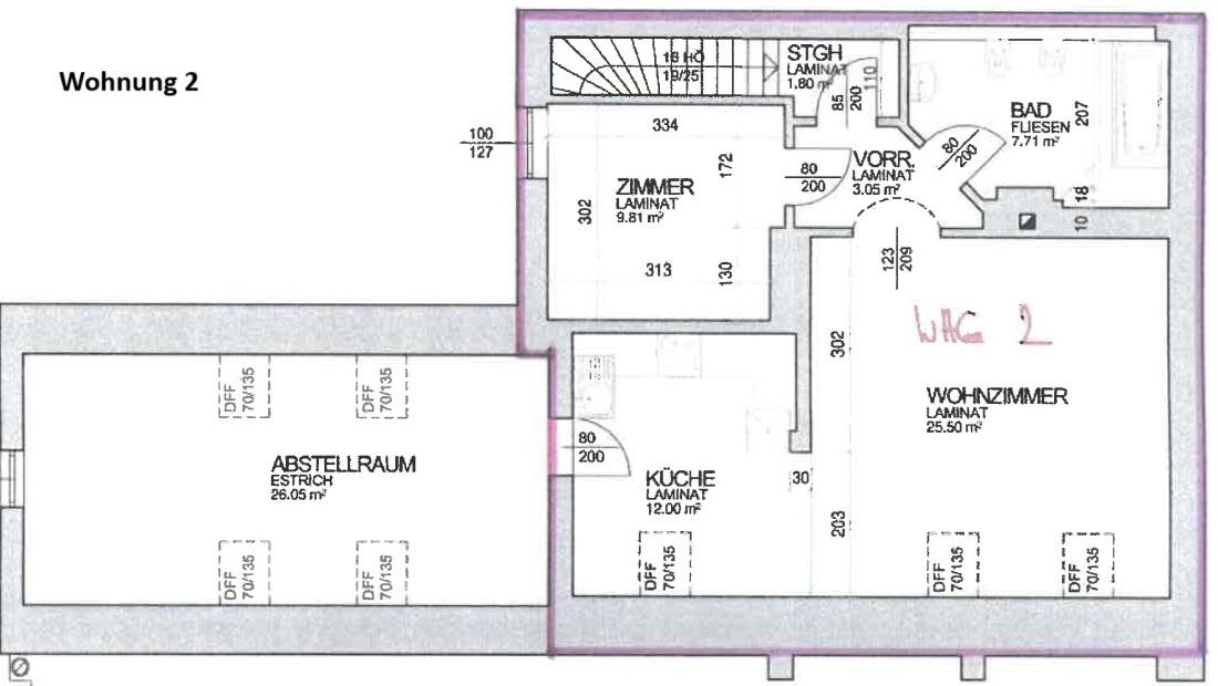
  • Wohnung 2
  • Prima Logo
2700
Ort
880,00 m²
Fläche

ECKDATEN
FindMyHome.at // Externe Immobilien-ID5570601 // 362/10063
ImmobilienartZinshaus - Eigentum
Anschrift2700 Wiener Neustadt
Baujahr1931
Alt- oder NeubauAltbau
NäheZentrum - Fußgängerzone
Geschosse3
Grundfläche650,00 m²
Kaufpreis:€ 674.000,00
Ratenzahlung:Finanzierungsmöglichkeiten für diese Immobilie anzeigen
Mehrwertsteuer:€ 1.998,00
Provision: 3%







BESCHREIBUNG

++ NEU ++ Investitionsjuwel: Zinshaus - Fußgängerzone von Wiener Neustadt

++ NEU ++ Investitionsjuwel: Zinshaus - Fußgängerzone von Wiener Neustadt

++ Zinshaus im Herzen von Wiener Neustadt ++

++ Geschäftslokal, Wohnungen & großes Potenzial ++

Zum Verkauf gelangt ein charaktervolles Zinshaus in bester Innenstadtlage von Wiener Neustadt, direkt auf der Fußgängerzone.
Das Gebäude steht auf einem rund 650 m² großen Grundstück und wurde in massiver Bauweise errichtet.

Das Haus verfügt über eine beeindruckende Geschäftsfläche im Erdgeschoss mit rund 541,08 m², die sich ideal für Handel, Gastronomie oder Dienstleistung eignet.

Im Obergeschoss befindet sich ein Lokal mit ca. 136,34 m² Nutzfläche sowie einem angrenzenden Wintergarten von rund 132 m², der viel Licht und ein angenehmes Raumgefühl bietet.

Im hinteren Trakt des Grundstücks befindet sich ein Nebengebäude mit zwei Wohneinheiten:
Wohnung 1: ca. 103,98 m² mit einer Veranda
Wohnung 2 (Dachgeschoss): ca. 95,73 m² inkl. Abstellraum

Der Dachboden des Hauptgebäudes ist derzeit nicht ausgebaut und beherbergt die Lüftungsanlage. Das Dach wurde im Jahr 1985 ausgebaut und das Gebäude 1955 teilweise umgebaut. Eine Sanierung hat vor einigen Jahren stattgefunden.
Es liegt keine Betriebsanlagengenehmigung vor.

Kaufpreis:
Der Kaufpreis beträgt nur EUR 674.000.-

Das Zinshaus steht unter Schutzwürdigkeit – eine Sanierung ist möglich, das äußere Erscheinungsbild soll erhalten bleiben.
Beheizt wird das Objekt mittels eines Gaskessels sowie einer Gasetagenheizung.

Dank der zentralen Lage und des barrierefreien Zugangs in das Gewerbelokal im Erdgeschoss bietet die Liegenschaft vielfältige Nutzungsmöglichkeiten – ideal für Investoren, Gastronomen oder Unternehmer mit neuen Geschäftsideen.

Lage & Infrastruktur:

Die Immobilie befindet sich direkt im Zentrum von Wiener Neustadt, in der beliebten Fußgängerzone mit hoher Frequenz. In unmittelbarer Umgebung befinden sich zahlreiche Geschäfte, Cafés, Restaurants, Banken sowie öffentliche Einrichtungen.Das Wiener Neustädter Dom ist nur wenige Schritte entfernt, ebenso wie der Hauptplatz und die FH Wiener Neustadt.

Verkehrsanbindung:

Bahnhof Wiener Neustadt: ca. 10 Gehminuten
Busverbindungen: Direktanbindung an mehrere Stadt- und Regionalbuslinien
Autobahn A2 (Südautobahn): ca. 10 Minuten Fahrzeit
Flughafen Wien-Schwechat: ca. 40 Minuten Fahrzeit

Parkmöglichkeiten sind in den umliegenden Parkgaragen sowie in den Kurzparkzonen der Innenstadt vorhanden.

Besonderheiten:

+ Massivbauweise, Baujahr ca. 1931 laut Energieausweis
+ Großzügige Geschäftsfläche mit barrierefreiem Zugang
+ Großzügige Gewerbefläche im Obergeschoss
+ Zwei zusätzliche Wohneinheiten im Nebengebäude
+ Ausbaupotenzial im Dachboden
+ Schutzwürdiges Gebäude mit klassischem Erscheinungsbild
+ Beste Innenstadtlage mit hoher Passantenfrequenz

Nebenkosten:

Grunderwerbssteuer: 3,5% vom Kaufpreis
Grundbucheintragungsgebühren: 1,1% vom Kaufpreis
Kosten der Vertragserrichtung: nach Vereinbarung
Maklerprovision: 3,0% vom Kaufpreis + Ust.

EXKLUSIVE VERMARKTUNG UND PERSÖNLICHE BERATUNG DURCH:

Franziska Schmutz - Prima Service Immobilien
Mobil: 0664 346 13 11
Mail: office@ps-immo.co.at
Homepage: www.ps-immo.co.at

MEHR ALS NUR EIN MAKLER - WIR BIETEN IHNEN DEN BESTEN SERVICE!


Wir halten fest, dass kein wirtschaftliches Naheverhältnis zum Abgeber besteht - eine Weitergabe an andere Interessenten ohne Rücksprache mit uns ist nicht gestattet. Prima Service PS Immobilien tritt als Doppelmakler auf. Alle Angaben sind ohne Gewähr und basieren ausschließlich auf Informationen, die uns von unserem Auftraggeber zur Verfügung gestellt wurden.Wir übernehmen keine Gewähr für die Vollständigkeit, Richtigkeit und Aktualität dieser Angaben.Provision: 3%


Alle Details anzeigen

KONTAKT






 

Lasse dich kostenlos vom Anbieter dieser Immobilie zurückrufen.







 


 
Prima Service PS Immobilien
PS Immo
Telefonnummer anzeigen Handy Bearbeiter: +436643461311
 
Bitte dem Makler die FindMyHome.at - ID bekanntgeben: 5570601

Bewertungen dieses Anbieters
Qualitätsmakler
Qualitätsmakler:
2019, 2024, 2025,
Freundlichkeit

BEWERTUNGEN DIESES ANBIETERS

 
Qualit�tsmakler
Qualitätsmakler
2019, 2024, 2025
Freundlichkeit
BESONDERS
FREUNDLICH
Auch du kannst bewerten! 7 Tage nach deiner Anfrage erhältst du dafür von uns ein Bewertungsmail.
Alle Infos zu unseren Auszeichnungen und dem FINDMYHOME.AT Qualitätsprogramm findest du hier: Übersicht anzeigen

FINANZIERUNG
?>

Du willst wissen, wie viel dein Umzug kosten wird?

Mach gleich den kostenlosen Preisvergleich und schau, welche seriösen Anbieter in deiner Region günstig deinen Umzug organisieren


ZUM UMZUGS-VERGLEICH
-->

MYHOME BLOG
SuchAgentin auf FindMyHome.at
Unterschiedlichen Rechtsthemen, köstliche Rezepte, neueste Design-Highlights, sowie aktuelle Technik-Tools für Ihr Eigenheim.


FINDMYHOME.AT SUCHAGENTIN
SuchAgentin auf FindMyHome.at
Hallo, soll ich dir ähnliche Immobilien kostenfrei per E-Mail schicken?


ÄHNLICHE IMMOBILIEN
Aehnliche Immobilie - Vorschaubild 1

Exklusives Einfamilienhaus mit Terrasse, Pool und Doppelgara... - Objektnr. 5586551

198,00 m² - 6 Zimmer
799000 €
PLZ: 2700

Mehr anzeigen

Durch die Nutzung unserer Seite erklären Sie sich mit der Verwendung von Cookies zur Verbesserung Ihres Online-Erlebnisses einverstanden. Detaillierte Informationen zu diesem und weiteren Themen erhalten Sie in unserer Datenschutzerklärung.