MEIN ERGEBNIS ANPASSEN

Tokiostraße: 4 Zimmer-Maisonetten-Wohnung mit einer Loggia und Terrasse + optionaler Garagenstellplatz! - Objektnr. 5570432


ökologisch beheizt
1220
Ort
104,00 m²
Fläche
4.0
Zimmer

ECKDATEN
FindMyHome.at // Externe Immobilien-ID5570432 // 3833
ImmobilienartEigentum
AnschriftTokiostraße
1220 Wien
Baujahr2004
Befeuerung
Fernwärme
Stock5
Fläche104,00 m²
Zimmer4.0
Bad1
WC2
 Abstellraum
Kaufpreis:€ 699.000,00
Ratenzahlung:Finanzierungsmöglichkeiten für diese Immobilie anzeigen
Provision: 3% des Kaufpreises zzgl. 20% USt.







BESCHREIBUNG

Tokiostraße: 4 Zimmer-Maisonetten-Wohnung mit einer Loggia und Terrasse + optionaler Garagenstellplatz!

Zum Verkauf gelangt hier eine 4 Zimmer - Maisonetten - Wohnung mit viel Freifläche und optionalem Garagenstellplatz! 

 

Die Wohnung ist sehr gut gelegen und sehr gut aufgeteilt. 

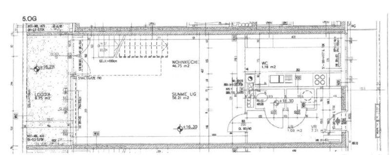
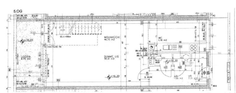
Im unteren Bereich befindet sich die großzügige Wohnküche, zwei Abstellräume, eine separate Toilette (WC), der Zugang zur unteren Terrasse und der Vorraum mit Sicherheitstür, Garderobenschränken und noch viel mehr Stauraum. 

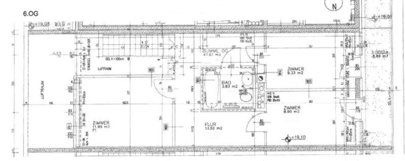
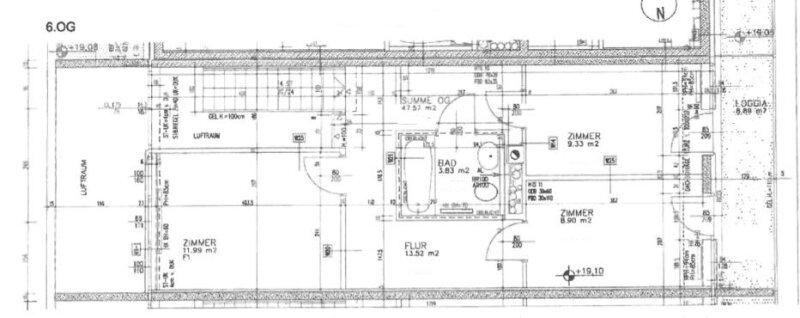
Im oberen Bereich befinden sich ein Badezimmer mit einem zweiten WC, die drei Schlafzimmer und eine weitere hofseitige Loggia (östlich orientiert) mit Zugang von beiden Schlafzimmern aus.

Die Freifläche lädt zum Entspannen und Verweilen ein. Auf den Gängen und im Eingangsbereich der Zimmer sind Wandverbauschränke montiert, die sehr viel Platz anbieten für Ihre Garderobe und Sachen. 

Die Küche ist vollwertig und wurde verschönert und neue Geräte adaptiert. Hier gibt es ein Fenster zum Hof zum lüften und auch zum Querlüften ideal. Natürlich gibt es auch einen Dunstabzug und Ventilator in der Küche, Bad und WC. 

Ein Kellerabteil wird mitveräußert als Zubehör. 

Ein Garagenstellplatz kann bei Bedarf extra hinzu gekauft werden. 

 

Hinweis:

Die Bilder wurden teilweise mit KI verbessert und optimiert. 

 

Ausstattung:

Komplett ausgestattete Küche mit neuen Geräten, drei separat begehbare Schlafzimmer, Badezimmer mit Wanne und Waschmaschinenanschluss, sowie eine Toilette im oberen Bereich. In den Wohnräumen wurde Parkettboden verlegt, die Nassräume wurden verfliest. Eine Waschmaschine befindet sich in der Küche.. 

 

Hausanlage:

Ein Lift, Keller, Fahrrad- und Kinderwagenraum, sowie ein riesengroßer Hobbyraum / Kinderspielraum und eine Dachterrasse sind im Haus vorhanden und können mitbenützt werden. Zur allgemeinen Benützung steht sowohl ein Indoor-, als auch ein Outdoor-Sportplatz zur Verfügung, eine Waschküche, Fahrrad- und Kinderwagenraum, Dachterrasse, Garten mit Kinderspielplatz und Indoor-Spielplatz.

 

Energiekennzahlen:

Der Heizwärmebedarf beträgt: 48 kWhm²/a (B).

 

Lage:

Die gute Lage dieses Objekts gewährleistete eine gute Infrastruktur und Verkehrsanbindung. Geschäfte des täglichen Bedarfs finden Sie in unmittelbarer Umgebung. Die nahe gelegene Alte Donau bietet Erholung und Freizeitmöglichkeiten. Viele Einkaufsmöglichkeiten im nahegelegenen Donauzentrum mit hunderten von Geschäften und Gastrobetrieben. Zum Kirchblütenpark, Erste Bank Arena, Attemsgasse, Donaufelderstraße, Vienna International School, Japanische Schule, Donauzentrum, Donauplex, Segelschule, Sportcenter, Donaucity, Gänsehäufel, Strandbad,  Alte Donau etc. sind es nur wenige Gehminuten und es befindet sich alles in der Nähe. Sehr gute Einkaufsmöglichkeiten und gastronomische Versorgung in direkter Wohnumgebung. Die VETMED (Veterinärmedizinische Universität Wien) ist auch zu Fuß sehr schnell zu erreichen.

 

Öffentliche Verkehrsanbindung

U-Bahnlinie U1 "Kagran" (wenige Gehminuten) / Straßenbahnlinien 25, 26 / Buslinien 27A

 

Anreise mit den öffentlichen Verkehrsmitteln: 

ab Westbahnhof: U6 in Richtung Floridsdorf bis Floridsdorf, weiter mit der Straßenbahnlinie 26 in Richtung Kagran bis Josef-Baumann-Gasse/Veterinärmedizinische Universität oder weiter mit der Straßenbahnlinie 25 in Richtung Aspern, Oberdorfstraße bis Tokiostraße.

ab Wien Hauptbahnhof: U1 in Richtung Leopoldau bis Kagraner Platz,weiter mit der Straßenbahnlinie 26 in Richtung Strebersdorf bis Veterinärmedizinische Universität / Tokiostraße, oder U1 in Richtung Leopoldau bis Kagran, weiter mit der Buslinie 27A in Richtung Hermann-Gebauer-Straße bis Veterinärmedizinische Universität oder weiter mit der Straßenbahnlinie 25 in Richtung Floridsdorf bis Tokiostraße.

mit Schnellbahnen: S1 (Richtung Gänserndorf), S2 (Richtung Mistelbach), S3 (Richtung Hollabrunn), S15 (Richtung Floridsdorf) bis Floridsdorf, weiter mit der Straßenbahnlinie 26 in Richtung Kagran bis Josef-Baumann-Gasse/Veterinärmedizinische Universität oder weiter mit der Straßenbahnlinie 25 in Richtung Aspern, Oberdorfstraße bis Tokiostraße.

Anreise vom Flughafen Schwechat: ein Bus (Vienna Airport Lines, Postbus) fährt vom Flughafen Wien Schwechat direkt nach Wien Donauzentrum (über Vienna International Center VIC)/U1-Station Kagran (Fahrzeit ca. 40 Minuten). Dann weiter mit der Buslinie 27A in Richtung Hermann-Gebauer-Straße bis Veterinärmedizinische Universität / Tokiostraße.

 

 

Konditionen:

Kaufpreis: € 698.000,--

Grunderwerbssteuer: 3,5 % vom KP (Kaufpreis);

Grundbucheintragung: 1,1% vom KP (Möglichkeit auf Befreiung wenn Erstimmobilie und zum dringenden Wohnbedürfnis gekauft wird);

Kaufvertragserrichtungskosten + Notar: Treuhandschaft und Beglaubigungen: i.d.R.:   % vom KP + 20% MwSt.;

Maklerhonorar: 3 % vom KP + 20 % MwSt.

ev. Pfandrechtseintragungskosten: 1,2% vom KP (Möglichkeit auf Befreiung wenn Erstimmobilie und zum dringenden Wohnbedürfnis gekauft wird);

 

 

Laut Auskunft der Hausverwaltung:

Es sind zur Zeit keine größeren Instandhaltungsarbeiten geplant. 

Sollten jedoch Fenster nicht reparabel sein, werden diese ausgetauscht.

Für diese Arbeiten werden wir einen Betrag von € 80.000,- in der Vorausschau anführen.

Ein genereller Tausch der Fenster ist nicht vorgesehen. 

Die Instandhaltungsrücklage beträgt mit Stichtag (07.10.2025):  € 179.700,--.

 

 

Dienstleistung für Anleger:

Sie möchten nach Erwerb der Immobilie mit der Vermietung und eventuellen Fragen während des Mietverhältnisses nicht beschäftigt sein

Wir stehen Ihnen mit einem Dienstleistungskonzept für Anleger zur Verfügung. Gerne übermitteln wir Ihnen bei Bedarf die Unterlagen hierfür.

 

 

Finanzierung:

Sie suchen nach einer passenden Finanzierung für dieses Objekt

Um Ihnen Ihre wertvolle Zeit und Ihr Geld zu sparen, stehen wir Ihnen auch hier tatkräftig zur Seite!

Gerne stehen wir Ihnen für ein unverbindliches und kostenloses Erstberatungsgespräch zur Verfügung.

Wir beraten Sie verlässlich und professionell!

Sparen Sie Ihre kostbare Zeit mit unzähligen Bankterminen.

 

 

Kontakt

Bitte beachten Sie, dass wir aufgrund der Nachweispflicht gegenüber dem Eigentümer nur Anfragen mit vollständiger Angabe der Anschrift bearbeiten können.

Wir senden Ihnen gerne weitere und detaillierte Beschreibungen, sowie Besichtigungstermine zu, sobald wir Ihre Anfrage erhalten haben.

Wir bitten Sie daher um eine Email Anfrage an:

Noch nichts gefunden Wir informieren Sie über geeignete Immobilienangebote noch vor allen anderen.
Legen Sie jetzt Ihren individuellen Suchagenten unter folgendem Link an. Wir schicken Ihnen passende Immobilien exklusiv vorab zu.
Suchagent anlegen - https://pr-immobilien-real-estate.service.immo/registrieren/de

Der Vermittler ist als Doppelmakler tätig.


Infrastruktur / Entfernungen

Gesundheit
Arzt <500m
Apotheke <500m
Klinik <2.750m
Krankenhaus <2.750m

Kinder & Schulen
Schule <500m
Kindergarten <250m
Universität <750m
Höhere Schule <1.000m

Nahversorgung
Supermarkt <500m
Bäckerei <750m
Einkaufszentrum <750m

Sonstige
Geldautomat <750m
Bank <750m
Post <1.000m
Polizei <750m

Verkehr
Bus <250m
U-Bahn <750m
Straßenbahn <250m
Bahnhof <750m
Autobahnanschluss <2.250m

Angaben Entfernung Luftlinie / Quelle: OpenStreetMap

Objekt ist für eine Wohngemeinschaft geeignet
Klimaanlage: JA
Gartennutzung: JA
Kabel/SAT/TV: JA
Provision: 3% des Kaufpreises zzgl. 20% USt.


Alle Details anzeigen

KONTAKT






 

Lasse dich kostenlos vom Anbieter dieser Immobilie zurückrufen.







 


 
PR-IMMOBILIEN / REAL ESTATE
Radisa Paunovic
Telefonnummer anzeigen Telefon Allgemein: +436644041547
Handy Bearbeiter: +436644041547
 
Bitte dem Makler die FindMyHome.at - ID bekanntgeben: 5570432

Bewertungen dieses Anbieters
Netiquette
Freundlichkeit
80 %

BEWERTUNGEN DIESES ANBIETERS

 
Antwortzeit
ø 48h ANTWORT
Weiterempfehlung
WIRD GERNE

Freundlichkeit
BESONDERS
FREUNDLICH
Netiquette
FINDMYHOME
NETIQUETTE
Auch du kannst bewerten! 7 Tage nach deiner Anfrage erhältst du dafür von uns ein Bewertungsmail.
Alle Infos zu unseren Auszeichnungen und dem FINDMYHOME.AT Qualitätsprogramm findest du hier: Übersicht anzeigen

FINANZIERUNG
?>

Du willst wissen, wie viel dein Umzug kosten wird?

Mach gleich den kostenlosen Preisvergleich und schau, welche seriösen Anbieter in deiner Region günstig deinen Umzug organisieren


ZUM UMZUGS-VERGLEICH
-->

MYHOME BLOG
SuchAgentin auf FindMyHome.at
Unterschiedlichen Rechtsthemen, köstliche Rezepte, neueste Design-Highlights, sowie aktuelle Technik-Tools für Ihr Eigenheim.


FINDMYHOME.AT SUCHAGENTIN
SuchAgentin auf FindMyHome.at
Hallo, soll ich dir ähnliche Immobilien kostenfrei per E-Mail schicken?


ÄHNLICHE IMMOBILIEN
Aehnliche Immobilie - Vorschaubild 1

Zeit für Besonderes! Absolutes WOW - Familienwohnung der Ext... - Objektnr. 5565495

107,12 m² - 5.0 Zimmer
681590 €
PLZ: 1220

Mehr anzeigen

Aehnliche Immobilie - Vorschaubild 2

Herbstaktion! WOW - Ab ins Dachgeschoss mit 3 Terrassen! Kli... - Objektnr. 5565388

101,39 m² - 3.0 Zimmer
565045 €
PLZ: 1220

Mehr anzeigen

Aehnliche Immobilie - Vorschaubild 3

The Liberty: Doppelhaushälfte mit Gartenoase in direkter U-B... - Objektnr. 5572145

116,08 m² - 4.0 Zimmer
735080 €
PLZ: 1220

Mehr anzeigen

Durch die Nutzung unserer Seite erklären Sie sich mit der Verwendung von Cookies zur Verbesserung Ihres Online-Erlebnisses einverstanden. Detaillierte Informationen zu diesem und weiteren Themen erhalten Sie in unserer Datenschutzerklärung.