MEIN ERGEBNIS ANPASSEN

Erstbezug! 4-Zimmer Luxusapartment mit Balkon, Nähe Wertheimsteinpark - Objektnr. 5570313

1190
Ort
123,76 m²
Fläche
4.0
Zimmer

ECKDATEN
FindMyHome.at // Externe Immobilien-ID5570313 // 2523
ImmobilienartEigentum
Anschrift1190 Wien
Baujahr1970
Befeuerung
Stock4
Fläche123,76 m²
Zimmer4.0
Bad2
WC2
 Abstellraum
Kaufpreis:€ 990.000,00
Ratenzahlung:Finanzierungsmöglichkeiten für diese Immobilie anzeigen
Provision: 3% des Kaufpreises zzgl. 20% USt.







BESCHREIBUNG

Erstbezug! 4-Zimmer Luxusapartment mit Balkon, Nähe Wertheimsteinpark

Im Falle der Notwendigkeit einer Fremdfinanzierung Ihrer Wunschimmobilie ermittelt unser Wohnbau-Finanzierungsexperte gerne die optimale Finanzierungslösung und findet das passende Zins- und Konditionsangebot für Sie. Er vergleicht die aktuellen Angebote aller relevanten Banken und Bausparkassen. Der Angebotsvergleich kann aus einem Portfolio von über 120 Banken erfolgen. Das Erstgespräch ist für Sie kostenfrei und unverbindlich, gerne auch bei Ihnen vor Ort. So sparen Sie Ihre wertvolle Zeit und erhalten eine professionelle und unabhängige Finanzierungslösung vom Spezialisten. Sprechen Sie uns wegen eines Termins gerne an!

 

Zum Verkauf gelangt eine luxuriöse 4-Zimmer Wohnung mit Balkon im 19. Wiener Gemeindebezirk, Nähe Wertheimsteinpark.

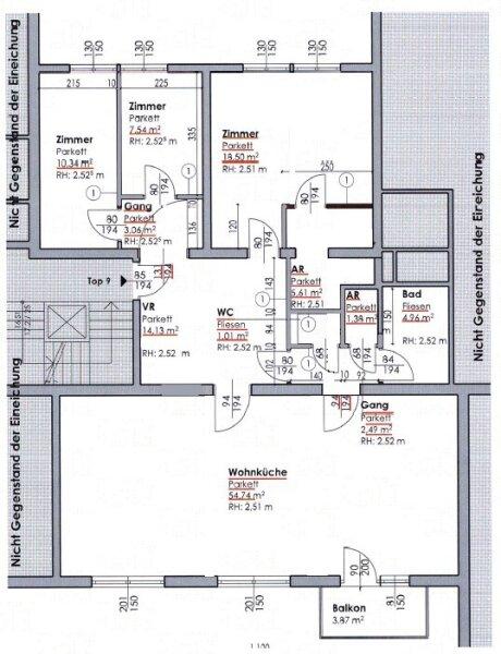
Die Immobilie befindet sich im vierten Liftstock eines im Jahr 1970 erbauten Hauses und weist eine Wohnfläche von ca. 123 m² auf. Die Wohnung teilt sich in einen Vorraum, eine Wohnküche, drei weitere Zimmer, zwei Bäder, ein Gäste-WC, einen Abtstellraum und einen Balkon auf. Die Haupträume sind mit wunderschönem Fischgrätparkett ausgelegt, der Vorraum, der Küchenbereich und die Nassräume sind mit hochwertigen Fliesen ausgekleidet. Die Wohnung verfügt über ein modernes Smart Home System. Es handelt sich um einen Erstbezug. Eine Waschküche im Keller und ein trockenes Kellerabteil sind ebenfalls vorhanden.

Sie betreten die Wohnung und gelangen in den großzügigen Vorraum, der genügend Platz für eine Garderobe bietet. Rechts finden Sie das Herzstück dieser eleganten Wohnung vor, die ca. 54 m² große Wohnküche mit Zugang zum ca. 4 m² großen Balkon, der Platz für eine gemütliche Sitzgelegenheit zum Entspannen bietet. Die Designerküche ist mit hochwertigen Geräten der Marke Siemens ausgestattet und bietet viel Stauraum. Gegenüber finden Sie die drei weiteren Zimmer vor. Ganz rechts befindet sich das mit ca. 18 m² größte der drei Zimmer, in dem Sie ausreichend Platz für ein großes Bett und einen Kleiderschrank finden. Das Badezimmer en Suite ist mit einer wunderbaren Glasdusche sowie einer Toilette ausgestattet. Hier treffen Sie außerdem auf edle Keramik sowie Designerarmaturen. Das zweite Zimmer bietet mit ca. 10 m² Fläche Platz für ein weiteres Schlafzimmer. Das dritte, etwas kleinere Zimmer könnte beispielsweise als Arbeitszimmer genutzt werden. Vom Vorraum aus erreichen Sie außerdem das zweite Bad, den Abstellraum und das Gäste-WC. Das luxuriöse Bad ist mit einer Dusche sowie einer Badewanne ausgestattet. Die Wohnung wird mittels Elektroheizung beheizt.

Die Lage des Objekts kann als ausgezeichnet bewertet werden. Die Buslinien 10A, 35A und 39A, die Straßenbahnlinien 37 und 38 sowie die S- Bahnstation Öberdöbling sind in wenigen Gehminuten zu erreichen und bringen Sie schnell in das Stadtzentrum. Geschäfte des täglichen Bedarfs sowie einige Lokale befinden sich in unmittelbarer Nähe. Für nähere Informationen zur Infrastruktur, fordern Sie bitte unser Exposé an.

Gerne lassen wir Ihnen bei ernsthaftem Interesse - vor Kaufanbotlegung - weitere vertraulichen Dokumente zu dieser Liegenschaft zukommen, welche nicht veröffentlicht werden dürfen.

Überzeugen Sie sich selbst von diesem überaus attraktiven Objekt. Für Besichtigungen und nähere Informationen stehen wir Ihnen gerne zur Verfügung!

Mag. Viola Wasmuth
national - Tel: 0670 4039361
international - Tel: +43 670 4039361
e-mail:

Wir weisen darauf hin, dass zwischen dem Vermittler und dem zu vermittelnden Dritten ein familiäres oder wirtschaftliches Naheverhältnis besteht.

Der Vermittler ist als Doppelmakler tätig.

 

 


Infrastruktur / Entfernungen

Gesundheit
Arzt <500m
Apotheke <500m
Klinik <500m
Krankenhaus <500m

Kinder & Schulen
Schule <500m
Kindergarten <500m
Universität <500m
Höhere Schule <500m

Nahversorgung
Supermarkt <500m
Bäckerei <500m
Einkaufszentrum <2.000m

Sonstige
Geldautomat <500m
Bank <500m
Post <500m
Polizei <1.000m

Verkehr
Bus <500m
U-Bahn <1.000m
Straßenbahn <500m
Bahnhof <1.000m
Autobahnanschluss <1.000m

Angaben Entfernung Luftlinie / Quelle: OpenStreetMap

Provision: 3% des Kaufpreises zzgl. 20% USt.


Alle Details anzeigen

KONTAKT






 

Lasse dich kostenlos vom Anbieter dieser Immobilie zurückrufen.







 


 
IM Lifestyle Properties GmbH
Viola Wasmuth
Telefonnummer anzeigen Telefon Allgemein: +4315121484
Handy Bearbeiter: +436704039361
 
Bitte dem Makler die FindMyHome.at - ID bekanntgeben: 5570313

Bewertungen dieses Anbieters
Qualitätsmakler
Qualitätsmakler:
2019, 2023,
Netiquette
Freundlichkeit

BEWERTUNGEN DIESES ANBIETERS

 
Qualit�tsmakler
Qualitätsmakler
2019, 22/23
Freundlichkeit
BESONDERS
FREUNDLICH
Netiquette
FINDMYHOME
NETIQUETTE
Auch du kannst bewerten! 7 Tage nach deiner Anfrage erhältst du dafür von uns ein Bewertungsmail.
Alle Infos zu unseren Auszeichnungen und dem FINDMYHOME.AT Qualitätsprogramm findest du hier: Übersicht anzeigen

FINANZIERUNG
?>

Du willst wissen, wie viel dein Umzug kosten wird?

Mach gleich den kostenlosen Preisvergleich und schau, welche seriösen Anbieter in deiner Region günstig deinen Umzug organisieren


ZUM UMZUGS-VERGLEICH
-->

MYHOME BLOG
SuchAgentin auf FindMyHome.at
Unterschiedlichen Rechtsthemen, köstliche Rezepte, neueste Design-Highlights, sowie aktuelle Technik-Tools für Ihr Eigenheim.


FINDMYHOME.AT SUCHAGENTIN
SuchAgentin auf FindMyHome.at
Hallo, soll ich dir ähnliche Immobilien kostenfrei per E-Mail schicken?


ÄHNLICHE IMMOBILIEN
Aehnliche Immobilie - Vorschaubild 1

Maulbertschgasse 7 - Exklusives Wohnen in Bestlage: Charmant... - Objektnr. 5558099

130,00 m² - 3.0 Zimmer
825000 €
PLZ: 1190

Mehr anzeigen

Aehnliche Immobilie - Vorschaubild 2

Wohn(T)raum am Wasser: Modernes Wohnen im grünen 19.Bezirk... - Objektnr. 5418666

110,00 m² - 3.0 Zimmer
1150000 €
PLZ: 1190

Mehr anzeigen

Aehnliche Immobilie - Vorschaubild 3

Wohn(T)raum am Wasser: Luxuriöse Oase mit Concierge Service... - Objektnr. 5456390

138,00 m² - 4.0 Zimmer
950000 €
PLZ: 1190

Mehr anzeigen

Durch die Nutzung unserer Seite erklären Sie sich mit der Verwendung von Cookies zur Verbesserung Ihres Online-Erlebnisses einverstanden. Detaillierte Informationen zu diesem und weiteren Themen erhalten Sie in unserer Datenschutzerklärung.