MEIN ERGEBNIS ANPASSEN

Nähe U2-Bacherplatz - Objektnr. 5569550

  • Hausansicht hofseitig
  • Hausansicht
  • Stiegenhaus
  • Stiegenhaus
  • Innenhof
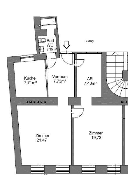
  • Grundriss
1050
Ort
67,37 m²
Fläche
3.0
Zimmer

ECKDATEN
FindMyHome.at // Externe Immobilien-ID5569550 // 2981
ImmobilienartWohnung - Eigentum
Anschrift1050 Wien,Margareten
Stock1
Fläche67,37 m²
Zimmer3.0
Bad1
WC1
 Abstellraum
Kaufpreis:€ 298.000,00
Ratenzahlung:Finanzierungsmöglichkeiten für diese Immobilie anzeigen
Provision: 3% des Kaufpreises zzgl. 20% USt.







BESCHREIBUNG

Nähe U2-Bacherplatz

FAST FACTS: 1050 | EIGENTUM | 67,37m² | 2 Zimmer - durch Umbau 3 Zimmer möglich | € 298.000,-- | 1.Liftstock | sanierungsbedürftig | Ausgezeichnete Lage Nähe Reinprechtsdorfer Straße

Bringen Sie neues Leben in die alten Gemäuer  ganz nach Ihrem Geschmack!

In zentraler Lage, nur ein paar Schritte von der neu gestalteten Reinprechtsdorfer Straße entfernt, befindet sich diese sanierungsbedürftige Wohnung im 1. Liftstock in einem umfassend sanierten Gebäude.

Zwei große Zimmer, eine Küche und der Abstellraum bieten vielfältige Möglichkeiten - durch Verlegung der Küche in den Wohnbereich könnten zwei Schlafzimmer geschaffen werden.  

Die Wohnung erfordert eine Generalsanierung, neue Kunststofffenster mit 3-facher Verglasung werden jedoch eingebaut.
Ein Kellerabteil ist im Kaufpreis enthalten. Das Dachgeschoß ist bereits ausgebaut.

Das Gebäude selbst wurde in den letzten Jahren umfangreich saniert:
Die straßenseitigen und hofseitigen Fassaden wurden trockengelegt, neu verputzt und frisch gestrichen, das Stiegenhaus wurde ausgemalt und mit moderner LED-Beleuchtung ausgestattet, und im Keller sorgt eine neue Be- und Entlüftungsanlage für ein gutes Klima. Zudem wurde der Innenhof mit Fahrradabstellplätzen entsiegelt, begrünt und neu gestaltet.

Highlights:

  • Klassische Altbauwohnung mit großem Gestaltungspotenzial
  • Bereits saniertes Gebäude (Fassade, Stiegenhaus, Keller, Innenhof, Garage)
  • Ausgezeichnete Lage und beste öffentliche Anbindung

Raumaufteilung derzeit:

  • 2 große Zimmer 
  • Küche
  • Abstellraum 
  • Bad mit WC
  • Vorraum

Ausstattung

  • Parkett
  • Teppich
  • Einzelöfen
  • Kellerabteil
  • Neue Kunststofffenster mit 3-facher Verglasung (werden demnächst eingebaut)
     

Für einen Besichtigungstermin oder Fragen stehe ich Ihnen gern zur Verfügung.

Wir möchten darauf hinweisen, dass zwischen ViennaEstate Makler GmbH und dem Auftraggeber ein wirtschaftliches Naheverhältnis besteht. Die ViennaEstate Makler GmbH ist als Doppelmakler tätig.

 

Wir weisen darauf hin, dass zwischen dem Vermittler und dem zu vermittelnden Dritten ein familiäres oder wirtschaftliches Naheverhältnis besteht.

Der Vermittler ist als Doppelmakler tätig.


Infrastruktur / Entfernungen

Gesundheit
Arzt <500m
Apotheke <500m
Klinik <1.000m
Krankenhaus <1.000m

Kinder & Schulen
Schule <500m
Kindergarten <500m
Universität <1.000m
Höhere Schule <1.000m

Nahversorgung
Supermarkt <500m
Bäckerei <500m
Einkaufszentrum <1.000m

Sonstige
Geldautomat <500m
Bank <500m
Post <500m
Polizei <500m

Verkehr
Bus <500m
U-Bahn <500m
Straßenbahn <1.000m
Bahnhof <1.000m
Autobahnanschluss <3.500m

Angaben Entfernung Luftlinie / Quelle: OpenStreetMap

Provision: 3% des Kaufpreises zzgl. 20% USt.


Alle Details anzeigen

KONTAKT






 

Lasse dich kostenlos vom Anbieter dieser Immobilie zurückrufen.







 


 
ViennaEstate Makler GmbH
Christina Radel
Telefonnummer anzeigen Telefon Allgemein: +4312360155813
Handy Bearbeiter: +4367683985813
 
Bitte dem Makler die FindMyHome.at - ID bekanntgeben: 5569550

Bewertungen dieses Anbieters
Qualitätsmakler
Qualitätsmakler:
2015, 2016, 2017, 2018, 2019, 2020, 2023 ,
Netiquette
Freundlichkeit

BEWERTUNGEN DIESES ANBIETERS

 
Qualit�tsmakler
Qualitätsmakler
2015, 2016, 2017, 2018, 2019, 2020, 22/23
Freundlichkeit
BESONDERS
FREUNDLICH
Netiquette
FINDMYHOME
NETIQUETTE
Auch du kannst bewerten! 7 Tage nach deiner Anfrage erhältst du dafür von uns ein Bewertungsmail.
Alle Infos zu unseren Auszeichnungen und dem FINDMYHOME.AT Qualitätsprogramm findest du hier: Übersicht anzeigen

FINANZIERUNG
?>

Du willst wissen, wie viel dein Umzug kosten wird?

Mach gleich den kostenlosen Preisvergleich und schau, welche seriösen Anbieter in deiner Region günstig deinen Umzug organisieren


ZUM UMZUGS-VERGLEICH
-->

MYHOME BLOG
SuchAgentin auf FindMyHome.at
Unterschiedlichen Rechtsthemen, köstliche Rezepte, neueste Design-Highlights, sowie aktuelle Technik-Tools für Ihr Eigenheim.


FINDMYHOME.AT SUCHAGENTIN
SuchAgentin auf FindMyHome.at
Hallo, soll ich dir ähnliche Immobilien kostenfrei per E-Mail schicken?


ÄHNLICHE IMMOBILIEN
Aehnliche Immobilie - Vorschaubild 1

* 1050 WIEN * MV SEIT 1991 * 2,5 ZIMMER * UNBEFRISTET VERMIE... - Objektnr. 4798859

80,60 m² - 2.5 Zimmer
306250 €
PLZ: 1050

Mehr anzeigen

Aehnliche Immobilie - Vorschaubild 2

| SANIERTER ALTBAU | WÄRMEPUMPE | TOP ANBINDUNG |... - Objektnr. 5584524

61,03 m² - 2.0 Zimmer
349000 €
PLZ: 1050

Mehr anzeigen

Aehnliche Immobilie - Vorschaubild 3

++NEU++ sanierungsbedürftige 3 Zimmerwohnung in toller Lage... - Objektnr. 5589155

68,00 m² - 3.0 Zimmer
268900 €
PLZ: 1050

Mehr anzeigen

Durch die Nutzung unserer Seite erklären Sie sich mit der Verwendung von Cookies zur Verbesserung Ihres Online-Erlebnisses einverstanden. Detaillierte Informationen zu diesem und weiteren Themen erhalten Sie in unserer Datenschutzerklärung.