MEIN ERGEBNIS ANPASSEN

UNBEFRISTET: 2-Zimmer-Wohnung mit separater Küche ab FEBRUAR 2026! - Objektnr. 5568658

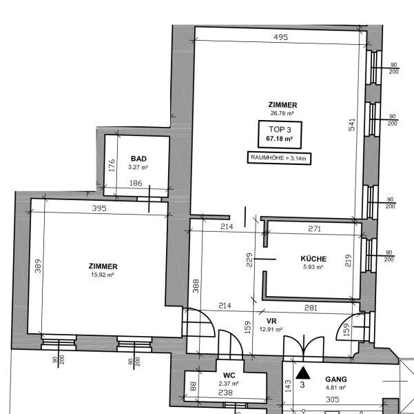
  • Plan_Top3
1040
Ort
€ 1.296,95
Gesamtkosten
68,00 m²
Fläche
2.0
Zimmer

ECKDATEN
FindMyHome.at // Externe Immobilien-ID5568658 // 3841
ImmobilienartWohnung - Miete
Anschrift1040 Wien
Baujahr1900
Stock1
Beziehbar ab2026-02-01
Mietdauerunbefristet
Fläche68,00 m²
Zimmer2.0
Bad1
WC1
Kaution:€ 3.900,00
Brutto-Miete:€ 1.296,95
Betriebskosten (inkl. MwSt):€ 147,41
Mehrwertsteuer:€ 131,70
Monatliche Gesamtkosten:€ 1.296,95
Provision: Gemäß Erstauftraggeberprinzip bezahlt der Abgeber die Provision.




BESCHREIBUNG

UNBEFRISTET: 2-Zimmer-Wohnung mit separater Küche ab FEBRUAR 2026!

Unbefristete 2 - Zimmer - Wohnung in der Schönburgstraße! 

 

Die Wohnhausanlage befindet sich im 4. Wiener Bezirk, nahe dem Südtiroler Platz!

Die 68 m² große 2-Zimmer-Wohnung sucht einen neuen Nachmieter ab FEBRUAR 2026!

Die Wohnung liegt im Hochparterre und besticht durch ihre sehr hellen und offenen Räume! 

 

Bereits im Eingangsbereich erwartet Sie ein praktisches, separat gelegenes WC, direkt neben dem Eingang. Der einladende Vorraum bietet durch seine Geräumigkeit  reichlich Platz für Garderobe und individuelle Gestaltung. Die erste Tür rechts führt in die separat liegende Küche mit Fenster. Der Flur öffnet sich in ein großzügiges Wohnzimmer. Vom separaten Schlafzimmer gelangen Sie in das Badezimmer, welches mit einer Badewanne o. Dusche und einem Waschbecken ausgestattet ist.

 

Geheizt wird in der Anlage mittels Gasetagenheizung.

Ein Kellerabteil wir dem Mieter BEI VERFÜGBARKEIT zur Benutzung gestellt.

Achtung: ein Aufzug ist vorhanden, welcher jedoch erst ab dem Mezzanin beginnt!

 

 

Hinweis:

Dies sind keine Originalbilder! Die Fotos stammen von neben liegenden/ähnlichen Wohnungen aus dem Gebäude und dienen daher als gute Veranschaulichung und bieten gleichzeitig die Möglichkeit zum Vergleich. Originalfotos folgen bald!

 

Lage

Diese Wohnung besticht nicht nur durch ihre elegante Raumaufteilung, sondern auch durch ihre ausgezeichnete Lage im Herzen Wiens.

Nur wenige Gehminuten vom Südtiroler Platz und Hauptbahnhof entfernt, genießen Sie hier eine ideale Anbindung an öffentliche Verkehrsmittel und die gesamte Stadt.

Die U1-Station ist in lediglich 3 Minuten zu Fuß erreichbar, sodass Sie das Stadtzentrum oder andere Bezirke in kürzester Zeit erreichen können. Der Hauptbahnhof, der nur 4 Gehminuten entfernt liegt, bietet Ihnen nicht nur Fernverkehrsverbindungen in alle Richtungen, sondern auch zahlreiche Einkaufsmöglichkeiten, Restaurants und Cafés.

Der nahegelegene Matzleinsdorfer Platz sorgt für zusätzliche Flexibilität in der Mobilität durch verschiedene S-Bahn- und Busverbindungen.

Gleichzeitig profitieren Sie von der hervorragenden Infrastruktur: Supermärkte, Schulen und Ärzte befinden sich in unmittelbarer Nähe, und die Umgebung bietet zahlreiche Freizeitmöglichkeiten wie Parks und Kulturangebote. Diese zentrale Lage vereint urbanes Leben mit bester Verkehrsanbindung und hoher Lebensqualität der perfekte Ausgangspunkt für Ihren Alltag!

 

Konditionen:

Vermietet wird auf unbefristete Dauer ab Februar 2026;

Kündigungsverzicht: 1 JahrKündigungsfrist: 3 Monate;

Gesamtmiete (inkl. BK, Möbelmiete, Heizkosten und Steuern): € 1.296,95

Kaution: € 3.900,- / provisionsfrei für den Mieter!

 

Strom und Heizung werden auf den Mieter umgemeldet.

TV und Internet sind nach Bedarf selbst an- und wieder abzumelden.

Ein Abschluss einer Haushaltsversicherung wird vor dem Einzug empfohlen.

 

 

Kontakt:

Bitte beachten Sie, dass wir aufgrund der Nachweispflicht gegenüber dem Eigentümer nur Anfragen mit vollständiger Angabe der Anschrift bearbeiten können. 

Wir senden Ihnen gerne weitere und detaillierte Beschreibungen, sowie Besichtigungstermine zu, sobald wir Ihre Anfrage erhalten haben.

Wir bitten Sie um eine schriftliche Anfrage entweder per Mail an:  oder direkt über die Online-Plattform!

Noch nichts gefunden Wir informieren Sie über geeignete Immobilienangebote noch vor allen anderen.
Legen Sie jetzt Ihren individuellen Suchagenten unter folgendem Link an. Wir schicken Ihnen passende Immobilien exklusiv vorab zu.
Suchagent anlegen - https://pr-immobilien-real-estate.service.immo/registrieren/de

Hinweis gemäß Energieausweisvorlagegesetz: Ein Energieausweis wurde vom Eigentümer bzw. Verkäufer, nach unserer Aufklärung über die generell geltende Vorlagepflicht, sowie Aufforderung zu seiner Erstellung noch nicht vorgelegt. Daher gilt zumindest eine dem Alter und der Art des Gebäudes entsprechende Gesamtenergieeffizienz als vereinbart. Wir übernehmen keinerlei Gewähr oder Haftung für die tatsächliche Energieeffizienz der angebotenen Immobilie.

Der Immobilienmakler erklärt, dass er entgegen dem in der Immobilienwirtschaft üblichen Geschäftsgebrauch des Doppelmaklers einseitig nur für den Vermieter tätig ist.


Infrastruktur / Entfernungen

Gesundheit
Arzt <500m
Apotheke <500m
Klinik <1.000m
Krankenhaus <1.000m

Kinder & Schulen
Schule <500m
Kindergarten <500m
Universität <1.000m
Höhere Schule <1.000m

Nahversorgung
Supermarkt <500m
Bäckerei <500m
Einkaufszentrum <1.000m

Sonstige
Geldautomat <500m
Bank <500m
Post <1.000m
Polizei <1.000m

Verkehr
Bus <500m
U-Bahn <500m
Straßenbahn <500m
Bahnhof <500m
Autobahnanschluss <2.500m

Angaben Entfernung Luftlinie / Quelle: OpenStreetMap

Klimaanlage: JA
Provision: Gemäß Erstauftraggeberprinzip bezahlt der Abgeber die Provision.


Alle Details anzeigen

KONTAKT






 

Lasse dich kostenlos vom Anbieter dieser Immobilie zurückrufen.







 


 
PR-IMMOBILIEN / REAL ESTATE
Marissa Stifter
Telefonnummer anzeigen Telefon Allgemein: +436765900280
Handy Bearbeiter: +436765900280
 
Bitte dem Makler die FindMyHome.at - ID bekanntgeben: 5568658

Bewertungen dieses Anbieters
Netiquette
Freundlichkeit
80 %

BEWERTUNGEN DIESES ANBIETERS

 
Antwortzeit
ø 48h ANTWORT
Weiterempfehlung
WIRD GERNE

Freundlichkeit
BESONDERS
FREUNDLICH
Netiquette
FINDMYHOME
NETIQUETTE
Auch du kannst bewerten! 7 Tage nach deiner Anfrage erhältst du dafür von uns ein Bewertungsmail.
Alle Infos zu unseren Auszeichnungen und dem FINDMYHOME.AT Qualitätsprogramm findest du hier: Übersicht anzeigen


Du willst wissen, wie viel dein Umzug kosten wird?

Mach gleich den kostenlosen Preisvergleich und schau, welche seriösen Anbieter in deiner Region günstig deinen Umzug organisieren


ZUM UMZUGS-VERGLEICH
-->

MYHOME BLOG
SuchAgentin auf FindMyHome.at
Unterschiedlichen Rechtsthemen, köstliche Rezepte, neueste Design-Highlights, sowie aktuelle Technik-Tools für Ihr Eigenheim.


FINDMYHOME.AT SUCHAGENTIN
SuchAgentin auf FindMyHome.at
Hallo, soll ich dir ähnliche Immobilien kostenfrei per E-Mail schicken?


ÄHNLICHE IMMOBILIEN
Aehnliche Immobilie - Vorschaubild 1

Klassische Wiener Eleganz - Ihr neues Zuhause! - Objektnr. 5587250

61,34 m² - 3.0 Zimmer
1399.5 €
PLZ: 1040

Mehr anzeigen

Aehnliche Immobilie - Vorschaubild 2

Zentrale 4-Zimmer-Wohnung nahe Karlsplatz - Objektnr. 5529945


81,53 m² - 4.0 Zimmer
1244.79 €
PLZ: 1040

Mehr anzeigen

Aehnliche Immobilie - Vorschaubild 3

UNBEFRISTET: 2-Zimmer-Wohnung mit separater Küche - Bezug ab... - Objektnr. 5574587

61,00 m² - 2.0 Zimmer
1138.73 €
PLZ: 1040

Mehr anzeigen

Durch die Nutzung unserer Seite erklären Sie sich mit der Verwendung von Cookies zur Verbesserung Ihres Online-Erlebnisses einverstanden. Detaillierte Informationen zu diesem und weiteren Themen erhalten Sie in unserer Datenschutzerklärung.