MEIN ERGEBNIS ANPASSEN

Schöne 2-Zimmer Wohnung, Nähe Meiselmarkt - Objektnr. 5568103

1150
Ort
64,00 m²
Fläche
2.0
Zimmer

ECKDATEN
FindMyHome.at // Externe Immobilien-ID5568103 // 5047
ImmobilienartWohnung - Eigentum
Anschrift1150 Wien,Rudolfsheim-Fünfhaus
Baujahr1936
Befeuerung
Stock1
Fläche64,00 m²
Zimmer2.0
Bad1
WC1
Kaufpreis:€ 249.000,00
Ratenzahlung:Finanzierungsmöglichkeiten für diese Immobilie anzeigen
Provision: 3% des Kaufpreises zzgl. 20% USt.







BESCHREIBUNG

Schöne 2-Zimmer Wohnung, Nähe Meiselmarkt

Im Falle der Notwendigkeit einer Fremdfinanzierung Ihrer Wunschimmobilie ermittelt unser Wohnbau-Finanzierungsexperte gerne die optimale Finanzierungslösung und findet das passende Zins- und Konditionsangebot für Sie. Er vergleicht die aktuellen Angebote aller relevanten Banken und Bausparkassen. Der Angebotsvergleich kann aus einem Portfolio von über 120 Banken erfolgen. Das Erstgespräch ist für Sie kostenfrei und unverbindlich, gerne auch bei Ihnen vor Ort. So sparen Sie Ihre wertvolle Zeit und erhalten eine professionelle und unabhängige Finanzierungslösung vom Spezialisten. Sprechen Sie uns wegen eines Termins gerne an!

 

Zum Verkauf gelangt eine 2-Zimmer Wohnung im 15. Wiener Gemeindebezirk.

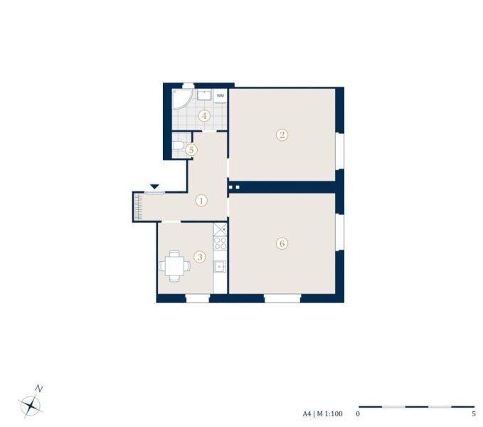
Sie verfügt über ca. 64 m² und befindet sich im 1. Stock eines im Jahr 1936 erbauten Altbaus. Die Wohnung gliedert sich in einen Vorraum, einen Wohnraum, ein Schlafzimmer, eine Küche, ein Badezimmer und ein separates WC. Die Wohnräume sind mit einem Parkettboden ausgestattet und die Nassräume sind verfliest. Beheizt wird mittels Gas-Etagenheizung.

Sie betreten die Wohnung und befinden sich im Vorraum. Gerade durch gelangen Sie in die getrennt von einander begehbaren Zimmer. Gegenüber von der Eingangstüre befindet sich die Küche, die auch Platz für einen Tisch bietet. Das Badezimmer verfügt über ein Fenster und ist mit einer Dusche, einem Waschbecken, einem Waschmaschinenanschluss und einem Handtuchtrockner ausgestattet.

In der Liegenschaft sind 27 Wohnungen derzeit sofort bezugsfrei, während eine Einheit unbefristet vermietet ist. Die Wohnungen weisen Wohnflächen zwischen ca. 34 m² und 66 m² auf und überzeugen durch ihre durchdachten, kompakten Grundrisse. Einige Einheiten verfügen über offene Wohn-/Essbereiche und andere über separate Küchen. Die Vielfalt an Größen und Raumaufteilungen schafft attraktives Potenzial für unterschiedlichste Wohnbedürfnisse. Das Gebäude befindet sich in einem soliden und gepflegten Zustand, die allgemeine Bausubstanz ist gut erhalten. 

Die Infrastruktur ist optimal, die Nähe zum Meiselmarkt und zur Hütteldorfer Straße bietet zahlreiche Einkaufsmöglichkeiten, öffentliche Einrichtungen, Parkanlagen und Geschäfte für den täglichen Bedarf. Die U3-Station Johnstraße und die Buslinie 10A sind auch schnell erreichbar. Das Schloss Schönbrunn mit der traumhaften Parkanlage bietet einen perfekten Rückzugsort, welchen Sie in nur ca. 15 Minuten erreichen können. 

Die Vertragserrichtung und Treuhandabwicklung ist gebunden an die Kanzlei Drachsler Linzer, 1060 Wien, Mariahilfer Straße 103. Die Kosten betragen 1,5 % des Kaufpreises zzgl. USt. sowie Barauslagen und Beglaubigung. Bei Fremdfinanzierung erhöht sich das Honorar auf 1,8 % vom Kaufpreis zzgl. 20 % USt., Barauslagen und Beglaubigung.

Überzeugen Sie sich selbst von dieser Immobilie.

Für Besichtigungen und nähere Informationen stehen wir Ihnen gerne zur Verfügung!

Frau Marie-Louise Eisenburger
national - Tel: 0676 605 9800
international - Tel.: +43 676 605 9800
e-mail:

Wir weisen darauf hin, dass zwischen dem Vermittler und dem zu vermittelnden Dritten ein familiäres oder wirtschaftliches Naheverhältnis besteht.

Der Vermittler ist als Doppelmakler tätig.

 

 


Infrastruktur / Entfernungen

Gesundheit
Arzt <500m
Apotheke <500m
Klinik <1.000m
Krankenhaus <2.000m

Kinder & Schulen
Schule <500m
Kindergarten <500m
Universität <1.000m
Höhere Schule <2.000m

Nahversorgung
Supermarkt <500m
Bäckerei <500m
Einkaufszentrum <1.000m

Sonstige
Geldautomat <500m
Bank <500m
Post <500m
Polizei <1.000m

Verkehr
Bus <500m
U-Bahn <500m
Straßenbahn <500m
Bahnhof <500m
Autobahnanschluss <4.500m

Angaben Entfernung Luftlinie / Quelle: OpenStreetMap

Provision: 3% des Kaufpreises zzgl. 20% USt.


Alle Details anzeigen

KONTAKT






 

Lasse dich kostenlos vom Anbieter dieser Immobilie zurückrufen.







 


 
IM Lifestyle Properties GmbH
Marie-Louise Eisenburger
Telefonnummer anzeigen Telefon Allgemein: +4315121484
Handy Bearbeiter: +436766059800
 
Bitte dem Makler die FindMyHome.at - ID bekanntgeben: 5568103

Bewertungen dieses Anbieters
Qualitätsmakler
Qualitätsmakler:
2019, 2023,
Netiquette
Freundlichkeit

BEWERTUNGEN DIESES ANBIETERS

 
Qualit�tsmakler
Qualitätsmakler
2019, 22/23
Freundlichkeit
BESONDERS
FREUNDLICH
Netiquette
FINDMYHOME
NETIQUETTE
Auch du kannst bewerten! 7 Tage nach deiner Anfrage erhältst du dafür von uns ein Bewertungsmail.
Alle Infos zu unseren Auszeichnungen und dem FINDMYHOME.AT Qualitätsprogramm findest du hier: Übersicht anzeigen

FINANZIERUNG
?>

Du willst wissen, wie viel dein Umzug kosten wird?

Mach gleich den kostenlosen Preisvergleich und schau, welche seriösen Anbieter in deiner Region günstig deinen Umzug organisieren


ZUM UMZUGS-VERGLEICH
-->

MYHOME BLOG
SuchAgentin auf FindMyHome.at
Unterschiedlichen Rechtsthemen, köstliche Rezepte, neueste Design-Highlights, sowie aktuelle Technik-Tools für Ihr Eigenheim.


FINDMYHOME.AT SUCHAGENTIN
SuchAgentin auf FindMyHome.at
Hallo, soll ich dir ähnliche Immobilien kostenfrei per E-Mail schicken?


ÄHNLICHE IMMOBILIEN
Aehnliche Immobilie - Vorschaubild 1

Schöne 2-Zimmer Wohnung, Nähe Meiselmarkt - Objektnr. 5568107


66,00 m² - 2.0 Zimmer
275000 €
PLZ: 1150

Mehr anzeigen

Aehnliche Immobilie - Vorschaubild 2

?EFFIZIENTE 2-ZIMMER-WOHNUNG? / LOGGIA / ca. 61m2... - Objektnr. 5559639

61,00 m² - 2.0 Zimmer
265000 €
PLZ: 1150

Mehr anzeigen

Aehnliche Immobilie - Vorschaubild 3

"Ihr Nächstes Anlageobjekt - Stabil Vermietet!"... - Objektnr. 5545053

61,00 m² - 2.0 Zimmer
215000 €
PLZ: 1150

Mehr anzeigen

Durch die Nutzung unserer Seite erklären Sie sich mit der Verwendung von Cookies zur Verbesserung Ihres Online-Erlebnisses einverstanden. Detaillierte Informationen zu diesem und weiteren Themen erhalten Sie in unserer Datenschutzerklärung.